The Project Gutenberg EBook of The ecclesiastical architecture of Scotland
from the earliest Christian times to the seventeenth century; vol. 2/3, by
David MacGibbon

This eBook is for the use of anyone anywhere in the United States and
most other parts of the world at no cost and with almost no restrictions
whatsoever. You may copy it, give it away or re-use it under the terms
of the Project Gutenberg License included with this eBook or online at
www.gutenberg.org. If you are not located in the United States, you
will have to check the laws of the country where you are located before
using this ebook.

Title: The ecclesiastical architecture of Scotland from the earliest
       Christian times to the seventeenth century; vol. 2/3

Author: David MacGibbon
        Thomas Ross

Release Date: December 06, 2020 [EBook #63978]

Language: English

Character set encoding: UTF-8

Produced by: Chuck Greif and the Online Distributed Proofreading Team at
             http://www.pgdp.net (This file was produced from images
             available at The Internet Archive)

*** START OF THE PROJECT GUTENBERG EBOOK THE ECCLESIASTICAL ARCHITECTURE OF
SCOTLAND FROM THE EARLIEST CHRISTIAN TIMES TO THE SEVENTEENTH CENTURY; VOL.
2/3 ***

[Image of the cover
is unavailable.]

Contents.
Index:A, B, C, D, E, F, G, H, I, J, K, L, M, N, O, P, R, S, T, V, W, Y.

(In certain versions of this etext [in certain browsers] clicking on the image will bring up a larger version.)

(etext transcriber's note)

{i}

THE ECCLESIASTICAL ARCHITECTURE
OF SCOTLAND

FROM THE EARLIEST CHRISTIAN TIMES TO THE SEVENTEENTH CENTURY. {ii}

Edinburgh: Printed by George Waterston & Sons
FOR
DAVID DOUGLAS.
LONDON,SIMPKIN, MARSHALL, HAMILTON, KENT, AND CO., LIMITED
CAMBRIDGE, MACMILLAN AND BOWES
GLASGOW,JAMES MACLEHOSE AND SONS

{iii}

THE

ECCLESIASTICAL

ARCHITECTURE

OF SCOTLAND

FROM THE EARLIEST CHRISTIAN TIMES TO THE
SEVENTEENTH CENTURY

BY

DAVID MACGIBBON AND THOMAS ROSS

AUTHORS OF “THE CASTELLATED AND DOMESTIC ARCHITECTURE OF SCOTLAND”

VOLUME TWO

[Image unavailable.]

EDINBURGH: DAVID DOUGLAS

MDCCCXCVI

All rights reserved.

{iv} 

{v} 

PREFACE.

As this Volume contains drawings and descriptions of the examples of the First Pointed and Middle Pointed Periods in Scotland, and, therefore, illustrates the finest of our mediæval edifices, it may be convenient at this stage to consider the position these buildings occupy in relation to the general system of Gothic architecture in other countries. There can scarcely be any question as to the Gothic style having been imported into, and not being native to, this country. We have already seen that the Norman style was gradually introduced from England, and was afterwards superseded by the transition style. The buildings of the first pointed period also show unmistakable indications of their design having been brought from England,[1] while those of the middle pointed period, although clearly allied in style to English examples, exhibit in their details a few signs of other influences. Although many of our Scottish edifices contain much beautiful work, and all are full of interest, it must be admitted that even the best examples of Gothic in this country cannot claim to give full expression to the fundamental principles of the Gothic style as developed in its native home, the Royal Domain of France.

The style being here an exotic, and being carried out rather as imitative than as original, it is naturally to be expected that it should disclose symptoms of departure from the spirit which animated those by whom it was wrought out and developed. And that is, in fact, the case.

Notwithstanding the beauty of many of our larger and{vi} finer edifices, such as Holyrood and Melrose Abbeys, and Glasgow, Dunblane, and Elgin Cathedrals, evidence is wanting in the design of these edifices of a full appreciation of the leading principles which inspired and guided the architects of the Ile de France. The Scottish buildings represent the echo rather than the original voice of the genius of Gothic architecture.

The principal aim of the French architects of the latter half of the twelfth century and during the thirteenth century was to produce structures in which the arcuated or vaulted system of building should be developed to its fullest extent. With these architects the vaulted construction of the roof thus became the ruling element in the design, all the other features being wrought out so as to be supplementary to, and indicative of, the principles of the arcuated style. Every detail was designed so as to fulfil its structural function in subordination to that general idea. Thus the ribs of the vaults formed the framework on which the vaulting panels rested, and conveyed the pressures created by the weight of the roof to the points where these pressures were all concentrated on the capitals of the wall shafts. From that point the forces so concentrated were distributed, the vertical pressure being conveyed downwards by the wall shafts to the foundations, and the horizontal thrusts being counterbalanced by buttresses and flying buttresses, which performed their share of the work by carrying these forces obliquely to the ground. These primary features were the skeleton which constituted the main elements of the building. They formed a structure in stable equilibrium, which was independent of the filling in of the walls, with windows, doors, and other details. The latter were but the clothing and ornamentation of the main structural framework, and in the completed style (as at Amiens Cathedral), all superfluous masonry is abolished, and the spaces between the main structural elements are enclosed with screens of tracery. The Gothic structure was thus a composition in complete contrast with the Romanesque or{vii} Norman edifices which preceded it. In the latter, although arching and even vaulting were employed, the arched system of construction was in an elementary state, and the inert mass of the walls was chiefly relied on as a counterpoise to the thrusts of the arches.

It was not till the end of the twelfth and during the thirteenth century that the Gothic system had been fully worked out by the French architects. The arcuated principle had then been developed in a complete and logical manner, and had entirely freed itself from the heavy and unnecessary mass of the earlier Romanesque. Nothing was preserved except the lightest framework required for stability, enclosed with screens of tracery filled with stained glass. Every detail of the fully developed Gothic style was designed on the same logical principles as the leading structural features, and gave expression in its design to the function it was required to fulfil,[2] while the whole building was so ornamented as to be in complete harmony with the general idea.[3]

In England the details of the perfected Gothic, especially as regards decorative features, were carried out somewhat in the same spirit as in France, but the leading elements in the general design do not seem to have been so fully understood or carried out. The adherence to wooden roofs—a common and general practice in England—alone shows the difference in the guiding principles which operated in the two countries. The wooden roof is a complete departure from the leading element of the arcuated style. It shows an inclination to fall back on the ancient trabeate or horizontal beam system, from which it had been the great object of the earlier mediæval architects to free their designs. The wooden roof ignores the leading idea of a vaulted fireproof covering, and abandons the principle of the concentration of the roof{viii} pressures on particular points, as is the case in groined vaulting. No doubt a wooden roof may be designed so as to throw a greater amount of its pressure on some points than on others, but the principle of the wooden roof is that of the tie beam and the distribution of the weight over the side walls.

The actuating motive of Gothic design in the main feature of the vaulting being thus lost sight of in England, it is not surprising to find it inactive in other directions. The Romanesque element of massive walls, with small windows, is likewise partially adhered to, and in details also the guiding principle of French design is in some respects abandoned. The round form of the abacus—so universally employed in England—may be cited as a characteristic example of departure from the Gothic principle.

In France the abacus of the columns is invariably shaped so as to receive each shaft or rib which it is its function to carry; whereas the round abacus adopted in England receives indiscriminately all the members which descend upon it, and their loads are often carried by shafts not having any distinct or structural relation to the members which rest on the abacus above them.

Notwithstanding these and similar defections from the leading principles of Gothic, the architecture of England is (as has already been pointed out)[4] in many respects very charming, and, in point of variety and picturesqueness, possibly sometimes surpasses French examples.

What is here attempted to be pointed out is not so much that English Gothic is defective in the above respects, as that certain logical principles, inseparable from a genuine arcuated system, are less weakly developed in England than in the Ile de France. If between the architecture of the two countries there is not much to choose as regards picturesque details and ornamental features, there can be little question but that the logical spirit which apprehended and followed{ix} out the principles of the arcuated style to their full limits is more clearly apparent in the one than in the other.

The position of Gothic in England being as described, it is only natural to find in the structures of the leading periods of the style in Scotland, which shine by a light borrowed from England, a similar and even greater departure from the main ideas which actuated the architects of France. The same defects occur here as in England—the frequent use of the wooden roof for wide spans being common to both countries, and producing similar results in each. The wooden roof led, from the principles of its structure, to changes and peculiarities in the design throughout. In some cases the wall shafts which divide the bays are entirely omitted, and give place to a large expanse of plain wall over the main arcade. Instances of this occur at Sweetheart Abbey and Dunblane Cathedral (see Figs. 758, 510). In other examples a continuous arcade is carried along at the triforium level, without any strengthening of the walls over the main piers, thus carrying out the principle of the wooden roof, which implies an equal pressure all along the side walls. This is a very marked feature at Kelso Abbey and Dunblane Cathedral.

In some buildings, although vaulted, the wall shafts are of such slight dimensions as to be scarcely of any value (even to the eye) in conveying the weight of the vaults to the ground, and these shafts frequently do not descend to the base, or even to the caps of the main piers, but are carried on corbels inserted in the side walls at a considerable height above the caps of the piers. The functional use of the wall shafts is thus disregarded, and they become mere ornaments.

Slight wall shafts of this description, carried on corbels, occur in the nave of Glasgow Cathedral, in the choir of St. Giles’, Edinburgh; in St. Michael’s, Linlithgow; Crosraguel Abbey, &c.; while in the choir of Glasgow Cathedral and in Haddington Church the small wall shafts spring from the caps of the main piers.

In Elgin Cathedral the vaulting shafts, which are mere{x} beads, descend to the ground, and the clerestory arcade is almost continuous.

In Lincluden College the vaulting shafts, which are heavier than usual, all rest on corbels in the side walls, not far above the floor, so that none of their loads are conveyed to the foundation.

Vaulting is very generally adopted in the side aisles, but in these, too, the Gothic idea is often lost sight of, the wall responds having frequently their bases supported on side benches or seats, instead of being carried to the ground.

Externally, as well as internally, our Scottish Gothic is somewhat defective in its mode of carrying out the arcuated principles. The wooden roofs so frequently employed really require no buttresses, and, therefore, our buildings are in so far right where in such cases only very slight pilaster-buttresses are used in the triforium, as is the case in Glasgow, Elgin, and Dunblane Cathedrals. In the side aisles, which are vaulted, the buttresses are sometimes heavier, but these features are insignificant as compared with the great flying buttresses and piers of the genuine arcuated or Gothic style of Northern France.

In many other respects there may be traced in Scotland a certain absence of the Gothic spirit, which discarded every element not essential to the carrying out of the arcuated principle. Even in our finest structures the Romanesque or Norman influence continues to prevail. A large expanse of heavy walling, with small openings, is not unusual. In almost no building are the solid side walls omitted and light tracery substituted between the main supporting piers, as is the case in the best Gothic in France. The broad masses of masonry in the triforium and clerestory of the churches at Linlithgow and Haddington may be cited as examples of the absence of the Gothic spirit. The continued adherence to solid walls with narrow lancet-formed windows is a marked feature of both English and Scottish architecture.{xi}

Moulded caps, with round abaci, are usual here, as in England, and have the same defects, both in principle and practice. In the later examples the relation between the shafts or mouldings, which carry the caps, and the arch-mouldings above them is abandoned, and that genuine Gothic principle is entirely ignored.

Many of the above defections from pure Gothic arise from, or owe their origin (as we have seen) to, the use of wooden roofs.

It may be argued that there is no necessity for the above principles being adhered to, and that English and Scottish architects were quite at liberty, when required, either from want of skill or absence of funds, to cover their naves with wooden roofs.

That argument is at once conceded; but, then, they should have frankly acknowledged that they departed from the arcuate and adopted the trabeate system. That, however, was never done; hence the imperfect carrying out of the arcuate system, as practised in France, which we find in most of our churches, and which shows that the style was here not original, but imitative.

What we desire to insist on is not that good architecture is incompatible with structures roofed with timber, or any other material, but that the fundamental principles of Gothic spring from the development of an arcuated style, and that that principle has been only fully and logically carried out in Northern France. In other countries in which Gothic architecture was adopted, much of its spirit was caught and developed; but when the vaulting or dominating feature of the style was absent, the manifestations of the Gothic spirit were comparatively weak and imperfect. These weaknesses and imperfections appear to prove the derivative nature of the architecture in those countries, and especially in Scotland.

But the fact of the Gothic of Scotland being of borrowed origin does not prevent much of it here, as in England, from{xii} being beautiful and instructive, as, it is hoped, the following pages will show.

Probably one of the Scottish edifices in which Gothic principles are best exemplified is Melrose Abbey. The whole building was vaulted with stone, and the vaulting was chiefly groined. The ribs (see Fig. 767) descend on the caps of vaulting shafts of trefoil section, the central division of which rests on a corbel at the level of the main pier caps, while the other two divisions of the trefoil shaft descend without interruption to the base of the piers. That at least was the design, although it was in some of the piers interfered with by the introduction of a screen. In the south aisle also the vaulting ribs are carried on wall shafts or responds, which descend to the bases; but there is an unnecessary amount of wall on each side of these shafts and over the longitudinal arches, which lead into the outer chapels.

The vaults are counterpoised with suitable flying arches (see Fig. 766) abutting on solid buttresses, loaded with lofty pinnacles, which give them due resistance to the thrusts brought to bear on them. The windows in the south chapel walls (and clerestory of choir) are larger than usual, and are filled with tracery; but there is here also an unnecessary amount of plain wall between the bays, especially in the nave clerestory.

There is, however, at Melrose an entire absence of the heavy blank wall so often introduced over the main arcade, although the absence of any triforium makes the building seem somewhat low and squat. The large amount of solid masonry over the exterior of the great east window of the choir and south window of the transept is likewise a defect. The round abacus is almost always used at Melrose, but the shafts of the piers are simple and distinct, and each member carries a clearly defined series of mouldings.

The authors beg again to tender their acknowledgment of the assistance they have received from many quarters. They have especially to thank Mr. T. S. Robertson, Archi{xiii}tect, Dundee; Mr. William Galloway, Architect, Wigton; and Mr. R. Bruce Armstrong, for the drawings and descriptions they have kindly contributed, and which are referred to in the text. To Mr. John Honeyman and Mr. T. L. Watson, Architects, Glasgow, they are also indebted for assistance in connection with Glasgow Cathedral.

 

Since the description of St. Andrews Cathedral in this Volume was written, considerable progress has been made with the works referred to in the text, as being carried on for Lord Bute by Mr. Kinross, Architect, and several new points have been disclosed.

The west doorway from the cloister into the nave (which is in a modern vinery) has been opened up on the south side, and its massive first pointed architecture has been shown. The arch is pointed, and the details (including dog-tooth enrichments) correspond in style with the entrance to the chapter house (see Fig. 452).

The whole of the crypt of the refectory (see Fig. 454) has been excavated and the pillars uncovered, showing that there were two rows of pillars and three vaults in the width of the building. The pillars, which are round, have been restored so far as they were incomplete, and so have the groined arches, the new work being executed in red sandstone, so that it may be easily distinguishable from the old work, which is of a light coloured freestone. The masonry of the old pillars being considerably shattered, it has been found necessary, in restoring the crypt, to insert an iron column in the heart of each pillar, in order to give them sufficient strength to carry the weight of the vault. It is not known to what use this crypt was applied.

In the east range of buildings running south from the chapter house, the excavations have been continued, and the pillars of a vaulted chamber below the dormitory have been revealed. As this chamber contains a fireplace, it may possibly have been the day room or calefactory of the canons,{xiv} as only one fireplace (and that in the calefactory) was allowed in the monasteries. There is, however, some doubt as to whether this fireplace is original. At the south end of this chamber a deep drain or water channel, carefully built with ashlar, has been found. This was, doubtless, the main sewer of the monastery, through which there flowed a constant stream of water. The stream which fed the mill race (see Fig. 457) is not far distant. The latrines were, without doubt, situated above this sewer.

In the grounds of the existing school of St. Leonard’s, which lie on the south side of the road leading from the “pends” to the harbour, was formerly situated St. Leonard’s Hospitium, or Guests’ Hall, for the reception of pilgrims and strangers visiting St. Andrews. This Hospitium was an ancient foundation, but according to Martine it was rebuilt by Prior John White in the middle of the thirteenth century. Of this structure there still survive the ruins of the east wall, and by recent excavations made to the westwards, it has been discovered that the building consisted of a large hall, having a central nave and two side aisles. The foundations disclosed show that there were four bays in the length of the hall.

The following translations from Bower’s continuation of Fordun’s Scotichronicon,[5] which Lord Bute has been good enough to send us, together with his own valuable notes, throw some light on the dates of parts of the cathedral and other matters connected with it, especially the work done by Prior Halderston, 1418-1443, viz.:—

“This Lord [prior] James Halderston [inducted in 1418], master in Divinity, was extremely eloquent and of a good presence, and very careful and neat in his person and dress. After he had ruled his house well for twenty-four years, he died at his monastery on July 18, and was honourably buried in the north wall of the Chapel of our Lady, in the cathedral church, A.D. 1443.

In connection with above, Lord Bute mentions that Bower (p. 366) states that Bishop Henry Wardlaw, who{xv} died April 6th, 1440, “was buried in the Church of St. Andrew, with greater pomp than his predecessors, in the wall between the choir and the Chapel of our Lady,” thus making it evident that the Chapel of our Lady was the chapel on the north side of the choir.

“He [Prior Halderston] adorned the church of his monastery with wonderful and remarkable beauty, both in the carving of the stalls and in the painting of figures. The nave of this church had been erected by his predecessor, the Lord [prior] James Bisset, of worthy memory [who sat from 1393 to 1416], in a sumptuous manner, with rafters and ceilings [tignis et tecturis], but inside it was an empty, vast, and deserted synagogue. He [Halderston] fitted it throughout in becoming manner with glass windows, along with the erection of altars, figures, and decorations and polished pavements.” Lord Bute asks—“Did he add the altar against the screen which crosses the south aisle just west of the eastmost door into the cloister?”

“He [Halderston] built the eastern gable from the foundations, along with its arch [arcuali voltâ].” As Lord Bute remarks—“This must mean only the east window, the greater part of the east wall being of transition work” (see Figs. 443-444.) “He adorned pleasingly the hinder vestry [revestiarium] with the reliques and other restorations and cases [clausaris] at considerable expense.”

Lord Bute thinks that “the revestiarium is evidently the east end of the church behind the high altar, sometimes wrongly called the Lady Chapel,” and refers for the use of this term to the contemporary accounts of the death of the Red Comyn, in which he is sometimes stated to have been dragged by the friars into the vestry, and sometimes behind the altar, thus showing the space behind the altar to have been the vestry.

“He laid with a pleasing pavement the whole space not only of the choir, but also of the transept [transversarum capellarum] of the church, along with both sides [lateribus sive panis] of the cloister, and also the outer chapter house [inferius capitulum]. He rebuilt, as it were, from the foundations the fair and remarkable palace within the court of the prior’s lodging, along with the handsome [decentoribus] oratory and chamber which are there situated;{xvi} and likewise domestic manor-houses in their [or his ‘suis’] ‘locaperhendinalia’ [places where he might occasionally have to stay, perendie = the day after to-morrow], such as Ballon, Segy, and Kynmoth.”

The following note on the above passage is subjoined by Lord Bute:—

“Bower states (pp. 368-369) that Prior John of Haddington, who sat 1263-1304, ‘made the great chamber which is situated in the east part of the monastery, beside the burying-ground;’ that Prior John of Forfar (1313-1321) ‘built the new chamber adjoining the cloister, which the priors have usually had, and which Prior William of Lothian (1340-1354) afterwards enclosed on every side with a very strong wall;’ also, that William of Lothian roofed ‘the eastern chamber’ at great expense.” Lord Bute goes on to say—“My impression is, that the ‘new chamber’ is that afterwards called the senzie chamber; several priors and bishops are mentioned as having died ‘in the prior’s chamber,’ but that Halderston rebuilt the eastern chamber, erecting a fine house there, and also rebuilding some rather decayed old oratory on a finer scale [decentiori]. He was the first who obtained for the priors the use of the pastoral insignia—viz., the mitre, staff, and ring. ‘He strikingly increased for their glory the pomp of divine service, at the celebration of the mass of our lady in her chapel. [Probably it was the custom for the priors to sing or say it on certain days, or every day].... In his days the Lord William Bower, vicar of St. Andrews, completed the altar of [Christ] crucified in the nave of the church, adorned with its permanent [solido] throne and sumptuous figures; and likewise William of Ballochy, his sub-prior, with the desire of the said prior, completed in a very beautiful and comely manner the space of the dormitory at the sides and the other pavements.’

With regard to the work of William Bower, Lord Bute says:—

“I only know of one other instance of a permanent stone gallery of one arch crossing the nave; this is at Frankfort, and I got there an architectural work on it. At Frankfort, the imperial throne stood upon it as the Commissioner’s throne used to stand in St. Giles’, Edinburgh, before it was all pulled down a few years ago; the throne of the King of France on the rood loft at Rheims, &c. {xvii}&c. But this throne was not permanent. I believe that at St. Andrews there was this single span arch, bearing a platform, upon which was a great canopy (as in St. Giles’), and under the canopy the royal throne, looking eastwards, and the altar of the crucifix back to back with it (as with the imperial throne and domestic altar in the gallery at Aachen). In the rood loft at Rheims the king’s domestic altar was not back to back with the throne, but at the south end of the gallery at his right hand. Above the roof of the baldaquin or canopy (at St. Andrews), over the throne and altar, I imagine the great rood, with a multitude of ‘sumptuous figures,’ to have towered up towards the roof.”

From the above quotations from Bower, and Lord Bute’s remarks thereon, attention is drawn to a number of interesting points connected with the cathedral and priory, and the names and dates of the priors to whom certain parts of the structure are due. We gather from them—

1. That the Lady Chapel was situated on the north side of the choir.

2. That the nave was, to a large extent, rebuilt and roofed by Prior James Bisset, about the beginning of the fifteenth century, but remained an “empty synagogue” till completed and furnished with glazed windows, altars, and decorations by his successor, Prior Halderston.

This corresponds with the period assigned in the text (pp. 18 and 28) for the rebuilding of the upper portion of the west end.

3. Numerous other works were carried out by Prior Halderston. He it was who altered the east end, and introduced the single large window in place of several smaller ones. He also executed the pavement of the choir, transept, and cloister walk, and rebuilt the prior’s palace. He likewise carried out other works, the sites of which are indefinite; and he obtained for the priory the pastoral insignia.

According to Lord Bute’s view, a single great arch was thrown across the nave, between the second pillars from the crossing, above which was a gallery, where stood the royal{xviii} throne, surmounted by a baldaquin, having the altar of the crucifix behind it; while above the canopy towered the great rood, together with numerous figures. Lord Bute points, in support of this view, to the example at Frankfort, where an arch of a single span supported the rood loft and imperial and royal thrones.

As regards the Commissioner’s or royal throne at St. Giles’, Edinburgh, it no doubt occupied the centre of the gallery at the west end of the choir, or “High Church,” when the building was divided into three churches, and it had a canopy over it. It thus stood in the position where a rood loft might have been, but the gallery it occupied was an erection of this century, and did not rest on an ancient base.

Edinburgh, October 1896.

{xix}

CONTENTS.

 PAGE
Introductory remarks—New development of architecture at end of twelfth century, along with other new developments—Introduction of Pointed Style succeeded the Transition—Connection with England—Features of First Pointed Style in Scotland—Central Towers, Cloisters, &c., as in England—Omission of triforium not unusual—Few parish churches of First Pointed Period,1-5
St. Andrews Cathedral and Priory (Augustinian), Fifeshire,5
St. Mary’s, Kirkheugh, St. Andrews,Do.29
Arbroath Abbey (Tironensian),Forfarshire,30
Do. Abbot’s House Do.49
Holyrood Abbey (Augustinian),Edinburgh,53
Kilwinning Abbey (Tironensian),Ayrshire,73
Dunblane Cathedral,Perthshire,86
Inchmahome Priory (Augustinian),Stirlingshire,112
Elgin Cathedral,Morayshire,121
Pluscardine Priory (Valliscaulian),Do.146
Glasgow Cathedral,Lanarkshire,160
Brechin Cathedral,Forfarshire,203
Maison Dieu, Brechin,Do.215
Lindores Abbey (Tironensian),Fifeshire,217
Cambuskenneth Abbey (Augustinian),Stirlingshire,225
Culross Abbey (Cistercian),Perthshire,231
Old Parish Church, Culross,Do.243
Beauly Priory (Valliscaulian),Inverness-shire,245
Newbattle or Newbotle Abbey (Cistercian),Mid-Lothian,251
Lismore Cathedral,Argyleshire,263
St. Kentigern’s, Lanark,Lanarkshire,266
St. Adamnan’s (?), Burntisland,Fifeshire,269
St. Baldred’s, Prestonkirk,Haddingtonshire,271
Cowie Church,Kincardineshire,273
The Abbey of Deer (Cistercian),Aberdeenshire,274
Deer Church,Do.278
Auchindoir Church,Do.281
St. Cuthbert’s, Monkton,Ayrshire,285
St. Nicholas’, Prestwick,Do.285
Luffness Monastery (Redfriars),Haddingtonshire,288
Altyre Church,Morayshire,290
{xx} St. Mary’s Chapel, Rattray,Aberdeenshire,292
St. Magridin’s, Abdie,Fifeshire,293
St. Ninian’s (?) on “The Isle,”Wigtonshire,297
Chapel, Dunstaffnage Castle,Argyleshire,299
St. Colmanel’s, Buittle,Kirkcudbrightshire,300
Tungland Abbey (Premonstratensian),Do.301
Cockpen Church,Mid-Lothian,303
Pencaitland Church,Haddingtonshire,304
Font, Gogar Church,Mid-Lothian,306
The Abbey of Inchcolm (Augustinian),Fifeshire,307
MIDDLE POINTED OR DECORATED PERIOD.
Introductory remarks—Few buildings erected in fourteenth century, but many destroyed during the wars with England—A gap in Scottish architecture during fourteenth century—Building again begun in fifteenth century—Style of early part of century closely allied to the Decorated of England, but in the latter half of century the style differed from that both of France and England, and partook of features from both these countries—Style of Melrose Abbey compared with that of York Minster—Introduction of special features in Scotland, such as the Pointed Barrel Vault supporting a stone roof, and the erection of collegiate churches,331-334
New Abbey, or Sweetheart Abbey (Cistercian),Kirkcudbrightshire,334
Melrose Abbey (Cistercian),Roxburghshire,344
Lincluden College,Kirkcudbrightshire, 383
Fortrose Cathedral,Ross-shire,394
Crosraguel Abbey (Cluniac),Ayrshire,402
St. Giles’ Collegiate Church,Edinburgh,419
St. Michael’s, Linlithgow,West Lothian,455
St. Monans’,Fifeshire,471
Whithorn Priory (Premonstratensian),Wigtonshire,479
Temple Church,Mid-Lothian,486
St. Mary’s, Haddington,East Lothian,491
Balmerino Abbey (Cistercian),Fifeshire,505
Chapel in Rothesay Castle,Buteshire,517
St. Bride’s, Douglas,Lanarkshire,520
St. Bride’s College, Bothwell,Do.531
St. Duthus’, Tain,Ross-shire,537
Fearn Abbey (Premonstratensian),Do.542
St. Peter’s, Inverkeithing,Fifeshire,547
Aberdalgie, Monument of Sir W. Olifurd,Perthshire,551
St. Devenic’s, Creich,Fifeshire,554
Faslane Church,Argyleshire,557

{1}

THE ECCLESIASTICAL ARCHITECTURE OF SCOTLAND

FROM THE EARLIEST CHRISTIAN TIMES TO THE SEVENTEENTH CENTURY.

V O L U M E   I I.

FIRST POINTED PERIOD.

In the previous volume those styles of architecture in Scotland were dealt with which are directly derived from the earlier styles of Celtic and Roman or Romanesque art, and it was shown, in the examples of the Transition style, that the old forms were passing away and new forms were being introduced.

We have now reached that point in the history of mediæval architecture when it took an entirely new and original development. It has already been pointed out[6] that this new departure sprung from the necessity which arose for the invention of an elastic system of vaulting which should admit of all the arches, forming vaults over spaces of any form on plan, being carried to the same height at the ridge. This requirement led to the introduction of the pointed arch in the vaulting, and from that department it soon spread to all the other arched features of the architecture.

This new development took place at a time when great changes were occurring, especially in France, in social and intellectual life. Men’s minds were then gradually awakening, science and instruction were spreading under Abailard and other teachers, the towns were obtaining their freedom, and a new system of things was gradually unfolding itself.

Architecture, which had hitherto been confined to the monasteries, was now undertaken by laymen, who, discarding the old traditional methods, strove after a new and simpler mode of expressing their ideas in stone. The elaborate and stereotyped features and ornaments of the Romanesque style were rejected, and simpler forms, at first almost without ornament, were adopted, which emphasised the constructional elements of the architecture.{2}

Of this simple, but vigorous, early pointed style numerous examples still exist in France and Spain. When introduced amongst the Normans and English towards the close of the twelfth century the pointed style had acquired a certain amount of ornamentation of a new and appropriate description.

The examples already illustrated show that during the Transition period the new style was making itself felt in Scotland about the end of the twelfth century. At Dundrennan and Jedburgh Abbeys the pointed arch becomes prominent amongst the round arches of the earlier style, but many of the old enrichments are still adhered to. This clinging to old forms may still to a certain extent be noticed in some of the structures whose leading features are in the first pointed style, but these relics gradually, though slowly, disappear. The round arch, however, sometimes maintains its position in Scottish doorways throughout the whole of the Gothic period.[7]

The pointed arch is above referred to at Kelso[8] as having been introduced, along with Norman elements, at the crossing under the tower, where its strength was considered useful. The pointed arch, however, cannot generally be said to have been adopted in Scotland in consequence of any special requirement of construction; it rather followed the lead of countries further south as a matter of fashion. Few of our early churches were vaulted throughout at the beginning of the thirteenth century, and the forms of such vaults as existed were, doubtless, borrowed from England. The vaults of the choir of St. Andrews Cathedral and the lower church of Glasgow Cathedral are probably the only exceptions, most of our other large churches having been vaulted, if vaulted at all, at a later period. The large churches were generally designed to have the side aisles only vaulted, the central aisle being covered with a wooden roof, as, for example, Arbroath Abbey and Dunblane and Elgin Cathedrals. Holyrood Abbey is an exception; but there the vaulting of the central aisle was sexpartite, and the pointed arch was not much required.

The first pointed style, when introduced into this country, speedily spread, and most of our large churches are built in that style. Many monasteries, as we have seen, were founded in the time of the sons of Queen Margaret; but most of these appear to have been at first on a small scale, and were chiefly rebuilt on a larger plan, together with new monasteries, in the thirteenth century. Such are the abbeys of Holyrood, Inchcolm, Kilwinning, Pluscardine, Culross, and Beauly.

The thirteenth century was also distinguished as the great epoch for the erection of cathedrals. The secular clergy had then risen to power, and, under their guidance, the erection of magnificent cathedrals, both at home and abroad, was the principal architectural phenomenon of the period. In France and England the great majority of the cathedrals owe{3} their origin or completion to about this epoch; and in Scotland there were erected, in whole or part, during the first pointed period, the cathedrals of St. Andrews, Dunblane, Glasgow (the choir and crypt), Elgin, Brechin, Dunkeld, Caithness, the choir of St. Magnus’ in Orkney, and Galloway.

The first pointed style, in which all the above structures were carried out, reached Scotland, as already mentioned,[9] through England. The relation between the ecclesiastics of the two countries was then very close, the monasteries being colonised from English houses, and the cathedral rules being based on the uses of those of England.

Hence, as might be expected, the connection of the style of architecture adopted in Scotland with that of England is at this period very intimate, almost the only difference observable being that the first pointed work in Scotland is rather later than that in England, and that the Norman and transition features are more slowly rejected. We find the same desire in both countries to render their principal ecclesiastical structures complete and varied. We have no cathedrals in Scotland which can vie with Salisbury, Lincoln, or York in size and magnificence, or in the possession of double transepts. The Scottish cathedrals and abbeys, however, were, for the most part, complete in all departments, having choir and nave with side aisles (and, in the case of Elgin Cathedral, with double aisles to the nave); a presbytery of one or two bays without aisles, but with large windows on three sides; well-marked transepts with eastern aisle; generally a large central tower over the crossing, and frequently two western and other towers.

Great central towers over the crossing of the first pointed period formerly existed at St. Andrews and Elgin Cathedrals, and at Dundrennan, Arbroath, Holyrood, Kilwinning, and Dunfermline Abbeys, but of these not a vestige now remains. The only central towers which now survive are those of Glasgow Cathedral and Pluscardine Abbey, which are carried on the arches of the crossing. There is also a central tower at Culross Abbey which rises with solid walls from the foundation. The central towers of Kirkwall and Dornoch Cathedrals have been rebuilt.

Of the other towers which once adorned our churches there still remain the two noble western towers of Elgin Cathedral, and one of the western towers of Holyrood Abbey. At both of these edifices the towers were carried up with solid walls from the foundation. In other examples, of which, however, only fragments survive, such as Arbroath and Kilwinning Abbeys, the towers opened with arches into the central and side aisles, so that the space occupied by the towers was included in the church. At Kilwinning the arch in the towers next the nave appears to have been carried to a great height, so as to form a kind of western transept. At Inchmahome Priory there are remains of one western tower, which was included in the nave. At Cambuskenneth Abbey a large detached tower{4} exists close to the west end, and at Lindores Abbey there are remains of one western tower.

The dependent buildings were also usually numerous and complete, the cathedrals and abbeys being almost all provided with large cloister garths, surrounded by handsome chapter houses, refectories, guest houses, &c. The chapter houses are generally square, and vaulted from one central pillar; but that of Elgin Cathedral is detached and octagonal, with vaulting springing from a lofty central column. The western portals are generally important, those of Elgin Cathedral and Holyrood Abbey being specially fine. That of Kirkwall Cathedral, already described,[10] is the finest of this period.

The Norman round apse gives place at this time, as in England, to the square east end, and there is in the first pointed period no indication of a round or multangular chevet like those in France.

The similarity of all the details of the architecture of Scotland to that of England has already been fully explained.[11]

The Scottish churches are comparatively low in the vaulting; they do not exhibit the soaring ambition of those of France, but are, like the churches of the sister country, comparatively moderate in height. The buttresses are simple and plain, and flying buttresses and pinnacles are occasionally used. The caps are round on plan, and have foliage founded on that of the early first pointed style in England.

The windows are almost always of the lancet form, several being often grouped together, and some incipient forms of tracery are attempted, as at Dunblane and Glasgow Cathedrals.

In the piers the massive round columns of the Norman style are abandoned, and clustered shafts are used, which give a lighter character to the interior. The sections of these piers are exceedingly simple and effective. They are usually illustrated in connection with each edifice, and they have all a general resemblance to each other. The section consists of one larger attached shaft (usually brought to an acute edge in the centre) on each of the four cardinal faces, and one or two intermediate smaller shafts between the four principal shafts, either separated by square fillets or without such fillets. In the later examples the sharp keel edge on the face of the shafts becomes a fillet.

The bays sometimes follow the ordinary arrangement in England, having a triforium arcade over the main arcade, surmounted by the clerestory. In some of our largest churches, viz., St. Andrews and Glasgow Cathedrals, and Kilwinning, Holyrood, Arbroath, and Pluscardine Abbeys, this arrangement is followed; but it is notable that in several churches, as at Elgin and Dunblane Cathedrals, the triforium is dispensed with, and the clerestory is placed immediately over the main arcade. In other examples, as at Dryburgh Abbey, the triforium is reduced to a minimum, and the gallery represented only by a round cusped opening. The absence{5} of the triforium is an arrangement which was much adhered to in the later epochs of our Gothic architecture.

The relative lengths of the nave and choir have already been referred to;[12] but attention may be drawn to the remarkable fact that in the monastic churches, which were constructed chiefly for the use of the monks, the choir, or portion set apart for the ecclesiastics, is small, and the nave is large; while in the cathedrals, which were intended for the use of the community, the choir is large as compared with the nave.

During the first pointed period attention seems to have been chiefly directed to the erection of large cathedrals and monastic churches—the number of parish churches constructed at this period being comparatively small.

This, no doubt, partly arose from the large number of parish churches built during the Norman period. Several examples of small churches of the first pointed period, however, are illustrated, which show that the style extended to all departments of ecclesiastical structures.

ST. ANDREWS CATHEDRAL, Fifeshire.

The ancient city of St. Andrews, formerly the ecclesiastical metropolis of Scotland, is now reduced to a small, but interesting, town, full of the remains of its former grandeur.

Situated at the eastern point of Fifeshire, on level ground, raised a considerable height above the sea, and surrounded with a rocky coast, there is little in the nature of the site to impress the beholder; but as seen in approaching from the west, the remains of the ancient edifices, with their ruined towers standing out against the sky, produce an impression of departed greatness which accords well with the venerable and stirring history of the place.

There are vague traditions of the site having been occupied by an ancient hermit at a very early period;[13] but St. Andrews was not recognised as the see of a bishop till about 950, when Cellach, the first bishop, was appointed. After him there followed ten Culdee bishops, the last being Fothad, by whom the marriage of Malcolm Canmore and Queen Margaret was celebrated.

The dedication of the cathedral to St. Andrew is involved in fable; but Dr. Skene[14] thinks that the church was founded between 736 and 761, and that portions of the relics of St. Andrew were brought to the place at that time, probably, as tradition has it, by Acca, Bishop of Northumbria, who was banished from that country in 732, and is believed to have founded a church amongst the Picts. The author of Celtic Scotland points to the similarity of the events which succeeded one another in Northumbria and in Southern Pictland in the eighth century. In the{6} former country the Columban Church was expelled and secular clergy introduced; the Church of Hexham was dedicated to St. Andrew, and his relics were received there. In the latter country, sixty years later, the Picts expelled the Columbans and introduced the secular clergy, while at the same time they received part of the relics of St. Andrew, and founded a church in his honour, St. Andrew afterwards becoming the national patron saint.

After the death of Fothad, the last Bishop of Alban, in 1093, the see of St. Andrews remained vacant till 1107, when Turgot, Queen Margaret’s chaplain and biographer, was appointed to the bishopric.

In 1158-59, Arnald, Abbot of Kelso, was consecrated Bishop of St. Andrews. That prelate immediately set about the building of the cathedral, but he died in 1162, when the work was scarcely begun. The structure progressed under his successors, and probably the whole, including the west end, was finished in little more than a century after its commencement. The original west end, having been blown down by a tempest of wind, was rebuilt by Bishop William Wiseheart (or Wishart) between 1272 and 1279. It is usually stated that the cathedral occupied 160 years in building, but it would appear to have been entirely erected from east to west on the ground it now occupies in about 115 years.

The Cathedral of St. Andrews was also the conventual church of the priory of Canons Regular of St. Augustine, which was founded by Bishop Robert about the year 1120; but of the conventual buildings erected at that time there are now no remains. The church of St. Regulus, however, which was probably erected by him, still survives.[15] The bishop was, ex officio, the prior of the monastery.

The structures erected by the various succeeding bishops and archbishops are noticed as we proceed.

In 1559 the cathedral was attacked by the mob and greatly destroyed, and thereafter became a general quarry for public use. In 1826 the Barons of Exchequer took possession of the ruins and had the rubbish cleared away, and what remained of the structure put in good order, the bases of the piers, where they existed, being brought to light, and the outline of the ancient buildings marked out in the turf.

A property adjoining the cathedral having recently been acquired by the Marquis of Bute, excavations on the site of the priory have been carried out by him, under the superintendence of Mr. J. Kinross, architect, and considerable remains of the foundations of the ancient monastic buildings have been disclosed to view.

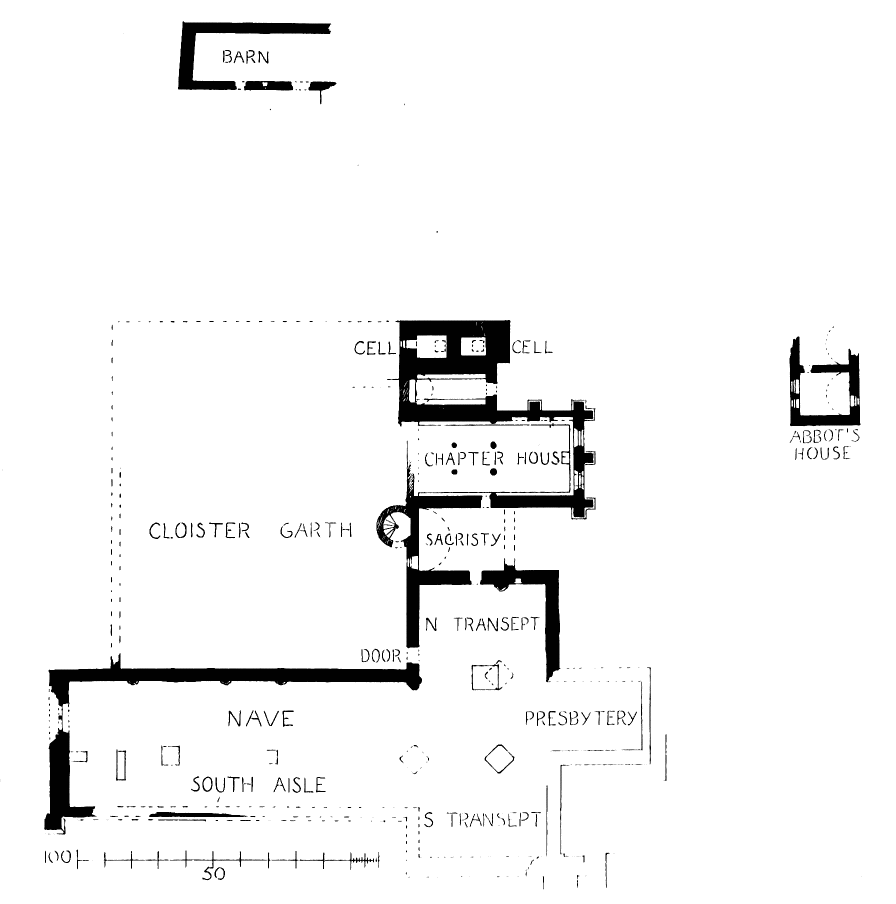
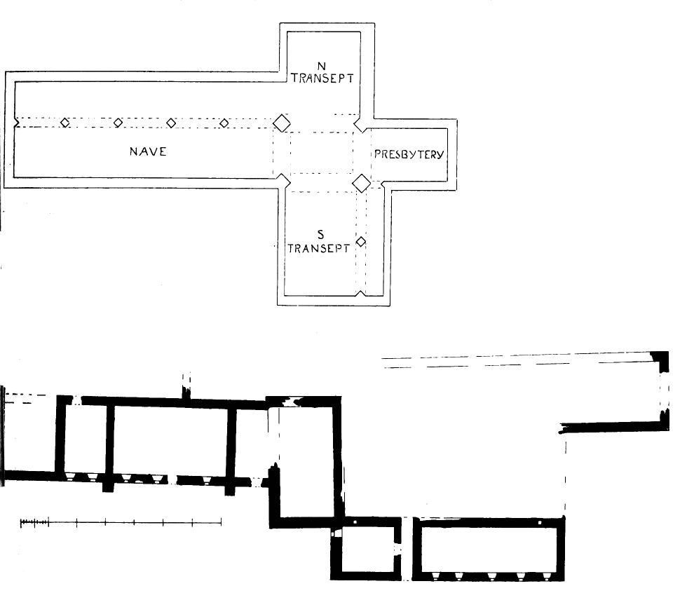
The cathedral, of which the ruins still exist (Fig. 441), consisted of a short aisleless presbytery and a choir of five bays with side aisles, having an eastern chapel in each aisle; north and south transepts, each of three bays, with eastern aisles; a nave of twelve bays with north and south aisles;{7}

[Image unavailable.]

Fig. 441.—St. Andrews Cathedral. Plan.

{8}

and a large central tower over the crossing. The interior dimensions of the edifice were as follow:—Total length, 355 feet; width of nave, 63 feet; length of transepts, 167 feet 6 inches; width of transepts, 43 feet 2 inches.

The older surviving portions show some remains of the transition style, but the principal parts of the structure have been carried out in the first pointed style. The remains of the choir piers clearly indicate that that style has prevailed in the choir, and the beautiful entrance to the chapter house gives some idea of the boldness and vigour of the first pointed work which, doubtless, extended throughout the building.

The cathedral has been very greatly ruined, but some portions have escaped destruction. Of these the east end wall still stands, but without its gable, and one half of the west end wall is entire. Besides these, the south wall of the nave, the west and south walls of the south transept for a considerable height, portions of other walls and foundations, and certain of the pillars to a few feet above the bases, are all that now survive of this once splendid structure. The east end of the choir, and the south transept and nave as far west as the fourth bay of the nave, show some lingering traces of the Transition style; and in portions of the nave, as far as the cloister doorway in the third bay from the west end, the lower part of the wall half-way up to the window sills, is of the same period. This is evident from the flat band, chamfered at top and bottom, which runs along thus far, and is a characteristic feature of early work.

The building of the western portion by Wishart is described with considerable minuteness in the Orygynale Cronykill, by Andrew Wyntown, who was a canon of the priory. He says (Vol. I., p. 390):—

“Wilyhame Wyschard wes blessyd in Scone.
Sevyn yhere and a half wes he
Byschape, and gert byggyt be
Nere all the body of the Kyrke:
Quhare that he begowth to wyrk,
Yhit men may the Taknys se
Apper and be affinnetè,
Ewyn owth[16] the thryd Pillare
Frá the Chawnselare Dure[17] sene thare;
Báth wndyre, and owth that south part,
And the north syd swá westwart,
And that west Gáivil alsuá
In-til hys tyme all gert he má.
And bot of hys Ethchettis[18] hále
Hys Kyrk he endyd Cathedyrale,
Bath in the Stane, and Thak, and Tre
The body of hys Kyrk thus he
In all thyng gert be byggyt welle,
That langyt til it ilke dele.”
{9}

[Image unavailable.]

Fig. 442.—St. Andrews Cathedral. Original East End.

{10}

Nothing is said about an earlier west end, but the description applies well to the later upper story of the south wall (see Fig. 448) and the lower story of the west end of the nave (see Fig. 450).

[Image unavailable.]

Fig. 443.—St. Andrews Cathedral. East End: Exterior.

The east end wall is not now in its original condition, but enough remains to show what it was originally. Fig. 442 shows its first condition when it was divided into three stories, with three windows in each, similar to those still remaining in the lower story (Fig. 443). The windows of the top range had in the interior (Fig. 444) shoulders at the springing of the arch similar to those of the windows still standing in the nave and transept. Nothing remains to show how the apex was designed. The windows of the two upper stories were almost entirely abolished during the first half of the fifteenth century, when one large window was inserted with simple tracery, of which enough remains to enable the design to be reconstructed (Fig. 445). The arch of this window is very slightly pointed, and is indeed semicir{11}cular in its inner ring, the object being to get as much extra height as possible without penetrating into the corbel course of the apex, the

[Image unavailable.]

Fig. 444.—St. Andrews Cathedral. East End: Interior.

{12}

cornice outside being, however, slightly raised in the centre over the top of the arch. The jambs and arch springers of the original windows, which did not require to be removed, have been left to tell the tale of the original design (see Figs. 443 and 444). We have in this east end an example of the Norman style of designing a façade by piling story above story, altered at a later date by the insertion of one large traceried window, so as to bring the façade into harmony with the later style of designing similar façades. From the small portions of the north and south walls still standing, it is evident that the same design as in the east wall of three stories was continued westwards in the choir. The upper story consisted of an arcade, having a central light in each bay, and an arch on each side opening into the passage which ran along the centre of the wall (see Fig. 444). On the outside these side openings were represented by blind arches. Against the north-east corner of the east wall a high angular buttress has been built (see Plan), having massive base mouldings of probably fifteenth century work. A similar buttress is indicated in the plan of the cathedral shown in Lyon’s History of St. Andrews as having existed at the opposite corner. The object of these buttresses is not apparent, as the east end wall shows no sign of weakness, although it has been badly used when the buttresses were built by having its corner stones pulled out. For the preservation of the structure the corners, which have been removed, ought to be replaced, seeing that the east wall now stands quite detached. The blank wall of the presbytery beneath the lower windows of the east end (see Fig. 444) appears to have been ornamented with an arcade, the blocks for the bases of the shafts being still in situ. The arcade must have been merely placed against the wall, and not bonded into it in the usual way, or else there would have been some remains or indications of it.

[Image unavailable.]

Fig. 445.—St. Andrews Cathedral.
Window inserted in East End.

In the foundations of the east wall there can be seen fragments of ancient sculptured stones, and it has been proposed that these should be removed; but fortunately, for the preservation of the structure, that idea has been abandoned.

The presbytery had a groined vault springing from lofty angle shafts. The ribs are crossed by a curious horizontal band, at the level where the vaulting becomes of arched construction. This groining may possibly{13} have been renewed at the time the alterations were made on the east wall. The angle buttresses may have been built at the same time, although, strangely, at the points where they were least required.

[Image unavailable.]

Fig. 446.—St. Andrews Cathedral. Section of Piers.

The central aisle of the choir and nave is of the same width as the presbytery. Several of the piers of the choir still remain to a considerable height above the base. Their section, and also those of the nave piers, are shown in Fig. 446. The side aisles were vaulted, as is indicated by the bases of the vaulting shafts.

The presbytery floor is two steps up from the choir; the steps still exist between the two eastmost pillars. To the eastward of these there are foundations as if of a wall across the church. Adjoining this there is a large stone slab, measuring about 11 feet 4 inches by 7 feet 8 inches, with slight square depressions carefully wrought on its surface, as shown on the Plan. This large slab may have been the covering of a grave, and the depressions on the surface may have contained brasses. There is a similar slab in the choir, measuring 10 feet by 5 feet 5½ inches (see Plan).

The west wall of the south transept (Fig. 447) has an intersecting arcade in the lower story, with three round arched windows above, and graceful arcading between, resting on corbels having square abaci. Similar windows are continued along the south wall of the nave for four bays. Westwards of this the nave windows are pointed, and have very simple tracery (Fig. 448); otherwise there is very little difference in the design of the south wall of the nave throughout its whole length. The lower part seems to have been built as far west as the third bay from the west end during the Transition period. The plan of the wall shows the same flat buttresses with round angle shafts throughout its whole length, which are indications of early work. Fig. 449 shows the cap of the angle shafts of the buttresses, and one of the corbels of the cornice. The springers of the groining of the south aisle still remain (see Fig. 447). The groining appears to have been late, and of rather coarse work. The{14} ribs are struck from centres below the level of their springing. All the bays have wall ribs, except the two east bays, which rather indicates that the latter bays were not meant at first to be vaulted. The vaulting

[Image unavailable.]

Plan of Angle of Transept and Nave.

Fig. 447.—St. Andrews Cathedral. West Side of Transept and South Side of Nave.

shafts have all the same section, and are without caps, the ribs dying into the shafts, except in the case of the two eastmost and the westmost shaft and the angle one at the west wall, which latter does not come to{15} the ground. These shafts have large caps, uniting the clustered section into one. The centre aisle of the nave was not vaulted.

[Image unavailable.]

Corbel of Cloister Roof, enlarged.

Fig. 448.—St. Andrews Cathedral. West End of Nave and Turret of West End.

{16}

The south wall of the nave extends considerably westwards beyond the present west end, and contains the remains of a vaulting shaft in the position it would naturally have occupied in the spacing of the bays. This seems to show that the cathedral was originally of greater length than it now is by at least 34 feet, while it may have extended westwards an unknown number of bays, each of which would measure 16 feet in width. The south side of this wall (which is partly built against with modern erections) shows traces of early arcading. The north wall of the nave also projects westwards from the present west end for a distance of about 7 feet. When the original west wall fell, it may have destroyed a few of the western bays, and this possibly induced Bishop Wishart, when he rebuilt the west end, to omit these bays, and shorten the cathedral by so much.

[Image unavailable.]

Fig. 449. St. Andrews Cathedral.
Cap of Angle Shafts of
Buttresses
and Corbel of Cornice.

There is a very puzzling feature in connection with this west front (Fig. 450) which has never been satisfactorily explained. On each side of the doorway there rises a vaulting shaft, a few feet higher than the level of the capitals of the doorway. A similar shaft will be observed at the angle of the west front and the south wall. Rising from these shafts are incomplete ragglets, indicating the form of vaults against the west façade, thus suggesting that there was a western porch. But such a feature is quite incompatible with the design of the west end, for had there been such a porch, it would have cut the arcade above the doorway in two, which is a most unlikely idea. The vaulting shafts and arches springing from them are a part of the original design and construction. The arcade also seems at first sight to be so, hence the difficulty of reconciling these features with the existence of a western porch. The marks of the arch rise to the apex in the south aisle, and the arch head might have been completed without interfering with the arcade. Over the central door the marks of the arch are carried up only as far as the string course beneath the first arcade. This fact, together with the later character of the upper part of the building, would seem to indicate that there has been a change in the design, and that the original intention of having a wide porch extending along the whole of the west end has been departed from after the first story was built up to the level of the above string course, all above that point being of later design and execution. The style of the architecture confirms this view. It may be mentioned that the arcade over the west door is very similar to that over the “Pends” (see Fig. 456), which is, undoubtedly, a late structure. The lower story of the west end, which is in the first pointed style, would thus appear to be all that remains of the façade erected by Bishop Wishart; while the upper portion above the first string course was rebuilt at a later date, as will be explained further on.{17}

[Image unavailable.]

Fig. 450.—St. Andrews Cathedral. West Front.

{18}

[Image unavailable.]

Arch Mouldings.

Fig. 451.—St. Andrews Cathedral. North-East Angle of Cloister.

{19}

The usual east and west doorways open from the nave into the cloisters, the eastern one (Fig. 451) being of good transition design. Like all the openings on the ground level on the cloister side, it was, till recently, backed up with brick, so as to form a good wall for fruit trees; but this part of the building has now been opened up under the instructions of the Marquis of Bute.

A holy water stoup, in the angle of the transept, adjoins the eastern door to the cloister, and the corbels which supported the projecting upper part of the transept wall, and also carried the wall plate of the cloister roof, are likewise disclosed. A similar stoup exists in the corresponding position adjoining the cloister door at Melrose. Another doorway in the south wall, outside the west end, led to the conventual buildings. A doorway in the south transept aisle (see Plan) led to the south.

The chapter house was a room about 26 feet square. It was vaulted with four central pillars, and was about 15 feet high. The opening to the chapter house, from the cloisters, consisted of a central doorway with two side openings. These portions of the building (Fig. 452) are in the purest style of early pointed architecture, and, happily, they are in a fairly complete state of preservation, only the central pillars of the side openings, which had two lights, being wanting. These are shown as if restored in Fig. 453. The round caps and bases and the dog-tooth ornament are distinctive of the style. The round arched doorway on the north leads from the cloister to the slype. The chapter house appears to have been built before the middle of the thirteenth century. About a century later (1298-1328) Bishop Lamberton erected a new chapter house to the east (as shown on the Plan). Of this extension only the south wall remains, showing thirteen seats in arched recesses, the eastern seat being apart from the others. The return of the east wall remains, together with a portion of a continuous seat. The wall between the old and new chapter house is very much reduced in height. It contains an opening in the style of the entrance from the cloister, and has had a central doorway with side openings. The old chapter house then became the vestibule to the new one.

The size of the new chapter house was about 47 feet by 26 feet. It was groined in two bays, and probably the vault extended from wall to wall without central pillars.

Spottiswoode (page 34) says of Bishop Lamberton that he adorned the chapter house with “curious seats and ceeling,” and Fordun mentions that Joannes de Gourie, the twelfth prior, died in 1340, and was buried in “Novo Capitulo.”[19] Winton and Martine also state that on the completion of this addition to the chapter house, in 1318, the Cathedral of St. Andrews was dedicated by Bishop Lamberton, assisted by seven bishops and fifteen abbots, in presence of King Robert the Bruce and a great assembly of gentlemen. South of the original chapter house are the remains of what{20}

[Image unavailable.]

Fig. 452.—St. Andrews Cathedral. Entrance to Chapter House.

{21}

[Image unavailable.]

Fig. 453.—St. Andrews Cathedral. Entrance to Chapter House. Plan and Elevation.

{22}

[Image unavailable.]

Fig. 454.—St. Andrews Cathedral. Plan showing Conventual and other Buildings.

{23}

was probably the fratry. On the upper floor, which formerly existed above this building and the chapter house, was the dormitory; the wheel stair leading to it from the south transept still exists in the south-west angle of the south transept. This dormitory was built by John Quhite, the seventh prior, between 1236 and 1258, being about the period to which the building of the original chapter house would, from its style, be assigned. This prior also built the refectory, which occupied the south side of the cloister. It was, according to Martine (p. 187), 108 feet long by 28 feet wide, and had, at the east end, “a four square room for copes and albs, &c., besides the common vestiarie.”

[Image unavailable.]

Fig. 455.—St. Andrews Cathedral. Doorways in West Wall of Fratery.

The Plan (Fig. 454)[20] shows the conventual and other buildings attached to the cathedral. These have recently been excavated by instructions of the Marquis of Bute, and are found to correspond with the above figures given by Martine. Two doorways of first pointed style in the west wall of the fratry (Fig. 455) have also been opened up.

The west side of the cloister was occupied by the sub-prior’s house, known also as the Senzie house. To the south of it was the Senzie chamber, which appears to have been enlarged at the beginning of the sixteenth century into a room 80 feet by 20 feet, in order to form the library of the adjoining College of St. Leonards. The extending of this room blocked up the west windows of the refectory, and, doubtless, the existing arched cellars shown on the Plan were beneath this chamber.

The building seen on the Plan to the south-east of the chapter house seems, from Martine’s description, to be part of the remains of the prio{24}r’s house, called also the Hospitium Vetus, or the Old Inn. It was a large building, occupying the ground to the east of the fratry, and was sometimes the residence of the bishop.

To the west of the cathedral are the stately remains of the entrance gateway, called the “Pends” (Fig. 456). Only the shell of the building now remains, with the springers of the groined vaulting. It measures about 80 feet in length by 23 feet in width.

[Image unavailable.]

Fig. 456.—St. Andrews Cathedral. Entrance to the “Pends” or Gatehouse.

In continuation of the “Pends” is the enclosing wall of the priory grounds. This is a very extensive structure (Fig. 457), still in good preservation. It is about 22 feet high and 4 feet thick. As will be seen from the Plan, it circles round till it reaches the north-east corner of the cathedral, at which point it is seen in the view (see Fig. 444). The length of the wall is about 1150 yards. In Martine’s time it contained sixteen towers; at present thirteen are partly standing. There is a wide gate in the wall to the south (Fig. 458) defended by towers (see S, Fig. 457). It is the common “entrie for carts with the teynd sheaves of the prior aikers.” Close to it stood the “teynd barne and teynd yaird.{25}

[Image unavailable.]
A.Cathedral.
B.St. Regulus.
C.Kirkheugh.
D.Prior’s Lodging, or Hospitium Vetus.
E.Cloisters.
F.Manse.
G.Entrance to Abbey from Street.
H.St. Leonards Church.
J.St. Leonards College.
K.Site of New Inn.
L.Tiend Barn.
M.Mill Race.
N.Mill Dam.
O. O.Mill Sluice.
P.Abbey Mill.
Q.Holy Well.
R.Harbour Gate.
S.Gate to Cornfields.
T.Dovecot and Tower.

Fig. 457.—St. Andrews Cathedral. Plan showing Enclosing Wall of Priory Grounds.

{26} The gate in the east wall (see R, Fig. 457), which is close to the harbour, and is called the Harbour Gate, is shown in Fig. 459. This wall was built by Prior Hepburn, whose arms are to be seen on several of the towers, and one bears the date of 1520.

Martine informs us that amongst the other buildings scattered throughout the grounds were the following (most of which are shown in Fig. 457), viz.:—

The Guest House, within the precinct of St. Leonard’s College. It was built by John White, seventh prior, about the middle of the thirteenth century. Part of the wall is believed to be still standing.

The New Inn. “It is thought this was the last building about the abbacie before the Reformation,” and to have been built as a retreat for Magdalene, Queen of James V., who, however, did not live to visit it, as she died in 1537. Only the entrance gateway of this building now remains. It contains the Scottish arms and the arms of Prior Hepburn. The New Inn was afterwards the occasional residence of the archbishop.

[Image unavailable.]

Fig. 458.—St. Andrews Cathedral. Enclosing Wall, with Gateway and Towers.

The Granary stood to the north-east of the New Inn. Part of the east side wall is thought to be still standing, and on the east side of this is the monastery well, shown on the Plan.

The Abbey Mill, with the mill dam and mill lead, sluices, &c., are shown on the Plan (Fig. 457), and are still in use.

The Tiend Barn still stands in the neighbourhood of the mill, and is still utilised.

Numerous other buildings are mentioned by Martine, such as the{27} Brew House (which stood near the mill), the Malt House, Bear Girnell, Promptwarium, Hortus Gladiatorius, Barnsdeall-Yaird, &c., of which no remains survived in his time.

Besides these buildings directly connected with the priory and cathedral there still exists, opposite the west end of the latter, the manse of the archdeacon, “commonlie called the archdeacon’s inns.”[21]

[Image unavailable.]

Fig. 459.—St. Andrews Cathedral. Priory. Harbour Gate.

Among other bishops who were builders of portions of the cathedral, not already mentioned, was William Malvoisine (1202-33). According to Spottiswoode, he “advanced the fabrick (which was then a-building) more than any that went before him.” It is probable that part of the nave (most of which Winton credits to Wishart) may have been built by him.

In the time of Bishop William de Landel (1341-85), in the year 1378, the cathedral suffered considerably from fire. The bishop and the prior, Stephen de Pay, repaired the damage. According to Winton they renewed all the woodwork of the roof of the transepts, choir, and aisles with “aiken werk of Tre,” and covered them with “Thak of Lide.” The two pillars in the north and south transepts appear to have been so much damaged that they had to be entirely renewed, the wall above having to be supported. According to Winton{28}

“Twa pillaris new on ilka syde
In that Corskyrk war made that tyde,
As yhe may se thaim apperand
Undyre the auld werk yhit standand.” (B. ix.)

The pillars are gone, only the foundations of the two south ones remaining; but it is interesting to observe on the spot that the respond still standing against the south transept wall is of the style one would expect to find in work of the fourteenth century. Winton further says that at the same time “a quartare of the stepil of stane wes made,” which probably means that the central tower was raised, but not the spire.

According to Winton,[22] the fire destroyed the south half of the nave, from the west end eastwards to, and including, the ninth pillar. As these nine pillars were renewed, with the help of certain lords whose arms were carved on them, possibly, as in the case of the transepts, the wall and roof above were supported during this operation.

“Lytil overe sevyn (7) years their gert wyrk
And mak all this werk of the kyrk.”

From the Exchequer Rolls[23] of 1381-84, we find that the Crown contributed to the rebuilding of the cathedral at this time. Perhaps the upper portion of the west front above referred to was rebuilt at this period. Although the work is much decayed, its character would lead to that belief. The restoration begun by Bishop Landel was completed by Bishop Wardlaw (1404-40). He improved the interior by the introduction of fine pavements in the choir, transept, and nave. He also filled the windows with stained glass.

Of the minor works of the cathedral almost nothing remains. There are a few flat tombstones with inscriptions[24] still legible, but of the tombs of Bishops Gameline, Lamberton, and Walter Trail not a vestige is left. Winton, who saw these tombs, the last having been built in his own time, thus refers to them in describing the death of Lamberton.

“ ... In the north half of the new kyrke-
Cathedral, an arch he gert men wyrke,
Now seen betwene Tombis twa,
Of Gamyle the eastmast is of tha.
And, in a space that was levyd (raised),
Be-twene the Pulpyte and his Hevyd (head).
Ane Arche of fayre werk and of fyne
The Byschape Waltyr gert make syne.
Under that tomb now lyis he.
Thus lyand ar thai Byshapys thre
On the north half of the Hey Kyrk (High Kirk)
In Tombys that themselves gert Wyrk.”—(B. VIII., cxxiii.)

On the north side of the nave, near the west end, there still remains{29} a built tomb, empty and desecrated, with slight indications of what was a stately monument in the wall. Of seventeenth century flat stones a large collection is gathered and preserved in the chapter house. Fig. 452 shows one of these. Against the north wall of the nave, on the outside, there are three square foundations (see Plan). Two of these may possibly be the foundations of a porch.

The cathedral was in a very ruinous state when Martine wrote (1685). Apparently the north half of the west gable fell in his time, and, considering the sudden wrench to the structure caused by this catastrophe, had the remaining half not been a good piece of masonry, it might easily have followed.

Fifty years before Martine wrote, when Spottiswoode was archbishop, in 1635, the restoration of the cathedral was provided for. The rents and fruits of the benefice, except a small sum reserved for the archbishop, were to be applied for “building and repairing the cathedrall,” until the same “be perfected and finisht.” “And the church being finished then and no sooner,” the archbishop and his successors were to have the full privilege of the use of the rents, but subject to the upholding of the fabric. The structure would thus appear not to have been in a very ruinous state at that time. Nothing appears, however, to have been done, and the work of destruction was continued, and soon reduced the church to nearly its present condition.

ST. MARY’S CHURCH, Kirkheugh, St. Andrews.

This church is situated between the cathedral wall on the north-east and the sea (see C, Fig. 457). It was entirely lost sight of till the year 1860, when the foundations were exposed. Little else remains except the foundations. The east wall rises about 3 feet above the ground, and the other walls run from nearly level with the surface to about 2 feet in height. The structure (Fig. 460) consisted of a nave, transepts, and chancel. The nave and chancel do not coincide in their orientation. There was probably a low central tower supported on four arches, with a stair to the tower at the north-west corner, where the foundation of what appears to have been the stair turret is traceable. The remains of a bench are visible in the north transept. The chancel is the best preserved portion, and is of the first pointed period. It has a base all round, including the buttresses, of which those at the north-east corner have disappeared. There has been a narrow splayed doorway on the north side. A projecting piece of masonry in the south wall may have been a sedilia. A large square of masonry, 11 feet by 4 feet 4 inches, at the east end suggests the position of an altar. There is an early slab in the chancel, carved with a cross, set on steps, and a sword beside it. Another monument, of a hog-backed type, lies to the north of the nave. The existence of other{30} stones at further distances indicate this as the position of an ancient cemetery. The masonry of the chancel is finer than that of the nave and transept, but which is the earlier it is not possible to say with any confidence.

[Image unavailable.]

Fig. 460.—St. Mary’s Church. Plan.

The history of this chapel, with a descriptive account, will be found in the Proceedings of the Society of Antiquaries, Session 1860-61, Vol. IV. p. 82. The internal dimensions of the chapel are:—Length of nave, 27 feet; width, 18 feet 11 inches. Length of chancel, 46 feet 8½ inches; width, 20 feet 2 inches. Total length inside, 97 feet 11½ inches; outside, 105 feet.

ARBROATH ABBEY, Forfarshire.

The ancient town of Arbroath stands on the east coast of Forfarshire, and the massive ruins of its great abbey, as seen from the sea, rising above the houses of the town, present an image of decay and desolation.

The abbey was founded by King William the Lion towards the end of the twelfth century. It was richly endowed, and soon became one of the wealthiest and most powerful monasteries in the kingdom. The inmates were of the Tironensian order, and the first monks were brought to Arbroath from Kelso Abbey.

King William, having been taken prisoner at Alnwick in 1174, was confined at Falaise, in Normandy, but regained his liberty, and returned to Scotland, in 1176. Immediately on his return he proceeded to found the Abbey of Arbroath, which he dedicated to Saint Mary and St. Thomas à Becket. The latter had been murdered at Canterbury only four years before, and it is doubtful whether King William was attached to his memory by personal friendship or by sympathy with the saint in his opposition to the King of England.{31}

By the year 1178 part of the church was ready for dedication. William the Lion died in 1214, and was buried in the east end of the edifice, which was then finished. Shortly afterwards the south transept was sufficiently well advanced to admit of the burial within it, before the altar of St. Catherine, of Gilchrist, Earl of Angus. On the 18th of March 1233, during the time of Abbot Ralph de Lamley, the church was dedicated. The time occupied in the erection and completion of the structure was thus a little over fifty-five years, and when its dimensions are considered, it will be found in comparison with other churches to have been carried on with great rapidity.

The above dates are useful as indicating the progress of the transition and pointed styles in Scotland. The choir and transept, although still retaining a few reminiscences of the transition in the round arches interspersed among the pointed arches, are essentially first pointed in style. The retention of the round arch here, as elsewhere in Scotland, is a common feature throughout the whole course of Gothic art. In the west doorway, and also in the gallery over it, there are distinct elements of transition work; but the external and internal windows of the gallery, and the main features of the towers, are decidedly first pointed in style. Possibly the west doorway and gallery were begun at an early stage of the building, and the west end, after being stopped for a time, was completed at a later date.

As showing the eagerness with which King William pushed on the buildings, Hollinshed mentions[25] that “the king came by the Abbey of Aberbrothoc to view the work of that house, how it went forward, commanding them that were overseers and masters of the works to spare for no cost, but to bring it up to perfection, and that with magnificence.”

The abbey church (Fig. 461) consisted of a choir of three bays, with side aisles and an aisleless presbytery; a nave of nine bays, with aisles and north and south transepts, with eastern aisles. There were two western towers, and one large tower over the crossing.

The following are the principal dimensions of the edifice:—

Length (external measurement from east to west, not including buttresses), 293 feet.

Breadth (external measurement from north to south, not including buttresses), 74 feet.

Length of transept (external measurement from north to south, not including buttresses), 147 feet.

Width of transept over walls (external measurement from east to west, not including buttresses), 54 feet.

Considerable portions of these different divisions of the edifice still remain, but the greater part of the north side of the choir, the north transept and nave, and almost all the piers and pillars have been swept{32}

[Image unavailable.]

Fig. 461.—Arbroath Abbey. Plan.

{33}

[Image unavailable.]

Fig. 462.—Arbroath Abbey. Interior of East End.

away. Beginning at the east end, the eastern wall (Fig. 462) is entire for nearly half its height, having an arcade below, and three lancet windows above, with the lower portions of an upper row of similar windows. Somewhat less of the return wall of the south side of the presbytery, which comprises two bays, remains, and adjoining it is the sacristy (Fig. 463), a late building in a fair state of preservation. The end wall of the south transept is almost complete, together with a considerable portion of the west wall of the transept (Fig. 464.) This, being the best preserved portion of the structure, gives a good idea of the grandeur of the church. The whole of the south wall of the nave remains, showing a row of windows and indications of the groining of the aisle (Fig. 465). The main or centre aisle was not vaulted, but covered with a wooden roof. Most of the bases of the pillars of the nave{34}

[Image unavailable.]

Fig. 463.—Arbroath Abbey. View from South-East. (From a Drawing by the late Mr. Michie, artist.)

{35}

[Image unavailable.]

Fig. 464.—Arbroath Abbey. South Transept and Sacristy.

are in position, as are also the foundations of the north transept. The fragment of the west end with the two towers left standing (Fig. 466) is very striking, and impresses one with the sense of bold, vigorous work rather than of refinement of detail, although there is also a mixture of both, of which the west doorway (Fig. 467) is an example. It is round arched, and its outer order, if it may be so called, extends inwards for about five feet, unadorned as a bold and plain tunnel arch, having a{36}

[Image unavailable.]

Fig. 465.—Arbroath Abbey. Interior of Nave and South Transept.

pointed arch in each ingoing. It then becomes shafted and richly moulded, after the transition manner. This arrangement, while it gives a fine shadow under the arch, has a feeling of rudeness, which, to a consider{37}able extent, characterises the whole west front. There is a remarkable resemblance in the decoration of this doorway to that of the doorway in the porch of Lerida Cathedral, Spain, supposing the tunnel arch of Arbroath away, and the moulded part brought forward to the face of the wall (Fig. 468), as is the case at Lerida (Fig. 469.) In both instances the outer enrichment of the zig-zag ornament is separated by a few mouldings from a large bead enriched at regular intervals by a ring

[Image unavailable.]

Fig. 466.—Arbroath Abbey. West End of Church and North-West Tower.

round the bead. The inner mouldings at Lerida are further enriched, while at Arbroath the orders are simply moulded; but the sequence of the first two orders of enrichment is interesting from its occurring in two buildings probably erected at about the same time and at such a great distance apart. A similar ring ornament, on a large scale, is also to be seen in a doorway at Lamington, Lanarkshire,[26] where it is likewise used along with the zig-zag, but there the ringed order is the outer enrichment.{38}

[Image unavailable.]

Fig. 467.—Arbroath Abbey. West Doorway and Gallery over.

The rude appearance of the west front, to which we have referred, is increased by the removal of the outer part of a gallery which existed over this doorway. The inner part of this gallery still remains, and a{39}

[Image unavailable.]

Fig. 468.—Arbroath Abbey.

Jamb and Arch Mouldings of West Doorway.

[Image unavailable.]

Fig. 469.—Larida Cathedral.

Doorway of Porch.

(From Street’s Spain.)

view and plan of it are given (Figs. 470 and 471). From these it will be seen that within the great thickness of the wall (20 feet 3 inches) a chamber of considerable size has been obtained, which opens into the nave by six pointed arches (Fig. 472), and to the outside over the doorway by three arches (see Fig. 467). As already stated, the original outer features are gone, and only the rugged skeleton remains. It is quite obvious from Fig. 467 and from the Plan (see Fig. 471) that three gablets projected outwards from the wall for a distance of about 4 feet, supported on two intermediate shafts (marked X X), and that the gallery was closed in at each end with walls or haffits, both of which still in part remain. It is thus apparent that we now see the west front robbed of its most unique features, and the bare masonry exposed, which was never meant to be seen. This gallery was reached by a long passage at each end from stairs in the angle buttresses. It probably was a gallery for an orchestra, and it would also be suitable as a pulpit from which to address an audience in the open air. As above mentioned, it is probable that this part of the building was erected at two different times, the west doorway and some of the pillars of the gallery being in the early transition style, while the triple windows to the front and the six-light{40}

[Image unavailable.]

Fig. 470.—Arbroath Abbey. Gallery over West Doorway.

{41}

arcade towards the interior are in the first pointed style. When the gallery was completed in the first pointed period, the floor space was enlarged by extending it to the front, hence the necessity for the deep tunnel arch over the west doorway. The pointed arches in the ingoing also indicate the first pointed period.

Above this gallery there was an immense circular window, of which only a portion survives.

The western towers opened with arches into the north and south and central aisles (see Fig. 472), but only the north tower retains its massive pier and arches. Of the south tower nothing but the foundation of the pier exists.

[Image unavailable.]

Fig. 471.—Arbroath Abbey. Plan of Gallery over West Doorway.

The south wall of the transept (see Fig. 464) is comparatively plain on the outside, merely the upper part being visible above the dormitory roof. The façade presents two plain lancet windows, one very much shorter than the other to admit of the before-mentioned roof, and above the lancets a large wheel window occupies the gable. The interior of the transept (Fig. 473) is a very grand design in the early pointed style. The lancets are splayed to a great width in the interior with banded nook shafts on the sconsions, and arched above in the simplest manner without any mouldings. Beneath the lancets there is a round arched open arcade having a passage behind it, and beneath this two tiers of wall arcades with pointed arches, the central arcade being very acutely pointed, and the lower one not so decidedly pointed, and with trefoil cusps in the arches. A staircase in the south-east angle of the transept gave access to the dormitory by the door which is seen built up on the outside (see Fig. 464). This staircase also leads to the various passages in the thickness of the walls shown in Fig. 473. The doorway leading from the church to this stair (Fig. 474) ranges with the lower pointed arcade, and is round arched. The west return wall of the transept is very bold and grand, as seen from the interior (see Fig. 473). The lower arcade of the south end is continued along the west wall, and above this two{42}

[Image unavailable.]

Fig. 472.—Arbroath Abbey. Interior of West End.

(From a Sketch by Mr. T. S. Robertson, Dundee.)

windows widely splayed, and having nook shafts on the sconsions, rise to a great height and are finished with moulded circular arches in the interior and pointed lancets in the exterior. All the lofty windows in the south transept have passages on two floors. The upper passage running along this wall must have been connected with some kind of bridge thrown across the windows. There are indications of rests for beams doubtless connected with this arrangement, which would probably{43}

[Image unavailable.]

Fig. 473.—Arbroath Abbey. Interior of South Transept.

be of a temporary nature. The transepts had chapels on the east side. The respond of the great arcade against the south wall (see Fig. 474) is beautiful in detail. Above this there exist fragments of the responds of{44}

[Image unavailable.]

Fig. 474.—Arbroath Abbey. South-East Angle of South Transept.

{45}

the triforium story and the clerestory. All the above features of this part of the abbey point plainly to its having some lingering remains of transition style, retaining as it does some round arches along with the general pointed features of the design.

The sacristy or vestry was built by Abbot Walter Paniter between 1411 and 1433. It is a two story building, the ground floor having a groined ceiling still entire, but the upper room being roofless. Externally, this structure is severe and simple in style (see Fig. 463), while in the interior there is considerable richness of ornament, with details of a somewhat rude kind. It contains many features which identify it as work of the fifteenth century, such, for example, as the caps of the shafts of the doorway (Fig. 475). The sacristy is in a good state of preservation.

[Image unavailable.]

Fig. 475.—Arbroath Abbey. Caps of Doorway.

Of the conventual buildings only fragments now remain. An octagonal turret (see Fig. 461) marks the south-east corner of the chapter house with the south and east return walls, and adjoining the south transept is the slype, the walls of which determine the other walls of the chapter house. On the wall of the south transept is clearly seen the mark of the dormitory roof, with the door between the church and dormitory now built up.

A range of erections, and a lofty wall which formed the northern enclosure of the abbey precincts (Fig. 476), extend westwards from the church, in a line with the south aisle, for a distance of about 190 feet. This north wall, and a portion of the west wall proceeding southward from it, are all that remain of the extensive enclosure of the abbey, which is{46}

[Image unavailable.]

Fig. 476.—Arbroath Abbey. North Enclosing Wall and Gateway.

said to have been of great height, and to have extended 1150 feet on the east and west, 760 feet on the north, and 480 feet on the south. There were great towers at the angles and entrance gateways on the north, and at the south-east angle. In the centre of the existing north wall is the portcullis entrance gatehouse, which is about 24 feet wide, with a vaulted enclosure about 65 feet long. The front wall (Fig. 477) is almost entire, and{47}

[Image unavailable.]

Fig. 477.—Arbroath Abbey. Front of North Gatehouse.

{48}

the upper floor window is crossed by the corbels which carried the movable wooden hoarding which was erected over the gateway when required for its defence. The side walls are entire, and show remains of the groined roof and strong gates for defence. The roof and gates were destroyed by the Town Council in 1800. At the western extremity of the north enclosing wall (see Figs. 466 and 476) there exists a large square tower, three stories in height, in the inside, but four stories on the outside, owing to the fall of the ground. The two lower floors are round vaulted, the upper vault having ribs, with a door of access from the precinct secured with a sliding bar. The upper floors (see Fig. 461), which were living apartments, were reached by a high door, and only communicated with the floors below by means of a trap, as in the case of many of the pele towers. The two upper floors, which contained fireplaces and windows with stone seats, are connected with a wheel stair in the north-west corner. The cape house on top is said to have been removed during this century. This tower formed the north-west corner of the abbey precinct.[27]

[Image unavailable.]

Fig. 478.—Arbroath Abbey. Abbot’s House from North-East.

(From a Sketch by Mr. T. S. Robertson.)

The building adjoining the tower to the east was called the Regality Court-house. It entered from the street, and was about 40 feet long by{49} 18 feet wide, and had a groined ceiling. The next apartment running up to the gateway entered from the precinct. It was about 28 feet long, and had a barrel vault, with massive splayed ribs similar to those of the tower. The range of buildings between the gateway and the church are of two stories, the lower story having a groined ceiling.

[Image unavailable.]

Fig. 479.—Arbroath Abbey. Abbot’s House from South-West.

(From a Drawing by Mr. T. S. Robertson.)

One of the most interesting and best preserved buildings is the abbot’s house on the south side of the cloister (see Fig. 461). It is three stories high, the two upper floors being converted into a modern private dwelling-house (Figs. 478 and 479). Having been used at one time as a thread manufactory, the house has been altered externally and spoiled of its ancient internal fittings, with the exception of two fine carved panels, one representing the Virgin (Fig. 480), and the other a large{50} Scotch thistle (Fig. 481). The ground floor contains the kitchen—a fine apartment with central pillars supporting a groined roof—with a large arched fireplace in the west end. The other offices connected with the kitchen are all vaulted. The house is extremely picturesque and valuable, being the best preserved abbot’s house in Scotland.

[Image unavailable.]

Fig. 480.—Arbroath Abbey.

Carved Panel in Abbot’s House.

(From a Drawing by Mr. T. S. Robertson.)

During the 350 years of the existence of Arbroath Abbey many events happened entailing changes in the buildings. Thus, in 1272, a great fire occurred in the town, in which the abbey suffered. In particular the north-west tower is supposed to have been partly wrecked, and to have been rebuilt and carried to a greater height than formerly, or, at least, higher than the other tower. Again, in 1350, a grant was made by William, Bishop of St. Andrews, to enable the repairs to be completed of the “almost irreparable injuries” the abbey had suffered “from the frequent assaults of the English shipping.”[28] In 1380 the church was again injured by fire. So serious was this conflagration that the monks had to be distributed among other religious houses till the roofs of the choir, nave, and transepts were repaired. In connection with the repairs there is preserved in the Chartulary an interesting contract between{51}

[Image unavailable.]

Fig. 481.—Arbroath Abbey. Carved Panel in Abbot’s House.

(From a Drawing by Mr. T. S. Robertson.)

Abbot John Gedy and William of Tweddale, plumber, which is as follows:—

“This endentur beris wytnes that the yer of grace MCCCXCIIII. (1394-5), the xvi. day of the moneth of Feveryer, this cunnande (covenant) was{52} made betwene Johnne, abbot of Aberbrothoe, of the ta part, and Wilyam Plumer of Tweddale, burges of the cite of Andirstoun (St Andrews), of the tothir part; that is to say, that Wilyam Plumer sal theke the mekil quer wyth lede, and guttyr yt al abowt sufficiandly wyth lede, for the quhilkis thekyn and gutteryn the abbot sal pay till him xxxv. marcis at syndry termys, as he is wyrkand; and of the xxxv. marcis, v. marcis sal dwel style in the abbotis hand quhillys the quer be thekyt and alurryt (battlemented) al abowyt with stane, and quhen it is allurryt about with stane he sal dycht it abowt wyth lede sufficiandly, as his craft askys; and quhen he has endyt that werk he sal be payt of v. marcis and a gown with a hude till his reuarde. Quhilk Wilyam Plumer sal fynd a man on his awn cost, and the abbot and convent a man alsua of thar cost quhil the werk be fullyly endyt. The abbot and the convent sall fynd al maner of gratht that pertenys to that werk quhil is wyrkande. Willam sal haf alsua for ilk stane fynyne that he fynys of lede iijd. (3 pennies), and a stane of ilk hynder that he fynys til his travel, and that day that he wyrkis he sal haf a penny till his noynsankys (luncheon).” The indenture was then cut into two parts, and one half given to each of the parties, after receiving the seal of the other party.[29] About fifteen months after the work was finished William granted a receipt to the abbot for £20 sterling, paid to him for the architectura magni chori, and in full of all his claims for purifying or fining the lead, for his nonesankys, and the gown with the hood, as specified in the indenture.

In 1470, and for a few years after, there were extensive repairs made, especially in connection with the roofs and other woodwork of the monastic buildings, and mention is made of the “building of our dormitory of new.”

The structures of the abbey do not appear to have suffered at the hands of the Reformers, but the revenues having become the property of the Hamiltons, and being probably appropriated to their private use, there were no funds to keep up the buildings, and hence they gradually fell into decay, and were freely used by the magistrates and towns people as a quarry. In 1580 the Duke of Lennox, Esme Stuart d’Aubigne, gave a grant to the Town Council,[30] to “tak away all and hail ye stainis, tymmer, and other pertinents of our house, ye dormitory in ye said Abbey.” This was for the purpose of supplying materials “for biggyn of ane kirk.” That work does not appear[31] to have been accomplished till ten years later, up to which time service was conducted in the lady chapel, “stripped of its altars and images.{53}

HOLYROOD ABBEY, Edinburgh.

The traditional story connected with the foundation and name of this monastery is well known—viz., that a rood or cross miraculously passed into the hands of King David I., and thus saved his life when attacked by a stag in hunting, in commemoration of which he erected an abbey to the Holy Rood. The abbey was founded by David I., and richly endowed early in the twelfth century, and building is said to have commenced in 1128. The house was colonised by Canons Regular of the Order of St. Augustine, brought from St. Andrews. Being so near the capital, the abbey became a favourite place of sojourn of the kings of Scotland, especially after the accession of the Stewarts to the throne. Robert III. and James I. lived in the abbey. James II. was born and resided there, and was buried in the church. James III. and James IV. stayed much at Holyrood, and the latter began the erection of a palace attached to, but distinct from, the monastery. The palace was extended by James V., and formed the chief scene of many of the incidents in Queen Mary’s reign.[32]

The abbey church was a structure of great size and of beautiful architecture. It consisted of the usual divisions, having nave, choir, and transepts, with aisles and probably a lady chapel to the east, two western towers, and a tower over the crossing. But of all that splendid structure there now only remain the ruins of the nave and one western tower. The abbey and palace were frequently attacked and burnt by the English, particularly under Hertford in 1544, and the abbey was again destroyed by Somerset in 1547. At the latter date the monks had left the abbey, and the invaders stripped the lead off the roofs of the buildings. These “visitations” seem to have led to the serious injury of the choir; but the choir and transept do not appear to have been completely ruined till after 1569. At that date, Adam, Bishop of Orkney and Commendator of Holyrood, stated to the General Assembly that “the Abbay Church of Halyrud house hath been these 20 years bygane ruinous, through decay of two principall pillars, so that none were assured under it ... he purposed to provide the means that the superfluous ruinous parts to wit the Queir and Croce Kirk might be disponed to faithfull men to repair the remanent sufficiently.”[33] The bishop’s proposal was apparently carried out, and the materials of the choir and transept were demolished and sold “to provide funds for converting the nave into the Parish Kirk of the Canongate.”

{54}

The two pillars referred to by the bishop as unsafe were probably the east pillars of the crossing, which are now removed, but the two west pillars still stand. They form the east end of the existing nave. Sir D. Wilson believes that, when the choir was taken down, the vault which contained the remains of the kings and queens of Scotland was built in the south-east angle of the nave, and their coffins transferred into it.

Holyrood Palace was the principal residence in Scotland of James VI. and Charles I. The latter took considerable interest in the church, and wished to restore it as the chapel royal. He had the west end re-edified, as the style of the architecture of the upper portion and the inscriptions thereon bear witness.

James VII. of Scotland (while Duke of York) lived for a considerable time in the palace, and had a wish to restore the church and make it the place of meeting of the Knights of St. Andrew. But his operations were disapproved of by the populace, and all the fittings were destroyed by the mob in 1688. The tombs of the royal family were, at the same time, desecrated, and the remains scattered over the pavement. After the middle of the eighteenth century an attempt was made to restore the nave, and the roof was covered with heavy stone flags. But the materials employed were too heavy for the old walls, and the new roof fell in 1768, drawing down with it the whole of the vaulting and clerestory. At the same time, the tombs of the kings were again pillaged, and Captain Grose describes having seen some of the remains exposed and defiled by the populace.

The nave (Fig. 482), which now alone survives in a ruinous state, consists of eight bays, the main piers of which are complete on the south side, but are only represented by two fragments on the north side. The vaulting of the south aisle also survives, but that of the north aisle is gone. The north wall of the aisle, however, still stands, and the east and west ends of the nave are restored. The north-west tower is still preserved, but its companion tower, which formerly stood at the south-west angle, was demolished when the palace was rebuilt in the seventeenth century. Some remains of the cloister are still observable on the south side of the nave.

The chief part of the architecture is of the first pointed period; but at the south-east angle, the doorway (Fig. 483), which led from the cloister into the nave, is of genuine, though late, Norman architecture. The doorway had a nook shaft on each side, the divided cushion caps of which survive. The arch is round, and contains two orders, both ornamented with varieties of zigzags. These orders are enclosed with a label, containing a double row of square facets and sinkings. Some alterations have taken place in the building adjoining the doorway. On the west side of it runs the wall of the south aisle, the roof of which rested on a ledge at some height above the doorway. Under this ledge are the windows of{55}

[Image unavailable.]

Fig. 482.—Holyrood Abbey. Plan.

{56}

[Image unavailable.]

Fig. 483.—Holyrood Abbey. South-East Doorway.

the south aisle. Two of these windows, that over the doorway and the one to the west of it, are circular headed, and have a Norman character in their nook shafts and cushion caps. These windows are, however,{57}

[Image unavailable.]

Fig. 484.—Holyrood Abbey. North Aisle.

restorations, probably constructed in imitation of Norman windows which existed there originally. It will be observed that the inner order of the arch contains two reprises wrought on the stone, which{58} were evidently the ends of two simple pieces of tracery springing from a central mullion. This form of design shows that the construction was undoubtedly of a late period. Besides, the sconsions of these windows are wrought with an obtuse nook containing a shaft, so as to correspond with the other first pointed windows of the south aisle. It is not improbable that the choir was built before the nave, and was of Norman work. This supposition may account for the Norman work found in the first bay of the nave, which may have been erected in connection with the choir and crossing.

[Image unavailable.]

Fig. 485.—Holyrood Abbey. Arcade in North Aisle.

The oldest part of the nave, after the south-east doorway, is the wall of the north aisle (Fig. 484). The responds opposite the piers are very bold. Each consists of a central shaft, with sharp edge to the front, and a round shaft on each side of it. The responds have rounded abaci and caps all richly carved with foliage, and a moulded band in the centre. The lower story of the wall contains an arcade of interlacing arches springing from single shafts, the caps of which have square abaci and very rich foliage (Fig. 485). The arch mouldings are flat, and contain a quantity of small nail-head ornament between the rolls. The windows above the arcade are single lancets—one in each bay (Fig. 486.) On the exterior the lower part of the wall is{59}

[Image unavailable.]

Fig. 486.—Holyrood Abbey. North Doorway and North Side of Church.

plain, and each lancet has a pair of nook shafts, with simple cap, having a square abacus. The arch head is in two orders, both splayed, the outer order having the splay enriched with a series of plain ball{60}

[Image unavailable.]

Fig. 487.—Holyrood Abbey. South Aisle.

ornaments. In the interior (see Fig. 484) these windows show a plain splayed ingoing, the inner sconsion being formed into an obtuse nook, containing a bold shaft, with cap spreading its foliage widely so as to{61} fill up the obtuse angle. The arch contains bold first pointed mouldings.

[Image unavailable.]

Fig. 488.—Holyrood Abbey. Details of South Aisle: Inside.

The south wall of the south aisle (Fig. 487) is designed in a similar manner to the above, but the details are different and of a rather later character. The responds, although bold, are different from those of the north wall, the shafts being all round, and the centre shaft is separated from the side shafts by a square member, having the angle chamfered. The caps have the same round abacus and bold foliage as those of the north side. The lower story contains a wall arcade, having single pointed arches, with first pointed mouldings. The shafts are free, and the richly foliaged caps (Fig. 488) have round and square abaci. The windows over the arcade correspond generally to those in the north wall; but being above the cloister roof, they are short externally, and the sill is deeply{62}

[Image unavailable.]

Fig. 489.—Holyrood Abbey. South Wall: Exterior.

sloped on the inside. The windows are all pointed, except those of the two east bays already mentioned. The obtuse nooks for the shafts on the sconsions of the pointed windows are repeated in the two round-headed east windows. The lower part of the exterior of the south wall running westwards from the Norman doorway (Fig. 489) is arcaded with a series{63} of large pointed arches, each enclosing five smaller pointed arches, and having a plain wall space between the large and small arches. The caps of these arcades are all of early first pointed work. The one shown in Fig. 490 is of peculiar design, having probably been worked on at some period. Fig. 491 shows one of the caps of the triple shaft supporting the springing of the large and small arches. The above large arches were, doubtless, the wall arches for a groined roof over the cloister walk; but whether that vault was ever built it is now impossible to say. The south aisle is the only portion of the edifice which retains its vaulting (see Fig. 487). This is of a very simple character, consisting of transverse ribs and diagonal ribs. The vaulting of the north aisle has apparently been similar.

[Image unavailable.]

Fig. 490.—Holyrood Abbey.

Cap in Cloister.

[Image unavailable.]

Fig. 491.—Holyrood Abbey.
Cap in cloister.

The main arcade of the nave (Fig. 492) has consisted of eight bays. Those of the south side still stand, but on the north side only two shattered piers survive. The piers are of the simplest form of clustered columns, each containing a three-quarter round shaft on the four cardinal angles, with two nook shafts between. The shafts are all crowned with richly foliaged caps, having rounded abaci. The arch mouldings consist of rounds and hollows, all deeply marked. From the cap of the main pier springs a triple vaulting shaft, which runs up through the triforium and receives the springing of the vaulting ribs on plain bell-caps some feet below the string course under the clerestory. The triforium is divided into two arches in each bay by a single central shaft, springing from a corbel over the apex of each arch of the main arcade, and running up to the{64} string course beneath the clerestory. This would appear to indicate that the vaulting was sex-partite, which view is confirmed by the direction in which the surviving portions of the groins point.

[Image unavailable.]

Fig. 492.—Holyrood Abbey. Interior of West End.

{65}

[Image unavailable.]

Fig. 493.—Holyrood Abbey. View from South-East.

Each arch of the triforium (see Fig. 492) is acutely pointed, and contains two smaller acutely pointed arches within it, each of which has an inner trefoiled arch. These arches all spring from single round shafts, with plain round caps arranged to receive them. The tympanum of the large arch is pierced with a quatrefoil or trefoil. All the mouldings are of a bold first pointed character. The triforium, no doubt, contained the usual passage in the thickness of the wall, which would tend to weaken the structure. To counteract that tendency, as may be seen from the south (Fig. 493), strong saving arches have been introduced to carry the chief pressure across from main pier to main pier. A similar strengthening arch exists in the outer wall of the triforium gallery at Amiens Cathedral.

The west end of the edifice has contained the finest work of the building. The west wall, with its splendid doorway between the two western{66} towers (Fig. 494), must have presented as bold and ornate a piece of architecture as was to be found in Scotland.

[Image unavailable.]

Fig. 494.—Holyrood Abbey. North-West Tower and West End.

The west front is now greatly shorn of its glory, but the portions which remain only tend to increase the regret for what is gone. As already mentioned, the south-west tower was removed to allow of the palace being erected, and even the western doorway is encroached on by{67}

[Image unavailable.]

Fig. 495.—Holyrood Abbey. West Doorway.

the palace wall. A portion of the south-west tower is still visible in the interior, and contains a doorway. The upper part of the west end (Figs. 492 and 494) was reconstructed by Charles I. in 1633. It contains{68} two nondescript windows of seventeenth century Gothic, with an inscription between them, which events have not confirmed, viz.:—“He shall build ane House for my name and I will stablish the Throne of his kingdom for ever. Basilicam hanc Carolus Rex Optimus instavravit 1633.” The tympanum of the doorway has also been altered at this time, and an oaken lintel introduced, containing a shield, with the initials of Charles I.

The western doorway (see Fig. 495) has been a beautiful specimen of first pointed work. The jambs contained on each side free shafts, alternating larger and smaller. The caps were beautifully carved with foliage, and surmounted with rounded abaci. They had also a central band. The arch orders were very richly carved with running foliage of different designs, separated by plain mouldings and dog-tooth enrichments. The tympanum contained a series of small arches and shafts, resting on a lintel carved with angels’ heads (Fig. 496). The interior of the doorway (see Fig. 492) was also unusually rich, having shafts in the jambs, with carved caps and large dog-tooth enrichment in the label.

[Image unavailable.]

Fig. 496.—Holyrood Abbey. Carving on Lintel of West Doorway.

The north-west tower (see Fig. 494) is about 24 feet square externally. The west side is ornamented with two tiers of arcades. The lower arcade (Fig. 497) contains five pointed arches, with a trefoiled arch within each. These rest on triple shafts, with carved caps and rounded abaci. Over each shaft and between the arches there is a circle containing a boldly carved Norman head. This feature is unique, and its effect is fine. The upper arcade (Fig. 498) consists of three larger arches, each containing two smaller arches, and all resting on shafts with carved and rounded caps. The shields in the larger arches are pierced with bold quatrefoils. Two circles occur in the spandrils over the arches, but they do not now contain heads.

The same design is continued round the south side of the tower and along the west wall of the nave as far as the main doorway, but the north and east sides of the tower are plain. Above the two arcades the tower contains a large two-light window (see Fig. 494) on the north, east, and west sides. The jambs are lofty, and each contains two round shafts (see Fig. 498), with splays between, ornamented with plain balls similar to those of{69}

[Image unavailable.]

Fig. 497.—Holyrood Abbey. Lower Arcade of North-West Tower.

the windows in the north wall. The caps are carved and have square abaci. The large outer arch of each window is of square section and perfectly plain, having only a small chamfer on the edge, and a label moulding. Each window is divided into two openings by a single central shaft, having a carved cap and broad square abacus, on which rest the two plain pointed arches of the inner openings. The shield above is pierced{70}

[Image unavailable.]

Fig. 498.—Holyrood Abbey. Upper Part of Tower.

{71}

with a bold quatrefoil. The jambs and central shaft have a moulded band in the middle of their height, and the windows are built up solid to that level, one of the mouldings of the band being carried across as a cornice; but this is probably a late insertion. On each external angle of the tower a large nook shaft is carried up, and finished with a cap on top and base at bottom.

As above mentioned, the two western piers of the crossing (see Fig. 493) are still standing. They consist of shafts similar to those of the main piers of the nave, but considerably larger, and are carried up to the same height as the vaulting shafts of the nave, where they have similar caps and a bold pointed arch thrown across the nave. Within this arch there has been erected, in modern times, a large traceried window. The spaces below the window and across the side aisles have been built up with fragments of the demolished structure, and a window is thus formed at the east end of each aisle.

During the fifteenth century the church has evidently undergone a thorough repair. It is thought that this was undertaken by Abbot Crawford, who presided over the abbey from about 1460 to 1483. The work executed at this time consisted of the addition of seven buttresses on the north side and several buttresses on the south side of the aisles. Those on the north side (see Fig. 486) are large, and may either enclose the old buttresses, or have been substituted for them. They have a set-off near the centre, above which each contains an elaborately ornamented and canopied niche. Beneath and above the niche there are carved panels which have contained angels and shields, with coats of arms. The arms of Abbot Crawford are said to have been carved on the panels, but they are now too much decayed to be distinguishable.

Above the upper panels the buttresses are continued with several set-offs, and finished with a small square pinnacle. The pinnacles have been crocheted and terminated with a carved finial, but they are now greatly wasted away. There were, doubtless, flying arches from the above buttresses to the clerestory (see their springing in Fig. 484), but they must have fallen with the roof.

A somewhat elaborate north doorway (see Fig. 486) has been introduced, in a style similar to that of the buttresses, in the second bay from the west tower. The arch is semicircular, and has an ogee canopy. There are small niches above the arch on each side which contained statues, now demolished. This doorway was probably constructed by Abbot Crawford at the same date as the buttresses.

A series of buttresses was also erected about the same time on the south side of the fabric. It is believed, however, that these buttresses are partly old, or are on old foundations. In order not to interfere with the cloister walk, which ran along next the south wall, and where it would have been inconvenient to have any projections, the buttresses{72} were carried in the form of flying arches over the top of the cloister roof. At the clerestory level (see Fig. 493) flying arches, similar to those on the north side, rested against the upper portions of buttresses and pinnacles introduced between the windows. On the outside of the cloister walk the flying arch abutted upon oblong masses of masonry, which, probably, at one time were finished with pinnacles, but these no longer exist. Fig. 499 shows the lower part of the eastmost of these buttresses, from which it is evident that the outer enclosure of the cloister walk was connected with them, and extended as an open arcade between them.

[Image unavailable.]

Fig. 499.—Holyrood Abbey. Buttress in Cloister, showing Arcade.

Abbot Crawford was succeeded by Robert Bellenden, who presented the abbey with many costly gifts. Amongst these were the bells, a great brass font, and a chalice of gold. He further completed the restoration of the fabric begun by Abbot Crawford by covering the roof with lead. This took place before 1528.{73}

In 1539 the office of commendator was bestowed on Robert, natural son of James V., while still an infant.

The “great brass font” was carried off by Sir Richard Lee, an officer of Hertford’s army, in 1544, and taken to St. Alban’s Abbey. It was afterwards sold for old metal.

The brass lectern of the abbey seems also to have fallen into Sir Richard Lee’s hands, and was by him presented to the parish church of St. Stephen’s, at St. Alban’s, where it still stands. It is a handsome lectern of the usual form, having an eagle with outstretched wings to receive the volume. It contains a shield with a lion rampant and a crozier, with the inscription, “Georgius Crichton, Episcopus, Dunkeldensis.”[34] Before becoming bishop, Crichton was Abbot of Holyrood, 1515-24.

KILWINNING ABBEY, Ayrshire.

Of this once important abbey only a few fragments now survive. The monastery occupied extensive grounds on the banks of the river Garnock, situated a few miles from the sea in the northern division of Ayrshire known as Cuninghame. The ruins of the south transept of the church may still be seen from the Kilwinning Railway Station towering above the houses of the town.

The site seems to have been occupied in the eighth century by an Irish monk called St. Winnan, who is believed to be the same as St. Finnan of Moville. On the spot sanctified by his cell, a monastery was founded in the twelfth century by Richard or Hugh Moville, said by Pont[35] to have been a knight who fled from England in consequence of his connection with the murder of Becket. He was welcomed by the King of Scotland, who created him Great Constable of the Kingdom, and presented him with the lordships of Cuninghame, Largs, and Lauderdale. But the dates are difficult to reconcile. It seems, however, that towards the end of the twelfth century a colony of Tyronensian Benedictines was imported into Kilwinning from Kelso Abbey, and, as usually happened at that period, was speedily endowed with lands and became wealthy. To judge from the style of the surviving architecture, the church must have been erected early in the thirteenth century. The south entrance doorway from the cloisters to the nave (Fig. 500), although pointed, contains some lingering Norman enrichments, while the other principal remains indicate the work of the thirteenth century. The history of the monastery is somewhat obscure. The chartulary has been lost, but the names of a number of the abbots are preserved.[36]{74}

[Image unavailable.]

Fig. 500.—Kilwinning Abbey. Doorway from Cloisters to Nave.

{75}

In the Collections of the Archæological Association of Ayr and Wigton (1878) are printed a number of documents showing agreements between the monks of Kilwinning and others regarding churches and benefices. Amongst other papers there are notices of a charter by Robert I., granting to the monks fishings in Leven and Clyde; a petition by David II., showing that in consequence of wars and inroads the abbot and convent were reduced to a state of want and poverty, and granting them aid; several letters by Pope John XXII., early in the fourteenth century, confirming grants of different churches and patronages; confirmations by Robert II. and Robert III. of prior benefactions and new gifts; grants by James III. and confirmation by James IV. of certain royal grants formerly made to the abbey. An instrument narrates how, in 1512, the precincts of the abbey were invaded by the Earls of Glencairn and Angus on behalf of a rival abbot, thus showing that the monastery began to suffer from the turbulence of that period. Towards the middle of the sixteenth century the abbacy passed into the hands of commendators who, “for the utility and advantage of the said monastery,” as it was expressed, but really in order to secure as much as possible of the spoil, granted charters of the monastic lands to their lay friends and relations. Thus, in 1552, there is a confirmation by Queen Mary of a charter granted by Gavin, commendator of the abbey, in favour of Hugh, Earl of Eglinton, whereby “on the narrative of the usefulness and necessity to the said monastery of a prudent and legal justiciar, chamberlain, and bailie for the administration of justice to the tenants and inhabitants of the lands of the said monastery, and for their lawful defence against any that attempted to trouble them,” and also remembering the good services of the Earl and his predecessors “in the safeguard and defence of the rights and liberties of the said monastery, and especially in opposing by force and resisting malignant and heretical men in these times attempting every year to invade their monastery lands and possessions and to rob their revenues,” the feu right of the office of justiciary, chamberlainry, and bailiacy of certain of the lands of the monastery is granted to the said Earl, together with a salary of £40 Scots. Further charters are also granted to different parties in consideration of sums paid by them, said to be for the repair and restoration of the monastic buildings, which were ruinous and decayed.

In 1565 the abbacy was set apart, along with Paisley, Kelso, Jedburgh, and Newbattle, for the royal charges. By a charter under the Great Seal in 1603-4, the whole lands and possessions of the monastery were raised into a free temporal lordship in favour of Hugh, fifth Earl of Eglintoun.

The office of commendator appears to have survived, and in 1606, after the restoration of Episcopacy, retained the privileges attached to the order, and we find the bishops (who were the commendators) taking their{76} seats in Parliament as formerly. This continued till 1638, when presbytery prevailed.[37]

The buildings of the abbey appear to have been destroyed shortly after the Reformation. According to Knox the Earl of Arran, together with the Earls of Glencairn and Argyle and the Protestants of the west, cast down Fail, Kilwinning, and part of Crosraguel Abbeys, and, as stated by Pont, the work of destruction was completed in 1591. Part of Kilwinning Abbey, however, was repaired and fitted up as a Presbyterian place of worship. This was taken down in 1775, and the present very plain parish church was erected on the site of the choir. Shortly after this time (1789) the building was visited by Captain Grose, who mentions that the tower or steeple was then being repaired by the Earl of Eglinton.

The Plan (Fig. 501) shows what parts of the monastic edifices can now be seen above ground. These consist of the south wall and gable of the south transept, and one pier with respond and arch between the south transept and its east aisle; the handsome door (see Fig. 500) which led from the nave into the cloisters; the entrance to the chapter house from the cloisters; a long ancient wall which formed the wall of the south aisle of the nave; and some portions of the west end of the nave and the south-western tower.

In the architectural notes which accompany an account of the abbey in the publication of the Archæological Association of Ayr and Wigton,[38] Mr. Galloway gives an account of the result of certain diggings and explorations carried out by him.

From these it was ascertained that traces of the outline of the rest of the church could be distinguished, as shown on the Plan. It was thus found that “in its original state Kilwinning was a cross church, 225 feet in extreme length internally, 64 to 65 feet in breadth at the nave, and 98 feet from north to south of the transepts. The nave had north and south aisles throughout its entire length, the transepts had eastern aisles only, and there was a small chancel about 30 feet in breadth, without aisles.” The church was terminated at the west end with two square towers, which projected slightly beyond the walls of the nave. The mode of construction of these towers formed a rather exceptional feature in Scottish church architecture. The towers were not carried down with solid walls to the foundation according to a usual plan (as at Elgin, Aberdeen, &c.), but rested on two sides on arches which opened into the nave and aisles, and thus formed a continuation of the aisles of the nave. Of these arches only that which opened into the south aisle remains, together with the pier and respond which supported it. The arch (Fig. 502) is acutely pointed and the springing is high, thus giving it a kind of horse shoe shape. The foundations of some other parts of the south{77}

[Image unavailable.]

Fig. 501.—Kilwinning Abbey. Plan.

{78}

[Image unavailable.]

Fig. 502.—Kilwinning Abbey. West End: Exterior.

tower were, by excavation, ascertained to exist. The mouldings and caps of the existing piers and arch all belong to the first pointed period, but from having been long exposed to the weather, they are considerably decayed. The mouldings on the west angle of the pier are carried up to a great height without any caps (see Fig. 502). The caps would, doubtless, be placed at a higher point than the shafts now reach to. This indicates{79} that the arches of the towers on the side next the central aisle of the nave were very high, probably reaching to the level of the clerestory arch, and thus effectually including the space of the towers in the nave. This arrangement of the tower arches next the nave is quite unique, and would give the appearance of a western transept at the entrance to the church.

[Image unavailable.]

Fig. 503.—Kilwinning Abbey. West End: Interior.

{80}

The north-west tower has entirely disappeared, but its position has been ascertained to have corresponded with that of the south tower. Above the existing arch from the tower into the south aisle, and on the east side of it, a small portion of an arch of the triforium may still be observed (Fig. 503). A small shaft with cap and a portion of the arch yet remain. In Grose’s view some fragments of the clerestory are also shown, but they no longer exist. To the north of the south tower pier a strong wall, 6 feet in thickness, has been erected across what was originally part of the nave. This, Mr. Galloway thinks, was probably built as a reparation of the fourteenth century, the structure having probably suffered injury during the wars of independence. Whether the wall was erected at that time or not, there can be little doubt that it was constructed after the demolition of the original west front and tower, as a substitute for the former. The wall is built across the church between the east faces of the two towers, thus leaving the high arches of the towers, if they then existed, outside the edifice. It seems probable, however, that the south tower had by that time been partially demolished, and its ruins have remained ever afterwards exposed to the weather. Hence the extremely weather worn appearance the stones now present. The north tower, we know, remained complete till this century. It is shown by Grose, and an account exists of its being struck by lightning in 1805, and of its fall five years thereafter. A new tower has, in recent times, been erected on the site of the old north tower.

This renewed west wall has a plain pointed doorway and a lofty double window (see Figs. 502 and 503), with a simple mullion and transome of rather indefinite design. The doorway is extremely plain and small, being only about 3 feet in width, and having a double splay on the jambs and arch.

The nave seems to have consisted of seven bays in addition to the towers, and was of unusual width. A considerable portion of the south wall of the south aisle survives, and still retains the corbels which carried the vault of the south aisle. This wall, no doubt, formed the north side of the cloister walk, and contained the fine doorway from the cloister to the nave, shown in Fig. 500. Some traces of late Norman work are, as already noticed, observable here. The arch is pointed, and contains four orders of mouldings. The label is enriched with the dog-tooth, while the other ornaments, as well as the details of the caps and bases, are of a somewhat Norman character. The design of this doorway is thus in the transition style, while the remainder of the building is all of early pointed work. The undercut cross bars, which formed a chevron enrichment rising above a roll, have all been knocked off, only the stumps being left. One of the caps contains traces of two figures, and the ornamentation of the bases is peculiar (see enlarged{81} sketches in Fig. 500). Two plain round headed doorways can be traced in the south wall of the nave, near its west end. They doubtless led from the nave into the cloister.

Modern buildings now occupy the site of the cloisters, and the old cloister wall is incorporated with them. One of these houses bears the date of 15—, and comprises some of the plain vaulted structures which appear to have formerly been part of the abbey buildings.

The south wall of the south transept, with its gable (Fig. 504), is, fortunately, fairly well preserved, and forms a lofty and prominent object in the landscape, rising to a height of about 90 feet. Its triple lancets, with their plain chamfers on the outside, and bold mouldings in the interior (Fig. 505), and circular light above, are characteristic of thirteenth century work. The mouldings and dog-tooth enrichments of the arch of the eastern aisle (see Fig. 505) are indications of the same period. Similar mouldings and ornaments have been carried up into the triforium, and remains of a circular cusped opening are visible in the east wall above. One arch of the arcade of the east aisle, with one pier and respond, still survive. All the work connected with them is of fine first pointed design. A doorway in the south-west angle of the transept led to the stair to the upper parts of the structure, and, doubtless, also to the dormitory over the chapter house, &c.

From Mr. Galloway’s explorations it was discovered that the foundations of the north wall of the north transept still exist, thus enabling the dimensions of the church to be determined. Both transepts had, as was very usual, only an eastern aisle.

To the south of the south transept some portions of the slype or passage from the cloisters to the eastern side of the monastery, and parts of the chapter house, yet remain. The slype has a plain semicircular arched doorway (see Fig. 507) next the cloister, and has had a stone bench or seat running along each side. The passage has been arched with a cradle vault in ashlar, of which a small portion still survives. The chapter house is in ruins, but the west wall (Fig. 506), which contains the semicircular entrance from the cloister and two semicircular windows, one on each side of the entrance, is still preserved. The windows were divided into two openings by a mullion and two plain arches. The doorway and double windows have numerous mouldings, and the doorway is enriched also on the inside (Fig. 507.) The mouldings are bold, and the same mouldings are repeated in the jambs and arches. The caps are simple (see section in Fig. 506), but they are not adjusted to the mouldings of the jambs, having a plain soffit, against which the shafts and mouldings of the jambs butt. These are all indications of somewhat late design. As was usually the case, the doorway and side windows of the chapter house were left open; that is, without a door to close the doorway or glass in the windows, so that all that passed in{82} the chapter house might be seen and heard from the cloister. The chapter house has been of quadrangular form, 19 feet in width by 38 feet 4 inches in length. Only the entrance front remains.

[Image unavailable.]

Fig. 504.—Kilwinning Abbey. South End of South Transept: Exterior.

{83}

[Image unavailable.]

Fig. 505.—Kilwinning Abbey. South End of South Transept: Interior.

{84}

[Image unavailable.]

Fig. 506.—Kilwinning Abbey. Entrance to Chapter House.

{85}

[Image unavailable.]

Fig. 507.—Kilwinning Abbey. Chapter House: Interior.

{86}

Of the choir the outline only could be traced during the excavations. The eastern angles terminated with massive buttresses. The extreme external width over the bases was only 42 feet 6 inches, thus leaving a choir not more than 30 feet in width internally. From the massive foundations discovered at the intersection of the nave and transepts, it is surmised that there may probably have been a central tower as well as the two western towers.

DUNBLANE CATHEDRAL,[39] Perthshire.

The dioceses of Dunblane and Brechin were founded towards the close of the reign of David I. from the remains of the old Pictish bishopric of Abernethy, after numerous portions had been abstracted by St. Andrews.[40]

The town of Dunblane stands on the left bank of the Allan Water about four miles north of Stirling. The old town is small and consists of a single narrow street leading from the bridge over the Allan up to the platform on which the cathedral stands surrounded by its ancient churchyard. Indications of the age of many of the houses may be observed in the coats of arms inserted in their walls.

It is believed that St. Blane, in the seventh century, here founded a Columban establishment, which is said to have been an offshoot from Kingarth in Bute.[41] The bishopric was re-established by King David I. in 1150. The ancient square tower of the cathedral which still survives is a relic of the structure erected in the twelfth century. Nothing is known of the cathedral from that time till 1233, when Clement was appointed to the see. Finding everything connected with the bishopric in a neglected condition, he repaired to Rome and laid the case before the Pope, pointing out that the Columban monastery had fallen into lay hands, that the church was roofless and without a pastor, and that divine service was only occasionally performed. He succeeded in his appeal, and, in 1238, the Bishops of Glasgow and Dunkeld were appointed to settle matters between the Bishop of Dunblane and the Earl of Monteith who had raised certain claims. Clement died in 1258, after having re-established the bishopric, and, it is believed, partly, if not entirely, rebuilt the cathedral.

To judge from the style of the architecture, it is probably the case that the structure was at least begun by him, though the style indicates that it was not completed before the end of the thirteenth century.

This cathedral is one of our noblest structures, and situated as it is on the high east bank of the Allan, which here swells out into a broad{87}

[Image unavailable.]

Fig. 508. Dunblane Cathedral. View from South-West.

{88}

[Image unavailable.]

Fig. 509.—Dunblane Cathedral. Plan.

{89}

expanse, the view of the edifice, as seen from the south-west (Fig. 508), with its lofty front and ancient tower rising above the wooded bank of the stream, is particularly charming.

The structure (Fig. 509) consists of a nave of eight bays, with north and south aisles, an aisleless choir of six bays, an northern aisle unconnected with the choir, except by a doorway, and the twelfth century tower attached to the south aisle of the nave.

The tower is 22 feet 6 inches square, with walls about 5 feet in thickness. It is awkwardly placed in connection with the church, the walls not being parallel to those of the nave, while the tower projects into the south aisle from 6 feet to 7 feet 6 inches. A high window in the east wall of the ground floor of the tower is, in consequence, built up by the wall of the aisle. The ground floor has a pointed ribbed barrel vault, and a wheel stair in the south-west angle leads to the top. The doorway of the tower is in the north wall, and now enters from the south aisle of the nave (Fig. 510); but, so far as can be ascertained, the doorway appears to have been originally an external one. The sill is about 3 feet above the existing level of the floor of the nave. It has a nook shaft on each side, with the usual Norman cap and base, and a semicircular arch head. There is no appearance of any building having originally been joined to, or abutted against, the tower, which would therefore seem to have stood detached. It would thus be to a certain extent in accordance with the traditional design, being detached like the Irish towers, though square on plan, not round like them. It also resembled the Irish towers in having the doorway raised some feet above the ground. As Dunblane was several times pillaged and destroyed by the Norsemen, the tower may have been intended, as the ancient round towers were, to serve as a place of defence against such inroads, as well as for a belfry.

The tower (Fig. 511) is six stories in height. The lower four of these stories form part of the original structure, and have small narrow apertures, except the fourth story, which was probably the original top story or belfry, and has a two-light window on each side. These consist of an opening with plain jambs and round arched head, divided into two lights by a central shaft having Norman cap and base and two small plain round arched heads within the outer arch. The four lower stories of the tower are all built with red freestone, the fifth story is of yellow freestone, the sixth or top story of a grey freestone, and the tower is finished with a parapet of red freestone. The two highest stories are evidently of a late date. The top story contains a large pointed window on each side with a central mullion. The form of these windows is inelegant, and they are probably of sixteenth century date. The parapet, with its angle bartisans resembling those of the castles of the sixteenth and seventeenth centuries, but with almost no projection, is apparently still later than the belfry story. On the parapet are the arms of Bishop Chisholm, about 1500. The slated{90}

[Image unavailable.]

Fig. 510.—Dunblane Cathedral. South Side of Nave and Lower Story of Tower.

{91}

[Image unavailable.]

Fig. 511.—Dunblane Cathedral. Tower from South-East and Part of Choir.

{92}

wooden roof is comparatively modern, but is on the lines of the one which preceded it.

Judging from the style of the architecture the next oldest part of the fabric after the tower is the north aisle of the choir (generally called the lady chapel). The work here (Fig. 512) is all of a rather early first pointed style. The buttresses are plain with simple set offs, and the windows consist of two or three small pointed lights enclosed within one larger arch. The latter are low segmental pointed arches, and the haunches are raised so as to allow the small side lights to be carried as high as possible. This building is vaulted (Fig. 513) with pointed groins of first pointed section, which spring from semi-octagonal shafts with early caps, and the bosses at the intersection are carved with first pointed foliage. Above the vault there is an upper story with small two-light windows. It is approached by a wheel stair in the thickness of the west wall, entered both from the lady chapel and the nave aisle. Such upper stories over the aisles of early churches are not uncommon, as at Durham, Ely, St. Albans, Dunfermline, &c., but they generally form an upper gallery and admit light to the centre. Here the upper windows admit no light to the choir, the wall of the latter being solid. Possibly this upper chamber may have been used for a scriptorium or similar purpose. Upper stories were frequently employed for writing rooms, as at Arbuthnot and Inchcolm, the room over the chapter house of the latter being the place where Bower wrote his history.

It is remarkable that this north aisle of the choir, or lady chapel, should be entirely separated from the choir by a solid wall in which there never was any opening into the aisle except the small doorway near the east end, which is of first pointed date.[42] This doorway, with its details, is shown in Fig. 514. Whether this aisle was the first part of the structure erected by Bishop Clement in order to be used as a temporary church while the remainder of the cathedral was building, or whether the choir built by him was afterwards rebuilt, the north aisle being left unchanged, it is now impossible to say. That the choir is of later date than the aisle there can scarcely be any doubt; but it does not appear to be of much later date. The same base mouldings are carried round the whole building, and the design of the east end of the choir, with its large central and two narrow side windows (see Fig. 512) and plain pinnacles, shows some features of first pointed character; but both the large window of the east end and those of the south side (see Fig. 511) point to a time about the beginning of the decorated period. The windows of the clerestory on the north side above the roof of the north aisle, with their small buttresses, are, however, of a similar early character to those of the north aisle. Whatever may have been the object in building{93}

[Image unavailable.]

Fig. 512.—Dunblane Cathedral. Choir from North-East.

{94}

[Image unavailable.]

Fig. 513.—Dunblane Cathedral. Lady Chapel.

a solid wall between the choir and the north aisle, it has evidently been intended, from the size of the east windows and also of those on the south side, to provide sufficient light by them to make up for the want of light from the north. The kind of tracery which filled these windows cannot now{95} be ascertained, but it may have been of the same character as that of the windows of the west end. The tracery, which existed till recently in the choir, was clearly a late restoration. The pinnacles on the south buttresses and the upper part of the choir wall are also of very late date. These have apparently been restored by Bishop Chisholm, whose crest they bear, about the year 1500. It will be observed that the north aisle of the choir stops short by one bay of the length of the choir, so as to allow the presbytery to be lighted, as is usual, by windows on three sides. The choir is 81 feet in length by 28 feet in width within the walls.

[Image unavailable.]

Fig. 514.—Dunblane Cathedral.

Door from Choir to Lady Chapel. Details.

[Image unavailable.]

Fig. 515.—Dunblane Cathedral. Plan of Clerestory Window.

We now come to the most beautiful part of the structure, viz., the nave. It measures internally 129 feet in length by 57 feet in width (including the aisles), and is divided into eight bays. The four eastmost bays and the westmost bay are 10 feet in width between the piers, while the three bays next the westmost bay are 12 feet between the piers. A similar difference is observable in the upper part of the structure, which consists of the clerestory, there being no triforium (Fig. 516). The clerestory is constructed with an outer and an inner wall (Fig. 515), having a passage between them in the centre. In the outer wall are the windows, which have two lights formed by a central mullion, with plain splays on the jambs and pointed arch (Fig. 517). The arch head is filled with a form of tracery consisting of a quatrefoil cut in a plain circular panel, being thus an intermediate example between the perforated panel of early first pointed work and the bar tracery of the{96}

[Image unavailable.]

Fig. 516.—Dunblane Cathedral. Elevation of Bay of Nave.

{97}

[Image unavailable.]

Fig. 517.—Dunblane Cathedral. West End from South-West.

decorated period. On the inner side of the clerestory gallery an arcade (see Fig. 515) is more elaborately carried out. Each bay contains two arches forming a continuous arcade, resting on clustered shafts with rounded caps and bases of first pointed style. The arch mouldings are{98}

[Image unavailable.]

Fig. 518.—Dunblane Cathedral. Interior of North-West Angle of Nave.

{99}

also of fine bold first pointed form. Of this arcade, four and a-half bays on the north side and four bays on the south side next the east end have the arcade, without central shaft or tracery. The remainder of the clerestory arches on both sides have the opening divided by a central shaft carrying two pointed arches, and the arch head is filled with a quatrefoil cut out of a circular shield like those above described. The western bay (Fig. 518) is exceptional, having one arch with and one without tracery on each side of the nave, the openings without tracery being the east one on the south side and the west one on the north side. It may also be pointed out that the four east bays have ashlar work in the spandrils of the main arches, while the spandrils of the four west bays are filled in with rubble work.

The main piers and arches are all of nearly the same design (Fig. 519). They are set diagonally to the nave, and have four half shafts at the cardinal angles and one intermediate shaft and two square projections between on each side. In the south piers the square angle is cut off these projections, otherwise the plan of the piers is the same. They have all rounded first pointed caps, composed of mouldings over a bell, and the bases are of usual first pointed forms (see Fig. 516).

[Image unavailable.]

Fig. 519.—Dunblane Cathedral. Half-Plan of Nave Piers.

The west end (Fig. 520) is one of the finest parts of the cathedral. On the ground floor it contains the western doorway (Fig. 521), deeply recessed with a series of shafts and arch mouldings of line first pointed design, flanked by an acutely pointed blind arch on each side with trefoiled head within it. This ground story is surmounted by three lofty pointed windows (see Fig. 520), all of equal height, and each divided into two lights by a central mullion, and having the arch head filled in the central window with a cinquefoil, and in the side windows with a quatrefoil. The windows are all enclosed with a label moulding, having carved terminals. The jambs and arches have plain triple splays (Fig. 522), and the openings in the arch heads are cut out of plain circular shields like the windows of the clerestory. A passage like that of the clerestory runs round in the west wall, and has an inner arcade of clustered shafts, with arch mouldings and tracery similar to those of the clerestory. In the interior arcade the three arch heads are{100} all filled with cinquefoils cut through what is almost a plain shield (Fig. 523). The gable is filled with an elegant vesica piscis (Fig. 524), to which Ruskin draws attention in his Edinburgh Lectures.

[Image unavailable.]

Fig. 520.—Dunblane Cathedral. West End.

The edifice has not been intended to be vaulted. The buttresses of the nave are light (see Fig. 517), and they are finished with plain{101}

[Image unavailable.]

Fig. 521.—Dunblane Cathedral. West Doorway.

{102}

gablets. The cornice is supported on a corbel table of pure first pointed design. There is no transept, but an attempt has been made to supply its place by the insertion of large traceried windows in the first bay of the nave next the choir (see Fig. 508). The east window of the south aisle of the nave (see Fig. 511) has the shield over the central mullion carved with a quatrefoil sinking on the inside, but it is not pierced through to the outside, which is left quite plain. The aisles are of very plain design, the windows being somewhat similar to those of the lady chapel, and the buttresses being very plain. Two windows at the west end of the north aisle (Fig. 525) are of peculiar form, having a flat segmental arch and being divided by two mullions. These appear to be a comparatively late alteration. There has been a north porch (see Fig. 525) to the nave, of which only the ruined doorway, with first pointed shafts and arch mouldings, now remains. There is also a plain south doorway in the nave aisle (see Fig. 511).

[Image unavailable.]

Fig. 522.—Dunblane Cathedral. Plan of West Window.

The north buttress of the west end has been made large so as to contain a wheel stair to the upper galleries (see Plan) of the edifice (see Fig. 517), and in the buttress on the south side of the west doorway a small vaulted chamber has been formed, in which some interesting relics of Celtic times have been preserved, amongst others a stone carved with a Celtic cross, ornamented with a figure like a Greek fret.

As already mentioned, the greater part of the structure is of first pointed date. The lady chapel may be the oldest part (after the tower), and next to it is the east portion of the nave. The western half of the nave seems to have followed soon after the eastern portion, and is carried out nearly after the same design. The transition tracery in the arcade of the clerestory and west end is very interesting, as showing bar tracery in the act of being formed. This could scarcely have occurred in Scotland before the end of the thirteenth century.

The style of the choir is further advanced than the nave, and exhibits some transitional features between first pointed and decorated work. The great east window and the large side windows of the choir probably contained tracery more advanced than that of the west end, and may probably date from the fourteenth century. The pinnacles and parapet are, as already pointed out, of about 1500.{103}

[Image unavailable.]

Fig. 523.—Dunblane Cathedral. Interior of West Window.

{104}

By great good fortune six of the stalls of Dunblane Cathedral with their canopies, and several others without canopies, have escaped the destruction which has overtaken almost all the carved woodwork of our ancient Scottish churches. Those preserved here (Fig. 526) show some excellent carving.

[Image unavailable.]

Fig. 524.—Dunblane Cathedral.

Vesica in West Gable.

Fig. 525.—Dunblane Cathedral. North-West Angle of Nave.

These stalls contain on one of the misereres the arms of the Chisholm family, surmounted by a mitre. Three bishops of this name presided in succession at Dunblane. First, James, eldest son of Edmund Chisholm of Cromlix, who was advanced to this see in 1486. In 1527, by reason of his age, he resigned the bishopric in favour of his half-brother, William Chisholm (second), who was consecrated the same year, and was bishop{105}

[Image unavailable.]

Fig. 526.—Dunblane Cathedral. Stalls.

till his death in 1564. Third, William Chisholm, nephew to the preceding, who was first coadjutor to his uncle, and then his successor. He was forfeited for non-compliance with the new measures both in Church and{106}

[Image unavailable.]

Fig. 527.—Dunblane Cathedral. Details of Stalls.

{107}

State, sometime before the 3rd July 1573, and retired to France, where he died in his old age a Carthusian at Grenoble.

The first of these bishops, James, receives very favourable notice from Bishop Spottiswoode in his History of the Church (Vol. I. p. 215, Spottiswoode Society edition). “A severe censor he was of the corrupted manners of the clergy, and recovered many lands and possessions which were sacrilegiously taken from the Church before his time;” and otherwise he speaks highly of him. The same authority condemns his successor, Bishop William, as “a wicked, vicious man, who, for the hatred he bore to the true religion, made away all the lands of the bishopric, and utterly spoiled the benefice.” Bishop Keith bears the same testimony, saying that “he alienated the Episcopal patrimony of this church to a very singular degree.” The extent to which this alienation went will be best understood from the remark of Bishop Keith regarding the second Bishop William, that he “dilapidated any remains of his bishopric,” clearly implying, as his more detailed account shows, that there was little left to squander.

[Image unavailable.]

Fig. 528.—Dunblane Cathedral. Wood Carving.

In these circumstances it is not at all probable that either of the Bishops William would spend money in the adornment of their cathedral. There is therefore no difficulty in concluding that the stalls were provided by Bishop James Chisholm, and that they date between the years 1486 and 1534, the year of his death. Although he resigned in 1527, he retained to himself the administration of “the fruits of the bishopric of Dunblane.”[43]

The carving is very spirited, and full of grotesque figures (see details in Fig. 527). It corresponds in style with the date of Bishop James Chisholm, and has probably been brought from Flanders, where so much{108}

[Image unavailable.]

Fig. 529.—Dunblane Cathedral. Misereres of Stalls.

{109}

[Image unavailable.]

Fig. 530.—Dunblane Cathedral. Monument in Choir.

{110}

[Image unavailable.]

Fig. 531.—Dunblane Cathedral. Monument in East Bay of Nave.

{111}

[Image unavailable.]

Fig. 532.—Dunblane Cathedral. Monument in North Aisle of Nave.

{112}

carving of the kind was executed about that time. The lion (Fig. 528) is especially good of its kind. It was taken out of the cathedral during some of the alterations and repairs made on it about the beginning of this century; and at the same time a considerable quantity of carved woodwork was removed and converted into household furniture. Fig. 529 shows some of the carvings on the lower side of the misereres of the stalls which have no canopies.

The cathedral contains a few ancient sculptured monuments. One of these is in the north wall of the choir, and consists of a tomb, under a recessed canopy, containing the effigy of a bishop (Fig. 530), said to be Finley Dermock, who was bishop of the see in the beginning of the fifteenth century. This bishop built the first bridge over the Allan, at Dunblane, which still survives, although widened and improved. The head of the crozier and the right hand which held it have been knocked off; otherwise the effigy is in good preservation. The feet rest against an animal, much mutilated, whose tail runs into a wreath of foliage of first pointed character.

Another episcopal effigy, attired in pontifical vestments and mitre, rests in a tomb (Fig. 531) in the south wall of the eastmost bay of the nave. This is believed to be the monument of Bishop Michael Ochiltree, who occupied the see about the middle of the fifteenth century, and added much to the rich ornaments of the cathedral. The tomb and effigy are evidently of late date, and both are much decayed.

In the north aisle of the nave are preserved two effigies (Fig. 532), said to be those of Malise, eighth Earl of Strathearn, and his countess. The figures are life-size, and are carved in a block of sandstone. “When discovered in the choir, the block was above a coffin of lead, having inscribed on it the date 1271.”[44] The figures, however, are undoubtedly of later date.

INCHMAHOME PRIORY, Stirlingshire.

The ruins of this priory are situated on a small island of about four acres in extent in the beautiful lake of Menteith. Its retired and peaceful position is well indicated in the name of Inchmahome, which means the Isle of Rest. This secluded situation has to some extent saved the buildings from demolition and the grounds from alteration; so that this venerable priory, surrounded as it is with ancient and gigantic walnut trees, and the remains of the gardens of the monks, has a peaceful and impressive beauty and interest of its own.

But although the church is fairly well preserved, the monastic buildings have not escaped the ordinary causes of destruction so entirely as their situation would have led one to expect.{113}

The adjacent island of Talla is almost entirely covered with the ruins of the castle of the Earls of Menteith,[45] which seems to date mostly from the seventeenth century, and in the construction of which the materials of the suppressed priory, lying so conveniently at hand, were no doubt largely employed. The Earl must also have found the gardens on the island of the abbey convenient, and appropriated them as a pleasure ground.

[Image unavailable.]

Fig. 533.—Inchmahome Priory. Plan.

{114}

[Image unavailable.]

Fig. 534.—Inchmahome Priory. View from South-East.

{115}

The instrument authorising the establishment of the priory of Inchmahome still exists. It is given in the name of the Pope by the Bishops of Glasgow and Dunkeld in the year 1238, and authorises a monastery to be built for the religious men already settled in the island. The priory was founded and endowed by Walter Comyn, fourth Earl of Menteith, for monks of the Augustinian order. From the style of its architecture the church evidently belongs to the middle of the thirteenth century. Its details, such as the lofty lancet windows, the nave piers and arches, the western doorway, &c., bear a striking resemblance, on a small scale, to those of the neighbouring cathedral of Dunblane.

[Image unavailable.]

Fig. 535.—Inchmahome Priory. Sedilia.

The Plan (Fig. 533) shows a choir 66 feet long by 23 feet 8 inches wide internally, without aisles, and with plain lancet windows, without tracery (Fig. 534), those of the east end forming five lights (now built up). The mullions are preserved, but the arched heads are gone.

There is a good sedilia (Fig. 535) and two ambries in the south wall,{116} and on the north side of the choir are the ruins of what seems to have been a sacristy built as a north aisle, with only a door from the church, in the fashion of the north aisle of Dunblane. From the base mouldings being carried round this aisle, it is evidently an original part of the design, and the corbels for the wall plate show that it had a lean-to roof like an ordinary aisle.

[Image unavailable.]

Fig. 536.—Inchmahome Priory. North-West Angle of Nave.

The nave is 75 feet in length, and its width varies, being 23 feet 8 inches at the east and 27 feet 2 inches at the west end. This difference seems to have arisen from the south wall having been rebuilt. The nave has a north aisle connected with it by four arches, two of the piers and arches of which are still standing (Fig. 536). The caps, bases, and sections of piers and arch mouldings (Fig. 537) are all good first pointed work. The west doorway is also very fine, and is pretty well preserved (Fig. 538). It comprises a central pointed doorway with deep ingoing, having numerous shafts with moulded caps and bases, and a deep series of first pointed mouldings in the arch head (Fig. 539). On each side of the central doorway are two pointed wall arches with similar caps and mouldings, but{117} with only a shallow recess. The spandrils between the arches contain trefoil and quatrefoil recesses.

There are the remains of a tower at the north-west angle of the nave (Fig. 540), but this has been a later addition. There seems, from the original base course, to have been a tower of some kind here from the first, but it has evidently been rebuilt, and divided into stories, as if for habitation. In this operation the arches of the nave and aisle adjoining, which were originally open, were built up with rubble, but that has now been cleared out again.

On the south side of the choir is situated the chapter house (see Fig. 533), 24 feet in length by 15 feet in width internally. It is vaulted with a semicircular tunnel vault, over which there is a room in the roof (see Fig. 534). The chapter house has a good east window, and there is the usual stone seat all round. An outside staircase led to the upper apartment. The cloisters and cloister garth have been situated to the south of the nave; the corbels for the cloister roof still remain. There is no south aisle, and there are no south windows or buttresses to the nave along what was the cloister walk. To the south of these structures are several remains of the monastic buildings, but much destroyed.

The kitchen and offices at the south end (see Plan) are the best preserved portions, having the fireplace, windows, water drain, &c., and the kitchen is still covered with a plain round tunnel vault, over which there was an upper floor. The refectory probably ran along the south side of the cloister. A staircase near the kitchen led to the dormitory, of which it would form the day access.

[Image unavailable.]

Pier.

Arch Mouldings.

Cap and Base.

Fig. 537.—Inchmahome Priory. Details of Nave.

There is at first sight a strange confusion amongst the conventual buildings, owing to what turns out, on careful examination, to be a comparatively recent erection built in the middle of them.

The chapter house seems to have been appropriated as a mausoleum by the Earls of Menteith and Airth, and a long avenue has been{118}

[Image unavailable.]

Fig. 538.—Inchmahome Priory. West Doorway.

[Image unavailable.]

Fig. 539.—Inchmahome Priory. Mouldings of West Doorway.

{119}

constructed and enclosed between two high walls leading up to it. This was, no doubt, erected with the materials of the demolished monastic buildings right through the centre of what was the cloister garth. This enclosure is said to have been erected in haste to receive the remains of Lord Kilpont, son of the first Earl of Menteith and Airth, who was assassinated in the camp of Montrose at Collace, in 1644, by Stewart of Ardvoirlich; a weird Highland story, on which Scott has founded his romance of The Legend of Montrose. The body was sent home to his father, then a State prisoner in his own castle of Talla, and was buried here.

[Image unavailable.]

Fig. 540.—Inchmahome Priory. North-West Tower.

In the choir are the graves of some of the most distinguished men of the families of Comyn, Stewart, Drummond, and Graham, with numerous monuments, much defaced—amongst others, that of Walter Stewart, fifth Earl of Menteith and his Countess (Figs. 541 and 542). The Earl was one of the most historic men of his day. He was present at the battle of Largs, in 1263; he was a witness to the marriage of the Princess{120} Margaret to Eric of Norway, 1281; and he was a distinguished crusader under Louis IX.

[Image unavailable.]

Fig. 541.—Inchmahome Priory. Monument of Fifth Earl and Countess of Menteith.

(Drawn from Sketch by Mr. R. B. Armstrong.)

In 1543 Queen Mary, as a child, found refuge here along with her mother after the battle of Pinkie, and she stayed here for some months until a favourable opportunity was found for sending her to France. Dr. John Brown has pointed out that amongst other interesting and suggestive relics in the garden may still be seen what seems to have been the young queen’s miniature or child’s garden—a small flower plot, the boxwood edging of which has now grown up into a thick shrubbery.

[Image unavailable.]

Fig. 542.—Inchmahome Priory. Monument of Fifth Earl of Menteith.

(Drawn from Sketch by Mr. R. B. Armstrong.)

At the south side of the island there is a high mound, called the “Nun’s Walk,” about which a romantic and tragic tale is told. This may, however, have been an artificial mote or mound, raised for the purpose of receiving an early wooden castle on its summit. There is a similar mound close to Lincluden College, Dumfriesshire.{121}

ELGIN CATHEDRAL, Morayshire.

This once noble edifice, of which even the remaining fragments are amongst our finest examples of mediæval architecture, stands in the fertile plain of Moray, in the centre of the region which borders the Moray Firth, and is remarkable for the pleasantness and salubrity of its climate. This province was long a subject of contest between the Scottish kings and the Mormaers of Moray. The latter were defeated by Alexander I., and more permanently subdued by David I., who both proceeded to carry out the ecclesiastical policy of their family by founding in this newly-acquired land various religious establishments.

The priory of Urquhart, of which now not a stone remains, was established by David I., near the mouth of the Lossie, in 1125, for Benedictines from Dunfermline; and the abbey of Kinloss, near the Findhorn, was founded, in 1150, for Cistercians from Melrose. The churches of Birnie, Spynie, and Kineddar also come into notice about this period.

The chartulary of the Bishopric of Moray goes no further back than the year 1200, but the see of Moray is believed to have been founded by Alexander I. about 1107, and the bishopric certainly existed in his time.[46] The seat of the bishop, however, was not fixed for a considerable period thereafter, being sometimes at Birnie and other times at Spynie and Kineddar. But in 1203 application was made by Bricius, the sixth bishop to Pope Innocent III., requesting that the site of the cathedral should be fixed, and the Pope decided that it should be settled at Spynie. This situation was, however, found to be too remote, and Pope Honorius was approached for the purpose of having the see changed to the banks of the Lossie, where an extensive and suitable site for the cathedral had been obtained from Alexander II., who was a great patron of Elgin.

The introduction to the Register of the Diocese, p. xii., states that the application for the transference of the see to Elgin was made by Bishop Bricius, though the change did not take place till after his demise. This bishop established a chapter of eight secular canons, and gave the cathedral a constitution founded on the usage of Lincoln, which was ascertained by a special mission to England. Bishop Bricius died in 1222, and was succeeded by Andrew de Moravia, a member of a powerful family in the north. Under him the transference of the Episcopal See to Elgin was effected, and the cathedral of the Holy Trinity was founded in 1224, on the site of an older church with the same dedication. The works proceeded under Bishop Andrew’s supervision during the eighteen remaining years of his life.

Munificent donations were bestowed on the see by the bishop’s family,{122} and through his influence the number of the prebends was increased to twenty-three. It is recorded that Master Gregory, the mason, and Richard, the glazier, were two persons employed on the work.[47]

The edifice was probably well advanced in the course of the thirteenth century, when in 1270, as we are informed by Fordun, the cathedral and the houses of the canons were destroyed by fire. Mr. Billings is of opinion that the most of the structure now remaining was erected after that date. It will, however, be seen that this can scarcely have been the case. In 1390 the building suffered from another great conflagration, caused by Alexander Stewart, son of Robert II., who bore the title of Earl of Buchan, but was better known as the “Wolf of Badenoch.” Having interfered with some of the cathedral lands, and refusing reparation, he was excommunicated by the bishop, and by way of revenge the “Wolf” descended in force from his mountain fastness and plundered Forres and Elgin, reducing the latter town and cathedral to ruins.

It is evident, however, from the style of much of the work which still remains that this catastrophe, terrible as it was, caused only a partial destruction of the cathedral, and it is likely that the previous fire (in 1270), above referred to, was not of so serious a character as this one, the memory of which long lingered in the province as the most terrible disaster ever experienced there. The aged Bishop Bur appealed for redress to the king, and the “Wolf of Badenoch” was not only forced to do penance, but also to contribute largely towards the expense of the restoration of the damage he had caused.[48]

The work of reconstruction proceeded under Bishops Spynie and Innes and other Bishops, and probably lasted during the most of the fifteenth century. At the election of a new bishop in 1414, after the death of Bishop Innes, the canons agreed and made oath that the new bishop about to be elected should bestow one-third of the revenues of the bishopric on the rebuilding of the church until its complete restoration was accomplished. Several parts of the work, such as portions of the west front and the interior of the chapter house, indicate by their architecture that they belong to the fifteenth century. Early in the sixteenth century the central tower showed signs of weakness, and had to be rebuilt in 1538.

Some years before the Reformation the period of decline began. In 1535 Patrick Hepburn, son of the first Earl of Bothwell, was made bishop. Like many of the other Church dignitaries of that period he caused great dilapidation of the ecclesiastical possessions, and almost all the charters of alienation of the cathedral lands were granted by him.[49]

{123}

In 1568 the exigencies of the Regent Moray compelled the Privy Council to order the removal of the lead from the roofs of the cathedrals of Aberdeen and Elgin that money might be provided for the soldiers, but the ship which was conveying the lead to Holland for sale sank, and the whole was lost. The roofs were thus left unprotected, and in a great storm which occurred in 1637 the rafters were blown down.

The destruction of the interior soon followed, and was hastened by the action of the General Assembly, which, in 1640, empowered Gilbert Ross, minister of Elgin, and others to break down the timber screen between the nave and choir. Spalding states that the paintings on the rood screen—the Crucifixion on the west side, illuminated with gold stars, and the Day of Judgment on the east side—notwithstanding their exposure for “seven score years,” were still in excellent preservation when the demolition took place.

Next followed the destruction of the tracery of the great west window and other features, which is believed to have been caused by Cromwell’s troops in 1650-60.

By the end of the seventeenth century the double aisles of the nave seem to have disappeared, as they are not shown in Slezer’s view (published in 1693). But the chief catastrophe which overtook the edifice was the fall of the central tower on Easter Sunday, 1711. It fell towards the west, thus overwhelming in its ruin the nave and transepts, and causing their complete destruction. The ruins thereafter became, as usual, the quarry of the district, till, in 1807, by the exertions of Mr. King of Elgin, a wall was built round the enclosure. In 1816 the Barons of Exchequer took possession of the ruins, and appointed as keeper John Shanks, who was an enthusiast in excavating and preserving any ancient sculpture he could discover, and is said to have wheeled out over 3000 barrows of rubbish.

The enclosure which surrounded the precincts of the cathedral was of considerable extent, and comprised within its bounds the houses of the canons and the town house of the bishop. The former are now entirely demolished and the latter is hastening to decay, a large portion having recently fallen.[50] One gate of entrance to the precincts still remains.

Whether we regard the extent and completeness of the arrangement of the buildings or the beauty of the architecture, Elgin Cathedral, when perfect, must have held a place in the first rank of our Scottish ecclesiastical edifices. It was complete in all departments (Fig. 543), having a large nave with double aisles, an extended choir and presbytery, north and south transepts, a lady chapel, and a detached octagonal chapter house. It also possessed a great tower and spire over the{124}

[Image unavailable.]

Fig. 543.—Elgin Cathedral. Plan.

{125}

crossing, two noble towers at the west end, and two fine turrets at the east end. Most of the existing portions had also the advantage of being erected during the thirteenth century, at which period Scottish architecture was at its best. Good examples of the Scottish decorated period are also represented, and the testimony of ancient historians to the beauty of the internal sculpture and decoration is well supported by the fine fragments which still survive, of which a collection is formed in the chapter house.

Although slightly inferior in dimensions to our larger cathedrals at St. Andrews and Glasgow, that of Elgin is in some respects superior. The splendid western portal is undoubtedly amongst the finest examples of that feature in Scotland, if not in Britain, and recalls rather the noble portals of French architecture than those of this country.

The two grand western towers (Fig. 544) are also very notable portions of Elgin Cathedral, and are unsurpassed by any western towers in the kingdom. From the simple and bold lines of their design, these towers have likewise more affinity with French than British Gothic.

On entering the nave by the great western doorway it is apparent from the remains of the bases of the piers, which are all that now survive of that portion of the edifice, that the nave has consisted of a main central compartment with two aisles on each side, thus forming five divisions, with four rows of arcades running along the length of the nave. These comprised six bays in the length with an additional bay in the central compartment between the two western towers. The internal length of the central aisle of the nave was 118 feet by 32 feet in width, and the width of the double aisles on each side was 26 feet, thus making the total width of the nave 84 feet.

The nave was also entered by two large vaulted porches, one on the north side and the other on the south side, adjoining the western towers. These porches are now much destroyed, especially that on the north side. The choir is of unusual length, containing from the crossing to the east end seven bays, and extending to a total length of 211 feet. This includes the two bays of the presbytery which, as usual in large Scottish churches, extend eastwards beyond the aisles and are lighted with windows on three sides. The three steps leading up to the high altar still remain. The great eastern window of the choir (Fig. 545) is divided into two arcaded stories with five lights in each, and the upper story is surmounted by a large circular opening, the tracery of which, now broken, was evidently inserted at a later time. In the side walls there is no triforium, but the clerestory is lofty and forms a continuation of the upper story of the east end, extending along both sides of the choir (see Fig. 545). This upper story has separate arches on the exterior and interior of the wall, and contains a passage between them for access to the upper part of the building. The arcades of the east end and clerestory are all ornamented with{126}

[Image unavailable.]

Fig. 544.—Elgin Cathedral. West End.

distinct shafts, having round moulded caps and bases and fine bold mouldings in the arches. The hollows between the shafts and mouldings are enriched with numerous and elegant forms of the dog-tooth ornament.{127}

[Image unavailable.]

Fig. 545.—Elgin Cathedral. Interior of Choir.

The windows are almost all lancets, but some of the side windows are larger, and some of those in the east end have a little tracery introduced, thus indicating a rather late date in the style. The elegant turrets at{128}

[Image unavailable.]

Fig. 546.—Elgin Cathedral. East End.

{129}

[Image unavailable.]

Fig. 547.—Elgin Cathedral. South Transept and South Side of Choir.

{130}

the east end (Fig. 546) are ornamented with trefoiled arcades, and have been finished on top with octagonal pyramidal roofs and canopied windows. All the features of the choir seem to point to its having been erected late in the thirteenth century, probably after the fire in 1270, reported by Fordun. The details are all of pure first pointed form, but from the exuberance of the enrichments the building was apparently somewhat late in the period.

The buttresses on the exterior of the clerestory are of small size (Fig. 547), the building having evidently not been designed for a vault, but only intended to carry a wooden roof over the central choir. The side aisles, however, were vaulted and groined. About the centre of the side walls of the choir there is a projecting respond on each side (see Fig. 545), which seems to indicate that at one time it had been intended at this point to throw an arch over the choir to separate it from the presbytery, and the buttress at this point is of extra size; but some change of the first design has apparently taken place, and the space above the caps of the responds has been sloped off in a pyramidal form, and ornamented with a series of small leaf enrichments. Whether this change of design was adopted voluntarily, or in consequence of damages caused by the fire above referred to, it is now impossible to say, but the result proves how beautifully an accidental alteration could be turned to good account in the olden time. Possibly the choir only extended to this point before 1270.

The aisles of the choir do not extend the full length of the choir, but stop short, as is usual, by two bays so as to admit more light into the presbytery. The north aisle is separated from the central choir by a solid wall, having only one opening, through which a passage leads from the choir across this aisle to the chapter house. Along the south side of the choir there runs another and wider aisle (Fig. 548), which is said to have formed the lady chapel. It was connected with the choir by wide arched openings having first pointed piers and mouldings with round moulded caps, and contains several ancient monuments. The tracery and other details of this aisle (see Fig. 547) prove that it has been considerably altered at a later date than the choir.

Before completing the description of the choir it may be pointed out that the north wall presents some peculiarities. It has already been mentioned that the wall is solid, having in the lower part no openings to the side aisle, except that leading to the chapter house. It would appear, however, that this was not always the case, as there are traces in the side next the aisle of a window which has been built up. The wall is also in its lower part built with rubble, and it may be conjectured that this wall was part of the original choir of the Church of the Holy Trinity, which had been begun when the see of the bishop was transferred to the site of that church. Another peculiarity is that the windows in the triforium of the western portion are smaller than those of the rest{131} of the choir. Possibly the western aisle, which was cut off from the choir by a solid wall, was used as the sacristy.

[Image unavailable.]

Fig. 548.—Elgin Cathedral. South Aisle of Choir, or Lady Chapel.

The transepts, like the nave, have been greatly destroyed, and the{132}

[Image unavailable.]

Fig. 549.—Elgin Cathedral. Western Doorway.

chapels, if any such formerly existed on the east side of the transept (which, however, does not seem to have been the case), have now entirely disappeared. The south wall of the south transept (see Fig. 547) is especially interesting from its containing the oldest architecture in the{133} cathedral. The various features all show that it belongs to the period of transition from Norman to first pointed, which in Scotland occurred about the beginning of the thirteenth century. The forms of the buttresses and the introduction of the pointed lancet windows below the circular arches on the upper floor show that the first pointed style was making rapid progress, while the circular arches of the upper windows and the Norman ornaments inserted in the pointed doorway of the south transept show some lingering remains of the earlier style. Perhaps the transition in this northern region may have taken place at a later period than in the south; and, to judge from the transition style here employed, which in a more southern situation would indicate a date about 1200, this part of the structure may have been erected immediately after the foundation of the cathedral in 1224; or the transept may have formed part of the original Church of the Holy Trinity, which was superseded by the cathedral. The transept would be of great size for an ordinary church, but would accord well with the dimensions of an edifice intended for a cathedral.

The style of the western towers (see Fig. 544) indicates an early date, being all of early first pointed work in every detail. The great western portal (Fig. 549), with its surmounting gablets and side niches, is also in the first pointed style. The nine circular shafts of the ingoing, with their round moulded caps and bases and simple cavetto between, and the mouldings of the deep bay of the principal arch, are of fine first pointed character. The arch head comprises amongst the boldly cut mouldings four rows of dog-tooth ornament, and one order formerly enriched with a finely undercut and foliaged ornament, now almost obliterated. This doorway is evidently in a later style than the towers, although still belonging to the first pointed period.

An elegant first pointed gallery (Fig. 550) likewise runs round the interior of the west wall over the doorway. The inner portions of the western portal, i.e., the two smaller arches and tympanum within the great arch, are of later date. This is quite apparent from the nature of the enrichments, which indicate the fifteenth century. The ornaments are numerous and consist of imitations of natural foliage, the jambs and arches are continuous and without caps, and the arches are surmounted by crockets, all signs of decorated work. The vesica over the central mullion has, doubtless, contained an image of the blessed Virgin, and on either side is an angel kneeling and throwing the censer.

The great west window over the portal (see Fig. 544), which was formerly filled with tracery, is also of later date than the portal, every feature being of a decorated character. The tracery has apparently contained a large circle or rose form in its design, and has corresponded in style with the tracery which latterly filled the eastern circular light. This part of the building was probably erected in the earlier part of{134}

[Image unavailable.]

Fig. 550.—Elgin Cathedral. Interior of West End.

{135}

the fifteenth century. The arms of Dunbar and the royal arms are observable on shields above the arch, and the former may stand for Bishop Columba Dunbar, under whom it may have been erected (1422-35). During the fifteenth century great additions and alterations were, doubtless, carried out in consequence of the restoration required after the destruction caused by the “Wolf of Badenoch” in 1390. These extended chiefly to the nave and chapter house, which were both to a large extent rebuilt. A contribution towards this restoration appears to have been made by Robert III. in 1390, in the form of an annuity during the king’s pleasure; and in 1408 the revenues of the see, while vacant, were granted to the work.[51]

The nave appears, from the plan of the main piers (see Fig. 543) and the style of the responds against the west towers (see Fig. 550), to have been originally of first pointed work, and to have corresponded with the style of the choir, having no triforium, but a lofty clerestory with passage in the wall similar to that of the choir. Slezer’s view, taken before the destruction of the tower and nave in 1711, shows the clerestory of the nave complete, as above described. The arches of the windows are drawn as if circular, but this is evidently a mistake, those of the choir, which still survive and are pointed, being also drawn as if of circular form. The smaller piers of the outer aisles are evidently much later in style. The outer aisles would appear to have been the result of an alteration made apparently at an early date. Some fragments of the south aisle wall and south porch are apparently of first pointed style, but the outer aisles were undoubtedly restored in the fifteenth century. This is apparent not only from the style of the piers, but also from other indications. Thus, from the water table of the aisle roof against the north-west tower, it is evident that the roof has originally been of the simple shed form usually employed to cover a single aisle; while a second water table or groove has been formed to receive the span roof of the outer aisle. The small portion of the south wall of the nave which survives also confirms this view, as the form and ornament of the traceried windows (Fig. 551) assign them to the middle pointed period. The mode of junction of the outer aisles with the western towers also shows that the former were afterthoughts, as they project beyond the outer face of the tower wall in an awkward manner (see Plan). The junction of the south wall with the transept further indicates that the position of the former has been altered, as the lower part of a buttress has had to be cut away to make room for it, and the upper part of the buttress is left unsupported in mid-air (see Fig. 551).

The rebuilding of the nave was, doubtless, carried out during the restoration subsequent to the ruin caused by the “Wolf of Badenoch,” in 1390. This restoration is in the style of the Scottish decorated work{136}

[Image unavailable.]

Fig. 551.—Elgin Cathedral. South Side of Nave.

{137}

which flourished during the fifteenth century. It should, however, be kept in view, as above pointed out, that some of the details of the west window of the south aisle wall and the south porch seem to indicate that the south wall had been extended to its present position in first pointed times. The restoration in the decorated period (after the great destruction of 1390) may, therefore, have proceeded on the earlier lines of the thirteenth century. The traceried windows of the south aisle are clearly of the decorated period. The corbels which carry the arches in the towers, in the bay of the interior next the west doorway, are also of fifteenth century work.

There have been cross walls dividing some bays of the outer aisle into chapels. Of these some fragments can be traced in the south aisle, and a few of the piscinas and ambries still remain.

The chapter house (Fig. 552) appears to have been originally built about the same time as the east part of the choir, the buttresses being similar in design, but it was afterwards considerably altered.

As it now stands, the chapter house is practically a structure of the late pointed period. It is the only example remaining in Scotland of a similar detached octagonal edifice, with central pillar and vaulted roof (Fig. 553). It is 37 feet in internal diameter on the ground floor; but the walls have the peculiarity that, about 8 feet above the floor, they are corbelled out, and overhang towards the interior. On the side opposite the entrance where the bishop’s seat stood the corbelling is carried on an arcade of five arches, enriched with third pointed ornaments. On the other sides the corbelling is horizontal, with foliaged caps and corbels at intervals, and detached leaf ornaments in the mouldings.

It is apparent from the alteration of the masonry of the exterior that the windows have been inserted in an older structure. Probably the chapter house suffered so severely at the hands of the “Wolf of Badenoch” that it had to be almost rebuilt. The interior of the walls appears to have been relined with ashlar work when the restoration took place, new vaulting being erected and enlarged windows introduced at the same time. The new facing of the interior of the wall is carried round all the sides, except that in which the entrance doorway is situated. There it stops short, and the old wall is visible. This lining accounts for the unusual projection of the upper part of the wall above mentioned (see Fig. 553).

The designer of the restoration of the chapter house has apparently thought that the original floor space might thus be retained without diminishing the stability of the structure, which is well buttressed on the exterior, and he has ingeniously calculated that the additional weight thrown by the corbelled out thickness on the interior of the walls would serve as a counterpoise to the outward thrust of the vaulting. The latter springs from a single vaulting shaft in each angle of the building, resting{138}

[Image unavailable.]

Fig. 552.—Elgin Cathedral. Chapter House from South-West and South Aisle of Choir.

{139}

[Image unavailable.]

Fig. 553.—Elgin Cathedral. Chapter House: Interior.

{140}

on a carved head, and having a foliaged cap. The vaulting has ridge ribs and liernes, and is evidently founded on English examples. The intersections of the ribs are provided with ornamental bosses. The windows are large, and were divided with mullions and tracery of the middle pointed style, most of which is now demolished.

The central pillar is octagonal, and consists of alternate rounds and hollows, the former having distinct bases and foliaged caps, and each of the hollows having a shield with armorial bearings inserted in the cavetto between the caps of the shafts.

The shields on the capital of the central pillar of the chapter house are as follow:—

1. On the south side facing the entrance doorway, a shield with the royal arms.

2. On the north side, immediately opposite the 1st, a sculptured figure of St. Andrew (see Fig. 553).

3 and 4. On each of the east and west sides, a shield having arms quartered thereon, viz.:—1st and 4th, a lymphad; and 2nd and 3rd, a fesse chequé, being the arms of Stewart of Lorn or Innermeth[52] reversed—i.e., the 1st and 4th quarters should occupy the position of the 2nd and 3rd, and vice versa (a mistake not unusual in Scottish heraldry).

5, 6, 7, and 8 occupy the diagonal faces of the octagon, and have shields bearing the cross, crown of thorns, hands and feet, spear, and other emblems of the Passion.

The above heraldic blazons are of some importance, as they enable us to fix approximately the name and date of the bishop under whom the restoration of the chapter house was carried out. The royal arms occupy, as is natural, the most prominent position. The east and west sides both bear the same arms, and are, doubtless, those of the bishop who presided at the time of the restoration.

There were several bishops of the name of Stewart during the fifteenth century, when the author of the restoration would naturally be looked for. These were James Stewart (1459), David Stewart (1462), and Andrew Stewart, who was elect of Moray in 1482. These bishops all belonged to branches of the family of Lorn. Bishop James Stewart lived for only two years. Bishop David Stewart was brother of the last bishop, and was parson of Spynie. “He built the great tower of Spynie Castle[53] (the Bishop’s Seat), a mighty strong house; it is called to this day David’s Tower.”[54] “This good prelate made several wise regulations; and after he had governed the see of Moray fourteen years, he died,{141} and was buried in the same aisle with his brother,”[55] viz., that of St. Peter and St. Paul on the north side of the cathedral.

In 1482, Andrew Stewart, third son of Sir James Stewart, surnamed the Black Knight of Lorn, by Joan, Queen Dowager of Scotland, the widow of King James I., was promoted to the bishopric. He had previously been Lord Privy Seal, sub-Dean of Glasgow, and Rector of Monkland. In 1477 he was Provost of Lincluden. He died in 1501, and was buried in the choir of the cathedral. Bishop Andrew Stewart thus held the see for nineteen years. It is quite possible that the restoration of the chapter house was begun by Bishop David Stewart, but it seems more likely that the arms on the pillar are those of Bishop Andrew Stewart. The figure of St. Andrew, carved on the capital on the north side, being that opposite the royal arms, seems to favour that view; and the style of a good deal of the ornament connected with the restored stone lining of the interior, such as the enrichments of the corbels, &c., agrees rather with the end than the earlier parts of the fifteenth century. The windows, with their tracery, may, however, be of a somewhat earlier date.

A stone reading desk forms part of the central pillar, being attached to the north-west side at a suitable level. A stone bench runs, as usual, round the chapter house, and the bases of the shafts in the angle rest upon it.

The entrance to the chapter house is by a vestibule opening from the north aisle of the choir. The interior of the wall over the doorway has not been thickened like the other sides, and near the top of this blank wall are four niches (see Fig. 553), now empty, and these are surmounted by a smaller niche, also empty.

On the east side of the vestibule is a small vaulted apartment, containing a stone trough, which was, doubtless, formerly used as a lavatory. In more recent times it was occupied as a living-room by the mother of General Anderson (a benefactor of the town), and the trough is said to have formed the future General’s cradle.

A wheel-stair, in the south-east angle of the chapter house, leads to the roof.

The north and south aisles of the choir have been vaulted and provided with ridge ribs and liernes. In the north aisle one bay and in the south aisle three bays of the vaulting still remain (see Figs. 552 and 548). The latter, called the Lady Chapel, has been restored in the fifteenth century, when traceried windows were inserted and the vaulting built.

In this aisle several monuments have been erected. That of Bishop Winchester (1437-58), in the wall next the choir (see Fig. 548), is a good example of the work of the period. The recumbent effigy of the Bishop{142} is in fair preservation, and some traces of paintings of angels are still visible in the interior of the vaulted canopy of this tomb. The monument to another Bishop, in the same wall, is of a simpler design.

This aisle has long been the burial-place of the ancient family of the Gordons. The central tomb at the east end is that of the first Earl of Huntly, who died in 1470.

In the north wall of the choir is an early example of a tomb of peculiar design (see Fig. 545).

[Image unavailable.]

Fig. 554.—Elgin Cathedral. Caps in Chapter House.

The remains of another monument exist at the passage from the choir to the north aisle, but so mutilated that its design cannot be made out. The details of the sedilia and piscina in the choir are also much destroyed.

A few specimens of the fine carved work collected amongst the ruins are exhibited in the chapter house. Two of these are illustrated (Fig. 554), from which some idea of the richness and beauty of the details which have perished may be gathered. These probably formed caps of the outer piers of the nave aisles.

The transepts contain some interesting monuments. In the south wall{143}

[Image unavailable.]

Fig. 555.—Elgin Cathedral. Monuments in South Transept.

{144}

of the south transept, called the Innes aisle (Fig. 555), is the canopied monument, bearing the arms (said to be) of Alexander Stewart, Duke of Albany, who died in 1481. The shield on the sinister side of the tomb bears the fesse chequé and three antique crowns, the arms of the lordship of Garioch. Another canopied monument in the south wall, to the left of the above, is said to be that of Robert Innes of Innermarkie. These monuments are late, and a good deal damaged. The coats of arms on the shields do not correspond with those of the persons named above.

The north transept, called the Dunbar aisle, also contains several remnants of tombs. One in the north wall still retains the mutilated effigy of Bishop Columba Dunbar (1422-35), and another that of Sir Alexander Dunbar of Westfield, who died in 1497. In Slezer’s time the north gable of this transept was complete, and showed in elevation two stories of three single windows in each, surmounted by a triple light in the gable.

[Image unavailable.]

Fig. 556.—Elgin Cathedral. Monument of William Hay of Lochley.

One of the most interesting monuments in the cathedral is that of a knight in full armour (Fig. 556) near the entrance to the Lady Chapel. It bears the following inscription:—“Hic jacet Wills de la Hay, quondam dominus de Lochloy, qui obiit VIII die mensis Decembris Anno Domini MCCCCXXI.” He was of the family to whom Inchoch Castle belonged, which lies a short way west of Forres.[56]

Amongst the mutilated fragments of sculpture preserved at the cathedral is a portion of a gigantic statue, said to be that of Bishop John Innes (1407-14). It was found at the base of the north-west pillar of the central tower, of which that bishop commenced the erection. The{145} inscription on his tomb was as follows:—“Here lieth in Christ the Rev. Father and Doctor of Divinity John de Innes who began this distinguished edifice and for seven years sedulously continued the building.”[57] The tower was rebuilt in 1538 (as already mentioned), and a representation of it, as it existed in 1693, may be seen in Slezer’s view. It is there shown as a plain, square erection, with a large window on each side, and colossal statues at the angles. The so-called statue of “Bishop Innes” is, doubtless, one of these; but whether it formed part of the original tower of the fifteenth century, and was replaced on the rebuilt tower of the sixteenth century, or was a new statue of the latter date, it is difficult to decide.

The following is a short epitome of the dates of the different portions of the cathedral as pointed out in the foregoing description:—

The transept was erected about the date of the foundation of the cathedral in 1224. It may possibly have formed part of the previous Church of the Trinity, but seems more likely to have been built after the conversion into the cathedral.

The western towers follow soon after, being of early first pointed work. The western portal is somewhat later than the towers.

The west part of the north wall of the choir appears to be older than the remainder of that portion of the edifice, and this may possibly have been part of the original Church of the Trinity; but the general work of the choir and nave and the original chapter house would appear to have been carried out during the thirteenth century. The first pointed work would probably be all completed shortly before the War of Independence, which stopped all architecture in Scotland for a long period.

The cathedral was then practically completed, and so remained for about a century.

The next great change occurred after the destruction of the edifice by the “Wolf of Badenoch” in 1390. The nave and chapter house would appear to have been much destroyed, and were almost rebuilt during the fifteenth century. The west front above the portal and the whole of the nave were, doubtless, reconstructed about the time of Bishop Columba Dunbar (1422-35). The chapter house appears to have been restored in the time of Bishop David Stewart (1482-1501). The architecture of the nave and chapter house corresponds with the respective dates of these prelates, and also bears their coats of arms engraved on each department.{146}

PLUSCARDEN PRIORY, Morayshire.

This monastery was one of the three houses of the order of Valliscaulium founded under Alexander II. in his recently acquired dominions in the Highlands, the other houses of the order being at Beauly, in Inverness-shire, and Ardchattan, in Argyleshire.

The policy adopted by David I., in the twelfth century, of extending civilisation and order by the planting of religious houses, was thus continued by his successor in the thirteenth century. We have seen how Alexander II. encouraged the building of Elgin Cathedral, and it is recorded that, besides the above monasteries, he endowed religious houses in Elgin for the Dominicans and Franciscans.

Pluscarden Priory stands in a long, well-sheltered valley, about six miles south-west from Elgin. The hills on either side are of moderate height, and the glen is well planted and cultivated. The priory, which is dedicated to St. Andrew, stands on a level holm on the bank of the Blackwater, and has a southern aspect at the base of a wooded hill. It is surrounded with fine old trees, and the ancient gardens and precincts of the monks are now cultivated as a thriving nursery, and kept in beautiful order. Part of the ancient wall of the precinct, with a gateway towards the east, is still preserved. The climate is mild and suitable for the growth of vegetation, as is apparent from the very luxuriant crop of ivy which covers the buildings and almost entirely conceals their architecture.

The first charter of Alexander II. is dated in 1236, and endows the monastery with the whole valley of the Blackwater, and with mills in Elgin.

Little is heard of the priory for many years after its institution beyond the usual disputes with the neighbouring lay proprietors regarding boundaries, &c., but the establishment seems to have gradually dwindled, and in 1398 the buildings had been allowed to fall into disrepair. The election of Alexander as superior at that date proceeded on the expectation that he would be able to defend the possessions of the monastery and repair the church and dwellings of the monks.

During the fifteenth century it seems to have fared ill with the monastic establishments of Morayshire, for we find that the priory of Urquhart, in that county, founded by David I. in 1125, had also dwindled like Pluscarden.

In 1454 John Benaly, prior of Urquhart, whose brethren consisted of only two monks, petitions Pope Nicholas V. that he would unite the priory of Urquhart to that of Pluscarden. He states that, owing to various calamities, the income of the priories had so diminished that they were unable to support a prior in each house with a decent and competent number of religious men, or to keep up the buildings and services; so{147} that in Pluscarden there were generally not above six monks, and in Urquhart only two.[58]

It is stated by Shaw and other writers that the monks of Pluscarden had become vicious, and that, therefore, the priory was reformed and made a cell of Dunfermline.

It appears, however, that the change arose as above described, and, after due inquiry, William de Boys, Sacristan of Dunfermline, was, in 1460, appointed Prior of Pluscarden and Urquhart, and John de Benaly, formerly Prior of Urquhart, was made Sacristan of Dunfermline. The Valliscaulians, or White Monks, were then superseded by the Black Benedictine Monks from Dunfermline, and the priory became dependent on that house.

The last Benedictine prior was Alexander Dunbar, who died in 1560, and the first lay prior was Lord Alexander Seton, afterwards Earl of Dunfermline, who obtained possession of the abbey and lands. The monks do not appear to have been disturbed at the Reformation, but were suffered to die out gradually, as one monk still remained in 1586. After passing through the hands of various proprietors, the priory and lands were acquired by the Earl of Fife, and are now the property of the Duke of Fife, by whom the edifice and its surroundings are carefully attended to and kept in good repair.

The existing buildings (Fig. 557, Plan) consist chiefly of the remains of the church, comprising an aisleless choir, north and south transepts with eastern aisles, and a square tower over the intersection. There is no nave, that portion of the structure having, apparently, never been erected. The monastic buildings consist of the sacristy, which lies to the south of the transept, and is known as St. Mary’s aisle; the chapter house; the slype and the monks’ hall, which all extend in a line further southwards, the whole forming the east side of the cloisters. The cloister garth measures 102 feet by 94 feet, and is surrounded by a wall partly ancient. To the south-east lies a detached ruin, supposed to have been the prior’s house. The oldest parts of the edifice are the transepts, with their eastern aisles, which are in the first pointed style, and were, doubtless, built during the thirteenth century, soon after the foundation. The transept measures 93 feet 6 inches in length, and, including the aisles, is 46 feet in width within the walls.

The sacristy, or lady chapel, which extends along the full breadth of the south end of the transept and aisle, is probably of the same date. The design of the north end of the transept (Fig. 558), which was probably built about the same time as Elgin Cathedral, has some resemblance to the east end of the choir of that edifice, but is much plainer. It exhibits two stories of pointed windows, with a large circular window above, now built up. This wall also contains the only well-preserved{148}

[Image unavailable.]

Fig. 557.—Pluscarden Priory. Plan.

exterior door to the church. There is no triforium, but the clerestory on the east side is lofty, and has internally a high pointed and trefoiled{149}

[Image unavailable.]

Fig. 558.—Pluscarden Priory. North Transept.

arcade, with a passage in the thickness of the wall. Externally, the windows of the clerestory of the north transept are plain pointed arches. Throughout the building the windows are mostly designed as triplet lancets, enclosed in one pointed arch (Fig. 559). In some cases the enclosing arch{150}

[Image unavailable.]

Fig. 559.—Pluscarden Priory. View from South-East.

{151}

[Image unavailable.]

Fig. 560.—Pluscarden Priory. East Side of South Transept.

assumes a segmental pointed form, which enables the side lancets to be carried higher than in the ordinary arch. This is observable in the clerestory of the south transept (east side), both in the exterior and interior (see Figs. 559 and 560). The mode in which the face of the wall in the inside of the clerestory passage is carried in this position is very effective, and well worthy of notice. A somewhat similar arrangement is carried out in the clerestory on the west side of the south transept (Fig. 561), but is modified over the arch into the nave, so as to allow of the wall passage being carried up a few steps in the thickness of the wall. This arrangement forms a kind of triforium. The moulded work of the transepts is simple, and the shafts, caps, and arch mouldings are distinctly of first pointed date. But this part of the structure has been dreadfully{152} damaged, the shafts of the piers, with their caps and bases, having all been burned, and have crumbled away, presenting a most disfigured appearance. This appears to have been the result of the fire afterwards referred to.

[Image unavailable.]

Fig. 561.—Pluscarden Priory. West Side of South Transept.

Both in the choir and the crossing there are signs of great alterations and repairs. It is thought that the building must have suffered severely from fire at some time, having probably been burned by the “Wolf of Badenoch,” in 1390, when Elgin was destroyed. The work which has subsequently been done indicates that a considerable amount of strengthening was found necessary. The western piers of the crossing have been in great part burned away, and are strengthened with new masonry; and the opening between the north pier and the south pier is built up (see Plan). On the east side of the crossing a plain double wall has been{153} erected between the piers, so as to support the arch above, which carries the tower. In this double wall an archway, only about 7 feet in width, leads into the choir. To the north of the archway a staircase in the centre of the double wall led apparently to a gallery above, while the space within the double wall to the south of the archway forms a large closet.

Traces of painted decorations are still visible in the vault over this part of the church. These consist now of a few gilt stars on a blue ground; but when Cordiner wrote, about one hundred years ago, he was able to identify the portrait of St. John under a canopy, accompanied by his eagle, also a rainbow, and the sun, moon, and constellations.

The choir, which has no aisles, measures 56 feet in length by 27 feet wide internally. It has originally been constructed in a light manner, with very wide window arches, having small piers and buttresses between them, and it seems to have been vaulted, or intended for vaulting, the springers of the vaults being visible in the interior (Fig. 562). But this mode of construction was evidently found too weak, and it became necessary to partly build up the great arches of the windows and to introduce much smaller windows within them. The choir is so densely covered with ivy that these features are not easily detected on the exterior (Fig. 563), but in the interior view (see Fig. 562) they are plainly visible. At what period the choir was built it is difficult to say. The exterior buttresses, so far as visible through the ivy, might be considered of an early form, but they resemble those of the lady chapel of Elgin and other structures in the North, which are not very early. The large vesica piscis over the east window arch, and the trefoiled triangle in the gable, are likewise rather late features (see Fig. 559). Keeping in view the great size of the intended windows, which were clearly meant to be filled with tracery, and the small caps of the jambs, both exterior and interior, the building may be ascribed to the fifteenth century. Probably the first design with the very large openings may have been carried out early in the fifteenth century, soon after Alexander the prior was appointed, who was expected to improve the buildings of the priory, which had fallen into decay.

The insertion of the smaller windows, and the strengthening masonry within the wide openings, may have formed part of the restoration of the dilapidated structure which William de Boys would be sure to institute when he and his Benedictines took possession of the priory in the middle of the fifteenth century. We shall see that parts of the chapter house and other portions of the structure may be attributed to the same revival.

The reduced side windows of the choir contain portions of late tracery, and in the filled in mason work of each is inserted a dedication cross (see Fig. 562), which seems to point to a new dedication of the restored edifice. The design of the smaller windows introduced within the arch{154} of the very large east window is remarkable (see Figs. 559 and 562). The four small pointed arches, surmounted by a traceried window above, faintly recall the east windows of Elgin Cathedral, while the peculiar tracery of the upper window plainly indicates a very late date.

[Image unavailable.]

Fig. 562.—Pluscarden Priory. Interior of Choir.

{155}

[Image unavailable.]

Fig. 563.—Pluscarden Priory. Tower, and South-East Angle of Choir and Transept.

The square tower over the crossing is seen (see Fig. 563) to rise externally only a short way above the apex of the roofs of the choir and{156} transept. Like the choir, it has been intended to be vaulted, the springing stones being still visible (see Fig. 558); but the supports were either found to be too light, or were so damaged by the fire that, as above mentioned, the piers and arches had to be strengthened with supporting walls brought up from the foundation. The upper part of the tower appears to have originally been of the date of the transept, and to have been restored, like the rest of the edifice, at a later period. This is evident from the shape of the window openings, which are of first pointed work, and also from the corbels of the parapet, some of which are original and of early form, while others, which have been restored, are of the late form common in the churches and castles of the fifteenth and sixteenth centuries. The large trefoil apertures have suffered from the fire, and have been built up.

To the north of the choir is a small vaulted structure about 16 feet square, called the Dunbar Vestry (see Plan). It is evidently of late date, and its style supports the tradition that it was erected by Prior Dunbar shortly before the Reformation. It is vaulted, and bears the arms of Dunbar on one of the bosses.[59]

[Image unavailable.]

Fig. 564.—Pluscarden Priory. Sacrament House in Choir.

Apparently of the same date is the sacrament house (Fig. 564) inserted in the north wall of the choir, and a door between the choir and vestry, which has the three-sided arch common at the period. On the north side of the vestry are some remains of a door and wheel stair, the latter of which appears to have led to the roof. The position of the vestry is very awkward, being placed within two feet of the transept aisle, the windows of which are thus almost obscured by it.

The part of the church lying immediately to the south of the transept is called the sacristy, or the lady chapel. It is vaulted, and from the form of the mouldings, caps, window, &c., is evidently of the same date as the transept. The vaulting at the west end has been partly rebuilt, and a fireproof closet formed in the angle, no doubt for the purpose of containing valuables used in the service. At the east end a ruined opening into the transept seems to have been a squint to allow the service{157} at the altar to be seen from the transept. Traces of colour are still observable here, but in Cordiner’s time many emblematic paintings were visible.

To the south of the sacristy is the chapter house, and beyond it the slype. These have been restored within recent times, and the east windows renewed in the same pointed segmental form as the old ones. The doors and windows to the west have also been partly renewed.

The sketch of the chapter house (Fig. 565) shows the interior looking north-west, with the double door and two side windows which face the cloister. The apartment is about 29 feet square, and has a central pillar on which the vaulting rests. A figure of the Agnus Dei may be observed on one of the bosses. The chapter house has evidently, from the first pointed details visible in the door, windows, and corbels, been erected in the thirteenth century; but the details of the central pillar, with its slender shafts introduced amongst the mouldings, clearly indicate a restoration of the chapter house at a date well advanced in the fifteenth century. The fireplace is of modern design.

Still further to the south is the monks’ hall or fratry (Fig. 566), a chamber 45 feet long by 28 feet wide. It is vaulted, and the vaulting is carried by two central pillars. These are plain octagons, into which the chamfered ribs of the arches die. The tracery in the window at the south end is modern, but the large opening is old, having been made so as to admit as much sunshine as possible from the south. This apartment is now used for service by the Free Church of the district, and contains the old pulpit, brought from the ancient church of St. Giles in Elgin, when it was rebuilt, an interesting example of florid Renaissance carving. There can be little doubt but that all these buildings south from the lady chapel belong chiefly to the restoration instituted by the Benedictines in the fifteenth century.

In the interior of the south-west angle of the transept may be observed a wide stone staircase. This leads to the upper floor of the buildings which lie to the south of the transept, and were formerly the monks’ dormitories. One small room over the lady chapel may possibly have been a scriptorium or an oratory. This part of the domestic edifices has now been restored and roofed in, and set aside by the Duke of Fife as a place of shelter and amusement for the visitors to the priory.

The cloister garth is planted with shrubs and kept in good order. Owing to the slope of the ground there have been steps up to the south entrance to the garth, and there still remain steps at the north door, which is a semicircular doorway of good, though late, design. It is evidently meant for a reproduction of Norman work.

Another doorway is still preserved at the south-west angle of the cloister, which was probably the entrance to the refectory. Owing to the{158}

[Image unavailable.]

Fig. 565.—Pluscarden Priory. Chapter House, looking North-West.

{159}

[Image unavailable.]

Fig. 566.—Pluscarden Priory. Interior of Fratery.

{160}

slope of the ground, the refectory and fratry have been raised on vaulted cellars.

Of the prior’s house only the ruins of some of the walls remain. These show that it has been extensive, but there are no features to give a clue to its date. Some remains of the priory mill, which adjoined the prior’s house, are also still observable.

ST. MUNGO’S CATHEDRAL, Glasgow.

The site on which this cathedral stands has been devoted from very ancient times to religious uses. It is associated with the name of St. Ninian, who is reported to have founded a church here in the beginning of the fifth century. This site was also the scene of the labours of St. Kentigern, or Mungo, who revived religion in the locality in the sixth century, and is said to have established an episcopal see. Here the meeting took place between him and St. Columba, on which occasion, as a sign of friendship, they exchanged their pastoral staves. The place was further sanctified by becoming the last resting-place of St. Mungo’s remains.

During the political changes which occurred in Strathclyde in the following centuries Christianity seems to have been almost obliterated. But in the twelfth century the revival of religion begun by Queen Margaret had penetrated into this region, and was fostered by her son David, Prince of Cumbria. In 1115 he restored the see of Glasgow, and appointed his tutor John (called Achaius) to the bishopric. In order to provide it with suitable means, an inquisition was made, in 1120, concerning the lands which had formerly belonged to the church of Glasgow. In 1124, John, the first of the new line of bishops, began to replace the ancient church which had previously existed with a new structure, which was doubtless raised on the site of the old one. This church was consecrated in 1136, in presence of the king and his retinue.

Bishop Joceline, previously abbot of Melrose, was consecrated in 1175. Under him, and by his influence, the burgh received many privileges, and advanced in prosperity. Between 1189 and 1192 he was engaged in restoring or adding to the building.

The original church of Bishop John, “built, perhaps, chiefly of wood,” had been recently destroyed by fire. Through the exertions of Bishop Joceline a society was founded to collect funds for its restoration, and the work was sufficiently advanced for consecration on 6th July 1197.[60]

It was generally believed, at one time, that the existing choir and lower church were erected by Bishop Joceline; but it has been shown by Mr. John Honeyman, architect, in various papers on the subject, published at various times during the last forty years, that only a small{161} part of the structure which now exists may possibly be of the time of that bishop.

According to Mr. Honeyman, a portion of the lower church, situated at its south-west angle, and extending from the transept eastwards to the third buttress of the choir, and including one bay and a half, shows some differences in its style of architecture from the remainder, and may be regarded as of the transition style, and may thus be of the date of Bishop Joceline; while the remainder of the lower church and the whole of the choir are built in the first pointed style, and cannot be earlier than the second quarter of the thirteenth century. The actual builder of the lower church and the choir above, as they now exist, was Bishop William de Bondington (1233-1258). A large part of the structure was completed before his death in the latter year, and the style of the work thoroughly corresponds with his period. In 1242 an ordinance was made for a national collection annually during Lent in aid of the building.[61]

According to Mr. Honeyman, the foundations of the nave were laid, and part of the walls was carried up, before the building of the choir was begun.

Most of the nave appears, from the style of its architecture, to have been chiefly erected at the end of the thirteenth or the beginning of the fourteenth century, but there is no record of its construction. It forms one of the finest examples of the late first pointed or early decorated style in Scotland.

Bishop Wishart occupied the see during the greater part of the War of Independence, and supported the Scottish party on all occasions. He obtained permission from Edward I. to cut timber in the forest of Luss for the purpose of erecting the spire of the cathedral; and it was one of the causes of accusation against him which led to his imprisonment in England that he had used the timber so obtained, not for building the spire, but for making engines of war with which to attack Edward’s forces.

The wooden spire of the cathedral, which was erected during the fourteenth century, was struck by lightning and destroyed in 1400. A new tower of masonry was erected over the crossing by Bishop Lauder (1408-25), who carried the work as high as the main parapet. This bishop appears also to have begun the completion of the chapter house, a detached structure lying to the north-east of the choir. The walls of this building were partly erected about the time of the construction of the choir, but were afterwards raised to two stories in height and vaulted by Bishop Cameron.

Bishop Lauder was succeeded, in 1425, by Bishop Cameron, called “The Magnificent,” from his lavish expenditure and the splendour of his Court. He erected the stone spire above the tower of Bishop Lauder, and also completed the chapter house wing containing the sacristy on the upper floor and the chapter house on the ground floor. His arms are{162} still to be seen on the portions of the structure erected by him. The beautiful rood screen was also probably constructed by him.

During Bishop Cameron’s reign the episcopal see was at the highest point of its power and splendour. The prebendaries, who were originally seven in number, were now increased to thirty-two, and the bishop required that they should all have manses,[62] and reside near the cathedral. The Episcopal Court thus became of great extent and importance, and was said to rival that of the king. Bishop Cameron died in 1446. He was succeeded by Bishop William Turnbull, the founder of Glasgow University. His arms appear on the upper part of the chapter house wing.

Bishop Robert Blackadder was consecrated in 1484. We have already met with this prelate in connection with Jedburgh Abbey and Edrom Church. In his time the see was erected into an archbishopric. A building in continuation of the south transept, called Blackadder’s Aisle, was partly erected by him, but was never carried higher than the ground story or crypt. This archbishop was the last occupant of the see who added much to the adornments of the cathedral. He founded altarages, and erected two altars, on which his arms and initials are carved, in front of the rood screen.

Towards the middle of the sixteenth century, it became apparent that the end of the episcopal reign was approaching. Archbishop James Beaton first withdrew all the treasures and valuables from the cathedral into the bishop’s castle; but, finding himself and them insecure there, he retired to France, taking with him what valuables he could, and also the records of the see from the earliest period. The latter were deposited in the Scots College in Paris, and at the time of the French Revolution they were partially saved by the Abbé Macpherson, and sent back to Scotland.

These records have now been published by the Maitland Club under the title of Registrum Episcopatus Glasguensis, with a valuable introduction by the editor, Professor Cosmo Innes.

The cathedral is situated on steep ground sloping eastwards towards the Molindinar Burn, which here runs through a narrow valley on its way southward to the Clyde, which is only a short distance off. Opposite the cathedral, on the eastern bank of the burn, there rises a steep conical hill, now a many-monumented cemetery, from which fine bird’s-eye views of the building may be obtained. The surroundings of the edifice have changed many times since it was built. Till after the Reformation there stood at the west end of the cathedral the Bishop’s Palace, a great fortress covering some acres of ground; but of its many buildings, walls, and towers not a shadow is left. The manses of the prebends have likewise disappeared, and even the Molindinar Burn is buried as a sewer deep below the present surface of the valley. The cathedral is surrounded by the old churchyard, a large open space free from houses, and the structure can thus be well seen on all sides.{163}

[Image unavailable.]

Fig. 567.—St. Mungo’s Cathedral. View from West, showing Western Adjuncts, now removed.[63]

Although built at different dates, the edifice has a very homogeneous appearance, and might easily be mistaken at first sight for a building of one period. The structure has a gaunt and stern aspect, and greatly wants some salient features to break its rigid outline. Such features existed till about the middle of this century in the shape of two projecting adjuncts at the west end (Fig. 567), the one on the north side being a tower crowned with a pointed roof, and the other, called the consistory house, being a lower building, which finished like a pele tower with a crow-stepped roof and a cape house. These structures have now been removed.{164}

[Image unavailable.]

Fig. 568.—St. Mungo’s Cathedral. View from South-East.

In the external length of the church, a distance of about 330 feet, the ground falls from west to east about 15 feet. This fall required the walls of the eastern part to be raised so as to bring them up to the level of the western part, and this under-building was made available as a lower church. This lower church forms one of the finest and most characteristic features of the edifice. It extends the whole length from the transept to the east end, and is entirely above ground. It is supposed that the building has been placed on this sloping ground, and not on the higher and leveller site a little to the westwards, in order that the most sacred part, containing the high altar, might be situated immediately over the sup{165}posed site of the original tomb of St. Mungo, which would, doubtless, be beneath the east end of the primitive church.

The cathedral, as seen from the east end, with the lower church and the choir towering above it, is very lofty and imposing (Fig. 568), and surpasses the view obtained from the west end (Fig. 569) on emerging from the streets of the city.

The edifice consists (Fig. 570) of a nave of eight bays, with side aisles measuring about 122 feet in length by 61 feet 9 inches in breadth within the walls (the whole length of the edifice being of this width); transepts, which do not project beyond the aisles; a choir of five bays, with side aisles and an aisle at the east end of the same height as the north and south aisles, with chapels beyond it. Entering from one of the eastern chapels is the sacristy or vestiarium at the north-east corner of the choir. A wide staircase leads down from the crossing on each side to the lower church, or crypt, as it is usually called (Fig. 571), and from the lower church is the entrance to the chapter house, immediately below the sacristy. On the south side of the church, and in continuation of the south transept, is situated another low church or crypt, called “Blackadder’s Aisle;” and on the north side, opposite the west bay of the choir, are the foundations of what has apparently been intended to be a large chapel. Over the crossing rise the tower and spire to the height of 217 feet. The church measures about 283 feet in length by 61 feet 9 inches in breadth within the walls, and the central alley of the nave and choir measures between the pillars about 25 feet 3 inches.

As already mentioned, the most ancient part of the structure, according to Mr. Honeyman, is the portion of the lower church at the south-west angle. Mr. Honeyman’s theory is that the church built by Bishop John (Achaius) was restored by Bishop Joceline at the end of the twelfth century, and that the above portion at the south-west angle formed a chapel, and was part of that restoration.[64] He supposes that this chapel, situated in a corner of the old building least likely to be interfered with by the proposed operations, had been preserved as a receptacle for relics while the choir and lower church were being rebuilt by Bishop Bondington in the thirteenth century. Mr. Honeyman points out that one shaft and cap in the east wall of the above chapel and part of the wall adjoining, into which the shaft-stones are bonded, are of the transition style, and correspond with some other fragments of the same style which have been discovered lying loose, and which all appear to have been part of the work carried out in Bishop Joceline’s time. The vaulting of this south-west chapel is also of transition character; but from other indications it is thought that this vault has probably been rebuilt with old materials. These indications are that the shafts, with{166}

[Image unavailable.]

Fig. 569.—St. Mungo’s Cathedral. View from West.

{167}

[Image unavailable.]

Fig. 570.—St. Mungo’s Cathedral. Plan of Nave and Choir.

{168}

[Image unavailable.]

Fig. 571.—St. Mungo’s Cathedral. Plan of Lower Church.

their caps and bases, both of the north and south sides of the chapel, are of later character, those of the south side being similar to the corresponding features of the nave and those of the north side resembling the same features in the lower church, and having been, doubtless, renewed when the lower church was re-erected. The floor of this south-west chapel is 15 inches above the level of that of the lower church. The exterior base differs in design from that of the rest of the lower church, and indicates an earlier date. Mr. Honeyman is of opinion that when the south staircase to the lower church was erected this small chapel stood in the way, and prevented the stair from being carried out in the same manner as that on the north side, which was executed according to the architect’s design. The eastern wall of the chapel was afterwards cut through so as to provide access from the south stair to the lower church. The north staircase to the lower church was not impeded, as the south one was, by the{169} above chapel, but was carried out according to the architect’s design, and possesses a handsome early pointed doorway, where it enters the lower church.

Mr. Honeyman then goes on to show that the same base as existed on the outside of the ancient south-west chapel is continued round the nave, which fact supports his view that the nave was founded and the walls partly erected before the choir was built by Bishop Bondington. As pointed out by Mr. Honeyman, the bases of the vaulting shafts and part of the side walls of the nave aisles (more on the north side than the south side) were apparently executed at an earlier date than the choir. “The bases of the shafts on the bench-table of the aisles, with their delicate mouldings and square plinths, belong to an earlier period than anything to be seen in the choir.” But when Bishop Bondington came on the scene and resolved to reconstruct the whole choir, the work at the nave was stopped, not to be resumed for about a century.

[Image unavailable.]

Fig. 572.—St. Mungo’s Cathedral. Plan and Section of Respond and Base of Nave Aisles.

With reference to Mr. Honeyman’s views, as explained above, there is, undoubtedly, considerable difficulty in accounting for the numerous peculiarities of the small chamber or chapel at the south-west angle of the lower church; and it is quite likely, as Mr. Honeyman suggests, that this may have been part of an earlier building preserved when Bishop Bondington carried out the work at the choir and lower church. That there was a good deal of early thirteenth century work done in the nave there can scarcely be any doubt. Indeed, it is owing to the nave having been commenced with this early work that it has retained, in its later portions, which form the completion of the work formerly begun, so much of a first pointed character. The annexed sketch (Fig. 572) shows the plan and section of the lower part of the responds of the nave aisles which Mr. Honeyman relies on for proving their early character as com{170}pared with the work in the choir; and this will be at once recognised in the keel-shaped shaft and the square plinths and delicate mouldings of the bases. The junction of the external base of the south-west angle or chapel with that of the lower church and the sections of the bases are also shown (Fig. 573). The earlier and simpler character of the base of the south-west angle is apparent. This early base is continued round the whole of the nave (passing through Blackadder’s Aisle), and corresponds in style with the early design of the bases of the interior wall shafts of the nave shown above.

[Image unavailable.]

Fig. 573.—St. Mungo’s Cathedral. Buttresses at South-West Chapel, and Sections of Bases of Nave, Choir, and Blackadder’s Aisle.

In the south wall of the south-west angle or chapel there is a shaft with the same plan as the responds in the nave aisles, having, like them, the keel edge and cap with first pointed mouldings (Fig. 574); while in the lower church and choir the angle shafts have all the fillet on edge and first pointed caps, as shown in the same Figure.

[Image unavailable.]

Fig. 574.—St. Mungo’s Cathedral.
Details.

That there has been transition work in connection with the building is evident from the fragments preserved in the chapter house, of which specimens are shown (Fig. 575). Some pieces of groin ribs (Fig. 576) are also preserved, which have a similar section to those of the south-west angle or chapel, and a transition base with square plinth and spurs at the angles. These transition fragments confirm Mr. Honeyman’s view as to the vault of the south-west chapel having been constructed with old{171} materials when the north wall of the chapel (the details of which correspond with those of the lower church) was rebuilt and the chapel converted into a passage to the lower church.

[Image unavailable.]

Fig. 575.—St. Mungo’s Cathedral. Fragments in Chapter House.

It is most difficult, owing to the darkness of the place, to obtain accurate sketches, but the annexed diagram (Fig. 577) gives an idea of the shaft in the east wall of the south-west chapel and its cap, on which Mr. Honeyman lays stress as proving their transition character. The abacus is transitional in section, but the carving is undoubtedly first pointed. Mr. Honeyman thinks that the cap may have been left rough at first, and the carving executed in first pointed times.

Whether this shaft and cap and the vaulting of the south-west chapel are transitional, or of the early first pointed date of the lower part of the nave walls, there can be no doubt that Mr. Honeyman’s main contention is correct—viz., that part of the south-west chapel and the lower part of the walls of the nave were constructed before the rebuilding of the lower church and choir was carried out by Bishop Bondington about the middle of the thirteenth century.

[Image unavailable.]

Fig. 576.

St. Mungo’s Cathedral.

Detached Rib.

The lower church (see Fig. 571) is about 125 feet long, and is about 17 feet in height at the west end; but owing to a fall in the level of the floor at the east end, the height of the vault at that end measures about 4 feet more than at the west end. From the choir floor to the floor of the lower church the height is about 19 feet 3 inches. In order to obtain this height, the floor of the choir is raised about 3 feet above that of the nave. The height of the choir from the floor to the apex of the roof inside is 74 feet 6 inches.{172}

The following are the entrance doorways to the cathedral—viz., a wide double entrance doorway at the west end of the nave, and a south doorway in the second bay from the west end. There are also north and south doorways in the lower church, and a doorway from the landing of the north stair to the lower church.

[Image unavailable.]

Fig. 577.—St. Mungo’s Cathedral.

Pillar and Rib in South-West Angle of
Lower Church.

The lower church (see Fig. 571), supporting as it does the choir with its aisles and the east aisle with its chapels above, conforms in its structural arrangements to the plan of the upper church. Thus all the pillars in the simpler plan above are supported by pillars in the more complicated plan below. In the latter, between each of the main piers of the arcade, lesser piers are introduced; so that while there are four pillars and five bays on each side of the choir above, there are nine pillars and ten bays in the church beneath. The central area of the lower church is further subdivided by a simple and beautiful scheme of pillars and vaulting, which is arranged in the following manner (Fig. 578). A central shrine of four slender pillars (Fig. 579) is placed opposite the sixth bay, counting from the eastern aisle, and is situated under the high altar of the choir. This shrine is made the centre of the scheme for the vaulting of three bays on each side; the remaining bays on the east and west being treated so as to form a variety both in the piers and vaults. From the shrine as a centre a single central pillar is introduced in the spaces to the east and west, and in the bays beyond them two pillars are introduced in the breadth, and the vaulting is varied so as to suit this arrangement of the pillars (Figs. 580 and 581). The vaulting of the lower church is a masterpiece of design, and produces by very simple means a wonderful variety of effect. It is analysed by Sir G. Gilbert Scott in his lectures, and greatly commended. This vault has been the subject of very careful examination by Mr. T. L. Watson, architect, Glasgow, who points out that it must have been erected at a later period than the rest of the choir. This he proves from the mouldings, which are of a later character than those of the choir. His view is that the original intention was to vault the central aisle with a series of cross vaults similar to those in the side aisles, and he points out that the springers for these vaults were built along with the piers. The central{173} vault, however, was delayed for convenience of building operations till after the upper portions of the choir were finished, and, when this vault came to be executed, the architect had devised the more beautiful scheme which is actually carried out. This required some alteration of the springers, and Mr. Watson draws attention to the points where the alterations are visible. He also points out that the two central east windows of the lower church are different from the others (see Fig. 568). The latter are all double lancets, whereas the former have each one large arch enclosing two smaller ones. The larger arches would be left open during the progress of the work for the introduction of building materials, and the filling in of the smaller arches would be done after the building was completed.

[Image unavailable.]

Fig. 578.—St. Mungo’s Cathedral. Plan of Lower Church, showing the Vaulting.

The new scheme of vaulting was, doubtless, so arranged as to leave{174} the original grave of St. Mungo undisturbed, and allow the new shrine to be erected over the sacred spot.

[Image unavailable.]

Fig. 579.—St. Mungo’s Cathedral. Shrine in Lower Church, from South-West.

The eastern part of the lower church is treated in a manner similar to the east aisle and chapels over it, except that in the former the chapels are divided by solid walls (containing arched openings) running between the piers and the east wall. The object of these cross walls has been to{175}

[Image unavailable.]

Fig. 580.—St. Mungo’s Cathedral. Lower Church: Bay near East End.

give solidity to the lower part of the structure. In the upper church the pillars between the aisle and the eastern chapels stand free, but to have{176}

[Image unavailable.]

Fig. 581.—St. Mungo’s Cathedral. Lower Church, near East End.

continued these free standing piers down through the lower church would {177}have made the construction weak. Even with the walls between the

[Image unavailable.]

Fig. 583.—St. Mungo’s Cathedral. Doorway to Chapter House.

{178}

chapels in the lower church the construction has proved insufficient, and at this part of the edifice considerable signs of disturbance are observable. The cross walls contain open arches, each with a piscina and credence table; and the central one contains a monument. This is believed to be the effigy of Bishop Wishart (Fig. 582), but as the space is too short to contain it, the lion at the feet has had to be cut away in order to enable the effigy to be placed where it is. It, therefore, seems to have been brought from another site.

[Image unavailable.]

Fig. 582.—St. Mungo’s Cathedral. Effigy in Lower Church.

In the northmost chapel is the entrance to the chapter house, which corresponds in style with the lower church (Fig. 583), and has apparently been built about the same period. The main wall shafts of the chapter house (Fig. 584), with their rounded and moulded caps and bases, correspond with those of the lower church, and the windows are also of corresponding design (see Fig. 597), except that the external bases of the window shafts are of a later date. The chapter house would appear to have been left incomplete for a long period, and to have been heightened and finished in the fifteenth century, as will be pointed out. The doorway (see Fig. 583), which is in the first pointed style and very ornamental, was evidently designed to give access to it.

[Image unavailable.]

Fig. 584.—St. Mungo’s Cathedral.

Details of Wall Shafts of Chapter House.

The plain cross vaulting of the side aisles of the lower church corre{179}sponds with the piers of the subdivided bays, and on the exterior, opposite each intermediate pillar (see Fig. 568), there is a buttress of lesser dimensions than the main buttresses opposite the main piers.

[Image unavailable.]

Fig. 585.—St. Mungo’s Cathedral. South Doorway to Lower Church.

The lower church was formerly well lighted with numerous lancet windows, but, unfortunately, these have been filled, within the last thirty years, with dark-coloured glass, so that, without the aid of lamps, this almost unrivalled specimen of mediæval architecture is obscured from{180} view. Only those whose memory goes back to before the above time can form a proper idea of the beauty and purity of its details.

[Image unavailable.]

Fig. 586.—St. Mungo’s Cathedral. Eastern Aisle and Chapels, looking North.

There is a well about 18 feet deep, built with ashlar, at the east end{181} of the south wall, and near it an altar tomb to one of the family of the Colquhouns of Luss, whose arms it bears. The well may have contributed to the weakness of this part of the edifice; but although the upper part of the building is as much as 18 inches off the plumb, there is no appearance of any settlement at the base. The wall seems to have suffered from a thrust outwards while in course of erection, as the upper story is set back from the lower portion, which is off the plumb.

The south doorway of the lower church (Fig. 585) is a very simple and beautiful design, and forms a porch projecting as far as the buttresses. It has a groined ceiling covered with a sloping stone roof. Immediately opposite the south doorway there is a north entrance to the lower church, which has a moulded pointed arch head, but no porch.

[Image unavailable.]

Fig. 587.—St. Mungo’s Cathedral. Section of Piers.

The interior of the choir is a noble specimen of first pointed design. A striking and unusual feature of the plan is the ambulatory aisle which runs round the east end (see Fig. 570), having four chapels beyond it to the east, as above mentioned. These chapels are not divided, like those in the lower church, by walls, but are quite open, and the pillars stand free. The view (Fig. 586) shows that the pillars are slender and clustered, with dog-tooth mouldings in the hollows. Their section is shown in Fig. 587. The caps are rounded and moulded, while those of the wall shafts are carved with foliage. Fig. 588 shows the south-east bay of the east end. The piscina seen in the south-east angle has the drain carried direct to the outside, and is not carried down to the ground, as usual. The vaulting here is of later date than the rest of the work, as is apparent from the{182}

[Image unavailable.]

Fig. 588.—St. Mungo’s Cathedral. South Chapel at East End.

{183}

[Image unavailable.]

Fig. 589.—St. Mungo’s Cathedral. North-East Angle of Choir.

sections of the ribs. As the vaulting was, doubtless, much dislocated by the disturbance which has taken place at the south-east corner, it may{184} have been rebuilt; or, as Mr. Watson points out, it may have been delayed till after the vaulting of the lower church was completed.

[Image unavailable.]

Fig. 590.—St. Mungo’s Cathedral. South Doorway of Nave.

The main arcade is carried round the east end of the choir (Fig. 589).{185}

[Image unavailable.]

Fig. 591.—St. Mungo’s Cathedral. Transverse Section through Choir and Lower Church, looking East.

{186}

To accomplish this, with arches of about the same width as those of the side aisles, the wall had to be divided into two bays having a central pillar, which is not a pleasing feature. Above the main arcade rises the east wall of the cathedral, pierced with four graceful lancets (see Fig. 591).[65] This arrangement of a central mullion in the large upper window was almost rendered necessary in order to carry up the design of the single pillar in the centre of the main arcade, otherwise a central light, as at Salisbury, would doubtless have been preferable.

Churches with an eastern ambulatory are occasionally to be met with in England, a fine example being the church of the Abbey of Dore, in Hertfordshire. This ambulatory aisle is the British equivalent for the aisle which is generally carried round foreign apses, and from which the apsidal chapels open.

A similar plan to that of the eastern end of Glasgow Cathedral was reproduced at Rosslyn Collegiate Church two hundred years later, although with very different details and on a greatly reduced scale.

Each bay of the choir (see Fig. 589) rises from clustered pillars having numerous attached shafts and mouldings (see Fig. 587), and caps elaborately carved with first pointed foliage. The triforium gallery contains two pointed openings, each embracing two smaller arches, and having trefoil and quatrefoil apertures in the spandrils. The clerestory consists of a double wall, with passage between. It has three pointed lights of equal height in the outer wall, and three corresponding openings in the interior, with boldly moulded shafts and arches. A small sharply pointed arch is introduced at each side of the main vaulting shafts. The caps on each floor are all of rounded form.

The south doorway of the nave (Fig. 591) (now forming the principal entrance to the church) is, like that of the lower church, inserted between two buttresses; but it has no projecting porch, and finishes with a flat roof, above which the top of an ordinary traceried window is seen in the plane of the wall. To give importance to this entrance the flanking buttresses are finished at the top with niches for statues, and in connection with the corbels under these occur the only pieces of foliaged carving to be seen in the whole nave.

The western doorway (see Fig. 569) contains two openings with a solid mullion between. This part of the structure has evidently been greatly repaired and altered when the western adjuncts above referred to were removed.

The whole of the cathedral is vaulted except the central alleys of the nave and choir. Vaulting shafts are carried up in the nave (Fig. 592) from the string course above the main arcade, and in the choir (see Fig. 589) from the caps of the main piers to the wall head, as if the idea of vaulting the central area had been contemplated; but it is quite{187}

[Image unavailable.]

Fig. 592.—St. Mungo’s Cathedral. North Side of Nave.

evident from the smallness of the buttresses of the clerestory (Fig. 593) that the walls were not calculated to resist the strain which such a vault{188}

[Image unavailable.]

Fig. 593.—St. Mungo’s Cathedral. View of South Side, looking West.

would have brought against them. The present vaulting beneath the central tower is modern, as also are the plaster ceilings of nave and choir. The vault of the north aisle of the choir has ribs of an early form, while those of the south aisle are of a later design (Fig. 594). On the panels of{189} the latter vault there are a number of figures, comprising the symbols of the evangelists, &c.

The bays of the nave are divided by clustered piers of smaller size and later shape than those of the choir (see Fig. 587), and the moulded caps (which follow the outline of the shafts and hollows of the piers) are also of later character. Each bay of the triforium and clerestory (Fig. 592) is divided into two openings, and has shafts running up through the whole height, which unite the two stories into one, a design which produces a striking effect. The triforium openings of the nave, although not without great vigour, are perhaps the most rudely executed features in the whole building. The jamb and arch mouldings accommodate themselves to each other in an awkward manner, and the fitting in of the uncouth trefoil tracery is quite a contrast to the fine finishing of the clerestory above. It is not easy to account for the careless work in the triforium, as the upper part of the nave appears to have been all executed about one period. The coarse workmanship is much more striking in the building than can be shown by drawings on a small scale.

[Image unavailable.]

Fig. 594.—St. Mungo’s Cathedral.

Ribs in North, East and South Aisles
of the Choir.

The windows of the aisles, in the choir and part of the nave, are very much alike and very simple in design, and some of them are grouped and contain rudimentary rather than real tracery. Some of these are visible in the choir in Fig. 593, and Fig. 595 shows one in the north aisle of the choir, which may be taken as a specimen. It consists of three lancets separated by mullions, which might rather be described as portions of the wall with small buttresses attached, and the whole enclosed within one arch, having the spandril above pierced with a quatrefoil and two trefoils.

The tracery of the windows on the south side of the nave is simple, but completely formed (see Fig. 590), each window having two mullions and three trefoils in the arch head. Those of the clerestory have each a central mullion divided in the arch into two branches (Fig. 596).

The tracery in the great windows in the west end (see Fig. 569) and in those of the north transept (see Fig. 593) and south transept is modern, and it is not easy to determine how far the designs follow the originals. The north transept window (see Fig. 596), which was “taken down and rebuilt,”[66] looks, from the simplicity of its design, to be probably like what the original may have been. Regarding the other two great windows, one cannot be so sure. The great buttress enclos-{190}

[Image unavailable.]

Fig. 595.—St. Mungo’s Cathedral.

Window in North Aisle of Choir.

*ing the staircase at the north-west angle of the north transept (see Fig. 596) is a noteworthy feature, differing as it does from the other buttresses flanking the end walls. It occupies part of the space which naturally falls to the eastmost window of the nave aisle, and this opening, instead of being designed as a smaller window to fit the space, is treated with the same design as the others, and thus presents the appearance of having been cut in two. In each of the four great gables the vesica aperture occurs; and this, along with the constant repetition throughout the whole building of certain features, such as the parapets with their supporting corbels, the peculiar gargoyles, the slender buttresses in the clerestories, and the terminations of the main buttresses, all show that the keynote of the design struck by the early builders was taken up and continued by their successors. As above pointed out, this, no doubt, partly arose from the lower portions of the whole structure having been begun at an early period, though, in part, not finished till a later time. Even in the chapter house building (Fig. 597), the upper story of which is of a distinctly Scottish character, the continuation of early features has not been lost sight of. Here the details of the church built by Bishop Bondington in the thirteenth century furnished models for the work even of the fifteenth century. The lower windows are similar in form, the parapets of the chapter house wing are continued round at the same level as those of the aisles of the choir, and the buttresses are also similar. Attention may be drawn to the curious treatment of the upper water tables of the buttresses of this wing.{191} The slope is divided into two halves, one half rising a little higher than the other.

[Image unavailable.]

Fig. 596.—St. Mungo’s Cathedral. North Transept.

{192}

[Image unavailable.]

Fig. 597.—St. Mungo’s Cathedral. Chapter House, from North-West.

The chapter house wing is two stories in height, and the staircase finishes on top (Fig. 598) with a cape house, after the manner of the pele towers. This wing measures on Plan about 30 feet square internally, and has a central pillar supporting the vaulting on both floors. The chapter house, which is on the ground floor, was, as we have seen, left in an unfinished state in the thirteenth century. In the early part of the fifteenth century, Bishop Lauder has evidently recommenced work at it.{193}

[Image unavailable.]

Fig. 598.—St. Mungo’s Cathedral. East End of Cathedral and Chapter House, from South-East.

The wall shafts (see Fig. 584), with their early section and first pointed caps and bases, have the appearance of being older than his time; but the Dean’s seat, which has been inserted in the east side (Fig. 599), is part{194}

[Image unavailable.]

Fig. 599.—St. Mungo’s Cathedral. Dean’s Seat in Chapter House.

of his work. It is in the design of that period, and contains the following {195}inscription along the top—viz., Wilms: fuda: instut: Caplm: Dei, which Archbishop Eyre thus renders,[67] “William laid the foundation of this chapter house in God’s honour.” The William referred to was Bishop William Lauder, whose arms (a Griffin Segreant) occur on a shield on the lintel below the inscription. The shield is surmounted by the bishop’s crosier.

[Image unavailable.]

Fig. 600.—St. Mungo’s Cathedral. Sacristy, looking North-East.

The shield of Bishop Lauder is also inserted on the exterior of the west side of the chapter house. It is shown on a slab in Fig. 600, and is{196} a characteristic piece of heraldic decoration. Fig. 600 shows the upper apartment or sacristy.

The completion of this wing was carried out by Bishop Cameron, who built the upper story, or sacristy, and vaulted the building. It is not quite clear whether the vaulting of the lower story was executed by Bishop Cameron or Bishop Lauder. The central pillar (Fig. 601) is late, and the boss of the north-west compartment seems to contain the Cameron arms. The groin ribs (A) are of early form, while those of the sacristy (B) are of a late section. The vaulting springers of the chapter house may have been built at the same time as the chapter house shafts—i.e., in the thirteenth century—and completed in the fifteenth century with the same section as they were begun with; while the groins of the sacristy, being entirely of fifteenth century work, are of the section of that period.

[Image unavailable.]

Fig. 601.—St. Mungo’s Cathedral. Details of Central Pillar, &c., in Chapter House.

The shields in the bosses of the chapter house are somewhat difficult to decipher; but that in the south-east bay may possibly represent the royal arms of Scotland and England impaled, and stand for James I. and his wife, Margaret Tudor.[68] King James returned to Scotland in 1424, about which time the chapter house vault may have been built.

The upper chamber is undoubtedly the work of Bishop Cameron. The central pillar has two shields in the capital. That fronting a person entering contains the royal arms, surmounted by a crown (see Fig. 600); and the shield on the opposite side contains Bishop Cameron’s arms. There is here an analogy with the central pillar of the chapter house of Elgin Cathedral, where the royal arms and those of the bishop by whom it was completed are carved on the capital. The Cameron arms also occur{197} in the cap of the wall shaft opposite the coat above referred to, and likewise over the fireplace (see Fig. 600).

[Image unavailable.]

Fig. 602.—St. Mungo’s Cathedral. Rood Screen and Entrance to Choir and Lower Church.

{198}

The sacristy contains, as shown in the sketch (see Fig. 600), stone built projecting cupboards and a large fireplace. The arms of Bishop Cameron on the mantel above the latter contain an example of how heraldry and architecture may be made to work together; one of the members of the cornice over the fireplace being continued across the shield, so as to form one of the fesses of the Cameron coat. A wide wheel stair close to the entrance connects the chapter house and the vestry above. A shield containing a bull’s head, the arms of Bishop Turnbull, is inserted in the outside of the west wall, near the top. The wing may have been completed by that prelate.

[Image unavailable.]

Fig. 603.—St. Mungo’s Cathedral.

Archbishop Blackadder’s Arms on Altar.

Mr. Honeyman[69] conjectures that the Rood screen (Fig. 602) which is erected between the eastern piers of the central tower was built by Bishop Cameron. It contains a staircase in the space in the north side, and in the opposite side are cupboards for containing church vestments. In front of the screen there are two fine stone altars, that on the south side being known as the altar of St. Mary of Pity, and that on the north side as the altar of the Holy Cross. The arms and initials of Archbishop Blackadder (Fig. 603) are carved on the ends of both of these altars.

The rood screen with its two altars, although evidently a late work, adds considerably to the picturesque effect of the interior of the cathedral. It has a large, deeply-recessed and moulded doorway in the centre, the arch of which is of elliptical form, and has the jamb mouldings (Fig. 604) continued, without caps or break, round the arch head. On each side of the doorway the surface of the wall is covered with shallow panels having trefoiled arch heads. A corbel in each of these panels (now cut off) once supported a statue, and these would add much to the effect of the structure. The cornice is large, and is surmounted by an open parapet containing quatrefoils, and having standards running up in the centre of each alternate quatrefoil. The standards are ornamented with small pinnacles, and are supported on corbels, each of which contains two human figures,{199} which recall similar carvings at Rosslyn Chapel, but are of finer execution.[70]

The structure begun to be erected in continuation of the south transept has already been referred to. The building (see Fig. 571) is 57 feet in length by 25 feet in width internally, and comprises four bays in the length and two in the width, supported on three central pillars. The entrance is from the wide landing of the staircase in the south transept leading down to the lower church, from which point a series of wide steps leads down to the floor. From these steps a good view is obtained of the interior (Fig. 605).

[Image unavailable.]

Fig. 604.—St. Mungo’s Cathedral.

Details of Rood Screen.

The pillars are all moulded and provided with caps and bases, and the arches springing from them have numerous moulded groins with large foliaged bosses at the intersections. A substantial stone bench surrounds the outer walls; on this rest the bases of the responds and the sloping sills of the windows. Externally the building is plain (see Fig. 593), and has evidently been prepared for an upper story. It has a heavy moulded base, which is returned round the buttresses. The section of this base (see Fig. 573) is different from those of the nave and choir, and is doubtless later, the base of the main building being (as above mentioned) carried through this wing, which abuts against it. The buttresses of the main building are also carried down to the base, and the walls and arches of the crypt abut upon them. The doorway is evidently much older than the crypt. The windows have plain tracery, and over each window is a small panel containing a piece of sculpture, probably representing subjects from a mediæval bestiary, such as those referred to in Vol. I. p. 19. They look older than the building in which they are inserted.{200}

[Image unavailable.]

Fig. 605.—St. Mungo’s Cathedral. Interior of Blackadder’s Crypt.

It is conjectured from the following inscription on the vaulting, “This is ye ile of Car Fergus,” that this structure was begun at an early period, and that it was completed by Archbishop Blackadder, whose arms, surmounted by his mitre, are carved on the central buttress at the south end, and also on the corbel of a niche at the north-west angle. It is difficult to decide either the date or the purpose of this structure. It{201}

[Image unavailable.]

Fig. 606.—St. Mungo’s Cathedral. Monument to the Barons of the House of Mynto.

has evidently been intended to be carried higher, and probably may have been meant to form an extension of the transept. Although the work in the interior has considerable resemblance to that in the lower church, it is decidedly later, and has been copied from it. The work on the exterior{202} is very much inferior, and the carving of the caps, which seems also to be imitated from that of the choir, is evidently late and debased. The groin ribs, too, are coarse, and point to about the time of Bishop Blackadder.

[Image unavailable.]

Fig. 607.—St. Mungo’s Cathedral. Part of Monument, enlarged.

The western towers or adjuncts, already mentioned (see Fig. 567), were structures of considerable importance, that on the south-west being a very strong keep, about 34 feet by 32 feet, with walls 9 to 10 feet thick, strengthened by great buttresses. It was about 54 feet in height to the{203} parapet, and 70 feet to the cape house roof. This structure is believed to have been built about the middle of the fourteenth century. Those who know anything of our pele towers can easily understand how much the cathedral was marred by the loss of such a characteristic feature.

The other structure which stood at the north-west angle was of about the same size, but was considerably higher, being 118 feet to the parapet, and was surmounted by a lead-covered spire. Both the above adjuncts were taken down in 1846.

The ancient monuments in the cathedral are comparatively few, those which survive being all of the sixteenth and later centuries. Two of these are seen in Figs. 588 and 590, which show that the design of that period is well represented.

Another of these sixteenth century monuments is shown in Fig. 606, erected in memory of the barons of the House of Mynto. This monument is noteworthy from its possessing one of the few examples of old brasses in Scotland. The brass (Fig. 607) represents one of the barons in armour kneeling and looking towards the sun, surrounded with rays in the upper corners.

BRECHIN CATHEDRAL, Forfarshire.

The Bishoprics of Brechin and Dunblane were founded towards the close of the reign of King David I. from the remains of the old Pictish Bishopric of Abernethy. Although a religious establishment had existed at Brechin previously, it had no claim to represent an old Columban monastery. The earliest notice of Brechin is that in the Pictish chronicle which narrates that King Kenneth, son of Malcolm, who reigned from 971 to 995, gave the great town of Brechin to the Lord. The dedication of the church to the Holy Trinity also indicates a comparatively late date. This church, like many others founded after King Kenneth Macalpin’s restoration of the Irish priests in the middle of the ninth century, emanated from the Irish Church, and was assimilated in character to the Irish monasteries. To this connection is, no doubt, attributable the famous round tower which still exists at Brechin.

The next notices of Brechin occur in the reign of David I. In the early part of his reign a charter to the Church of Deer is witnessed by “Leot, Abbot of Brechin,” and a later charter is witnessed by “Samson, Bishop of Brechin.” The abbot had probably, in the interval, become the bishop, while the abbey was secularised and passed into the possession of a lay abbot, and a community of Keledei under a prior. These formed the chapter of the diocese till they were superseded by a regular cathedral chapter. In 1218 the Keledei are distinguished from the chapter, and in 1248 they entirely disappear.[71]{204}

Several of the bishops of the diocese were men of note, and rendered important services during the War of Independence and in connection with the redemption of David II. from captivity, and, in consequence, obtained privileges to the town. The cathedral was also largely benefited by the Earl of Crawford, and received liberal grants from the Stewarts, Earls of Atholl. There is, however, little to be gathered from the accounts of the lives of the bishops regarding the history of the structure of the cathedral. Almost the only statement bearing on the subject is that the vicar of the parish of Lethnot, in fulfilment of his obligation, “delivered to Patrick, Bishop of Brechin (1354-84), a large white horse, and had also given a cart and horse to lead stones to the building of the belfry of the Church of Brechin in the time of Bishop Patrick.”[72]

The gradual declension of the bishopric and the loss of the church property followed the usual course. A precept by James III., in 1463, states that, through the profligacy of the bishop and canons, the revenues of the cathedral had been greatly reduced by frequent alienations of its property, and, in consequence, steps were taken and some of the lands were restored, or an annual feu-duty paid for them.

After the Reformation, Alexander Campbell was bishop from 1566 to 1610. By a grant in his favour he was empowered to sell, for his own benefit, all revenues and properties belonging to the see then vacant, or which might become vacant. Of this power the bishop freely availed himself, both for his own interest and also for the benefit of his powerful patron, the Earl of Argyll. His example was speedily followed by the archdeacon, chancellor, and presbyters, who, on various pretexts, disposed of their houses and lands. By these means the property of the cathedral was lost to the church and passed into the hands of laymen.

The cathedral continued to be used after the Reformation for Protestant worship, and, according to Mr. Black, the edifice was little interfered with till 1806. Before that period he describes it as a handsome Gothic building, consisting of a nave with two aisles, and a transept formed by an extension of these aisles to the north and south. Mr. Black also states that there is no appearance of there ever having been any pillars or arches in the transepts, and questions whether the choir was ever finished, or if there was anything more than a lady chapel. The appearance of the cathedral in the end of last century is shown in Grose’s view.

In 1806 great alterations were made on the edifice. The north and south transepts were removed, new and wider aisles were built on each side of the nave, and the outer walls of the aisles were carried to such a height that the whole nave could be covered with a roof of one span (Fig. 608), “thus totally eclipsing the beautiful windows in the nave, and covering up the handsome carved cornice of the nail-head quatrefoil description which ran under the eaves of the nave.”[73]{205}

The windows of the clerestory (three on each side), which are now concealed by the roof, are peculiar in their arrangement, being placed over the piers instead of over the centre of the arches, as is usual. Externally they have plain splays, and internally they seem to have been richer, but are now obscured by plaster. The windows and the dog-toothed cornice seem to point to an early date.

[Image unavailable.]

Fig. 608.—Brechin Cathedral. View from South-East.

The only parts of the interior of the nave spared during the above restoration are the main piers, of which there are eight (Fig. 609), with four responds. Two of these piers seem to indicate, from their form, so far as not damaged, that this part of the structure must originally have been of first pointed work. The piers on the south side are octagonal, and those on the north side are alternately octagonal and clustered. A remarkable feature of the building is observed in connection with these piers, those of the south side, together with the arcade above them, being considerably thinner than those of the corresponding parts of the north side. As the clerestory walls above are the same on both sides, it is difficult to account for the difference in size of the piers. The interior of the nave is 83 feet 6 inches in length by 57 feet 6 inches in breadth. Fortunately part of the west end has not been interfered with,{206}

[Image unavailable.]

Fig. 609.—Brechin Cathedral. Plan.

{207}

[Image unavailable.]

Fig. 610.—Brechin Cathedral. West End.

notwithstanding all the alterations, and there we still have the original transition doorway, flanked by the fifteenth century tower on the north, and the{208} famous round tower on the south (Fig. 610). At the east end of the nave are preserved portions of the ruined side walls of the aisleless choir, a beautiful example of first pointed work (Fig. 611).

[Image unavailable.]

Fig. 611.—Brechin Cathedral. Choir.

The most interesting, as well as the most ancient, structure connected with Brechin Cathedral is the round tower, 103 feet in height, which is now incorporated with it, and occupies the place of a spire at the south{209}-west angle (see Figs. 608 and 610). This and the corresponding round tower at Abernethy,[74] on the south side of the Tay, are the only representatives on the mainland of Scotland of this special kind of erection. At Egilsay, in Orkney,[75] is found the only other round tower of this kind in the country.

These round towers have given rise to much controversy as to their date and use, but the whole of our knowledge regarding them has been admirably summed up by Dr. J. Anderson, in his Scotland in Early Christian Times, p. 52. It is there shown that these round towers are outliers of a group of which Ireland is the home. As has been pointed out in the Introduction to the first volume, the period of the Irish round towers is comprised between the end of the ninth century and the beginning of the twelfth century. We have above seen that the first church in Brechin was founded by a colony of ecclesiastics, after the Irish model, about the beginning of the eleventh century, and the probability is that the tower was erected during that century. Brechin is said to have been destroyed by the Danes in 1012, and it seems not unlikely that the monks there would follow the plan adopted in Ireland in the case of similar invasions, in order to protect their valuables—viz., to erect a strong detached round tower as a place of refuge and security. The Brechin tower corresponds in all its features with Irish examples. The detached situation; the circular form tapering from the projecting base to the summit; the doorway raised 6 feet 6 inches above the ground, and ornamented with details and sculptures similar to those of Irish models; the division into stories by means of internal string courses to sustain wooden floors, but without any means of access except ladders, and lighted by two small windows with inclined jambs; the four large windows at the top facing the cardinal points; the ornament of the cornice and the pointed roof (although this, no doubt, is a later restoration), are all elements distinctive of the old Irish round towers. The stones of which the tower is built are large, and they are cut to the circle, but are not laid in regular courses. The tower measures 86 feet 9 inches to the base of the sloping roof. It is divided into seven unequal stories, with string courses in the interior.

The Irish round towers are divided by Miss Stoke’s classification into four periods; and the nature of the masonry of the Brechin Tower corresponds with the third of those periods, which in Ireland would be the first half of the tenth century, but in this derivative example would, doubtless, be somewhat later.

The doorway, with its sculpture (Fig. 612), is especially interesting. It presents features all characteristic of its Irish originals. The aperture is small, and the jambs are inclined inwards towards the top. They are in single stones the full breadth of the wall, and are covered with a{210}

[Image unavailable.]

Fig. 612.—Brechin Cathedral. Doorway of Round Tower.

single stone, hollowed out into a semicircular arch. The arch has two such stones in the thickness. The sill is also in one stone. These stones are all dressed and carved with an architrave-like figure running all round the doorway, enriched with a flat pellet ornament, a form of frequent use in Irish examples. On the summit of the arch is carved a crucifixion, with the legs not crossed. In the round tower at Donoughmore, County Meath, a representation of the Crucifixion occupies a similar position over the head of the doorway. Dr. J. Anderson gives the following minute description of the sculpture of the Brechin Tower:—“In the middle of the height of the jambs on either side are raised panels, bearing figures in relief of men habited as ecclesiastics. One bears a pastoral staff of the form peculiar to the early Celtic Church, having a curved head resembling that of a walking-stick. The other bears a book on his breast, and carries{211} a cross-headed or tau-staff, which is of exceedingly rare occurrence either in this country or any other. At the lower part of the jambs on either side are the figures of two crouching beasts. One is a winged griffin, and both bear a close affinity to the figures of nondescript creatures carved on the early sculptured memorial stones.”[76] On each side of the arch of the doorway are two projecting blank panels, apparently intended for sculptures never executed.

[Image unavailable.]

Fig. 613.—Brechin Cathedral. West Doorway.

{212}

When the Bishopric of Brechin was founded by King David, a church would, no doubt, be erected, but of that structure not a fragment remains. Of the existing building the western doorway (Fig. 613) presents the oldest feature. It is 5 feet 9 inches wide, and deeply recessed, the jambs being enriched with five detached shafts set in a series of nooks, and having moulded caps and bases, the caps with round abaci. The arch is pointed, and contains five orders carved with numerous bold mouldings, some of which present details showing the remains of a highly relieved chevron, a lingering form of Norman enrichment, together with rows of dog-tooth ornaments. The whole effect is simple and massive, and corresponds with other examples of early first pointed work, which may be assigned to the early part of the thirteenth century.

The upper and the southern parts of the west façade (see Fig. 610) have been rebuilt at a later period. The portion over the doorway contains a fine example of late decorated tracery in the large western window, and the rebuilt portion to the south contains a niche, which is rather eccentrically introduced (see Fig. 613).

[Image unavailable.]

Fig. 614.—Brechin Cathedral.

Cap in Interior Angle of Tower.

As mentioned in the foregoing historical notes, we have an indication that the north-west tower or “belfry” was apparently in course of construction between 1351 and 1373. To judge from some of the features of the building, it must have been a long time in erection. It was probably begun before the above date, and the lower part may have been built during the thirteenth century. The design of the angle caps (Fig. 614) which support the vaulting of the ground floor is of a decidedly first pointed character. Possibly these capitals may have belonged to an older tower, and were simply reused in the reconstruction of the existing tower. The peculiar vaulting of the ground floor of the tower (Fig. 615), and the form of the base and other details, point to a later date than that of the capitals. The upper part of the tower containing the fine belfry windows (Fig. 616) may be classed as decorated work, and probably belongs to the time (fourteenth century) of Bishop Patrick, above referred to. The spire is doubtless later, having a series of lucarnes such as are usual in the spires of the third pointed period. The effect of the tower and spire is good. It is the completest and best remaining example of its kind in Scotland. The tower is 70 feet in height, and{213} the octagonal spire is 58 feet high. Some portions of the parapet have been altered and restored.

[Image unavailable.]

Fig. 615.—Brechin Cathedral. Vaulting of Ground Floor of Tower.

The choir (see Fig. 611), so far as preserved, shows the ruins of a fine example of first pointed work. It has been without aisles, and the side walls contained a series of tall lancet windows, with plain chamfers externally, but having the wall space relieved internally with detached shafts and moulded arches, enriched with the dog-tooth.{214}

[Image unavailable.]

Fig. 616.—Brechin Cathedral. Tower and Spire from North-West.

{215}

The shafts are arranged so as to form a cluster of three smaller shafts round a larger central nucleus. They have round moulded caps, bases, and central band. The shafts are now much mutilated, but they are shown restored in the drawing.

The choir, which Mr. Muir states was originally 84 feet 4 inches in length, is now reduced to three lancet windows on the north side, and one and a respond on the south side, the existing portions of the side walls being about 30 feet in length. An enriched cornice runs along the wall head above the windows.

The choir, although now reduced to a mere fragment, must, when complete, have been a very pure and beautiful piece of architecture.

MAISON DIEU, Brechin, Forfarshire.

This is an interesting fragment of first pointed work. The chapel is said to have been founded, in 1256, by William de Brechin for the repose of the souls of Kings William and Alexander, and of his brother John, Earl of Chester and Huntingdon; of Henry, his father, and Juliana, his mother. This structure, no doubt, as its name implies, formed part of a hospital. It was endowed with lands, some of which it still retains—one place being yet known as the Maison Dieu Farm. A small revenue derived from the land is generally gifted by the Crown to the rector of the Grammar School, who consequently signs himself “Praeceptor Domus Dei.”[77]

[Image unavailable.]

Fig. 617.—Maison Dieu. Plan.

The part of the chapel which still survives stands in a back lane in the centre of the town of Brechin, and consists of a portion of the south wall and a small piece of the east wall (Fig. 617). The sketches show that the work is in the first pointed style, and is simple and pure in character. The south wall (Fig. 618), which bounds the lane on one side, is about 40 feet in length, and contains a doorway, with a nook shaft in each jamb, and good mouldings in the arch (Fig. 619). It also contains three lancet windows and one jamb of a fourth. The fragment of the east wall terminates at the jamb of the first window. The mouldings{216}

[Image unavailable.]

Fig. 618.—Maison Dieu. South Wall: Exterior.

[Image unavailable.]

Fig. 619.—Maison Dieu. Section of Doorway.

 

Fig. 620.—Maison Dieu. Section of Window.

{217}

and other details of the windows are plain, but effective, the sconsion mouldings being unusually fine (Figs. 620 and 621). There is a piscina in the south wall with a stone shelf, but the details are a good deal damaged.

[Image unavailable.]

Fig. 621.—Maison Dieu. South Wall: Interior.

This fragment is valuable, and should be carefully preserved.

LINDORES ABBEY,[78] Fifeshire.

The scanty ruins of this once important abbey are situated a short distance eastwards from the town of Newburgh, and not far from the south bank of the Tay.{218}

The abbey was founded by David, Earl of Huntingdon, grandson of David I., and brother of King William the Lion. The foundation took place in 1178, being the same year as that in which Arbroath Abbey was founded by William the Lion. The abbey was colonised by Tironensian monks from Kelso, Guido, the first abbot, having been previously prior of the latter monastery. The buildings are said to have been erected under the superintendence of Abbot Guido, but as he died in 1219, the style of architecture, which is pure first pointed, leads to the conclusion that they can only have been planned, and perhaps begun, under the first abbot. The institution was munificently endowed by the founder, who bestowed upon it churches both in Scotland and England. It was also encouraged by the De Quinceys, Earls of Winchester, who, in 1264, presented to it the peat moss of Kinloch and the Church of Culessy. The Church of Dundee also belonged to the monks of Lindores. The abbey is in the parish of Lindores (now Abdie) (q.v.), and the name of the old Culdee church which stood beside the Loch of Lindores, a few miles to the south, was transferred from the church to the abbey, as being the most important ecclesiastical establishment in the parish. The word Lindores is believed to mean “the church by the water,” and “Abdie” refers to the possessions of the early monastic establishment.

Lindores Abbey was an institution of considerable importance, and was frequently the temporary residence of royalty. In 1265 it was visited by Alexander III., and in 1296 by Edward I., when he received the allegiance of the district. David II. also resided in the abbey. The unfortunate Duke of Rothesay, who perished at Falkland in 1401, was buried in the church.

James, Earl of Douglas and Duke of Turenne, after a lifetime spent in contending with James II. and III., retired to the Abbey of Lindores, where he passed the last five years of his life, and declined to be drawn from its seclusion either by James III. or his rebellious nobles, who both applied to him for his assistance. He died in 1488.

Towards the end of the fifteenth century the possessions of the monastery were felt to be in a precarious state, and tacks of the abbey lands were granted to laymen who could defend them. In 1543 the populace of Dundee made a destructive attack on the houses of the Black and Grey Friars in that town, and afterwards assailed the Abbey of Lindores, from which they ejected the monks and destroyed the furnishings and ornaments.

The abbey afterwards passed into the hands of commendators, till, in 1600, Patrick Leslie of Pitcairlie was created Lord Lindores, and endowed with the estates.

The buildings appear to have been allowed to go to ruin, and to have been gradually removed by the inhabitants for building materials. Mr. Laing gives instances to show that the ruins were regarded as a common{219}

[Image unavailable.]
A.Presbytery.
B.Crossing.
C.Nave.
D.North Transept.
E.South Transept.
F.Slype or Sacristy.
G.Chapter House.
H.Stair.
J.Fratry.
K.Tower.
L.Cloister Garth.
M. M.Western Side of Cloister
N. N.Enclosing Wall.

Fig. 622.—Lindores Abbey. Plan.

quarry, from which the public were accustomed to remove what they pleased. The whole place, early in this century, is described as heaped up with ruins and rubbish, so that even the ground plan could not be made out, and the abbey was known in the locality as the “Wilderness.” “This is now all changed; the rubbish has been cleared away down to the basement, and the plan of the building is distinctly seen.... About twenty-five years ago the foundations of a range of pillars, to the height of several feet, running along the north side of the nave, were laid bare by the partial removal of the rubbish by which they had been concealed.{220} They were of the same elegant design as those fragments which remain; but very shortly after their discovery they were ruthlessly removed.”[79]

[Image unavailable.]

Fig. 623.—Lindores Abbey. Gateway in Enclosing Wall, from South-West.

The abbey buildings (Fig. 622) consisted originally of a church, having an aisleless choir about 42 feet long by 24 feet wide; a nave, with north aisle, 132 feet in length by 40 feet in width; north and south transepts, measuring from north to south 111 feet, and, including the eastern aisle, 39 feet 6 inches wide; and a great tower at the north-west angle of the nave, measuring about 37 feet 9 inches over the buttresses.{221}

To the south of the nave lay the cloister garth, with its surrounding cloister walk, measuring over all 107 feet by 96 feet. The buildings entering from the east side of the cloister are the best preserved parts of the structure. Adjoining the south transept is the vaulted slype or passage leading to the eastward. Next to it is the chapter house, 49 feet long by 24 feet 3 inches wide; and to the south of the chapter house is a building 55 feet long by 32 feet wide over the walls, which was probably the fratry or day-room of the monks. It is provided with buttresses and windows on the east side. At the north end of this apartment was the day staircase to the dormitory. The west and south sides of the cloistral buildings are now almost reduced to the ruins of a single wall on each side. Some traces of partition walls and buttresses may be observed on the west side, but on the south side only a doorway at the east end can be made out. The refectory doubtless lay, as usual, on this side.

[Image unavailable.]

Fig. 624.—Lindores Abbey. Piscina in North Transept.

The monastery was surrounded by a high wall, of which some portions still exist. This wall contains a large entrance archway (Fig. 623), with smaller footway at the south-west angle.

Of the church little but the foundation and some portions of the walls survive. The outline of the exterior of the choir, with its buttresses, can be clearly followed, but the interior has been stripped of its ashlar work.{222} A recess on the north side doubtless contained a tomb, and some traces of the sedilia are visible. Two small coffins were found buried in the choir, which are believed to have contained the remains of two children of Earl David, the founder. The position of the east aisle of the transepts can be traced, with its buttresses. The north and south walls of the choir were carried, without openings, across the ends of the transept aisle. The wall in the north transept contains a portion of a double piscina (Fig. 624), one basin being scalloped and the other a plain circle. Amongst the most interesting parts of the structure are the foundations and one or two courses of the piers of the crossing. These are well preserved, and show the first pointed mouldings of the responds of the piers on three sides (Fig. 625), the mouldings being the same in the piers of the arches which crossed the choir and transept, and also in the arches of the transept aisle. They are all of fine first pointed design. The base of the piers (Fig. 626) is also first pointed. A doorway from the north-east angle of the cloister enters the church by the south transept, and not, as usual, by the nave. A considerable part of the south wall of the nave survives. It has small projections at intervals along the south face, which probably carried an arcade. Fig. 627 shows the section of the bases of the west end of the church and the tower.

[Image unavailable.]

Fig. 625.—Lindores Abbey.

Responds of Piers.

[Image unavailable.]

Fig. 626.—Lindores Abbey.

Mouldings of Base of Piers.

Another doorway entered the nave from the cloister some distance westwards from the crossing. The plan and elevation of the portion still remaining are shown in Figs. 628 and 629. This doorway had, towards the cloister, two nook shafts, with bold dog-toothed ornaments on the angles between the shafts, and on the interior sconsion a double beaded moulding. A third doorway led from the west end of the cloister into the nave.{223}

The north aisle of the nave is now scarcely traceable. The walls of the north-western tower, which occupies a position similar to the tower of Brechin Cathedral, still stand to a height of about 8 feet. The tower had large square corner buttresses, and smaller intermediate ones on each face, with a base consisting of three plain set-offs (see Fig. 627). A wheel stair occupied the buttress at the north-east angle. There is now no trace of the western doorway of the church, but the base mouldings are shown in Fig. 627. There is a recess for a stoup in the south wall near the west doorway.

[Image unavailable.]

Fig. 627.—Lindores Abbey.

Bases at West End of Tower
and Church.

 

Fig. 628.—Lindores Abbey.

Plan of South Doorway of Nave.

[Image unavailable.]

Fig. 629.—Lindores Abbey.

Jamb of South Doorway of Nave.

As already mentioned, the vaulting of the slype (Fig. 630) is fairly well preserved. It consisted of two square bays, and had plain splayed groins springing from corbels, which have all a decidedly first pointed character. The doorway next the cloister had a pair of nook shafts, and the east doorway was plain. A stone bench runs along both sides of the slype.

The chapter house has had a stone bench running round the walls, and an arcade all round rested upon it. The shafts and bases can still be traced. The straight staircase to the south of the chapter house no doubt led to the dormitory, which would extend over the fratry to the south as well as the chapter house, A room over the slype may have{224} been the scriptorium or library. The night passage of the monks to the church evidently passed through that apartment, as the stair was in the south-west angle of the transept, and could only be reached in that way.

[Image unavailable.]

Fig. 630.—Lindores Abbey. Interior of Slype.

{225}

[Image unavailable.]

Fig. 631.—Lindores Abbey. Broken Figure lying against West End.

Fig. 631 shows a portion of the carved effigy of a monument which is preserved amongst the ruins.

CAMBUSKENNETH ABBEY, Stirlingshire.

The ruins of this abbey stand on the banks of the Forth, about a mile eastward from Stirling. The buildings are almost completely ruined, the detached tower at the west being almost the only part which remains in{226} anything like a complete state. The plan of the church and the abbey buildings can only be conjectured from grass-grown foundations, with here and there a base course of dressed stone. The west doorway, however, although in a very mutilated condition, is nearly entire, as also is a portion of a gable wall and side walls at the extreme south-east corner of the buildings. All else is in the most fragmentary condition. The ground on which the church and cloister were erected is level, but to the east it slopes downward to the river, as indicated on the Plan (Fig. 632).

[Image unavailable.]

Fig. 632.—Cambuskenneth Abbey. Plan.

Till 1864 the whole site was covered with grassy mounds of earth, which indicated where buildings had formerly stood. In that year{227} excavations were made, an account of which, together with a plan of the site by Mr. Mackison, architect, Stirling, was published.[80]

The church (see Fig. 632) was cruciform, having a nave, with a north aisle only; transepts, with eastern aisles; and a short aisleless presbytery. The length of the nave was about 120 feet, and the width about 35 feet between the walls. The transepts were about 70 feet long from north to south by about 38 feet in width within the walls, and the total internal length of the church was about 190 feet. The whole structure was of one period, being entirely of first pointed or thirteenth century work; so much at least can be surmised from the Plan and from the west doorway (Fig. 633). The doorway projects about 9 inches from the face of the wall, and in the ingoing had five shafts in each jamb, all detached except one, and there was also a shaft in the outer angles of the projection in front of the west wall. In the nooks between the shafts there are smaller beads or shafts, all treated with separate caps. On either side of the outer shafts the dog-tooth ornament occurs. The jamb mouldings are much better preserved than those of the arch, the former having been buried in the ruins for centuries, while the latter, being within the reach of mischievous hands, have been very much defaced. An idea of the character of the mouldings will be obtained from the enlarged section (see Fig. 633); there was only one enrichment, and that was the dog-tooth. It will be observed that the inner moulding of the arch does not come to a point, but has a kind of flat keystone introduced, although the outer mouldings appear to have met in the usual way. A few bases of the shafts of a wall arcade remain against the south wall of the nave. An angle buttress at the north-east corner of the transept indicates later work, probably inserted here owing to the failure of the original buttresses, which are flat, and have little projection to support the vaulting.

The cloister, which lay on the south side of the church, was about 80 feet square. On the east side of the cloister, in a line with the south transept, there occurred first the slype and then the chapter house. The latter was a small apartment of about 21 feet square, which was, as usual, vaulted, and had an octagonal centre pillar.

A long, narrow building, which was doubtless the refectory, occupied the south side of the cloister. It measured about 70 feet long by 25 feet wide. To the east of this there are situated a cottage and an outhouse; the latter is certainly quite modern, and the cottage may have been a part of the monastery.

About 180 feet east from the chapter house a long range of buildings extended for upwards of 250 feet in a north and south direction; but as these are fragmentary, and as the detached buildings of a monastery were not conformable to a general plan, it is needless to attempt to{228} define these further than to point out that the upper story of the south-east building was a dovecot, the walls of which are entire to a height of about 20 feet. The range of buildings, of which the dovecot forms the end next the river, extends, in its present condition, for about 120 feet westwards.

[Image unavailable.]

Fig. 633.—Cambuskenneth Abbey. West Doorway.

{229}

[Image unavailable.]

Fig. 634.—Cambuskenneth Abbey. The Tower from South-East.

The tower (Fig. 634), which is the best preserved portion of the monastery, stands near the north-west angle of the church, but is detached from it. The abbey being situated on the extensive plain known as the Carse of Stirling, probably after the Reformation the tower was found to be useful{230} as a place of outlook over the level country around, and also, perhaps, as a place of security. The monastery was difficult of access, being almost surrounded by the river Forth, which winds here in a remarkable manner. It is, therefore, not unlikely that for the above reasons the tower has been preserved entire. It measures rather more than 30 feet square, with walls about 6 feet thick. It is groin vaulted on the ground floor, and has an octagonal turret stair leading to the top. From old plates it appears to have been finished on the top with the usual cape house and chimneys. The existence of fireplaces indicates, as above suggested, that the tower was taken possession of as a watch tower or castle, and was thus preserved. It is peculiar in being detached from the church, from which it is separated about 20 feet. The entrance to the tower (see Fig. 634) is by a narrow doorway in the south front. It has a slightly projecting porch with a high gablet, containing a niche, and is surmounted by a buttress. There are indications of buildings having been attached to the tower on the east side, but they have been of later construction than the tower, and were probably outhouses, such as are frequently found in connection with the pele towers. The finishing of the upper part of the parapet is modern. The tower is four stories in height, and is of good simple design in the later first pointed style.

The abbey was founded by King David I., with the consent of his eldest son, Prince Henry. The foundation charter is without date, but it probably belongs to the year 1147.[81] It appears to have been the original intention to call the abbey by the name of St. Mary, Stirling, as in the first charter it is by this name that the lands and fishings of Cambuskenneth are granted, and in all the early charters during the time of the first three abbots it is so designated. In 1201, as appears from two bulls by Pope Innocent III., the name was changed to St. Mary, Cambuskenneth.

The abbey was a house of the Canons Regular of St. Augustine, brought from Aroise Abbey, in the French province of Artois. The monastery was richly endowed. In 1445 the establishment consisted of the abbot, the prior, and seventeen monks. Many of the abbots were distinguished men, and were much employed as statesmen and Ambassadors.

About one hundred years after the above date of 1201 the abbey was in a distressful condition, owing to losses which it had suffered “by the wars which had for a long time raged in those parts, and by the conduct of certain sons of iniquity, who had seized and carried off the chalices, books, and the rest of the ornaments of the altar and other goods belonging to the abbey, and through the destruction of the bell tower by lightning, which had so reduced their circumstances that they were totally unable to repair the choir of the abbey, which was going to ruin.”[82] The abbot{231} and convent appealed to Clement V., and, by a bull dated 15th September 1306, he conferred on the convent, by way of compensation, the perpetual vicarage of the Parish Church of Clackmannan. Probably it is to about this time that we may assign the erection of the tower, and that it should be constructed so as to form a place of strength, as suggested above, seems natural from the foregoing narrative.

During the time of Abbot Mylne (1517-48) the great altar and chapter house were rebuilt, and two new cemeteries were formed. These were consecrated and dedicated, on 11th July 1521, by James, Bishop of Dunblane. Regarding the existence of a previous chapter house there is ample evidence, but the circumstances which required a new one to be built are not known.

During the time of Adam Erskine as commendator (1562-1608), his chief, John, Earl of Mar, Lord Erskine, built his palace in the High Street of Stirling, and the tradition is that he used the carved stones of the abbey for this purpose. There is no evidence in support of this, and we do not think there is anything in the circumstances to confirm it. We have already referred to the matter at some length.[83]

The Abbey of Cambuskenneth figured prominently in many events of national importance. James III. and his queen, Margaret of Denmark, were here interred before the high altar, and their remains were found in the excavations of 1864, and were reinterred, a stone altar-monument being erected over them by Queen Victoria.

CULROSS ABBEY, Perthshire.

The lofty tower of this venerable abbey stands out prominently on the top of the wooded bank of the Forth, about eight miles below Alloa and six miles from Dunfermline. It is situated in a detached portion of Perthshire.

The small, but ancient, town of Culross, which owes its origin to the abbey, clusters below it on the slope of the hill, and along its base at the river side.

In the seventeenth century the town took a great development, owing to the collieries and other industries established by Sir George Bruce, and the harbour was crowded with shipping. But during the present century this commercial activity has entirely disappeared, and the little town has relapsed into a quiet, old-fashioned place, still, however, full of interest and picturesqueness. Amongst its ancient buildings are the “Study,” the Tolbooth, and the “Palace,” which have been described in the Castellated and Domestic Architecture of Scotland, Vol. II. p. 432, and Vol. V. pp. 25 and 119.{232}

The town is also prolific in ecclesiastical structures, of which the remains of no less than three still exist. The principal of these is the abbey. The others consist of the ruins of the ancient parish church, situated about a mile to the west, and the remnants of the Church of St. Mungo, which lie at the base of the slope a short way to the east of the town.

The abbey was founded, in 1217, by Malcolm, third Earl of Fife. Almost nothing is known of its history, but it is believed to occupy the site hallowed by the memory of St. Mungo and his reputed preceptor, St. Serf or Servanus. St. Mungo is, by tradition, said to have been born on the shore of the Forth at this place, whither his mother was miraculously brought by a storm, and to have been nurtured and trained by St. Serf, an ancient Celtic ecclesiastic, already settled at Culross. This story, however, is discarded by Dr. Skene, who maintains that St. Mungo or Kentigern died in 603, while Servanus did not found the Church of Culross till the end of the seventh century.

This ancient foundation was apparently revived by Earl Malcolm, who introduced a body of Cistercian monks from Kinloss, of which abbey, Hugh, the first prior, was abbot.

From the evidence of the architecture it is apparent that the establishment founded by Earl Malcolm was erected in the thirteenth century. Considerable remains of that period, and some walls of what might be regarded as of earlier date, are still traceable; but the principal parts of the existing church, which has been much altered, are of considerably later date.

The plan of the church is peculiar (Fig. 635). Its most conspicuous feature is the tower, which rises from the ground in the centre of the building, with four solid walls. To the west of this tower are a few relics of what appears to have been a separate church, while to the east of it is a complete church, consisting of the choir, north and south transepts, and a portion which may be called the nave, running westwards from the crossing to the tower.

A few fragments of the old monastic structures also survive. Adjoining the south transept are parts of two early doorways, and running southwards from the west end of the west church are the manse (which comprises old walls) and a large groined hall, which may have formed the hall of the lay brothers of the convent. A vaulted passage adjoins it, leading into the manse garden, which evidently occupies the site of the original cloisters. The church formed the north side of the quadrangle, while along the south side stretched a series of buildings which, doubtless, contained the refectory. Owing to the slope of the ground these erections are supported on vaults, part of which still remains.

The site of the church is level throughout its whole length on the{233} north and east, and along the south side of the choir as far as the tower within the walls shown on Plan. The cloister garth and the buildings on the west side stand on ground about 10 feet lower, while along the south side of the cloister the ground suddenly descends about 20 feet. It was thus necessary, beneath the vaulted buildings shown on the south-west side, to bring up extensive vaulted cellars, which extended along the south and east sides of the cloister as far as the chapter house. All these under-buildings are clearly shown by Slezer, who represents this abbey with some minuteness as it existed in his time (1693).

[Image unavailable.]

Fig. 635.—Culross Abbey. Plan.

Considerable remains of the church and abbey buildings are still standing, either in a ruinous or greatly altered condition. Extensive alterations were made on the fabric in the sixteenth and seventeenth{234} centuries to adapt certain portions of the old buildings to modern purposes, and the eastern end of the edifice is now used as the parish church. There have been, as already stated, an east and a west church, separated from each other by a central tower rising solidly from the ground. The tower and the east church are still entire, but of the west church only the south wall and the start of the north wall at the tower now remain, as shown on Plan. Both churches have been of about the same dimensions—viz., 78 feet by about 21 feet 6 inches wide, and both are without aisles.

The south wall of the west church has some indications of transition work, the masonry being arranged in the cube courses peculiar to early work. Towards the west end (in the gable of the manse) there is a round arched doorway, now built up, but it contains very little indication of style. This was, doubtless, the usual entrance to the nave from the west end of the cloister. The south wall is about 7 or 8 feet high from the level of the nave floor, and more than twice that height from the level of the cloisters. The windows were above the top of the wall, as is seen at the east end adjoining the tower, where there exist the springing and jamb of a window, with continuous mouldings both on the north and south sides. These are, undoubtedly, fragments of fifteenth or sixteenth century work. Slezer, in his views, shows a series of six or seven round-headed windows at above level along the south side of the west church. It is sometimes conjectured that these may have been Norman, but certainly the existing jambs of the eastmost windows above referred to are not so. Slezer, we may remark, is not to be depended on for accuracy of details. It is said that these windows were taken down for materials to build dykes with by the late parish minister, Dr. Erskine.

The position of the west end of this church is a matter of conjecture, but it is almost certain that the present modern entrance gateway is built on its site. The projecting part of wall at X on Plan has a large bead on the corner, and it is clearly the corner of the south-west buttress of the nave, with the base mouldings returned round it.

The lower story of the tower is much older than the portion above it. This is evident from the nature of the building, and also from the door and window openings in it. Entering from the west church, a low doorway, 5 feet wide, leads into the tower; it is late first pointed in detail, round arched, or very slightly pointed in some of its orders. At each side of this doorway there are arched openings, which recall the recesses on each side of the chancel arch at Tynninghame Church. That on the west side is a low, plain pointed opening, about 3 feet wide, now built up. Between the centre door and the southmost of these built up openings there is a pointed stoup, the lower part of which is buried by a grave mound. Above the doorway, and beneath the sloping marks of the roof of the west church, a wide semicircular window opens into the tower{235}—a singular feature not easily understood. The doorways in the interior of the tower are all of late work—similar to that of the sixteenth century in Scotland. Fig. 636 shows the upper part of the interior of the west door. The style of the work is clearly late. The initials A. M. may stand for the name of Mallet, as there seem to be three mallets on the shield.

[Image unavailable.]

Fig. 636.—Culross Abbey. Interior of Doorway of Tower.

The tower (Fig. 637) measures 84 feet high to the top of the parapet; it has been operated on at various times. The projecting round staircase-turret is an addition of, perhaps, the fifteenth century; the lower part of the tower, as is evident from the west doorway, is probably of the thirteenth century. It is groin vaulted at the first story, as shown on Plan. This vault, and all above, are of sixteenth century work, with the exception of the upper part above the cornice, which dates from this century. The old finishing of the tower is shown by Slezer to have been carried out with a cape house and bartisan like the pele towers, or as shown at the churches of Torphichen, Dysart, and Dundee.{236}

[Image unavailable.]

Fig. 637.—Culross Abbey. Tower from North-East.

{237}

[Image unavailable.]

Fig. 638.—Culross Abbey. View from South-East.

{238}

[Image unavailable.]

Fig. 639.—Culross Abbey. North Transept.

The doorway from the tower to the east church and the passage leading to the chapel, which stood on the east side of the transept, are late Gothic. The east church, as already stated, is a complete cruciform structure, having choir, transepts, and nave in itself. The north transept (see Fig. 637) was built, in 1640, by George Bruce of Carnock, it is surmised, on older foundations. The south transept is, generally speaking, old; it had an east aisle, opening by two arches from the transept and one arch from the choir. This aisle is now removed, and the arches are built up, but their outlines are visible from the exterior (Fig. 638). This aisle is shown by Slezer with a lean-to roof against the transept. In the corresponding position on the north side there appears to have been a similar aisle; part of its east wall still exists (Fig. 639), with an early two-light window, and the remains of what appears to have been a canopied tomb,{239} although Mr. Beveridge[84] regards it as being the doorway to the north aisle. Built against the wall, in an upright position, is the recumbent figure probably belonging to this tomb.

All the original windows of the east church, which were large and important, have been built up during this century, and smaller windows of a debased type inserted, with the exception of the east window (see Fig. 638), which is original, and is of good design; but even this is lost to the interior, being partitioned off in order to allow a gallery stair to pass it.

A part of the west wall of a chapel, which formerly existed to the north of the tower, is indicated by the jamb and springing of a window. A sketch section of its mouldings is given in Fig. 640, as also a section of the mouldings of the door to the turret, which entered from this chapel. These mouldings are evidently not earlier than late fourteenth century work. There are two seventeenth century burial vaults adjoining the north transept. In the larger of these is the fine monument to Sir Robert Bruce of Carnock, illustrated in The Castellated and Domestic Architecture of Scotland, Vol. V. p. 207.

[Image unavailable.]

Fig. 640.—Culross Abbey.

Sections of Mouldings of
Chapel Window and Turret Door.

Adjoining the south transept on the south is the sacristy, now converted into a vestry, and hardly to be recognised as old, owing to alterations. The shape and position of this apartment clearly indicate its original use; it had the usual east window, now built up, and has otherwise been altered.

To the south of the sacristy was the chapter house, which also occupied its normal position. Just enough remains to enable it to be identified, viz., the northmost of the usual three west openings to the cloister (Fig. 641), with the jamb and springing of the central opening, or as much of it as can be seen for the modern walls that are built up against it. This fragment, even in its mutilated state, is a fine example of first pointed work. The inner order of the arch mouldings has fallen away, and otherwise the work has been greatly destroyed, its beauty not having been appreciated. The shafts and arch mouldings (Fig. 642) are all of very bold and pure design. The caps and bases are rounded, and the hood mould, which was also a string course, is ornamented with the dog-tooth. The chapter house had two rows of columns, as is evident from the remains of the springing of the first arch from between the two existing openings as shown in Fig. 641 and the Plan (Fig. 642). It was usual for the two side openings to be unglazed windows rather than doors, but{240}

[Image unavailable.]

Fig. 641.—Culross Abbey. Opening to Chapter House.

{241}

Mr. Sharp, in his paper on “The Architecture of the Cistercians,”[85] points out that it was common for the three openings to be doorways, with the peculiarity seen here that they were not intended to have doors.

[Image unavailable.]

Fig. 642.—Culross Abbey. Door to Chapter House.

[Image unavailable.]

Fig. 643.—Culross Abbey. Entrance to West Side of Cloister.

Of the western alley of the cloister there are considerable remains. The manse, adjoining the nave, appears to include a part of the original{242} buildings. It is dated on the Plan “1647,” that figure being carved on a dormer; but portions of the walls are undoubtedly older, and possibly a thorough examination might reveal ancient features. To the south of the manse is the vaulted entrance to the cloister (Fig. 643), and further southward the truncated remains of the building shown in Fig. 644. The latter enters from the exterior by a narrow door, having a stair in the thickness of the wall adjoining leading to the upper floor. As already mentioned, there are extensive cellars beneath. This range of buildings was what Mr. Sharp calls the Domus Conversorum,[86] or the place for the workmen and servants of the monastery, which contained their day room on the ground floor and dormitory above.

[Image unavailable.]

Fig. 644.—Culross Abbey. Chamber on West Side of Cloister.

About a quarter of a mile north from the abbey there exist the{243} remains of a lodge, with indications of an arched “pend.” The lodge is still in use, but quite modernised. This archway was probably an entrance to the grounds of the abbey.

The most remarkable feature of the edifice is the tower which divides the east church from the west. From its architecture we may at once conclude that the upper portion is a structure of late date, probably of the sixteenth century. The interior doorway (see Fig. 636) is clearly of about that period, but some of the features of the lower story seem, as above mentioned, to point to that part being of an earlier time, probably thirteenth century.

The puzzle here is to understand how this solid tower should have been set down in the centre of the church, thus completely cutting off the western portion from the eastern, and forming two separate churches. Two possible solutions of this difficulty present themselves.

1. The two churches may have been intentionally kept separate, the western portion being the parish church and the eastern that of the monks. Such an arrangement is unusual in Scotland, but Mr. Freeman has described several churches in England where one portion belonged to the parishioners and the remainder to the monks. The chief difficulty connected with this theory is that the parish of Culross (as above mentioned) was provided with a separate parish church at a little distance away.[87]

2. The second supposition is that, in course of time, the monastery may have dwindled, and the buildings may have fallen into disrepair. The question would then arise whether it would not be better to diminish the size of the church by abandoning the western portion and erecting the tower where it stands. This might have occurred towards the close of the fifteenth century. But there are difficulties connected with this solution of the problem also. The tower shows the springing and jambs of windows on its west side, which appear to be of about the same date as itself, thus indicating the intention of continuing the structure westwards and restoring the old west church.

THE OLD PARISH CHURCH OF CULROSS, Perthshire.

A ruinous structure, situated about one mile north-west from the abbey. It is a plain oblong (Fig. 645), 71 feet long by 16 feet wide (inside), with walls about 3 feet thick, but parts of them have been recently rebuilt on the old foundations. It is thus impossible to say what{244} the original arrangement of doors and windows may have been, only one small pointed window, which seems to be original, remaining next the south doorway. A north and south doorway face one another towards the west end, but these have evidently been inserted at a late date. Both doorways have straight lintels (Fig. 646), and these consist of ancient tombstones, carved with foliaged crosses and swords (Fig. 647).

[Image unavailable.]

Fig. 645.—The Old Parish Church of Culross. Plan.

[Image unavailable.]

Fig. 646.—The Old Parish Church of Culross. Interior, looking East.

Numerous other recumbent tombstones are found in the church, and some have been placed against the east wall when it was rebuilt. A{245} top stone containing the socket for a cross is preserved at the east end. The south doorway has probably had a porch.

This church had apparently fallen into decay before the Reformation, for in 1633 an Act was passed making the abbey the parish church, and stating that the abbey church had been used for preaching since the Reformation, and that the church called the “Parioche Kirk, where service is not nor has been since the memory of man, is altogether ruinous, decayed, and fallen down in certain parts.”

It is still surrounded with the old burying-ground, which contains some interesting monuments. A large tombhouse has been built, like a transept, on the south side of the church. It appears to be an erection of the seventeenth century.

[Image unavailable.]

Fig. 647.

The Old Parish Church of Culross.
Tombstones used as Door Lintels.

BEAULY PRIORY, Inverness-shire.

This monastery was pleasantly situated on the north side of the river Beauly, not far from the point where it falls into the sea at the head of the Beauly Frith, which forms the inner portion of the Moray Frith. The land is level and fertile, and the scenery on the river is very beautiful. The priory is about ten miles west from Inverness, and about one mile from Beauly Railway Station. It is believed to have been founded in 1230, and was thereafter endowed by Sir John Bisset of Lovat.[88] The priory was dedicated to St. John the Baptist, and was occupied by seven French monks of the Order of Valliscaulium. This was one of the strict orders established at the time of the revival of religion in the twelfth century. The mother house of the order was at Langres, in Burgundy. Of this order there were only three priories in Scotland: one at Pluscarden, in Morayshire; one at Ardchattan, in Argyle; and one at Beauly. The monks were austere in their lives, and formed a centre of devotion and enlightenment in the midst of these wild and uncivilised districts. The charter of the foundation was confirmed by Pope Gregory XI. in 1231. The priory was probably erected during the thirteenth century, but its records are few for a long period.

The Frasers succeeded the Bysets in the lands surrounding the priory, and Hugh Fraser, who was first Lord of Lovat, died in 1398. His son,{246} Alexander, was a great benefactor of the priory, and is said to have erected a beautiful steeple of carved oak on the west gable, and put curious bells therein.

Hugh Fraser (about 1430-40) afforded means for building the north work of the priory and the chapel of the Holy Cross.

The church was soon after repaired at the expense of the superior, a natural son of Alexander of Kintail, who was there buried, A.D. 1479. His tomb is opposite that of his brother, Sir Kenneth Mackenzie of Kintail, with the date 1491. Sir Kenneth was the first of his family who was buried at Beauly, having married a daughter of Lord Lovat and obtained the Beauly property.

In 1530 Abbot Robert Reid of Kinloss received a gift of the Abbey of Beauly in commendam.[89] It is recorded by Ferrerius that many new buildings were erected and old ones repaired by this abbot. He is stated to have collected materials in 1537 and to have rebuilt the nave in 1540, and the structure bears evidence of his operations. He also restored the bell tower, which had been destroyed by lightning; but in 1541 that work was demolished, and the bells destroyed by a violent storm, which also did much damage throughout the country.

In 1544 Bishop Reid (being now promoted to the See of Orkney) removed the ruinous house of the prior, and erected a new and spacious house, with six vaults on the basement; but of this structure there is now no trace.

Robert Reid was succeeded, as commendator, by his nephew, Walter Reid, who was also his successor in the abbacy of Kinloss. The possessions of the Priory of Beauly were alienated, in 1571, by Walter, the new commendator, as were also those of Kinloss. The lands thus became the property of the Lovat family. On the forfeiture of Lord Lovat, in 1516, the abbey reverted to the Crown.

The priory consisted of the church, with a cloister to the south, which was, in all probability, surrounded by the usual monastic buildings; but the latter, including the spacious prior’s house erected by Bishop Reid, have almost entirely disappeared. The walls of the church (Fig. 648) survive, but even these have been sadly abused. The buttresses have all been torn down, apparently for the sake of the freestone dressings, and the tracery of the windows has been greatly demolished.

The church consists of a single long aisleless chamber, a little over 150 feet in length by 24 feet 6 inches in width (within the walls). The eastern part formed the presbytery and choir, and the western part the nave, but there is no architectural feature to mark the divisions. About the place where a transept might have been there are two projections, which break the long line of the exterior. These projecting chambers or chapels are shut off from the main church by solid walls containing door{247}ways and monuments. They thus formed separate chapels, or one of them may have been a sacristy. The architecture of the choir and presbytery (Fig. 649) is remarkably fine, and is of first pointed character. Although in this remote region its date may probably be later than usual, it can scarcely be, as Mr. Muir suggests, so late as the beginning of the fourteenth century.

The details are very simple, the jambs and arches having plain splays. The caps of the shafts adjoining the windows in the interior are moulded and have round abaci, but the shafts, which were detached in the early manner, have disappeared. The arrangement of the arches is different on the two opposite sides. The east window was very wide, and, doubtless, was filled with tracery, which had several mullions. This may have been a later addition; the tracery has entirely disappeared. The lower portions of the buttresses of the choir have been rebuilt within recent years, probably in consequence of an agreement entered into between Lord Lovat and the Crown, whereby the former undertakes to keep the buildings in good repair.

[Image unavailable.]

Fig. 648.—Beauly Priory. Plan.

The most striking feature of the nave is the row of triangular pointed windows running along the south side (Fig. 650). These have evidently been curtailed in height in the design, so as to admit of the roof of the cloister walk resting against the south wall of the church, the corbels for its support being yet visible. The west end of this wall has evidently had domestic buildings of a high and substantial character erected against it, some fragments of which still remain, showing a fireplace, portions of a staircase, &c. (see Fig. 650).{248}

[Image unavailable.]

Fig. 649.—Beauly Priory. Choir, looking East.

The western façade bears the marks of Bishop Reid’s workmanship, and is no doubt part of what is meant to be attributed to him when it is said that he rebuilt the nave. The triangular south windows above mentioned, and the two light pointed windows on the south side of the nave, are undoubtedly much earlier than his date, which was about 1540-50, but other parts of the walls of the nave may have been re-erected by him when he restored the west end. The latter (see Fig. 650) is beyond doubt his work. The doorway in the centre, the arch of which is semicircular, contains the monogram I.H.S. on one of the label terminations, while the other drip stone shows two hands and two feet, with a heart in the centre (Fig. 651), emblems of the Passion. The arch of the doorway is round; but this, as we have seen elsewhere, is a common feature in Scottish work of all dates, and occurs especially often in late work.

The upper part of the west wall contains three pointed lancet windows, and is an example of the revival of early features in late work. Some of{249} the windows in the side walls are of similar form, and are probably of the same date. The sill of the central window in the west end is kept high, so as to admit of a shallow ogee-headed niche for a figure over the entrance door. The figure may have represented the Baptist, but the niche is now empty. On a panel on the sill are Bishop Reid’s initials, R. R., and his arms, a stag’s head (see Fig. 651).

[Image unavailable.]

Fig. 650.—Beauly Priory. Nave from South-West.

The part of the church which projects to the north measures 25 feet by 22 feet 6 inches internally. It has been vaulted in two bays, the vaults springing from corbels in the walls; part of the vault still remains. This chamber is said to have been the sacristy. It has a turret at the north-west angle, containing a stair to the roof. In a recess in the wall which divides this chapel from the choir lies the tomb (abovementioned) of Sir Kenneth Mackenzie of Kintail.

We have seen that the “north work” was erected at the expense of Hugh Fraser (1430-40), and the style of this chapel corresponds with that date.

[Image unavailable.]

Fig. 651.—Beauly Priory.

Drip Stone and Panel.

The repairs carried out by Prior Alexander were probably the work required for the erection of the tomb of Sir Kenneth and his own tomb,{250} which was in a recess in the choir on the opposite side of the wall from that of Sir Kenneth.

[Image unavailable.]

Fig. 652.—Beauly Priory. Tomb of Sir Kenneth Mackenzie.

The tomb of Sir Kenneth (Fig. 652) is a good specimen of the work of the period, and is very similar to other tombs of the same kind at Fortrose and Fearn. The recumbent figure, clad in full armour, rests on an arcaded tomb or pedestal, and the recess, which is covered with a pointed canopy, is enriched with a crocketed label and pinnacle bearing a shield, and the whole tomb is flanked by two thin buttresses. On the sill is engraved the following inscription:{251}—“Hic Jacet Kanyens M. Kynych d’us de Kyntayl. q. obiit dii Februarii A. Di M.CCCC.LXXXXI.

The chamber to the south of the choir has also contained monuments, but they are now destroyed. It measures 22 feet by 17 feet internally, and seems to have been connected by a door with the conventual buildings to the south. It has contained two stories, the upper story forming a gallery, connected with the church by a wide arch (see Fig. 649).

The choir contains a double piscina, near the east end, in a good first pointed style.

Under the triangular windows in the south wall of the nave are a piscina and ambry. These mark the position of an altar, which may have been erected at the rood screen, which probably separated the nave from the choir at this point, thus dividing the portion of the church open to the parishioners from that reserved for the clerics. Opposite this piscina there is a door (now built up) in the north wall, and near it, on the outside, there is another piscina. This may possibly mark the position of another chapel, which may have been that of the Holy Cross above, said to have been erected by Hugh Fraser in the fifteenth century.

NEWBATTLE OR NEWBOTLE ABBEY,[90] Mid-Lothian.

Newbotle Abbey or, as it is now called (without the name having any special meaning), Newbattle Abbey is situated on the river Esk, about two miles south from Dalkeith. It was founded by David I. in the year 1140, for monks of the Cistercian order, who were brought to Newbotle (or new residence) from Melrose. The “leader of the colony” appears to have been Ralph, the first abbot, who obtained numerous gifts and privileges for the convent, and consecrated a “cemetery within the precinct of the monastery.” The second abbot, Alfred, who died in 1179, was also a great benefactor to the abbey. He brought to it many relics, which he enclosed in a silver chest. “He adorned the chapter house with handsome seats, and also erected proper stalls, with convenient desks or menologies of wood, in the cloisters on the side where the ‘collation’ or reading of the lives of the saints was held, for the use of the brethren during the reading of collation before compline at the washing of feet at Maunday.”[91]

During the time of the tenth abbot, Constantine, the church was dedicated by Andrew de Moravia, Bishop of Moray, in March 1233.

In the year 1241, Mary de Couci, queen of Alexander II., “looking to her time of peril, and impressed with the frail tenure of life, bequeathed her body to be buried in the church of Newbotle.”[92] This would seem to{252} indicate that the fabric of the church, if not finished by this time, was far advanced. Mary de Couci survived for about thirty years, when her desire to be buried here was carried out; and Father Hay describes her tomb, apparently from the record of an eye-witness. “In the midst of the church was seen the tomb of the queen of King Alexander, of marble, supported on six lions of marble. A human figure was placed reclining on the tomb, surrounded with an iron grating.”[93]

In 1275 Waldeve, the seventeenth abbot, “going the way of all flesh, with blessed end, departed to the Lord, leaving his house in full peace and excellent condition.”

Gervase, the nineteenth abbot, who demitted office in 1323, settled for ever on the infirmary of the abbey an annual rent of three merks, “to be expended for the uses of the sick and the recreation of the feeble.”[94] These few notices seem to show that about the middle of the fourteenth century the abbey was in a fairly complete state. It possessed great estates in the counties of the Lothians, Lanark, Peebles, and Stirling. Father Hay writes that, about this time, he “finds, from the books of receipts and expenses, the annual income of the monastery could maintain eighty monks and seventy lay brethren, with the corresponding establishment.”[95]

But evil days were at hand. In 1385, during the expedition of Richard II., “the English,” writes Father Hay, “burnt the monastery of Newbotle; and, at the same time, several of the granges and farms of the monastery were destroyed, and the others were deserted, while the lands were left untilled. The towers or peles, built by the monastery for protection against English marauders, fared in the same way. Some of the monks were carried away prisoners; others fled to other monasteries. The few who remained in the abbey, having scarce sufficient food, were compelled, by great distress, to sell twenty-nine excellent chalices, nine crosses of exquisite workmanship, and other sacred ornaments, with their silver household plate. At that time the greater part of the abbey tower was ruined by the falling of the cross.” These events happened during the time of Hugh, the twenty-third abbot.

The work of restoration was, doubtless, gone on with as soon as convenient; and, in 1390, Sir James Douglas of Dalkeith, by his will, gave his body to be buried in the monastery of St. Mary of Newbotle. “At the same time he bequeathed to the abbey a ‘nowche,’ or jewel of St. John, worth 40 merks, or its value, and, in addition, £23, 6s. 8d. for the building of the church and wages of the masons employed upon it. For the service of the monks’ refectory he gave twelve silver dishes, weighing{253} eighteen pounds, six shillings sterling, enjoining his heirs to see that they should not be abstracted from the use of the refectory or sold.”[96] Two years later Sir James, in another will, bequeaths similar sums to the abbey, without appropriating a part to the building or to the payment of workmen, which seems to show, as Mr. Innes remarks, that the rebuilding of the abbey church had been completed in the meantime.

In 1419 Edward of Crechton paid a sum for the restoring and building of the monastery.

In the Hertford expedition of 1544, “upon the 15th day of May the horsmen raid to Newbottill and brynt it.”[97] As is remarked by Mr. Innes,[98] this was, perhaps, but a partial destruction, as, three years afterwards, Mary of Lorraine held at Newbotle a great convention of the lords of her party, preparatory to declaring war with England.

The last so-called abbot was Mark Ker. He is styled Commendator of Newbotle in 1560; and the lordship of Newbotle, being conferred on his son, has remained with their descendants to the present day.

Such is the scanty history of this great abbey, so far as relates to the structure and ornaments; but of the former almost nothing remains above ground except part of the monastic buildings on the east side of the cloisters.

The abbey, including the church, appears to have been almost completely demolished shortly after the Reformation, the only parts of the monastic buildings allowed to remain being the fratry and portions of the chapter house, which were incorporated with the mansion house, and of the former of which a view has already been given.[99]

The accompanying Plan (Fig. 653) has been prepared by Mr. John Ramsay, the resident Clerk of Works to the Marquis of Lothian, showing the result of considerable excavations recently carried out at the building, together with some details which have been discovered. The Plan shows that the buildings extended about 400 feet from north to south by about 270 feet from east to west, and that the monastery was of the usual plan.

The recent excavations deal chiefly with the foundations of the abbey and church, although explorations within the mansion have also brought to light some old work hitherto concealed from view. The first discovery of the existence of buried portions of the abbey was made in 1878, when some works were in progress; and again, in 1892,{254}

[Image unavailable.]
A. Presbytery.
B. Crossing.
C. Nave.
D. North Transept.
E. South Transept.
F. Slype or Sacristy.
G. Chapter House.
H. Fratry.
I. Large Hall.
J. Necessaria.
K. Kitchen.
L. Refectory.
M. Passage with Stair.
N. Cellars.
O. Entrance to Cloister.
P. Perhaps Porter’s Room.
Q. Cellars or Workshops.
R. Necessaria of the Conversi.
S. S. Arched Culverts, separated by a Wall.
T. South Boundary Wall.

Fig. 653.—Newbattle Abbey. Plan.

{255}

when digging was going on connected with the planting of trees, some further remains were found. But in 1893-4 a systematic search was made, both above and below ground, which enabled an almost complete Plan of the abbey to be accurately measured and laid down.[100]

[Image unavailable.]

Fig. 654.—Newbattle Abbey. Bases in West Side of Cloister (at Q).

The total length of the abbey church, within the walls, was 239 feet 3 inches, and on the exterior 253 feet 3 inches; while the interior width was 57 feet 1 inch, and the exterior width (excluding the buttresses) was 66 feet 7 inches. The nave, which contained ten bays, had a length of 161 feet 6 inches, and its central aisle a width of 31 feet, while the side aisles were 13 feet. The choir and presbytery comprised one bay and a-half, and had two large piers, each 10 feet in diameter. The crossing had four similar large piers, and measured 41 feet 9 inches over the piers. The piers supported a tower over the crossing. The transept was 117 feet 6 inches in length from north to south, and had an eastern aisle, making the width 45 feet. The north transept had enormous angle buttresses and a square pier. The large piers and flat angle buttresses of the choir indicate early work, probably Norman.

The great angle buttresses at the north transepts belong, doubtless,{256} to a late period. The Plan clearly shows that they have been added to existing flat buttresses, in the same manner as was done at the east wall of St. Andrews Cathedral. Unfortunately, no details have been discovered to enable the date to be more definitely fixed.

[Image unavailable.]

Fig. 655.—Newbattle Abbey. Font.

{257}

[Image unavailable.]

Fig. 656.—Newbattle Abbey. Seated Figure of Ecclesiastic.

The east side of the cloister, which is included in the modern mansion, extends southwards from the church for a distance of about 200 feet. Adjoining the transept has been the slype or sacristy; then comes the chapter house, of which only the bases of a double row of pillars remain. It was about 35 feet long by 27 feet wide, and projected towards the east; but the east end, being under the mansion, cannot be explored. The buildings adjoining to the south are well preserved on the ground floor. They are erroneously designated the crypts, as they are entirely above ground. The long range, with central pillars, was the fratry, beyond which was a large hall. On the south side of the cloister there was a passage and a well-preserved kitchen, with a large fireplace, measuring 12 feet 6 inches by 6 feet, and having still traces of smoke. Adjoining it, to the west, are the foundations of the refectory, 106 feet long by 33 feet 6 inches wide. It will be observed that, as usual in Scotland, the refectory is parallel with the church. On the west side of the cloister the foundations of several buildings have been laid bare. Next the nave there has been a passage containing a staircase to the dormitory of the{258} conversi; then came a large apartment, 67 feet long by 28 feet 6 inches wide; then the entrance passage to the cloister, 6 feet 2 inches wide, with a doorway 4 feet 9 inches wide. To the south of this is another large apartment, 68 feet long by 23 feet 9 inches wide, having foundations of a central row of pillars, the bases of which are all different (Fig. 654). Still farther south are found remains of a large arched conduit or drain, 2 feet 6 inches wide, and the same height.

In the vaulted fratry there stands an old font (Fig. 655), which was found at Mavisbank House, some miles distant, about the year 1873, by workmen when digging for foundations of proposed new buildings. On the supposition that it contained the arms of Abbot Hasmall, and therefore belonged to Newbattle, it was brought here. It is interesting as being evidently intended, from the coats of arms with which it is adorned, to be a memorial of the royal family during the first half of the sixteenth century. The arms it contains are:—

1st Shield.—Arms of Ramsay.

2nd Shield.—Arms of Margaret of England (daughter of Henry VII.), wife of James IV.

3rd Shield.—Arms of Magdalene of France (daughter of Francis I.), first wife of James V.

4th Shield.—Arms of Scotland (James V.)

5th Shield.—Arms of Marie of Lorraine (daughter of Claude, Duke of Guise), second wife of James V.

6th Shield.—Supposed to be the arms of James Hasmall, Abbot of Newbotle (1542-1554).[101]

7th and 8th Shields.—Blank.

Only the bowl of the font is old. It is octagonal, and measures about 2 feet 6½ inches in width and 12½ inches across each face. The height of the bowl is 1 foot 7½ inches, and the depth 13½ inches, with a square hole at bottom.

There is also preserved at Newbattle the seated figure of an ecclesiastic, holding a book on his knee (Fig. 656). It is probably a work of the fourteenth or fifteenth century, as in the earlier years of Cistercian rule figure representations were prohibited; and the little rosette ornament seen on the sedilia indicates that period. The head is unfortunately broken, but the figure otherwise is beautifully preserved. The total{259}

[Image unavailable.]

Fig. 657.—Newbattle Abbey. Details of Mouldings.

[Image unavailable.]

Fig. 658.—Newbattle Abbey. Details of Doorway, &c.

{260}

height of the fragment is about 27¼ inches, and the breadth about 15 inches, with a relief of about 5 inches.

[Image unavailable.]

Fig. 659.—Newbattle Abbey. Mouldings of Doorway.

[Image unavailable.]

Fig. 660.—Newbattle Abbey. Details of Mouldings.

A number of stones containing mouldings have been found, some of the sections of which are shown. Some of the mouldings (as in Figs. 657, 658, and 659) are early, while the other mouldings (as in Figs. 660, 661, and 662) are for the most part late. It is not known to what parts of the{261}

[Image unavailable.]

Fig. 661.—Newbattle Abbey. Details of Mouldings.

[Image unavailable.]

Fig. 662.—Newbattle Abbey.

Vaulting Ribs.

 

Fig. 663.—Newbattle Abbey.

Cap and Base of Doorway.

building any of these details belonged, except in the case of Fig. 659, which is from the doorway at the west end of the refectory. The door entered from the western cloister walk, and is partly in situ. Fig. 663{262} represents a cap and base supposed to belong to the nave arcade, from their having been found in the nave.

Fig. 660 gives a series of arch mouldings, one of them being a window, with its mullion. The door jamb, with its base mouldings (Fig. 661), is probably a fifteenth or sixteenth century piece of work.

[Image unavailable.]

Fig. 664.—Newbattle Abbey. Details of Tiles.

A. An Olive-Green Ground, White Pattern.

B. A Red Pattern on a White Ground.

The different colours are done in the surface glazing.
It is put on about ⅛ inch thick, and the thickness of the tiles from 1¼ to 1½ inch.

 

Fig. 665.—Newbattle Abbey. Details of Tiles.

Ground Dark Green. Yellow Pattern, on a cut out Tile.

Fig. 662 shows a series of vaulting ribs, the two upper ones being of a somewhat early date, while the others are later in character.

Many tiles have been found in the ruins, which are now preserved in the house; and a few of them are illustrated. In Fig. 664 we have two square tiles, the lesser one having an olive-green ground with a white pattern; the larger one is a red pattern on a white ground. Those shown on Figs. 665 and 666 are shaped tiles, cut out by hand to the actual form of the figure, so that each separate tile is of one colour—in Fig. 665 it is a dark{263} green ground with a yellow figure, and on Fig. 666 a black and brown ground with a white figure.

[Image unavailable.]

Fig. 666.—Newbattle Abbey. Details of Tiles.

LISMORE CATHEDRAL, Argyleshire.

The Island of Lismore lies near the south end of Loch Linnhe, and at a short distance from the mainland of Argyleshire. In 1236 the See of the Bishopric of Argyle was transferred from Mackairn, on the south side of Loch Etive, to Lismore, where a Columban monastery had been founded by St. Moluoc at an early period.

The cathedral was probably erected soon after the transference of the see in the thirteenth century. It is said to have been a structure 137 feet in length by 29⅓ feet in width. Of this pile there now only survives a single quadrilateral chamber, without aisles, used as the parish church, and measuring internally 51 feet in length by 23 feet 6 inches in width (Fig. 667). It has four buttresses of simple form against the south wall, and two at each of the north and south angles of the east wall. The walls and buttresses are entirely covered with rough casting. There is a doorway near the centre of the south wall (Fig. 668) which has had a{264} nook shaft on each side, and a round arched head with a water table, but its details are destroyed. In the interior the arched head is segmental, and the label has bold first pointed terminals (Fig. 669). There has also been a sharply pointed doorway in the north wall (Fig. 670)—now built up—which retains in the interior a label moulding with head terminations, one being the head of a bishop.

[Image unavailable.]

Fig. 667.—Lismore Cathedral. Plan.

[Image unavailable.]

Fig. 668.—Lismore Cathedral. View from South-East.

In the south wall, and in the usual position near the east end, there are remains of a triple sedilia, much damaged, but having shafts between the seats, with moulded caps (Fig. 671). There is also a piscina in a{265} pointed recess, having a trefoil headed niche in the wall behind, all much damaged (see Fig. 671).

[Image unavailable.]

Fig. 669.—Lismore Cathedral.

Interior Terminal of South Doorway.

 

Fig. 670.—Lismore Cathedral.

North Doorway.

In the exterior of the north wall, and near the buttress at the east end, there has been an ambry. This ambry, together with the absence of buttresses on the north side, seems to indicate that there was a building on that side, probably in the form of an aisle, connected with the cathedral. The eastmost portion was probably the sacristy, which would enter by the north doorway. On the south side of the church the wall, with its buttresses (see Fig. 668), has evidently been the exterior of the church. It contains a segmental headed modern window in each bay. The south buttress of the east wall is widened at the lower part, and contains a round arched recess, in which there has probably been a monument. The east end has been greatly altered, and has had a staircase block built against it, and a gallery door and high window inserted.

[Image unavailable.]

Fig. 671.—Lismore Cathedral.

Piscina and Cap of Shafts of Sedilia.

The western wall, with its doorway, which has plain sloping jambs all covered with rough-cast, is, doubtless, a comparatively recent construction, built when the choir was converted into the parish church and reroofed in 1749.

There are traces of old buildings to the west, which are now used as private burial-grounds, but it is impossible to say what purpose they formerly served.{266}

ST. KENTIGERN’S, Lanark, Lanarkshire.

The Parish Church of Lanark existed in the twelfth century, and was conveyed, with its possessions, to the Abbey of Dryburgh by David I. This conveyance is frequently confirmed in subsequent deeds.

[Image unavailable.]

Fig. 672.—St. Kentigern’s. Plan.

[Image unavailable.]

Fig. 673.—St. Kentigern’s. View from North-West.

The church, from time to time, received numerous gifts of lands and houses from the burgesses and the neighbouring proprietors. Amongst{267} other endowments, a chaplaincy was founded in the beginning of the fifteenth century by John Simpson, burgess of the town. The income of the church and its lands was drawn by the monks of Dryburgh, and the cure was served by a vicar and curates. At the Reformation the lands went with the Abbey of Dryburgh, which was erected into a temporal barony.[102]

The Church of St. Kentigern was used for service long after the Reformation, and was only abandoned when a new church was erected in the middle of the town in 1777.

[Image unavailable.]

BASE OF DOORWAY AT A

Fig. 674.—St. Kentigern’s.
Plan and Base of
Doorway Shaft.

[Image unavailable.]

Fig. 675.
St. Kentigern’s.
Caps of Piers.

[Image unavailable.]

Fig. 676.—St. Kentigern’s. South Elevation.

St. Kentigern’s stands in the old burial-ground, about one-quarter of a mile south-east from the town. It has been of an unusual arrangement of plan (Fig. 672), consisting of a double chamber, divided by a row of pillars and arches down the centre, each division possibly, and one division certainly, having a chancel at the east end. The northern division has almost entirely disappeared, but the central row of pillars and arches (Fig. 673) and the walls of the southern division are still fairly preserved. At the point A on Plan is the base of a doorway shaft (Fig. 674), which was discovered some years ago by excavation. This possibly represents the north doorway of the church. If so, the north division was about 2 feet wider than the south division. The south division is 74 feet in length by 20 feet in width internally. The five pillars are alternately round and octagonal, and the two responds are half octagons. The caps (Fig. 675) are of varied and good design, and the arches have a double splay on each side.{268}

[Image unavailable.]

Fig. 677.—St. Kentigern’s. South Doorway.

The south wall (Fig. 676) contains the relics of a fine first pointed doorway, and five narrow lancet windows with wide splayed reveals inside. The doorway has had two nook shafts on each side, with markedly first pointed{269} foliage in the caps (Fig. 677), and the pointed arch has bold and characteristic mouldings (Fig. 678). The west wall (see Fig. 673) has been much ruined, and is now restored. At the east end there is a chancel arch fully 8 feet in width. The responds which support it are half octagons, and the arch has a double splay on each side. There are traces of small nail-head ornaments on the caps. All the details point to the work being of the first pointed period. The chancel is entirely gone, but the marks on the wall show that it has been about twelve feet in width. There is a small lancet window, with wide internal splay, in the east wall to the south of the chancel arch, and the latter is placed close to the central row of pillars. This arrangement seems to have been adopted so as to bring the chancel as near the centre of the church as possible, perhaps with the view of enabling it to serve as the chancel for the whole church, as there may have been no chancel to the east of the northern division. But this point could only be ascertained by excavation. To the east of the northern division, where a chancel might have been, there has been erected (probably in the seventeenth century) a mausoleum or tombhouse for the family of the Lockharts of Lee. This rather seems to support the idea that there was no chancel in that position.

[Image unavailable.]

Fig. 678.—St. Kentigern’s.
Arch Mouldings of South Doorway.

BURNTISLAND CHURCH, Fifeshire.

At Kirkton, a village lying a short way north of Burntisland, there stand, in an old churchyard, the remains of an ancient church, believed to have been dedicated to St. Adamnan or St. Serf. The church (Fig. 679) consists of a nave and chancel and remains of a south aisle. The nave measures 41 feet 9 inches in length by 20 feet 6 inches in width externally, and the chancel is 27 feet 6 inches long by 17 feet 9 inches wide externally. The chancel is architecturally distinguished from the nave being diminished by 14 inches in width on each side, and the chancel arch is pointed, with an opening 7 feet 8 inches wide, and consists of a single plain order springing from imposts having a simple splay (Fig. 680). The jambs of the opening are plain, and have a splayed base. The opening has been built up so as to enclose the chancel for a private burial-place. The chancel contains the usual priests’ door in the south wall, and two narrow pointed windows on the same side, greatly splayed{270} to the interior. It is remarkable that there is no window in the east end, and the north wall is also blank.

[Image unavailable.]

Fig. 679.—Burntisland Church. Plan.

[Image unavailable.]

Fig. 680.—Burntisland Church. View from North-West.

The south wall of the nave has been removed, probably when a south aisle was added. Its place was, doubtless, at one time supplied by pillars and arches, but they are now gone. Part of the outer wall of the south aisle still remains. To the south of this there is a small building, which may have been a sacristy, or perhaps a tombhouse.{271}

The north door to the nave is still partly preserved, and there was probably a south door opposite it. In the west end, which still exists (see Fig. 680), there is a simple pointed window, greatly splayed within.

The walls are built with freestone ashlar. All the features seem to indicate that the church was erected in the thirteenth century, although it has been surmised that it was rebuilt in the fifteenth century. The simplicity of the chancel arch and the absence of an east window are against that supposition.

PRESTONKIRK CHURCH, Haddingtonshire.

[Image unavailable.]

Fig 681.—Prestonkirk Church. Plan.

 

Fig. 682.—Prestonkirk Church.
Details of Buttress and Window.

This church, like several others in the eastern part of this county, is dedicated to St. Baldred of the Bass Rock.[103] It is situated within a mile of East Linton Railway Station. The church has originally been a first pointed edifice, but now there only survives a small eastern choir of that period, the main body of the church having been rebuilt. The choir (Fig. 681), which is now cut off from the church by a solid wall, is 15 feet long by 17 feet 6 inches wide internally. It has three tall lancet windows of equal height in the east end (Fig. 683), separated by first pointed buttresses of good form, as seen in the detailed sketch (Fig. 682).{272} The south wall has two simple lancets with hood moulds, and on both sides there is a broad set-off below the windows. The north wall is plain, and without special features. The building is a pleasing fragment of first pointed work.

[Image unavailable.]

Fig. 683.—Prestonkirk Church. View from South-East.

{273}

COWIE CHURCH,[104] Kincardineshire.

[Image unavailable.]

Fig. 684.—Cowie Church. Plan.

 

Fig. 685.—Cowie Church.
Moulding of Doorway.

[Image unavailable.]

Fig. 686.—Cowie Church. View from South-East.

This ruined structure, is situated near the coast on the north side of Stonehaven Bay, about a mile from the town, and stands in an ancient churchyard still in use. This church is an example of a simple oblong structure in the first pointed style. It measures (Fig. 684) 70 feet in length by 18 feet in width internally. The walls are built with whinstone, and the door and window dressings are of freestone. The north wall is broken down to near the level of the ground. The interior has been lighted by three lancet windows in the east end, and there has also been a stunted window inserted in the west gable. The doorway is the only opening in the south wall which is still partly entire. It has a segmental arched lintel, and is moulded on the outer angle of jambs and lintel. The moulding (Fig. 685) would indicate a late period. The north wall is broken down almost to the foundations. There is a plain sacrament house in the north wall near the east end.{274}

[Image unavailable.]

Fig. 687.—Cowie Church.

 

Fig. 688.—Cowie Church.

Inside of East Windows.

The three lancet windows in the east end (Fig. 686) are the only features with noticeable details. They are of different heights, and are arranged in good proportion. The external jambs and arches have an outer splay (see section, Fig. 687), inside of which they are checked for shutters, the windows having never been glazed. The arched heads have pointed and splayed rear arches and wide ingoings (Fig. 688).

THE ABBEY OF DEER, Aberdeenshire.

This monastery was situated in a beautiful valley on the banks of the river Ugie, one mile and a quarter south-west of Mintlaw Railway Station. It was founded in the year 1218 by William, the first Earl of Buchan, who, by his marriage in 1210 to Marjory, the only child of the last Mormaer of Buchan, became the founder in the north of the powerful family of the Cumyns. He died in the year 1233, and was buried in the abbey. In consequence of the accession of the Earl of Carrick to the Scottish throne, the Cumyn family, who had opposed the Bruce, were so completely overthrown that, says Fordun, “of a name which numbered at one time three earls and more than thirty belted knights, there remained no memorial in the land, save the orisons of the Monks of Deir.” Now not one stone of the abbey church is left standing, and only a few fragments of the conventual buildings remain. This is much to be regretted, especially as it is known that considerable remains of the church existed down till 1854.

About the year 580 a church was founded in Deer by St. Columba and his nephew Drostan, on ground supplied by the Mormaer of the district as a return for the prayers of the saint in favour of his sick child. This Columban establishment survived till the time of David I., and was superseded by the monastery founded, as above stated, by the Earl of Buchan for a colony of monks of the Cistercian order from Kinloss. The site of the church (Fig. 689) is marked on the ground by an excavation over its whole area. The structure consisted of a nave about 98 feet long by 40 feet wide, including a north aisle, an aisleless choir or presbytery about 25 feet long and 24 feet wide, and north and south transepts. The total{275} length of the church over all was 157 feet. The nave had a north aisle, and was divided into five bays. The bases of the pillars remained in position till 1854. The south transept was 39 feet wide, or about 6 feet 2 inches wider than the northern one, and it had probably a narrow eastern aisle.

[Image unavailable.]

Fig. 689.—The Abbey of Deer. Plan.

The conventual buildings lay on the south side of the church, and are built on ground sloping southwards towards the Ugie, so that a basement story was required. The interior of the whole range of buildings is so overgrown with vegetation and filled with debris that it is with the utmost difficulty one can make his way through the ruins, and thus an accurate examination of the place is hardly possible.

The cloister was about 70 feet from north to south by about 90 feet{276} from east to west. On the south side there is a range of buildings about 125 feet long by 31 feet wide, divided into four apartments, forming the basement story, over which the refectory was probably built. To the east of this, lying north and south, is the fratry, measuring 35 feet in length by about 19 feet in width inside. Projecting southwards beyond the fratry by its full width a long range of buildings extends 80 feet eastwards, and measures about 21 feet in width over the walls. At the west end of this range there is an apartment about 20 feet from east to west by about 16 feet wide, which may probably have been the kitchen. In the north wall of this apartment there is a flue about 10 inches square. The room enters from a passage adjoining on the east side. There appears to have been a stair in this passage leading down to the lower buildings, and probably up to the dormitory, but the block of ruins at this part is so great as to render further observation impossible. Of the buildings which occupied the east side of the cloister all traces have now disappeared.

[Image unavailable.]

Fig. 690.—The Abbey of Deer.

Doorway in Passage.

 

Fig. 691.—The Abbey of Deer.

Arches in the Ruins.

It is highly probable that the church was completed before the monks erected any permanent dwelling for themselves, and this may partly account for the resignation of the tenth abbot, Dene Adam of Smalham, a monk of Melrose, who demitted office in 1267, “choosing rather to live{277} in the sweet converse of his brethren of Melrose, than to Govern an unworthy flock, under the lowly roofs of Deir.”[105]

All the conventual buildings now existing are of a date subsequent to the founding of the abbey, but under the circumstances already narrated, and from the absence of mouldings, it is somewhat difficult to fix their period. The openings are all round arched and simply splayed. The doorway into the passage adjoining the kitchen has a carved keystone (Fig. 690), a rather unusual feature in Gothic work. The carving, which is cut in granite, is decidedly Gothic in feeling, although in all probability late. There exists a view of the abbey as it existed in 1770.[106] The view appears to have been taken from the south, although it is rather difficult to fix the point of view; but, assuming that it is from the south, it shows the north wall of the building just described as in a much better state of preservation than it is now, and the south wall as rather more ruinous. We understand that the north wall was repaired sometime in this century. Judging from the view and from the remains, the south elevation seems to have been finished with a series of gables, having round-arched and splayed windows. Only a few fragments of the church remain, and there can be no doubt as to their period. They are genuine relics of the original church founded in the thirteenth century. The principal fragment consists of two cusped arches (Fig. 691), probably forming the top of a sedilia. They measure in width 1 foot 10½ inches each by 2 feet 3½ inches high inside, and are recessed about 12 inches.

Three or four corbels of the characteristic first pointed kind are preserved; one of these is shown in Fig. 692.

[Image unavailable.]

Fig. 692. The Abbey of Deer.
Corbel.

The only other wrought stone belonging to the church is a very peculiar one. It lies loose, and appears to have contained a double piscina—one having its basin supported by a projecting corbel in the ordinary manner, and the other with its basin and corbel turned upside down. Its construction will be understood from the sketch (Fig. 693). In the one basin, which may be called the upper, the aperture proceeds from a sprout at the back, and emerges in the centre of the lower basin. The upper basin is 7 inches deep and the lower 3½ inches. The other dimensions will be seen on the drawings, with sections of the respective corbels.

{278}

Adjoining the ruins is the Abbey Bridge, spanning the Ugie. It is a quaint structure, and may be partly as old as the remains of the conventual buildings; but it appears to have been repaired or partly rebuilt, as it contains the arms of James Keith of Bruxie, with the date 1718.

[Image unavailable.]

Fig. 693.—The Abbey of Deer. Piscina.

DEER CHURCH, Aberdeenshire.

[Image unavailable.]

Fig. 694.—Deer Church. Plan.

This church is situated in a beautiful bend of the river Ugie, in the churchyard of the village of Deer, and is rather more than a mile distant from the abbey. It is roofless, but the walls stand at about their original{279} height, and consist of a nave and chancel (Fig. 694). The nave is of an unusual form, being wider than it is long; but it is probable that it was originally longer than it now is. The exterior width is 26 feet 10 inches, and the length 24 feet 3 inches. The chancel is 37 feet 7 inches long by 16 feet 9 inches wide externally. It is separated from the nave by a wall containing a round splayed arch, 7 feet 6 inches wide, and (owing to the present level of the ground) only 6 feet 6 inches high in the centre. The level of the floor was, doubtless, originally a foot or two lower. The present entrance doorway to the nave is modern, and is in the centre of the west end. There are the marks of an old doorway in the north wall, which show a plain arched construction inside, and in this a window has been inserted at a late period. Another square-headed window in the south wall completes the lighting of the nave. There has also been a square-headed doorway in the south wall. There are two piscinas in the nave—one adjoining the chancel arch on the north, and having its basin in the depth of the recess; the other (Fig. 695), in the south wall, had a projecting basin, which is now sliced off. The most interesting and perfect feature of the church is the locker or ambry in the north wall of the nave (Fig. 696). The top is of a drop-arched form. The arch and the jambs and sill are checked for a door in the usual manner. Above the door, and visible whether the door was shut or open, is a pointed arch with a kind of rude tracery enclosing a cross pattee cut out of grey granite. The locker is 13 inches wide.

[Image unavailable.]

Fig. 695. Deer Church.
Piscina in South Wall.

[Image unavailable.]

Fig. 696.—Deer Church.
Ambry in Nave.

 

Fig. 697.—Deer Church.
Chancel Arch.

Sockets in the wall at the springing of the chancel arch (see Fig. 697){280} indicate the former existence of a rood screen. In the south side of the chancel there remain the indications of a stair which led up to a narrow door, now built up, the sill of which is at about the level of the springing of the chancel arch (Fig. 698). Unless this led to some kind of pulpit from which an audience in the nave could be addressed, it is difficult to determine its use. The wall here on the nave side is so completely covered with ivy that this point could not be made out.

[Image unavailable.]

Fig. 698.—Deer Church.
Chancel Arch and High Door.

The walls appear to have been in part rebuilt, especially the south wall of the chancel near the east end, where there are visible, both outside and inside, stones having fifteenth or sixteenth century rosettes carved on them. In the east wall there is a finely carved heraldic stone (Fig. 699) with the arms effaced.

[Image unavailable.]

Fig. 699.
Deer Church.
Heraldic Stone.

There is an arched recess for a monument (Fig. 700) on the exterior of the south side of the nave at the west end, which can hardly be seen for the dense growth of ivy. The sculptured stones and coat of arms are evidently insertions.

[Image unavailable.]

Fig. 700.—Deer Church. Recess of Monument.

Deer is the site of a very early monastery, founded by St. Columba, of which the venerable Book of Deer is the only remaining memorial. It was written in the ninth century, and contains the Gospel of St. John, with portions of the other gospels, and notes on the margins relating{281} to the monastery written in Gaelic at a later period. The existing church has no connection with this ancient monastery further than that it probably occupies the same position. It was, doubtless, erected about the fifteenth century.

AUCHINDOIR CHURCH, Aberdeenshire.

[Image unavailable.]

Fig. 701.—Auchindoir Church. Plan.

[Image unavailable.]

Fig. 702.—Auchindoir Church. View from South-East.

The ruined church of Auchindoir is situated in a remote part of Upper Aberdeenshire, about six miles south-west from Kennethmont Station, between Insch and Huntly. It stands on a slight elevation near the mouth of the Craig Burn, which joins the river Bogie a short{282}

[Image unavailable.]

Fig. 703.—Auchindoir Church. South Doorway.

distance below. It has been pointed out by Mr. Jervise[107] that the orientation of the church is peculiar, as it stands more north and south than east and west; but in the following description the usual orientation is assumed. The church is a simple oblong (Fig. 701), measuring 50 feet in length by 19 feet 6 inches in width internally. Mr. Jervise thinks it has been added to at the west end, and it has at least been altered at that point, and a belfry added on the top of the gable (Fig. 702). The rest of the building has also been considerably altered, and a doorway{283} inserted in the east end and square windows introduced to make it suitable for Presbyterian worship.

Towards the west end there are two doorways, opposite one another, in the north and south walls. That in the south wall (Fig. 703) is a fine specimen of early first pointed work. The round arch is retained (as is common in Scotland), but the details are all of first pointed design. The section of the jamb and arch mouldings (Fig. 704) and the dog-tooth enrichment of the label are clear indications of that style. Mr. Jervise doubts whether these features are genuine, and suspects that they are late imitations of the first pointed style; but Mr. Muir has no doubt about the doorway being of “late transition work, belonging, apparently, to that precise period in the progress of the art when the already softened features of the Normans were beginning to merge altogether into the still more flexible and varied forms of the first pointed style.” This opinion is confirmed by all the features of the doorway. The bold foliaged caps on each side (of which the detached shafts are gone) are undoubted proofs of the genuine nature of the work. This doorway could never have been produced in later times.

[Image unavailable.]

Fig. 704.—Auchindoir Church.
South Doorway: Jamb and Arch Moulding.

The north doorway is simple, having a plain round arch with a splay on edge, and a recess for a bolt in the ingoing.

The church contains a simple piscina in the south wall, and a very elaborate ambry, or sacrament house (Fig. 705), in the north wall near the east end. The decorated adjuncts of this ambry are about 6 feet in height. The opening is moulded, and has a quasi buttress on each side, crowned with a crocketed pinnacle in a late style of art. A pointed roof, or flat canopy, rises over the ambry, having on the top a representation of the crucifixion, with a skull carved at the base; over the cross is a scroll bearing the letters I N R I. There are two scrolls on the roof, carved with the inscription, HIC·Ē CORP DUĒ C V M, and on the sill of the ambry, M·A·S·, which inscription Mr. Jervise renders thus: “Here is the body of our Lord, with Mary, the Apostles, and Saints.” The ambry has an inner recess on the left side.

This work is evidently very late in style, but it can scarcely be so late as Mr. Jervise supposes. He says:—“I am inclined to ascribe the erection of the Sacrament House, if not the Kirk, of Auchindoir to the laird and lady whose arms and initials are upon shields within it. One of these shields, dated 1557, bears the Gordon arms and motto, HOIP IN{284}

[Image unavailable.]

Fig. 705.—Auchindoir Church. Sacrament House.

{285}

GOD; the second, initialed V·G:C·C·, presents the arms of Gordon and Cheyne, impaled with the motto, GRACE ME GYID.”

There can be no doubt that Mr. Jervise is in error as to the church being erected in 1557; but it was probably altered at that date, as the eastern or priests’ doorway in the south wall (which is now square headed, and has a transome and upper light over it) bears the date 1557. That was probably the time when the church was altered for Presbyterian worship. The sculptured ambry was probably executed in the early part of the sixteenth century, before the Reformation.

In 1513-14 the Church of Auchindoir was erected into a prebend of King’s College Chapel, Aberdeen. That would be a likely time for the introduction of the sacrament house. The building continued to be employed for divine service till 1810, when a new church was erected in the neighbourhood. The old churchyard which surrounds the old church is still used for interment.

When this church ceased to be used for service, the roof and woodwork were sold, and some of the panelling, including the back of the pulpit, which is carved with shields, is preserved in a farmhouse in the vicinity.

ST. CUTHBERT’S, Monkton; AND ST. NICHOLAS’, Prestwick, Ayrshire.

These two ruined churches are situated within a mile of one another on the level ground near the sea, which forms the basin of the river Ayr, near its mouth.

[Image unavailable.]

Fig. 706.—St. Cuthbert’s Church. Plan.

Prestwick is an ancient town, which had a parish church; while Monkton derived its name from the residence of a body of monks from Paisley. Both St. Nicholas’ and St. Cuthbert’s were originally churches{286} of Prestwick, and were distinguished as Prestwick de Burgo and Prestwick Monachorum. Both these churches were bestowed on Paisley Abbey, in 1163, by Walter, son of the Great Steward of Scotland, and endowed with valuable lands.

[Image unavailable.]

Fig. 707.—St. Cuthbert’s Church. View from South-East.

Prestwick Church is mentioned in the Paisley Chartulary, in 1212, as a chapel; Monkton continued as a rectory till the Reformation, and the two parishes were united in the beginning of the seventeenth century. Till 1837 both churches were used for public worship.[108]

[Image unavailable.]

Fig. 708.—St. Cuthbert’s Church. South Doorway.

The Church of St. Cuthbert (Fig. 706), at Monkton, has{287} originally been a simple oblong chamber, 46 feet in length by about 20 feet in width internally. The walls of this part of the structure are undoubtedly ancient, but they have been considerably altered, and a north wing has been added after the Reformation. The belfry (Fig. 707) erected at that period still exists on the east gable.

[Image unavailable.]

Fig. 709.—St. Nicholas’ Church. Plan.

[Image unavailable.]

Fig. 710.—St. Nicholas’ Church. View from South-East.

The only portion of the building which proves its antiquity is the doorway in the south wall (Fig. 708). It has a round arch, but the mouldings are of thirteenth century forms. There has been a nook shaft on each side with bell-shaped caps, and an inner order with a large roll.{288} This fragment is precious as one of the few ancient features which have escaped obliteration in this part of the country.

St. Nicholas’ stands on a mound close to Prestwick Railway Station, and is surrounded by an ancient burying-ground. The church (Fig. 709) is a simple oblong, 44 feet long by 20 feet wide within the walls. It is a very plain structure, and has evidently been altered, having square-headed windows (Fig. 710) inserted so as to render it suitable for Presbyterian service. The only noticeable features are the buttresses at the east end. There are two of these, one at each side and a small one in the centre, which are massive and present the appearance of early work. Doubtless they and the walls are old, but have been altered. There has been a plain belfry on the east gable, now reduced to a portion of the base. There are three small buttresses at the west end, but they are of a slighter character than those at the east end.

LUFFNESS MONASTERY, Haddingtonshire.

[Image unavailable.]

Fig. 711.—Luffness Monastery. Plan.

The monastery of the Redfriars at Luffness is believed to have been founded by Patrick, Earl of Dunbar, in 1286. The remains of the church, which consist for the most part of foundations, are situated in the private grounds of Luffness House, not far from the junction of the Peffer Burn with Aberlady Bay, and about half a mile from the village of Aberlady. The church (Fig. 711) has consisted of nave and choir, without aisles, the choir being internally 49 feet and the nave 42 feet in length, and both about 19 feet 6 inches wide. Both show the bases of buttresses at the east and west ends, and there seems to have been a wall between the nave and choir, which possibly sustained the rood loft. In the north wall of the choir and near the east end (Fig. 712) are the remains of an arched recess, which contains a much worn effigy, supposed to be that of the founder.{289}

[Image unavailable.]

Fig. 712.—Luffness Monastery. Monument in Choir.

[Image unavailable.]

Fig. 713.—Luffness Monastery. Choir.

{290}

A pointed doorway leading to the choir adjoins the monument (Fig. 713), and the altar steps are seen rising beyond it. Part of the pavement still remains at the east end, and in the centre is a flat monumental slab (Fig. 714), much decayed, but on which can still be made out the following inscription:—“(Hic jacet) honorabilis vir Kentigernus Hepburn (dominus?) de Wauchtoun;” and the sacred monogram “I.N.R.I.” on the upper part of the cross. Kentigern Hepburn was son and heir apparent of David Hepburn of Wauchton. He received, on 5th September 1498, a charter from his father of certain lands—viz., the lands of Quhiltinfuld in Edinburgh, half a plougate in Cockburnspath and lands of Elstanefurd, with superiority of lands of Towly in Fife and Elstanefurd. He also held, from his father, a charter of the lands and barony of Luffness. He married Margaret Lauder (see Great Seal, 1424-1513). The arms on the shield in the centre of the cross are those of the Hepburns. The style of the slab would indicate that of the fifteenth century.

[Image unavailable.]

Fig. 714.—Luffness Monastery.
Monument in Choir.

ALTYRE CHURCH, Morayshire.

About four miles south of Forres, and in the middle of an extensive forest, not far from Altyre House, stand the ruins of an ancient first pointed church. The parish of Altyre belonged formerly to the parsonage of Dallas, but in 1659 it was disjoined from Dallas and added to the parish of Rufford. The ruins of the church, which stand in a dense thicket of bushes, are in fair preservation. The building is very plain, consisting of a simple oblong chamber (Fig. 715) about 50 feet in length by 15 feet in width internally. There appear to have been no buttresses originally, but one has been added at the north-east angle (Fig. 716), and{291}

[Image unavailable.]

Fig. 715.—Altyre Church. Plan.

[Image unavailable.]

Fig. 716.—Altyre Church. View from North-East.

a very massive prop has been built at the north-west angle, the ground on the north being a bank sloping downwards from the church. There are{292} two doorways opposite one another near the west end, one in the north wall and one in the south wall. In the east wall there is a two-light window with simple branched mullion. The side windows are plain lancets, there being two in the north wall and three in the south wall. The west wall is blank. The walls and gables are still standing. Although the church may be classed as first pointed, it is evidently of the latest period of that style.

ST. MARY’S CHAPEL, Rattray, Aberdeenshire.

[Image unavailable.]

Fig. 717.—St. Mary’s Chapel. Plan.

This chapel, standing in the centre of its churchyard, is situated at the east end of the lonely loch of Strathbeg, not far from Rattray Head, a place well known and feared by sailors. It measures internally 45 feet from east to west by 18 feet 9 inches from north to south (Fig. 717). The gables are nearly entire, with considerable portions of the side walls. Almost all the stone dressings within reach have, as usual, been torn out for common purposes, so that the building is in a tottering condition, and is greatly robbed of its interest; but enough remains to show that it is a genuine church of the thirteenth century. It is built of rough angular stones, with red freestone dressings. In the east wall (Fig. 718) there are three round-arched and widely splayed windows, the centre one being the highest and widest, viz., 2 feet wide and, according to the new statistical account (which appears to be reliable), 11 feet high, and the other two are each 7 feet high. The gable itself is said to be 32 feet high in its present condition. There appear to have been north and south doors near the west end, and no other openings in the side walls. In the west gable there is a window 8 or 10 feet above the ground, and from 3 to 4 feet wide. The church has thus been entirely lighted from the east and{293} west ends. It is needless to say that there are no remains of any of the usual internal features, the polished stones of such having been carried off, forming too strong a temptation to be resisted.

[Image unavailable.]

Fig. 718.—St. Mary’s Chapel. View from South-West.

The earliest notice of this chapel is between the years 1214 and 1233, when William Cumyn, Earl of Buchan, gives certain lands for the yearly payment of two stones of wax, afterwards given by the Earl “in free alms for ever to the Chapel of the Blessed Virgin Mary in the town of Rettre in Buchan.”[109] Again, in 1451, the chamberlain of the crown lands in Buchan makes a deduction of six shillings, “paid to the Chaplin of Rattre.” And in 1460 King James III. confirms a charter for a yearly payment of five pounds and the third part of a stone of wax to the chapel of the “Beate Marie Virginis de Ratreff.”[110]

ST. MAGRIDIN’S CHURCH, Abdie, Fifeshire.

The parish of Abdie is situated in the north of Fife, about two miles south from Newburgh. It was originally called the parish of Lindores, but that name was appropriated by the abbey, which was also founded in the same parish. The loch of Lindores, on the south bank of which{294} the ruins of the church of Abdie stand, still retains the ancient name. The church was of much earlier date than the abbey, and Mr. Laing[111] states that there can be little doubt that the church of Lindores (now Abdie) was of Culdee origin, and was one of the earliest religious settlements in the country. The name Lindores signifies the “church by the water,” a peculiarly appropriate designation in this instance. “In a writing of the thirteenth century on a fly-leaf of a volume preserved in the Imperial Library, Paris, it is recorded that the consecration of ‘Ebedyn’ church by David de Bernhame, Bishop of St. Andrews, took place on the 5th day of September A.D. 1242, a date which corresponds with the style of its architecture.”[112]

[Image unavailable.]

Fig 719.—St. Magridin’s Church. Plan.

From the foundation charter of the abbey of Lindores we find that the first bequest it received was the church of Lindores, and the lands belonging to it.

The existing structure consists (Fig. 719) of a plain oblong chamber, which has been greatly rebuilt, but part of the walls of which may be of the thirteenth century. The building measures internally 88 feet in length by 17 feet 6 inches in width. The east end or chancel is the most ancient part. It is about 30 feet in length, and has first pointed buttresses and small lancet windows in the side walls. One of the lancets remains in the south wall (Fig. 720), and two in the north wall (Fig. 721). There is also a pointed priests’ doorway in the south side wall. The three pointed windows in the east end seem to have been altered. The broad{295}

[Image unavailable.]

Fig. 720.—St. Magridin’s Church. View from South-East.

{296}

skew, with cross on the gable, and its remarkable footstone are restorations. The nave or western portion of the church, which is of the same width as the chancel, has been rebuilt at different times, and much of it shows in its windows, buttresses, &c., work of a very late period, probably the sixteenth century. There is a south porch near the west end, with a stone bench on each side. The entrance is by an elliptic arch, with plain splay on edge. The belfry is plain, but picturesque. A wing or north aisle has been added at a late date. It is called the Denmiln aisle, and was erected by Sir Robert Balfour in 1661, and bears his arms and the date over the doorway. In the choir there is a slab with a fine cross carved on it, and also a recumbent effigy (see Fig. 721), considerably worn away by the weather.

[Image unavailable.]

Fig. 721.—St. Magridin’s Church. Effigy in Choir.

{297}

CHAPEL ON “THE ISLE,”[113] Wigtonshire.

[Image unavailable.]

Fig. 722.—Chapel on “The Isle.” Plan.

[Image unavailable.]

Fig. 723.—Chapel on “The Isle.” View from South-East.

“The Isle” is a rocky promontory, formerly an island, but now connected with the mainland at low tide. It stands near the south end of the main part of Wigtonshire, about two miles north from Burrow Head and three miles south-east of Whithorn. On this isle stand the ruins of an ancient chapel. It is roughly built, with walls 2 feet 8 inches in thickness, and, from its pointed arches, appears to be of first or second pointed date. The structure (Fig. 722) measures 37 feet 6 inches in length by 22{298}

[Image unavailable.]

Fig. 724.—Chapel on “The Isle.” View from South-West.

[Image unavailable.]

Fig. 725.—Chapel on “The Isle.” Font.

feet in width externally, and has originally been very exactly measured off. The doorway has been in the south wall, but it is now broken down and the freestone dressings removed. There has been a tall pointed window in each of the north and south walls, and a similar window, though apparently wider, in the east end wall. The dressings have been torn out, but the pointed sconsion arches still remain (Figs 723 and 724). There{299} is a small square ambry in the north wall, and a similar, but larger, one in the south wall. The exterior is quite plain, and without buttresses or break of any kind.

The simple bowl of the font has been recovered, after having served for generations as a trough to bruise whins in for food for horses (Fig. 725). It is now preserved at Whithorn.

Much discussion has taken place regarding this chapel, some supposing it to be the original Candida Casa of St. Ninian. The style of the structure puts that view out of the question; but it is still thought by some—amongst others by Mr. T. S. Muir[114]—that the isle was a much more likely place for St. Ninian to fix his first settlement on than at Whithorn, where he would be in the midst of a probably not very friendly people. In that case the Chapel on “The Isle” would be the successor of the original Candida Casa. But there is nothing at either place to determine with any degree of certitude the site of the first Christian edifice in Scotland.

CHAPEL, DUNSTAFFNAGE CASTLE, Argyleshire.

[Image unavailable.]

Fig. 726.—Chapel, Dunstaffnage Castle. Interior.

A plan and detailed drawings of this first pointed chapel are given in connection with the description of the castle,[115] but the general view of{300} the interior (Fig. 726) is now illustrated, in order more fully to explain the description above referred to. The ruin is densely covered with ivy, but the jambs of the chancel arch, enriched with rows of dog-tooth ornament, are distinctly visible (see Section). The arch is now built up, and the chancel is converted into a tomb-house. A section of the window jambs and shaft between is also shown in Fig. 726. This edifice is one of the few examples of enriched first pointed work to be found in the Western Highlands and Islands.

Another very interesting specimen of a first pointed church exists at Skipness, Kintyre, which is also described and illustrated in The Castellated and Domestic Architecture of Scotland.[116]

BUITTLE CHURCH, Kirkcudbrightshire.

A ruin, situated about three to four miles west from Dalbeattie. The original name was Kil-Ennan, that of Buittle being comparatively modern. A notice of the church occurs as early as 1275, when it was granted by Devorgilla to the monks of Sweetheart; and on the 16th July 1381, Pope Benedict XIII. confirms a charter by Thomas, Bishop of Galloway, granting the Church of St. Colmanel of Butyll to the Abbey of Sweetheart. We are informed that a new church was erected before the Reformation. This was, doubtless, part of the present ivy-clad ruin. The church and lands were annexed to the Crown in 1587.[117]

[Image unavailable.]

Fig. 727.—Buittle Church. Plan.

The building is peculiar in form (Fig. 727), the choir being wider than the nave—the former measuring 26 feet 6 inches, and the latter 22 feet in width over the walls. The choir is about 30 feet and the nave 44 feet in length internally. The walls and gables are well preserved (Fig. 728), but the whole building is so completely covered with ivy that any architectural features which may exist are concealed. There is a pointed chancel arch between the nave and choir, and the latter part of the church is lighted with three lancet windows in the east gable.{301}

To judge from the appearance of the building the nave and its belfry were, doubtless, the parts erected shortly before the Reformation, and the choir is the more ancient portion. It is probably of first pointed date.

[Image unavailable.]

Fig. 728.—Buittle Church. View from South-East.

The straight lintelled doorway in the east end, under the three pointed windows, is part of the work done in Presbyterian times.

TUNGLAND ABBEY, Kirkcudbrightshire.

Of this ancient and important abbey there now remains only one doorway (Fig. 729). The abbey stood on a level piece of ground at some height above the rocky bed of the River Dee, about two miles from Kirkcudbright. The situation is a fine one, and the modern manse is yet surrounded with splendid old trees. The abbey was founded by Fergus, first Lord of Galloway, in the twelfth century, and occupied by Premonstratensian Monks from Cokersand Abbey, in Lancashire. The abbot sat in the Parliament summoned at Brigham, in 1290, to settle the succession to the Crown of Scotland. Robert I. and David II. both enriched it with endowments.

In 1503 James IV. appointed Damiane, an Italian, to be abbot. He was an alchemist, and professed to be able to fly; but in endeavouring to carry out his scheme from the walls of Stirling Castle, his wings gave way, and he fell and broke his leg.[118]

The abbey was annexed to the Crown in 1587. Symson mentions{302} that in 1684 the steeple and part of the walls were standing. It is said that the present church which adjoins is erected on part of the walls of the old abbey.

The part of the abbey which contains the ancient door has evidently been refitted as a church in post-Reformation times, and has a gable with a plain belfry.

[Image unavailable.]

Fig. 729.—Tungland Abbey.
Doorway.

[Image unavailable.]

Fig. 730.—Tungland Abbey. Details of Doorway.

The old doorway has some features (Fig. 730) which make it doubtful whether it belongs to the first pointed style, or is only one of the repro{303}ductions in imitation of that style which were common in the time of James VI.

COCKPEN CHURCH, Mid-Lothian.

[Image unavailable.]

Fig. 731.—Cockpen Church. Plan.

The ruins of the ancient parish church of Cockpen stand in a burial ground about one mile south from the modern parish church, which is situated about a mile from Dalhousie Railway Station. The walls of the old church are in tolerable preservation, but they have been so much altered, probably soon after the Reformation, so as to render them suitable for Presbyterian worship, that the original features are almost obliterated. The structure (Fig. 731) is a simple oblong, 65 feet 6 inches in length by 15 feet 2 inches in width. There are some remains of narrow lancet windows at the east end, but they have been much altered, one of them being widened to form an outside doorway to a gallery. The side windows have been similarly altered and new square-headed windows inserted, so that almost all trace of the original features is lost. The ruins are also so completely covered with a dense growth of ivy that the details of the architecture cannot be properly investigated. Some burial vaults have been thrown out from the side walls, probably in the sixteenth century. From the scanty materials available it may be inferred that the original church was a structure of the thirteenth century.{304}

PENCAITLAND CHURCH, Haddingtonshire.

[Image unavailable.]

Fig. 732.—Pencaitland Church. Plan.

This structure, which is still in use as the parish church, lies in the valley of the Tyne, about four miles south from Tranent. It consists (Fig. 732) of a long narrow building measuring about 83 feet in length by about 23 feet in width over the walls, with a western tower, not quite square in plan. On the north side of the chancel there is a chapel of first pointed work, and adjoining it on the west a seventeenth century aisle. Taking the chapel on the north side first as being architecturally the most important, it measures in the inside about 22 feet 8 inches long by about 10 feet wide. On the north side (Fig. 733) it is divided into two bays, and had originally shallow buttresses of 18 inch projection, terminating with a gabled top. The buttresses have been enlarged at a later date. Between the buttresses there were large pointed windows, probably once filled with tracery, but which is now destroyed. There is another wide window in the east end, which has met with the same treatment. In the west end there is a high window of two lights, with a pierced opening in the apex under the arch. The mouldings round the windows consist of thin reed-like beads, separated by deep narrow hollows. The labels round the outside terminate as shown in Fig. 734. Over the buttresses there is a set-off on the wall (see Fig. 733), and above this one deep course of masonry, carrying a corbel course of small size, decorated with human and animals’ heads. The top course and set-off are closed in at each end with a large skew stone, on which there is wrought the original start of the sloping gable at a slightly lower level{305}

[Image unavailable.]

Fig. 733.—Pencaitland Church. View from North-East.

[Image unavailable.]

Fig. 734. Pencaitland
Church.
Moulding of
Windows.

than the existing gable (Fig. 735), showing that there has been some change made here, the existing skew puts of gables not being original. The north wall is bent outwards considerably. It is not unlikely that the chapel was originally vaulted in stone, and, with the view of strengthening it, the shallow buttresses have been enlarged as indicated. The wide opening into the church shown on the Plan was afterwards made, and the vault, thus losing its support on that side, would be taken down. As a confirmation of the opinion that this chapel was vaulted we find[119] that the roof was at one time covered with flagstones. These, owing to their weight, are generally found only on vaulted buildings, as at Borthwick and numerous other churches. From the appearance of the flat arch of this opening it seems to be of later work than the chapel, and on the east side of the ingoing there are the remains of what appear to have been the jambs of a doorway. The chapel would thus originally be separated from the church by a solid wall with a door of communication, and what we have called a chapel may have been the sacristy. This separating wall, it will be observed from the Plan, is much thicker than the buttressed north wall, and, doubtless, was so made for the purpose of resisting the thrust of the vault.{306}

[Image unavailable.]

Fig. 735.
Pencaitland Church.
Skew Stone.

Although the church adjoining appears to be mainly a building of the sixteenth and seventeenth centuries, it undoubtedly occupies the site of an earlier church, known to have existed at Pencaitland in the twelfth century. Possibly portions of this earlier church are incorporated in the existing walls, and it is not unlikely from the narrowing of the east end on the north side (see Plan) that a chancel arch may have existed. Over the tower doorway there is the date 1631, with the initials of the incumbent, John Oswald, who probably built the tower. About the same time the north-west aisle was built. It contains some details resembling those to be seen at Wyntoun House, in the immediate neighbourhood. In the Caledonia, Vol. II. p. 527, Chalmers mentions that Pencaitland was possessed by Everard de Pencaithlan, and that he probably obtained the lands from William the Lion (1165-1214), as he granted the church of his manor of Pencaithlan to Kelso, with its tithes and other rights, in pure alms for the salvation of his lord, King William. After 1309 it is not mentioned among the churches belonging to Kelso. The manor was forfeited during the War of Succession, and was granted by King Robert the Bruce to Robert de Lawder; but soon after it appears in the hands of Sir John Maxwell, younger brother of Sir Eustace Maxwell of Caerlaverock, who granted to Dryburgh the advowson of the church with an annuity from his lands of Pencaitland. This was confirmed by William (Landal), the Bishop of St. Andrews, in 1343, and by David II. two years later. A view of the tower and west end of the church, with some details, will be found in The Castellated and Domestic Architecture of Scotland.[120]

GOGAR CHURCH FONT, Mid-Lothian.

Scarcely a vestige remains of the old Church of Gogar, but the burial ground still survives. It is situated about five to six miles west from Edinburgh. The church was ancient, but after the Reformation the parish was divided amongst the three adjoining ones. The bowl of the old font still exists in the churchyard. It is very simple in design (Fig. 736), and would appear from its mouldings to be of first pointed date. The stand on which it is set is modern.{307}

[Image unavailable.]

Fig. 736.—Gogar Church. Font, with Section.

THE ABBEY OF INCHCOLM, Fifeshire.

An account of this abbey is given in The Castellated and Domestic Architecture of Scotland,[121] in connection with its occupation by the English, in the time of Henry VIII., as a fortification. But being an important ecclesiastical structure, and in some respects a unique one, it is thought desirable to give it a place in this volume, with some additional particulars and illustrations.

The Island of Inchcolm, or Æmonia, as it was originally called, is believed to have formed the cradle of religion in the East of Scotland, as the more famous Iona did in the West; and it is thought that the first seeds of religion were implanted in it by St. Columba himself. In early times the founders of Christianity loved to establish themselves on islands, and in the Frith of Forth ecclesiastical remains are found not only at Inchcolm, but also on Inchkeith, the Bass, the Isle of May, and the Island of Fidra.

Like Iona, the Island of Inchcolm became especially celebrated as a place of burial, and large sums were paid for the privilege of interment{308} on the island. This circumstance is referred to in Macbeth,[122] in connection with the defeat of “Sweno, Norway’s King”—

“Nor would we deign him burial of his men
Till he disbursed at St. Colm’s Inch
Ten thousand dollars to our general use.”

The island appears to have been inhabited up to the twelfth century by a Columban hermit. Fordun narrates that the abbey owes its foundation to Alexander I., who, in 1123, was driven ashore on the island by a storm, where he and his followers were maintained for three days by the hermit who then made Inchcolm his retreat, and who divided with them his scanty fare of shellfish and the milk of one cow. In recognition of his safe delivery, Alexander founded and endowed a monastery, and brought to it Augustinian Canons from the abbey he had established at Scone. The monastery continued to prosper, and, in 1216, received a large addition to its possessions from Allan Mortimer, proprietor of the domain of Aberdour, on the mainland adjoining, who purchased the right of interment in the church by bestowing on the abbey one half of his estate.

It is from this period that the existing buildings began to be erected, and the construction probably went on for a considerable length of time thereafter. In 1265 Richard, Bishop of Dunkeld, built the new choir at his own expense. He was High Chamberlain in 1255-57, and, at his death in 1272, his heart was laid, according to Father Hay, in the wall of the new choir.

Although the island position of the monastery made it usually a safe retreat, it did not protect it from the attacks of the English fleet during the War of Independence. In 1335 it was harried by the English, who carried off the precious chalices and censers, crosses and chandeliers, relics, vestments, and images. The abbey was again attacked in 1336, and in 1384 the fleet of Richard II. plundered it and set it on fire. Some repairs were, doubtless, required thereafter, and we find that in 1402 the chapel of the Blessed Virgin, adjoining the south side of the choir, was founded by the Prior, Richard of Aberdeen, and Thomas Crawford, Canon of Inchcolm.

In 1418 Walter Bower, the editor and continuator of the Scotichronicon of Fordun, was appointed abbot, and carried out his literary work in the abbey.

As the period of the Reformation approached, the monastery seems to have fallen off, and in 1543 Abbot Henry resigned office, and the abbey was deserted.

After the battle of Pinkie, in 1547, the Duke of Somerset occupied Inchcolm as the best post for commanding the Frith of Forth.

The lands of West Aberdour were acquired from Abbot Nicholas by James Stewart of Ochiltree, who became Commendator of the Abbey;{309} and his second son, James Stewart, Lord Doune, was, in 1611, created a peer, with the title of Lord St. Colm. He married the daughter of the Regent Murray, and the lands were united to the estate of the Earl of Moray, who thus became proprietor of Inchcolm.

The island is about half a mile in length, and lies about one mile and a-half from the harbour of Aberdour, on the north side of the Frith of Forth. It consists of an elevated portion at each end, with a low lying isthmus between them, on which the abbey is built, the buildings extending across the full breadth of the land.

Notwithstanding the many attacks and injuries the structure has sustained, its remote situation has preserved the monastic buildings in a more complete state than in most of our old abbeys. The edifice, as it now stands (Fig. 737), consists of the usual cloister court (about 45 feet square), having the church on the north side and the chapter house beyond the east range. The monastery has the remarkable peculiarity of having had the buildings surrounding the cloister constructed so as to contain on the ground floor nothing but the cloister walk, and on the upper floor, above the ambulatory, the refectory, dormitory, and other domestic apartments of the canons. The cellars, stores, and other offices have been erected in a wing to the south-east. A detached building to the north of the church, now in ruins, was possibly the infirmary. To the west of the monastery lay the garden, which is enclosed with a wall. The well, which is sunk on the south of the garden, is built round with ashlar, is 50 feet deep, and contains a supply of good fresh water. A strong retaining wall runs along the north side of the buildings next the sea, and encloses the monastery on that side.

A very interesting relic of the original eremitical occupation of the island still survives at the north-west angle of the garden. This is a small cell covered with a pointed vault, the true importance of which was first pointed out by the late Sir James Y. Simpson,[123] who drew attention to it as the cell of the Columban recluse who occupied Inchcolm at or before the unexpected visit of Alexander I. It consists (Fig. 738) of an irregular stone building, measuring internally 15 feet 7 inches in length on the north side and 17 feet on the south side, by a width of 6 feet at the east end and 5 feet at the west end. The height from the floor to the spring of the arch is 4 feet 8 inches, and to the crown of the arch 8 feet. The cell is covered with a pointed barrel vault, the arch of which is composed of radiating stones, and is covered with stone flags, which form a curved roof on the exterior. The form of the arch indicates that the vault is not of the most ancient type of Celtic building, in which the arch consisted not of radiating, but of overlapping, stones pushed out horizontally over each other till they met with a flat stone in the centre.[124] The doorway, however, which{310} is at the south-west angle, presents on the interior some appearance of the latter form of construction (Fig. 739),[125] while on the exterior (Fig. 740) it is formed with a round radiating arch. There is one small square-headed window in the east end, 13 inches in width and 24 inches in height, the jambs of which are in single stones, without moulding or chamfer. In the south wall there is a rude ambry, 12 inches wide and 17 inches deep.

[Image unavailable.]

Fig. 737.—The Abbey of Inchcolm. Plan of Ground Floor.

This cell has, doubtless, been often repaired (indeed, it requires some repair now), and it is possible that the vault and stone roof{311} may not be the original ones; but the walls are certainly ancient, and the structure is very interesting from its being one of the very few relics of the Columban church which survive in the eastern part of Scotland.

[Image unavailable.]

Fig. 738.—The Abbey of Inchcolm. St. Colm’s Cell: Plan and Section.

[Image unavailable.]

Fig. 739.—The Abbey of Inchcolm.

Horizontal Arch of the Door, as seen from within
the Cell.

 

Fig. 740.—The Abbey of Inchcolm.

Exterior Arch of the Doorway.

As above pointed out, the abbey buildings are of different periods, and have evidently been subjected to several alterations at different times. The church appears to be the oldest part of the edifice. It has originally consisted (see Fig. 737) of a nave, internally 35 feet in length by 20 feet in width; a central tower, 24 feet long by 22 feet wide{312}

[Image unavailable.]

Fig. 741.—The Abbey of Inchcolm. View from North-East.

{313}

[Image unavailable.]

Fig. 742.—The Abbey of Inchcolm. View from North-West.

{314}

[Image unavailable.]

Fig. 743.—The Abbey of Inchcolm. North-East Angle of Cloister.

{315}

externally; and a choir to the east of the tower, of which a fragment survives, but which was subsequently superseded by a new choir. The church was lofty as compared with its width, as is apparent from the high pointed arches (Figs. 741 and 742) in the east and west walls of the tower. It is not now discoverable how the nave and choir were roofed, but from the absence of buttresses, and the built water tables in the tower with steep slope, the roof was most probably of timber. Over the arch leading from the tower to the choir there is a doorway (see Fig. 741), which gave access to a chamber in the roof. The church was entered from the cloister by a high pointed doorway (Fig. 743) in the south wall of the tower. Adjoining this, in the south wall, a wheel stair led to the upper stories of the tower. The nave has been much altered, but still retains along the north side an early trigonal string course. The south doorway and other details of the tower also indicate a date early in the thirteenth century (see the details of the doorway in Fig. 750). The tower (see Figs. 741 and 742) rises to two stories above the church roof, and contains windows, each having two smaller arches enclosed within a round arch, and having the spandrils pierced with simple quatrefoil openings. The parapet is supported by first pointed corbels (Fig. 744). In each of the north and south walls of the tower there was originally, at the level of the church, a single pointed lancet window, the upper part of which has in each case been preserved, although greatly altered at a later date. The upper part of the south window is visible in Fig. 743; and a similar portion of the north window is preserved over the door to the transept. The tower had simple buttresses at the angles, one of which is still preserved on the south side (see Fig. 743), where it has been incorporated with the later cloisteral structures, while the other buttresses have been altered. A fragment of the original choir also still survives in a portion of the south wall, which has been incorporated with the later building of the dormitory to the south. This fragment still retains, though built up, the plain round arch of a small window, and its large, round sconsion arch—the former now looking into the dormitory (Fig. 745), and the latter being visible in the interior of the choir (see Fig. 741). This window is, doubtless, of the period of the tower and nave. It has formed part of the exterior south wall of the choir, thus showing that the space opposite it was open, and that the dormitory, which is on the first floor, and blocks it up, has been added at a later period.

[Image unavailable.]

Fig. 744. The Abbey of Inchcolm.
Corbels of Parapet of Tower.

What the original form of the cloister buildings may have been it is now difficult to determine. As has been pointed out above, their arrangement is very unusual, the cloister walk occupying the whole of the ground floor, and the domestic buildings being on the first floor. This arrange{316}ment is quite contrary to that generally adopted, the usual plan being to have a one-story cloister walk round the court, giving access on the ground floor to the sacristy, chapter house, &c., in the east range, to the refectory in the south range, and to the cellars, &c., in the west range. At Inchcolm the ambulatory, or cloister walk—about 15 feet wide—occupies the whole of the ground floor round the east, south, and west sides of the square, while the church stands on the north side. This arrangement would be somewhat awkward as regards the principal entrance to the church through the tower, which would be left in the open court without any covered way leading to it. An attempt has been made at a late date to obviate this drawback by continuing a one-story cloister walk round the north side of the court (see Fig. 737).

[Image unavailable.]

Fig. 745.—The Abbey of Inchcolm. Plan of First Floor.

The ambulatory is lighted by small round-headed windows towards the court (see Fig. 743), having wide square ingoings with stone seats (Fig. 746); and the sill of the recess is raised about 12 inches above the level of the cloister walk. Entering from the east walk is the chapter house,{317} an octagonal building, 24 feet in diameter, of a somewhat later date than the nave and tower.

[Image unavailable.]

Fig. 746.—The Abbey of Inchcolm. Cloister Walk, East Range, looking North.

At the south-west angle of the cloister court was the staircase which led to the upper floor (see Plans). The latter (see Fig. 745) has been very greatly altered, and has been divided by cross walls and partitions, so as to form a dwelling-house. A square tower has also at a late period been added on the exterior next the south-west angle (Fig. 747). It would appear, however, that formerly the apartments, although situated on the{318}

[Image unavailable.]

Fig. 747.—The Abbey of Inchcolm. View from South-West.

{319}

first floor, were arranged in the usual manner. The dormitory occupied the east side, and had direct communication with the choir. The refectory was in the south range, and the pulpit from which one of the monks read during meals is yet preserved, with a few steps in the thickness of the wall leading up to it (see Fig. 745). The pulpit is also seen projecting on the exterior in Fig. 747. The west side was probably occupied by the lay brethren. A large fireplace, corbelled out on the exterior, was built in the east wall of the latter department, as shown in Fig. 754. There was an exterior door to the garden from the cloister walk on this side.

The nave, tower, and original choir were, without doubt, the earliest parts of the edifice. The two-story cloisters did not at first exist, as is apparent from the exterior window of the south wall of the choir, above referred to. Probably there was then an ordinary cloister walk running south from the principal doorway of the church, from which a one-story building would enter on the east, according to the usual plan, containing sacristy, chapter house, &c. Remains of a stone seat, which exist along the east wall of the ambulatory, may indicate the original position of the chapter house; and there are distinct evidences of alterations in the east wall, to the south of the existing chapter house. At first the refectory would probably be on the ground floor of the south range, and the dormitory may have been on the first floor over it. The above would be the arrangement of the monastery when built about the beginning of the thirteenth century, soon after it received the gift of Wester Aberdour from Allan Mortimer.

Less than a century later a complete remodelling of the edifice took place. The ground floor was converted into the ambulatory and heightened into two stories, and the new chapter house was erected to the east, with a doorway from the new cloister walk. At the same time, the then existing accommodation having been found too small, the old church was abandoned as such, and the tower and nave were converted into the abbot’s house, a new church being erected to the eastward. The evidences of the conversion of the church into the abbot’s house are quite distinctly apparent. The large arches in the east and west walls of the tower (see Fig. 741) were built up with pointed arches introduced in the inserted building, and the height of the nave and tower divided into two stories by the insertion of a round barrel vault carrying a floor. An extra thickness of 15 inches was added to the nave walls, so as to carry the inserted vault (see Fig. 737). A wing was also added to the tower in the position of a north transept, in order to provide another room on the first floor level, the north window of the tower being converted into a door. The south window was widened and furnished with a stone seat; but, as above mentioned, the arched head of both these windows is preserved. The north room is provided with a fireplace and garde-robe. The ragglet for the roof of the north addition is not built like those on the east and west sides of the tower, but is cut into the tower wall, thus showing it to be an{320}

[Image unavailable.]

Fig. 748.—The Abbey of Inchcolm. Chapter House, looking East.

afterthought. The upper stories of the tower were remodelled, that over the first floor having a pointed barrel vault inserted, and the story over being made into a dovecot, with built nest recesses all round. A wider wheel stair was added at the south-east angle of the tower, to give access to the abbot’s house. The ground floor of nave and tower under the new arch became cellars; and a round aperture, 3 feet 8 inches in diameter, is{321} provided in the floor of the tower for access from the cellar to the first floor. The upper floor of the nave now became the hall of the abbot’s house, having a large fireplace with overhanging hood built in the west wall, of which the remains still exist. Windows were also cut in the north wall to light the hall. The old door to the church was built up, and a new door provided from the cloister walk into the new church.

[Image unavailable.]

Fig. 749.—The Abbey of Inchcolm. Details of Chapter House.

It is difficult to determine when these alterations took place, and possibly they did not all happen at one time. We are informed that a new choir was erected by Richard, Bishop of Dunkeld, towards the end of the thirteenth century. It seems not unlikely that the remodelling may have taken place about that time, and it is well known that almost no building was carried on in Scotland from that period till the fifteenth century. Besides, the frequent disturbances caused to the abbey by the English fleet during the fourteenth century rendered building operations at that time impossible. The church, however, seems to have been spared, as it is on record that the lady chapel to the south of the choir was added to it in the beginning of the fifteenth century.

The general appearance of the cloister ambulatory (see Fig. 746) would at first sight lead one to suppose it to be of an old date. The small round-headed windows without caps and with chamfers on edge (see Fig. 743), their wide recesses, with stone seats, and the round vault of the ambulatory, have an archaic look; but on close inspection, it will be noticed that the west wall is built against and partly bonded into the original south-east{322} buttress of the tower (see Fig. 743), thus showing that this wall is more recent than the tower. This fact also confirms the view given above that the space opposite the south wall of the choir (where the old window is) was open, and that at least the upper floor, where the dormitory now is, was a later addition.

[Image unavailable.]

Fig. 750.—The Abbey of Inchcolm. Details of Chapter House, &c.

The chapter house (Fig. 748) seems also to have been erected towards the end of the thirteenth century. It is in the first pointed style, as the mouldings of the caps, bases, window jambs, &c. (Fig. 749) show. It is one of the very few octagonal chapter houses in Scotland, that of Elgin Cathedral being the only other with which we are acquainted. The octagon is regular and the ribs of the vault, which spring from a round shaft 4½ inches in diameter in each angle, meet in a carved boss in the centre, having a circular aperture from which a light might be suspended. The bases of the angle shafts are of first pointed character, and rest on the stone bench. The ribs of the vault have a hollow in the centre (see{323}

[Image unavailable.]

Fig. 751.—The Abbey of Inchcolm. Interior of Chapter House, from North-East Window.

{324}

[Image unavailable.]

Fig. 752.—The Abbey of Inchcolm. Doorway of Chapter House: Interior.

Fig. 749), like some of those in Glasgow Cathedral. The building is lighted by pointed and moulded windows (see Fig. 748) on three sides,{325} and one window on the north-east side, which is smaller than the others, and has a plain trefoiled arch head in the interior. The window jambs have no caps. A small circular window occurs near the top of the arch of the south-west side of the octagon (Fig. 751). The doorway enters through the wall of the east ambulatory. It has jambs containing free shafts and first pointed mouldings (Fig. 752). The caps of the shafts are first pointed in style, but they have no bases (see Fig. 749). The jamb mouldings terminate in a rather unusual way on a broad splay. The arch is semicircular, or nearly so. A stone bench runs round the interior of the chapter house, and is raised one step above the floor. In the east end are three arched recesses (see Fig. 748) with good jamb mouldings, finishing on a splay at bottom, but without caps or bases (see Fig. 749). These were, doubtless, the seats of the abbot, prior, and sub-prior. They are raised two steps higher than the other seats. Externally, the chapter house is provided with buttresses on the angles (Fig. 753), terminated with gablets, except on the north side, where a continuous water table, with numerous set-offs, is provided, probably because this side was concealed by the choir, and there was no room for buttresses.

Over the east wing of the ambulatory is the dormitory, which is covered with a lofty pointed barrel vault, and is lighted by small, square-headed windows (see Fig. 743) looking into the cloister court. There is also a squinch in the east side, from which the high altar could probably be seen. From the east side of the dormitory a steep stair leads to a building which has been erected at a late date over the chapter house. Tradition states that Walter Bower had this upper story built as a quiet retreat, where he might carry on his literary labours undisturbed. It is a rude erection (see Fig. 753), and greatly damages the external appearance of the chapter house. It has eight sides, and is clumsily roofed with a pointed barrel vault. There is a large chimney in the north side, a large double window in the south side, and a small window in the south-east side.

The new choir or church erected to the east of the tower has been a structure of considerable size, having been probably about 100 feet in length by about 20 feet in internal width; but this building has now been almost entirely removed, the stones having been used, as we are informed, for the erection of a mansion on the mainland opposite. Only the fragment at the south-west angle, which is incorporated with the dormitory, and in which the ancient window already mentioned exists, now survives. At the east end of the south wall one moulded jamb of the sedilia can be traced (see Fig. 750), from which it is apparent that the choir must have extended some feet further eastwards.

Near the sedilia is the entrance to the lady chapel, a structure about 28 feet long by 22 feet wide internally. It is placed at right angles to the choir, and has been covered with a barrel vault, a portion of which{326}

[Image unavailable.]

Fig. 753.—The Abbey of Inchcolm. Exterior of South and South-East Sides of Chapter House, &c.

{327}

[Image unavailable.]

Fig. 754.—The Abbey of Inchcolm. West Side of Cloister.

{328}

still overhangs on the west side (see Fig. 741). In the east wall is a destroyed piscina, which no doubt adjoined the altar. The entrance archway has had on the jambs a half-round shaft and two splays on each side (see Fig. 750). A few feet of it remain, together with the base (see Fig. 750), which is of late design, and might correspond with the date of Richard of Aberdeen, by whom the lady chapel is said to have been built.

It has been mentioned that the cloister walk was continued across the north side of the square by a one-story structure. This is now demolished; but, from the foundations which remain (see Fig. 737), it has evidently consisted of a thin parapet wall, strengthened with five buttresses. The passage was about 11 feet wide, and had a wide arch in the solid wall at each end opening into it (Fig. 754). The roof was probably entirely of wood, and there is a ragglet cut in the stone work at each end, which shows that the slope of the roof was flat. These ragglets are rudely cut into the masonry, and that at the west end passes across the corbel of a projecting chimney. This passage would thus appear to have been a late addition.

The cellars, stores, &c., which are frequently in the west range of the cloister buildings, have in this instance been erected in a wing to the south-east. This wing (Fig. 755) is two stories in height. On the basement floor (see Fig. 737) it contains towards the east end a vaulted cellar, about 50 feet in length by 13 feet in width, lighted by loops in the south wall. At the east end a large oven is built out towards the north side, and had a room over it. On the upper floor (see Fig. 745) there has been a series of five or six offices, two containing large fireplaces, and one an oven in the angle. At the west end (see Fig. 747) the building has been carried up a story higher, and had a wheel stair in the re-entering angle. An entrance passage to the interior of the monastery passed through two archways under the north-west portion, and led to the entrance tower near the south-west corner of the cloister.

The south or exterior wall of the above range of offices has been strengthened with buttresses, but, being close to the sea, the south wall has been considerably damaged, and only the basement now survives.

As above mentioned, the south-west tower of the cloister (see Fig. 747) appears to be an addition of probably the fifteenth or sixteenth century, when, indeed, the most of the upper floor of the south and west walls would appear to have been erected. The corbels at the parapet of the tower have the character of those of the castles of the period. A window in the south-west gable (see Fig. 747) is round headed, and has a hood moulding with carved terminals, which look like sixteenth century work. The pulpit is projected on two buttresses, the space between which forms a recess for a seat on the ground floor. The projection for the pulpit has the appearance of being an addition. The large, square-headed upper{329}

[Image unavailable.]

Fig. 755.—The Abbey of Inchcolm. General View, from South-East.

{330}

windows in the south wall have a moulding on the jambs, and appear to be of late date.

A good view of the whole monastery is obtained from the eastern eminence of the island (see Fig. 755). On the summit of this height there is a flat piece of ground, which has been made available as a fortress, and is enclosed with an embrasured wall, one part being of extra strength and height, and, doubtless, formed the citadel. These fortifications were erected about a century ago, during the war with France.

[Image unavailable.]

Holyrood Abbey.

Doorway in Interior of South-West Tower.

{331}

MIDDLE POINTED OR DECORATED PERIOD.

Attention has been specially directed in the Introduction[126] to the fact that while, during the Norman and first pointed periods, a strong resemblance is observable between the architecture of England and Scotland, after the first pointed period there is a break in the continuity of the architecture of the two countries. Towards the end of the thirteenth century, owing to the political events which then took place, architecture in Scotland came to a standstill, and was not generally resumed till the end of the fourteenth or the beginning of the fifteenth century, when the country began to recover from the disastrous effects of the long struggle with England. Various restorations had been encouraged by royal grants during the fourteenth century, but some of the edifices so aided were only reconstructed to be again demolished by raids from the South.

In consequence of the unfortunate condition of the country, there is thus a wide gap in the continuity of the architecture of Scotland during the fourteenth century. When the country revived, and building again began in the fifteenth century, attention was chiefly devoted to the restoration of the churches throughout the country, which had nearly all suffered severely during the constant disturbance of the previous hundred years. Few new works were undertaken, all the energy and resources available being required for the rebuilding and completion of some of the more venerated and cherished cathedrals and monasteries.

The nave of Glasgow Cathedral appears to have been completed in the early part of the fourteenth century, and the west end of St. Andrews Cathedral was also to some extent repaired and rebuilt about that time. Elgin Cathedral was in a large measure rebuilt after the great destruction by the “Wolf of Badenoch” in 1390, and the Northern Cathedral of Ross, at Fortrose, was enlarged about the same period.

Of the ancient monasteries, those in the Border lands were much destroyed. Melrose Abbey now retains not a single portion of the original church. It had been completely demolished in the first part of the fourteenth century, but was partly rebuilt, through the liberality of Robert I., after the middle of that century; only to be again destroyed by Richard II. during his raid in 1385. To that savage raid was due the destruction of most of the sacred edifices of the south-east of Scotland. Richard’s troops penetrated as far as Edinburgh, when the town and church of St. Giles were consumed; and, in their retreat, the invaders set{332} fire to the abbeys of Newbattle, Dryburgh, and Melrose. Paisley Abbey, in Renfrewshire, and Crosraguel and Kilwinning Abbeys, in Ayrshire, were also greatly injured during the contest with England. Jedburgh was likewise much damaged in the Border warfare, and Holyrood and Arbroath Abbeys show signs of having required restorations in the fifteenth century.

When all the adverse circumstances of the country during the fourteenth century are considered, it is not astonishing to find that examples of the decorated style which prevailed in England at that time are rare in Scotland. The representatives of that style are not only scanty in number, they are also late in date. When building in Scotland revived, the decorated style had been superseded in England by the perpendicular; but the two countries being no longer in unison, the former style did not reach Scotland till it had passed away in England. It was, however, ultimately adopted in the northern part of the island, and the architecture of Scotland, during the early part of the fifteenth century, was carried out in a style which approaches nearer to the decorated than any other style.

This style, as we shall see, passes gradually into a later and somewhat debased style, which, while it exhibits many features borrowed both from France and England, yet possesses some interesting peculiarities which render it a distinctly Scottish style, and will be treated of as the third or late pointed style of Scotland.

The decorated structures of Scotland, though somewhat belated and inferior in size, are yet in many respects not unworthy in point of design to take their place beside those of the later part of that period in the sister country.

The decorated or middle pointed period in Scotland extends till about 1460. Up to that time the architecture is comparatively pure in style, and is chiefly based on the decorated work of England; but after that date it degenerates and becomes of a debased and mixed character, and contains indications of late importations from abroad.

The first building which illustrates the Scottish decorated period is the Abbey of Sweetheart in Dumfriesshire. This edifice was probably begun about the time when hostilities broke out between England and Scotland, and is intimately associated with the name of Baliol. What length the works may have gone when stopped by the war cannot now be ascertained, but the original design in the early decorated style has to all appearance been carried out when building was resumed. The large traceried windows and the details of the nave arcade and clerestory all point to the decorated period. Possibly, owing to the English connection of the Baliols, the design may have been brought from the South in the latter part of the thirteenth century, and carried out with modifications at a later time.

Amongst the principal structures of the Scottish decorated period,{333} Melrose Abbey holds a prominent place. This building, which had been partly restored through Bruce’s influence, was destroyed by Edward II. in 1322. The restoration was again proceeded with, and the structure was again partly demolished by Richard II. in 1385. The works had to be once more restored, and the structure was not completed till the beginning of the sixteenth century.

A considerable mixture of styles, as would in the circumstances be expected, is therefore found in the different parts of Melrose Abbey; but there can be little doubt, from the nature of the work, that some parts of the building belong to the Scottish decorated period, while other parts have a stronger leaning to the perpendicular style than any other Scottish church. A comparison of the details of this structure with those of York Minster, to which they bear a close resemblance, is convincing evidence of the decorated character of much of the work at Melrose. Whether we look at the beautiful windows and tracery, or at the buttresses, with their simple, but elegant, outlines and panelled surfaces; or at the elaborate and beautiful niches which adorn them, with their fine tabernacle work and spirited sculptures and figures; or at the pinnacles, with their carved crockets and foliaged finials, the style of the whole of the details will be found to correspond very completely in the decorated portions of these two buildings at York and Melrose. Other portions of the work have likewise considerable similarity to the later perpendicular work at York.

The details which connect the other structures of this period with the decorated style will be more particularly referred to in the descriptions of the buildings. A general statement of the characteristic features and details of the style has already been given.[127]

Special attention should, however, be drawn to one feature of Scottish architecture which became very prominent in, and characteristic of, the later phase of its development—viz., the pointed barrel vaulting carrying a stone roof, which covered almost all the churches of the third period.

This we find introduced for the first time during the Scottish decorated period at Lincluden College, a building which was erected early in the fifteenth century, and is a very fine example of decorated work. The roof was designed as a double one, the lower roof over the choir being groined and vaulted in the usual manner; while above this vault there was a pointed barrel vault, with strengthening ribs at intervals, on which rested a roof composed of dressed overlapping stones. Beneath the slope of the upper vault a small room was introduced between the two vaults. At the parish church of Bothwell, also erected by the same Earl of Douglas about the year 1400, a pointed barrel vault supporting a stone roof is employed, but there is no inner groined vault.

These two structures are early examples of a mode of construction{334} which specially distinguishes the churches of the late pointed architecture of Scotland—viz., the almost universal use of the pointed barrel vault supporting a stone roof.

The above two edifices further illustrate another circumstance in connection with the churches of the fifteenth and subsequent century. We have seen that during the fourteenth century, and in the early part of the fifteenth century, attention was chiefly directed to the restoration and completion of the large cathedrals and abbeys begun in the twelfth and thirteenth centuries. After the latter date large edifices of a similar description ceased to be undertaken. The religious enthusiasm of the people which gave birth to these splendid structures seems to have exhausted itself, and pious efforts were now chiefly confined to the liberality of individuals who endeavoured to raise monuments to commemorate themselves by the erection of small collegiate and other churches, or by founding altarages and chantries in the large edifices already in existence.

As already mentioned, the decorated style in Scotland is of a belated character, and is not generally so pure as that of the corresponding period in England. It will, however, be recognised that the examples given are sufficient to justify the division of the styles herein proposed. It will also be observed that the examples of the decorated style form a striking contrast, both to the preceding edifices of the first pointed period and to the buildings of the later or third pointed style, by which they were succeeded.

NEW ABBEY, OR SWEETHEART ABBEY, Kirkcudbrightshire.

The remains of this beautiful edifice are situated in a quiet sequestered vale near the base of the hill of Criffel, about seven miles south from Dumfries. The abbey stood on level ground near the Pow Burn, a stream which flows into the estuary of the Nith.

The ruins, though much dilapidated, are extensive, and belong to a fine period of Scottish Gothic, of which comparatively few examples survive. The conventual buildings have been almost entirely demolished and carried off as building materials, only a small portion of the chapter house and some foundations of walls still remaining. The church, however, is complete in all its divisions, although the roof is gone and the walls are much damaged. It comprises (Fig. 756) a choir without aisles, a nave with two side aisles, north and south transepts (with eastern chapels opening off them), and a square tower over the crossing. A level field, extending to about twenty acres, called the Precinct, surrounds the abbey, and is still partly enclosed with a strong wall built with large blocks of granite.

The monastery derives its name of New Abbey from having been{335} founded a considerable time after Dundrennan Abbey,[128] in the same county, which was regarded as the Old Abbey.

[Image unavailable.]

Fig. 756.—New Abbey, or Sweetheart Abbey. Plan.

Sweetheart Abbey was inhabited by Cistercian monks, and dedicated to the Virgin. The founder was Devorgilla, daughter of Allan, Lord of Galloway, and mother of King John Baliol. Her husband was John Baliol of Castle Barnard, in Yorkshire. When he died, in 1269, his wife had his heart embalmed and placed in an ivory coffin, which she carried about with her, and, finally, at her death in 1289, at the age of 76, it was{336} buried with her in a grave in front of the high altar of the abbey—hence the touching name of Sweetheart Abbey. The institution was richly endowed by Devorgilla, who had abundant means. She was the foundress of Balliol College, Oxford; and by her the old bridge over the Nith at Dumfries was erected, portions of which still survive.

The date of the foundation of the abbey is 1275. The names of many of the abbots are preserved, but they do not seem to have been specially distinguished, except the last, Gilbert Brown, who maintained the doctrines of Romanism in a written controversy with the well-known reformer, John Welsh, of Ayr. The abbot was afterwards exiled, and died at Paris in 1612.

In the sixteenth century the monks found it necessary to place themselves under the protection of a powerful layman. They therefore adopted the plan then common, and, in 1544-48, feued the Barony of Lochpatrick and other property to Lord Maxwell, and made him heritable bailie of the whole of their lands.

The property became vested in the Crown by the Annexation Act of 1587, and, in 1624, it was granted to Sir R. Spottiswood. Since that time it has passed through the hands of several proprietors. At the Reformation the records of the monastery were lost, having been either destroyed or carried abroad by the monks.[129]

During last century the buildings suffered great dilapidation, but towards the close of the century, by the exertions of the parish minister and some of the gentry of the neighbourhood, the structure was saved from further demolition, and put in a proper state of repair.[130] Since that time it has been still further repaired, and is now in good preservation.

Few of our ancient churches are so complete as regards all the divisions of the plan. The nave retains its central compartment, 118 feet in length by 33 feet in width, divided into six bays, and is separated from the side aisles—which are 17 feet in breadth—by two arcades of six arches each. The outer wall of the north aisle is almost entirely demolished, but this, fortunately, rather adds to the picturesque effect of the ruin, whether viewed from the interior or the exterior. In the former case, the distant glimpses of the country as seen through the arches, and, in the latter case, the beautiful view obtained of the interior of the church as seen from the outside (Fig. 757), lend an unusual charm to the edifice. The side aisles have evidently been vaulted, from the remains of the vaults still visible. It should be observed that the main arches are slightly depressed, their centres being below the level of the caps. The western doorway is plain and small, and seems, from the corbels above for the support of a roof, to have had some kind of porch in front of it. The doorway was originally surmounted by a large window filled with tracery; but at a later time the tracery seems to have given way, and has been partly{337}

[Image unavailable.]

Fig. 757.—New Abbey, or Sweetheart Abbey. View from North-West.

{338}

[Image unavailable.]

Fig. 758.—New Abbey, or Sweetheart Abbey. Bay of Nave.

replaced by solid masonry, which sustains a wheel of tracery in the arch (possibly part of the original window), while the lower part is divided into three smaller windows, with little buttresses between, each light having been filled with separate tracery. The nave is also provided with the usual door adjoining the transept and leading into the cloisters. There is no triforium, the wall over the nave arcades (Fig. 758) being blank till the clerestory is reached. The latter consists in the interior of a series{339} of three arches in each bay, and on the exterior (see Fig. 757) chiefly of semicircular windows filled with five pointed openings in each. The sill of the inner arches is kept considerably below the level of that of the outer windows, so as to diminish the blank space between the clerestory and the nave arcade. The main piers consist of a series of rounds, with larger filleted shafts at the angles (Fig. 759), and the caps and arch mouldings (see Fig. 758) indicate first pointed work.

[Image unavailable.]

Fig. 759.

New Abbey, or
Sweetheart Abbey.
Nave Pier.

The inner trefoiled arches of the triforium are of great beauty, and are enriched with fine bold mouldings (see Fig. 758), supported on bold shafts, the caps of which are carved with finely executed foliage, partly showing some survival of first pointed feeling in the design, and partly copied directly from natural foliage. They indicate a transition stage from the early to the middle pointed style. The nave wall is not divided into bays, with the usual vaulting shafts, the roof being doubtless of timber.

The central tower over the crossing stands on four piers, similar in section to, but larger than, the nave piers. The tower itself is square and plain, and rises, with a double crow-stepped gable above a plain parapet, to a height of over 90 feet. The water tables of the steep roofs of the four arms of the church are distinctly visible on the exterior of the tower.

The transepts extend 33 feet north and south of the crossing. They are 31 feet wide, and each contains two bays, with a chapel in the eastern aisle opposite each bay. The east aisle of the south transept is the only portion of the whole edifice which retains its vaulted roof. One of the bosses bears a shield containing arms, said to be those of the abbey. The charge consists of two pastoral staves in saltier, over which is a heart, and beneath three mullets of five points. The motto is indistinct.

The façade of the south transept (Fig. 760) retains a portion of its circular window, the tracery in which, like that of the great western window, has apparently given way, and has had to be partly built up in a similar manner with solid masonry. This portion of the church possesses a few features which seem to point to it as the oldest remaining part of the edifice. The forms of the windows indicate a somewhat earlier date than the rest of the church. A small portion of the triforium in the north transept (Fig. 761) has been spared, which shows that it has been similar in design to that of the nave.

The choir (see Fig. 761) is without aisles, and is 50 feet long by 28 feet wide, and divided into three bays. It is lighted with one large traceried east window and two traceried windows on each side; and the tracery, as rarely happens in Scotland, is still preserved. It is a peculiarity of this structure that most of the arches are depressed, the centres from which the arches are struck being below the level of the capitals; and this peculiarity is particularly apparent in the great east window of the choir.{340}

[Image unavailable.]

Fig. 760.—New Abbey, or Sweetheart Abbey. View from South-West.

{341}

[Image unavailable.]

Fig. 761.—New Abbey, or Sweetheart Abbey. Choir, from Crossing.

is also noticeable in the side windows and throughout the building, even the arches of the main arcades of the nave having, as already pointed out, a similar form. The inner mouldings of the window arches{342} by this arrangement abut against or die into the jambs, a form not in itself displeasing; but the incompleted and broken appearance of the arches of the hood at the face of the wall cannot be regarded as beautiful.

Some further peculiarities are also to be noticed in connection with the tracery. A prominent moulding is carried round the mullions and the lower arches only of the eastern window, while the upper parts of the tracery are plain and rather heavy in appearance. In the case of the side windows of the choir a similar moulding is carried round the whole of the tracery, and the effect, owing to the depression of the arches, is somewhat squat and heavy.

The most beautifully detailed feature of the church is undoubtedly the triforium. Although now only well preserved in the nave, it has originally gone round the whole edifice, small portions of it being still preserved, as above mentioned, in the triforiums of the transepts and choir (see Fig. 761). In the two latter places it has been simpler than in the nave, the caps being moulded in these situations, and beautifully carved with foliage in the nave.

The semicircular arch of the upper window in the east gable (Fig. 762) of the choir and the similar form in the exterior windows of the triforium of the nave (see Fig. 757) are quite in accordance with Scottish usage, and give no clue to the date.

The sedilia and piscina of the choir have been of fine workmanship, but are now sadly destroyed.

It is unfortunate that so few written records remain to fix the dates of the different parts of the edifice. It is known to have been founded in 1275, and if in England, the building would, from its style, be attributed to the period immediately succeeding; but in Scotland, the period from 1296 onwards was a time of war and disturbance, when very little building was in progress. Probably the choir was begun in the lifetime of the foundress, and was sufficiently far advanced to permit of her burial within the walls; but the building would certainly be interrupted during Edward’s invasions, and was not likely to be resumed till after a considerable interval. Some portions of the transept have already been referred to as probably the oldest parts of the existing edifice. The choir seems to have been next constructed or completed, and the nave not long afterwards, probably during the fourteenth century. Although ecclesiastical buildings in Scotland were rare at that period, still we know that Bruce encouraged the re-erection of churches at Melrose, Crosraguel, St. Andrews, and elsewhere, and there can be little doubt but that in this remote and quiet region building operations may have been in progress during his reign. The design and workmanship at Sweetheart are, as we have seen, in some respects inferior and contrast disadvantageously with the beautiful work at Dundrennan Chapter House. May we hazard the conjecture that the latter was executed before the true current of{343}

[Image unavailable.]

Fig. 762.—New Abbey, or Sweetheart Abbey. View from North-East.

{344}

architectural feeling and design was stopped and broken by the War of Independence, while the buildings at Sweetheart were carried on and completed after the current had been interrupted, and the sympathy with the advancing art of the South had not had time fully to recover itself?

We are informed[131] that, in 1381, a charter to the Church of St. Colmonel of Butyle was granted by the Bishop of Galloway to Sweetheart Abbey on account of the poverty of the abbey and the demolition of the monastery by lightning, which charter was confirmed by the Pope in 1397. This seems to point to some considerable damage sustained by the buildings about that period, and may account for the curious repairs of the tracery of the great west window and the circular window of the south transept. It may also explain the remarkable patch of the upper window in the end of the north transept, where the originally pointed window has been mended with a segmental top.

The cloister garth is still traceable and is unencumbered with buildings, except one detached gable, evidently of ancient date, but the history and use of which cannot now be determined (see Fig. 760). It contains two shields, but the armorial bearings have entirely disappeared. This view from the south-west point, which includes the above ivy-clad gable in the foreground, with the remains of the chapter house and an ancient tree on the opposite side of the cloister garth, is one of the most striking and picturesque aspects of the abbey.

The chapter house is separated from the south transept by a narrow passage or slype, from which a door opened into the transept.

The size of the chapter house has been about 30 feet by 20 feet, but only a few feet of its walls remain. It has been lighted by a large traceried window looking to the east (see Fig. 760). The refectory is said to have been on the south side of the cloisters, but it has now disappeared.

MELROSE ABBEY, Roxburghshire.

Amongst the picturesque and beautiful remains of our ancient church architecture, the ruins of Melrose Abbey most deservedly occupy a distinguished place. Apart altogether from the charm which attaches to this edifice from the poetic interest which has been thrown around it, and the attractive nature of the beautiful locality, the architecture of the building is of a high order, and particularly valuable from the richness and completeness of its details, which afford a fine illustration of a period of Scottish architecture the examples of which are not numerous. The building stands in the sheltered and cultivated vale of the Tweed, surrounded by gentle pastoral hills, presenting one of those peaceful sites dear to the Cistercians, by whom the abbey was colonised. It was{345} founded by David I., who brought to it from Rievalle, in Yorkshire, the first monks of the Cistercian order in Scotland. A more ancient Abbey of Melrose had existed from the seventh century, on a broad meadow, nearly surrounded by a “loop” of the Tweed, about two and a-half miles lower down the river. It was established about the year 650, and the first abbot was Eata, one of the chosen band of disciples educated by Aidan, the missionary from Iona, who converted the heathen Northumbrians, and founded the Abbey of Lindisfarne. In the primitive monastery of Old Melrose St. Cuthbert spent much of his early life before passing to more distinguished charges at Hexham and Lindisfarne. Here also the monks of Lindisfarne, when expelled by the Danes, found refuge, bringing with them St. Cuthbert’s sacred body, which, after many wanderings, found a final and worthy resting-place at Durham. This establishment at Old Melrose suffered many vicissitudes, and in the eleventh century was a ruined and desolate place. It afterwards became the retreat of a few monks, amongst whom was Turgot, the confessor and biographer of Queen Margaret, and subsequently Bishop of St. Andrews. A chapel was erected and dedicated to St. Cuthbert, which at first belonged to Coldingham, but was finally presented by David I. to his new Abbey of Melrose.

The latter abbey was founded, in 1136, at a place then called Fordell, and was endowed by King David and his nobles with ample lands. The church then erected was in course of building for ten years. It was consecrated in 1146, and was dedicated to the Blessed Virgin. As only a short time had elapsed since the founding of the abbey, the buildings then constructed probably consisted of the residence of the monks and an oratory. These erections were no doubt in the Norman style of the period, of which style some examples are preserved in the other monasteries founded in the district about the same period, such as the Abbeys of Kelso, Jedburgh, and Dryburgh.[132] How long the original structures continued it is now impossible to say, as every trace of them has long since disappeared. From its situation, in the direct path between England and Scotland, Melrose was particularly exposed to danger, and frequently suffered in the wars between the two countries.

Many of the abbots were distinguished men. Waltheof, an early abbot, was reputed a saint and worker of miracles. The connection with the parent house of Rievalle was kept up, and monks from Melrose sometimes became abbots of the Yorkshire monastery. Melrose also sent abbots to other Cistercian houses, including Kinloss, Coupar, Newbattle, Deer, and Balmerino.

The possessions of the abbey soon increased, and it held lands in many parts of Scotland. Its property was considerably augmented, in 1235, by a grant from King Alexander II. of the lands of Ettrick Forest.{346}

In 1246 Abbot Matthew erected many convenient offices and buildings and a magnificent hall on the bank of the river for himself and his successors, but these structures have now disappeared.

In 1291 Edward I. granted protection to the monks of Melrose, but when John Baliol opposed him, he took possession of their lands. These, however, he subsequently restored, on the monks doing homage to him as liege lord. His letters to the sheriffs of counties show how extensively the monastery’s lands were spread, extending even into England. These letters were addressed to the sheriffs in Berwick, Ayr, Jedburgh, Peebles, Edinburgh, Roxburgh, Dumfries, and Northumberland.

Edward II., in 1322, invaded Scotland as far as Edinburgh, and, in retiring from his unsuccessful expedition, he slew the monks and pillaged and destroyed the abbey. The church and other buildings seem to have been greatly ruined on this occasion, and were rebuilt thereafter chiefly through the influence and liberality of King Robert Bruce. In 1326 King Robert granted the monks rents from forfeited lands equivalent to a sum of £2000 (which would now represent £15,000), to enable them to rebuild the abbey, which lay in ruins; and in 1329, shortly before his death, he addressed a letter to his son and successor, recommending the abbey to his favour, and desiring his heart to be buried in the church. Melrose, along with other portions of the south of Scotland, remained in the hands of Edward III. for about forty years.

In 1385 Richard II. carried out another unsuccessful, though destructive, invasion of the south of Scotland. As he retreated homewards he lodged one night in Melrose Abbey, and next morning set fire to it and destroyed it, as he also did to the abbeys of Newbattle and Dryburgh.

About the middle of the fifteenth century Andrew Hunter was abbot. He was confessor of James II., and was employed in many offices of State, being Ambassador to France in 1448, and concerned in negotiations with England till 1460. He was also Lord High Treasurer, 1449-53.

This abbot being a man of such high office, it is natural to look for some benefit arising to the abbey through his influence, and accordingly we find that he has left his mark on the church, his coat of arms being carved at least three times on different parts of the building. This leads to the conclusion that some portions of the structure were erected by him, and gives a clue to the date of erection of those portions.

The secularisation of the property of the abbey followed the usual course in the sixteenth century. In 1535 King James V. was invested with the administration of the revenues, and, in 1541, he conferred the abbey on his infant son—Durie, the abbot, retiring on a pension to make way for him.

During the repeated invasions of the Generals of Henry VIII., the abbeys of the south of Scotland suffered along with the churches and domestic buildings of the district. In 1544 Melrose was damaged by Sir{347} Ralph Eure and Sir Bryan Laiton, who also defaced the tombs of the Douglases in the church—a disgrace which was avenged the following year by the defeat of the English at Ancrum Moor. The above destructive attack was followed by that of the Earl of Hertford, who demolished what of the Border abbeys had not already been destroyed.

In 1558 Cardinal Guise was Commendator of Melrose, and, in 1559, the abbey was taken possession of by the Lords of the Congregation. In 1560 it was annexed to the Crown; but an allowance was granted to eleven monks and three portioners, being apparently all who survived of the inmates of the monastery, who, in 1542, numbered one hundred monks and as many lay brethren.

Under Queen Mary the estates were granted to the Earl of Bothwell, with the title of Commendator, and, after passing through the hands of Douglas of Lochleven and Sir John Ramsay, they were ultimately acquired by the Scotts of Buccleuch.

The abbey appears never to have recovered the destruction of the sixteenth century, and gradually fell into decay. The materials of the buildings were used for the erection of other structures, and Douglas, the Commendator, built a house for himself out of the ruins.

The masonry long continued to form a quarry for the supply of the locality, being used, amongst other purposes, for the erection of the Tolbooth and for repairing the mills and sluices.

In 1618 the portion of the structure which still remained was fitted up as the parish church, and, in order to render it secure, a plain pointed barrel vault was thrown across the nave, and was supported by plain square piers built against the old piers on the north side. The original vaulting seems to have been previously demolished.

By remarkable good fortune the statues and images which filled the niches escaped destruction till 1649, when they suffered at the hands of an iconoclast, but by whose orders it is not known.

The charters of the abbey have been kept amongst the archives of the Earl of Morton, and form “the finest collection of ancient writs preserved in Scotland.”[133]

Of the once extensive structures connected with the Abbey of Melrose there now only remain the ruins of the church.

The domestic buildings and cloister, including the hall of Abbot Matthew above mentioned, were situated, somewhat contrary to the usual practice, on the north side of the church. The course of the Tweed has altered since the thirteenth century; and possibly this arrangement of the plan may have had some connection with facilities for water service in the then course of the river. A mill-lade still flows along what would formerly be the north side of the monastery; but{348}

[Image unavailable.]

Fig. 763.—Melrose Abbey. Plan.

{349}

the domestic structures have now entirely disappeared, leaving only a portion of the cloister to indicate their position on the north side of the nave. A door at a high level in the north transept shows the access of the monks to the church from the dormitory, which lay to the north. A similar high door, leading from the dormitory to the church by a straight stair, still exists at Pluscardine Priory, and there is a corresponding doorway at Dryburgh Abbey; but in these convents the monastic buildings lay on the south side of the church.

The church is cruciform, and the Plan (Fig. 763) has this peculiarity, that the choir is unusually short and the nave is unusually long. The choir extends, with aisles, only two bays eastwards from the crossing, beyond which point the presbytery is carried one bay further, without aisles, and is lighted by large windows on the north and south sides, as well as by the great eastern window.

[Image unavailable.]

Fig. 764.—Melrose Abbey. Plan of Nave Pier.

The shortness of the choir rendered it necessary that part of the nave should be appropriated for the accommodation of the monks, and the enclosing screen wall of this portion of the “choir” extended to the fourth pier west from the crossing, where it was carried across the nave and formed the rood screen. This arrangement is apparent from the broken portions of the screen wall, which formed integral parts of the structure of the nave piers (Fig. 764), having been built along with them, thus showing that the screen constituted a feature in the original design. The part of this screen which crosses the nave still exists. It is wide, and contained a gallery, on top of which stood the rood. Fig. 765 shows the door through it from the nave. On the left is the small stone stair leading to the gallery.{350}

[Image unavailable.]

Fig. 765.—Melrose Abbey. Doorway in Rood Screen.

{351}

The nave now extends to eight bays in length, but it has been intended to be longer, the west end being incomplete; it is impossible, however, to say how far it was meant to extend. It is stated that the foundations of the nave have been found, in excavating, to reach to a considerable distance westward. The existing nave is 160 feet in length, and has north and south aisles. Extending southwards, beyond the south aisle, is a series of eight chapels, which produce, externally, along with the south aisle the appearance of a double aisle (Fig. 766).

The north aisle is narrower than the south aisle, the former being 6 feet and the latter 11 feet in width. This difference may have arisen from the plan of the original abbey of the twelfth century being adhered to in the later reconstruction. The position of the cloister may have hampered the design, and prevented the north aisle from being widened in the direction of the cloister.

The central nave is 26 feet in width, and the depth of the south chapels 13 feet 6 inches, and the total width of the nave, with aisles and chapels, is 68 feet.

The transept consists of two portions—the north and south transepts—and contains the usual eastern aisle only, in which are situated four chapels. The total length of the transept over the crossing is 114 feet 6 inches, and the width of the north transept, including the aisle, is 40 feet 6 inches, while that of the south transept is 42 feet 6 inches.

The length of the choir and presbytery is 59 feet, and the width 26 feet. The aisles of the transept return along each side of the choir for two bays, leaving the length of the aisleless presbytery 24 feet.

The plan or outline of the walls of the church, as above described, is still almost all preserved, but the superstructure has suffered severely. The western part of the nave beyond the rood screen is very greatly demolished. The portion eastwards from the rood screen is in better condition. The vaulting of the aisles (Fig. 767) remains, and is in good preservation; but that of the centre aisle is demolished, a pointed tunnel vault (Fig. 768) having been constructed in 1618, as above described. A few courses of the springing of the original groins, seen rising above the vaulting shafts of each bay, have been left standing. The level cornice at the springing of the inserted arch defaces the clerestory windows, and builds up the upper half of them in the interior. The roof over the arch is composed of slabs of stone carefully dressed (see Figs. 766 and 769). The carved work of the caps of the piers and other enrichments of this portion of the nave are well preserved and are of beautiful workmanship (Fig. 770).

The eight chapels which extend along the south side of the nave are in good preservation, although some parts of the three furthest west are somewhat damaged and have lost their vaulting. That of the remaining five still exists, and is protected by a flat slated roof, which stretches{352}

[Image unavailable.]

Fig. 766.—Melrose Abbey. Nave, from South-West.

{353}

[Image unavailable.]

Fig. 767.—Melrose Abbey. South Side of Nave.

over the south aisle and the chapels (see Fig. 766). The tracery in the windows of those chapels is good, and has suffered much less than usual. The vaulting of the nave, south aisle, and chapels is supported by a series of flying buttresses, which form one of the most prominent and beautiful{354}

[Image unavailable.]

Fig. 768.—Melrose Abbey. Rood Screen and Nave.

{355}

[Image unavailable.]

Fig. 769.—Melrose Abbey. Niche, in Nave Pinnacle, with Figure of St. Andrew.

{356}

elements of the building. No church in Scotland retains such a striking example of that important feature of Gothic architecture.

[Image unavailable.]

Fig. 770.—Melrose Abbey. Caps of Piers in Nave.

The eastern piers of the crossing have been demolished, probably in some of the attempts to blow up the building in Henry VIII.’s time. Their destruction has entailed that of the central tower, of which only the western wall remains (see Fig. 766). The transepts have suffered by the fall of the tower, the vaulting of the north transept being demolished, except in one chapel, while that of the south transept is reduced to the south bays of the central nave and the adjoining chapel (Fig. 771). Fortunately the south wall of the transept, with its splendid decorated window, is still in good preservation (Fig. 772). From the south transept access is obtained to the roof of the aisle of the nave and the upper parts of the structure by a turnpike stair, which also forms the only mode of approach to the tower (Fig. 773).

The choir (Fig. 774), so far as the east end is concerned, is well preserved, the buttresses and gable, the celebrated eastern window, and the remarkable vaulting (Fig. 775) of the presbytery being all in good order. The remainder of the choir, however, has been greatly wrecked by the fall of the central tower; but many of the windows of the choir and transept,{357}

[Image unavailable.]

Fig. 771.—Melrose Abbey. South Transept.

with their perpendicular tracery, have escaped destruction and afford the best example in Scotland of that form of design (Fig. 776).{358}

[Image unavailable.]

Fig. 772.—Melrose Abbey. South Transept: Exterior.

Having described the present condition of the edifice, we shall now consider the different parts in the order of their age, so far as ascertainable.{359}

[Image unavailable.]

Fig. 773.—Melrose Abbey. South-West Angle of South Transept.

There seems to be no part now traceable of the church erected in the {360}twelfth century, except perhaps one or two tombstones. It has been

[Image unavailable.]

Fig. 774.—Melrose Abbey. East End of Choir.

pointed out above that the arrangements of that original church and cloister probably influenced the position of the north wall of the nave, and thus caused the narrowness of the north aisle. It seems not improbable that some of the original north wall may be preserved as the{361} core of the present wall, having been faced up with newer work on each side.

[Image unavailable.]

Fig. 775.—Melrose Abbey. Interior of Choir.

But, speaking generally, the building, as it now stands, is all of a date subsequent to Bruce’s time, and much of it is later than the destruction which occurred under Richard II. in 1385. The nave, from the crossing to the rood loft, and part of the transepts are, undoubtedly, the oldest{362}

[Image unavailable.]

Fig. 776.—Melrose Abbey. South-East Angle of Transept and Choir.

portions of the existing edifice. The work in these is, for the most part, of the Scottish decorated period. The nave piers, with their beautifully-carved caps, and the mouldings of the arches are distinctly decorated work; and the flying buttresses and pinnacles on the south side of the nave are, without doubt, of the same period (see Figs. 766 and 773). So{363} also is the south wall of the transept, with its magnificent window and tracery and its buttresses, enriched with fine canopies and quaint figures carved as corbels (see Fig. 772).

[Image unavailable.]

Fig. 777.—Melrose Abbey.
Niche.

All these features bear a close affinity to the decorated work of the nave of York Minster, erected about 1400. The flying buttresses, with pinnacles enriched with crockets and foliaged finials (see Fig. 766); the niches (Fig. 777), with their elaborate canopies and corbels composed of figures of monks and angels (see Figs. 769 and 778); the statues which formerly filled the niches, of which very few now remain; the decorated tracery of the south transept window (see Fig. 772); and the whole character of the work, both in its general scope and in its details, is of fine decorated design, and vividly recalls that of York, Beverley, and other English examples. It is not improbable that some parts of the nave and transept were erected during the period between the death of King Robert Bruce and the invasion of Richard II. It should be mentioned that Bruce’s bequest was not all received till 1399, and the operations also, probably, proceeded slowly. The doorway in the south wall of the south transept (Fig. 779) is apparently an insertion in older work. It is of a later style than the window above; and the irregular setting of the masonry on each side indicates that there has been some patching and restoration in this part of the building. Fig. 780 shows the jamb mouldings of this doorway. A passage or gallery passed along the interior at the base of the large south window. It had a parapet of pierced work, now destroyed, supported on a carved cornice (Fig. 781), having angels playing on instruments introduced at intervals.

It is sometimes said that the north wall of the transept (Fig. 782) is of earlier date than the rest; and, at first sight, the three simple lights and the semicircular doors might give ground for that view. But, on closer inspection, it is seen that the windows correspond with those of the clerestory of the nave, and the round arches are simply one of the peculiarities of Scottish Gothic in which that form is preserved, especially in doorways, throughout all the periods of the style. The long lying panel about the middle of the north wall further indicates a late date.{364}

[Image unavailable.]

Fig. 778.—Melrose Abbey. Pinnacle on South Side of Nave, with Statue of Virgin.

{365}

It seems to have contained a row of statues, as fourteen pedestals or corbels still occupy its base. The small circular window in the gable, filled with simple tracery (similar to a window at Dryburgh), is also a late feature.

[Image unavailable.]

Fig. 779.—Melrose Abbey. Doorway in South Transept.

The south chapels of the nave have apparently been added during the repairs of the earlier part of the fifteenth century. The forms of the flying buttresses (see Fig. 766), which extend beyond the outer wall of{366} the chapels so as to comprise them, show that the restoration of this part of the nave is all part of one design; and the arms of Abbot Hunter (Fig. 783), which occur on the niche-corbel of the east buttress, indicate that these buttresses were probably executed towards the middle of the fifteenth century. The tracery in the windows of the south chapels would tend to confirm the belief that they belong to the decorated period, but for the fact that this feature cannot be fully relied on in Scotland as an index of date, tracery similar to this being sometimes used at a later time.

[Image unavailable.]

Fig. 780.—Melrose Abbey. Door Jamb in South Transept.

[Image unavailable.]

Fig. 781.—Melrose Abbey. Cornice under Gallery, inside South Window of Transept.

There is a distinct change in the design of the transepts from that of the nave, as if the former had been added to the latter at a later period.{367}

[Image unavailable.]

Fig. 782.—Melrose Abbey. North Transept.

{368}

This is observable in the west wall of the north transept (see Fig. 782), but still more so in the west wall of the south transept (Fig. 784). The window nearest the nave is of a different design from that of the one further off. The former (Fig. 785) may be older, and the latter (which is the same as the other windows of the choir and transept) was, probably, built at the same time as the latter. The stair turret is, doubtless, also of this date. It may be remarked, in connection with this point, that the bases of the two piers of the south aisle of the nave, next the crossing (see Fig. 784), differ from those of the remainder of the nave aisle (Fig. 786), as well as from the bases of the east piers of the transept (Fig. 787). These bases also differ from those of the nave piers (Fig. 788). The same Fig. also shows the exterior base of the choir. The pier at the angle of the south aisle with the transept has no wall-shaft to carry the vaulting, which springs from a corbel (see Fig. 784). The vaulting at this angle is also peculiar, and does not fit well with the aisle vaults further west, but has a straight piece of wall built in perpendicularly for the cross rib to stop upon (see Fig. 784). These points appear to indicate that the piers next the crossing are older than the remainder. The vaulting shafts of the main nave piers are somewhat unusual in design (Fig. 789), having in their lower part the appearance of a double shaft, although above the corbel, near the level of the capitals, they assume the form of a triple vaulting shaft of the usual design. The same arrangement has been copied in the transept (Fig. 790), where the piers seem to have been carried up from old bases, as the double vaulting shaft has no proper base, but simply buts against the round form of the ancient base (see Fig. 787), and in some cases fits on to it awkwardly.

[Image unavailable.]

Fig. 783.—Melrose Abbey.
Abbot Hunter’s Arms.

Turning now to the choir, we find that the east wall and the other eastern parts of the structure are more recent than the nave. Probably this portion of the church (see Fig. 774) had been more damaged by Richard II. than the nave, and required to be almost wholly rebuilt. The style here corresponds closely with the “perpendicular” of England which prevailed in the fifteenth century. Most of the clerestory windows of the choir and presbytery are markedly in this style. The great eastern window (see Fig. 774) is exceptional and unique, but it has more of the character of perpendicular than any other style. The design of the buttresses is slightly different from that of the south wall of the transept (compare Figs. 772 and 774), but the niches and canopies are very similar. The upper part of the gable consists of a series of niches{369}

[Image unavailable.]

Fig. 784.—Melrose Abbey. West Side of South Transept.

{370}

over the window arch, which diminish as they ascend towards the apex; and the gable coping, crowned with a pierced parapet, filled in with quatrefoils, corresponds generally in both cases. The design of the choir appears to have been borrowed from that of the transept, but is of a lighter character; or possibly the latter may have been damaged in 1385, and the upper part of both gables may have been designed by the artist who had charge of the restoration in the fifteenth century. It will be observed that flying buttresses are continued round this part of the structure as well as the nave.

[Image unavailable.]

Fig. 785.—Melrose Abbey. Clerestory Window in West Wall of South Transept.

As above stated, the upper portion of the choir walls has been reconstructed at a date in the fifteenth century later than the nave. The{371} windows

[Image unavailable.]

Fig. 786.—Melrose Abbey.

Base of Pier, South Aisle of Nave.

 

Fig. 787.—Melrose Abbey.

Base of East Piers of Transept.

[Image unavailable.]

Fig. 788.—Melrose Abbey.

Bases of Nave Piers
and Base of Exterior of Choir.

 

Fig. 789.—Melrose Abbey.

Vaulting Shafts of Main Nave Piers.

here and in the clerestory of the east wall of the transept are quite perpendicular in character, and are apparently of the same date as the presbytery. The clerestory windows of the choir and transept (see Figs. 775 and 771) have on the exterior arches distinct from those of the windows on the inside of the wall, which are likewise of late character. A change in the form of the caps of the piers is observable in the transept (see Fig. 790), which points to their being late; while some of the windows in the lower parts of the walls of the choir and transept contain curvilinear tracery, thus indicating an earlier date for the lower part than the{372} clerestory. There seems to have been a good deal of restoration and patching in this part of the structure.

[Image unavailable.]

Fig. 790.—Melrose Abbey. Cap of Pier and Vaulting Shaft in North Transept.

The design of the west wall of the north transept (see Fig. 782) is different from that of the other parts of the building. Owing to the position of the cloister and to there being no aisle on this side, the place of the main piers and arches is occupied by a blank wall. The clerestory windows, however, are of the same design as the rest of the older church. The wall ribs of the vaulting include two windows in each; and the space between the windows is occupied by two niches, each carried up from a shaft, with late canopies, containing statues of St. Peter and St. Paul—the former having the keys and the latter holding his sword. These are the best preserved statues in the church, but they are not of very remarkable workmanship.

The building or restoration of the eastern part of the edifice seems, from its style, to have been carried out towards the middle of the fifteenth{373} century. The vaulting of the south transept appears to have been erected by Abbot Hunter about the same time. On one of the keystones of the vault of the south transept are carved the Hunter arms—viz., three hunting horns, with a crosier, and the letters A. H. This fixes the date of that part of the vaulting about 1450-60, and probably more of the vaulting in the eastern part of the nave may have been carried out at that epoch. It will be observed that the vaults all contain, besides the main and ridge ribs, subsidiary ribs, or tiercerons, indicating a similarity to English examples.

[Image unavailable.]

Fig. 791.—Melrose Abbey. Abbot Hunter’s Arms
on Buttress in Transept.

The vaulting of the presbytery (see Fig. 775) is peculiar, and points to a somewhat later time. It consists of a series of ribs spread over the surface of a pointed barrel vault, so as to form a definite pattern. These ribs produce a very rich effect, but they are a departure from the principles of true groined vaulting. This system was introduced in England at a late period, and led gradually to fan tracery. In the method of vaulting, adopted in late English work, the ribs are no longer relied on, as in genuine Gothic, as the strengthening nerves or centres which sustain the panels of the vault. They become mere ornaments on the surface of plain barrel or intersecting vaults, such as those used in Roman architecture. The vaults of late architecture in England (although ornamented with ribs) are thus constructed on the same principles as those of the pointed barrel vaults of late Scottish churches (of which numerous examples will be given hereafter), the only difference being that the latter are generally left plain, although occasionally enriched with ornamental surface ribs. Very fine examples of vaulting similar to that of the presbytery of Melrose may be seen at Winchester Cathedral[134] and other English examples of the fifteenth century.

The south chapels to the west of the fifth buttress west from the transept, on which buttress another specimen of Abbot Hunter’s arms (Fig.{374} 791) is engraved, are of comparatively late date. This buttress belongs to the earlier part of the nave, and the chapel seems to have been repaired when the additional chapels to the west were erected. Besides the three hunting horns in the shield of Abbot Hunter in the examples above mentioned, the arms engraved on the fifth buttress contain two crosiers saltierwise, and the initials A. H. on the right and left; also, in chief a rose, and in base a mason’s mell, for Melrose. The work in the chapels to the west is inferior to that of those to the eastward, although copied from them. The chapels each contain an enriched piscina (Fig. 792); and these are so inferior in style of workmanship as to lead to the belief that they were inserted after the chapels were built. One of them contains the initials of Abbot William Turnbull, whose date is the beginning of the sixteenth century. A late piscina (Fig. 793) has also been inserted in the south transept.

[Image unavailable.]

Fig. 792.—Melrose Abbey.

Piscina in South Chapel.

 

Fig. 793.—Melrose Abbey.

Piscina in South Transept.

Work in the nave and in the south chapels was apparently in progress during the reign of James IV., as the royal arms (Fig. 794), with the letters I. Q. (Jacobus Quartus), and the date 1505 on the westmost buttress testify.

On the south side of the cloister is the very charming doorway (Fig. 795) which leads into the church. It is, as is very usual, circular headed, and enriched with a deep bay containing bold mouldings, which in Eng{375}land would, from the square arrangement of their orders, be regarded as of early date. But the style of the richly carved and undercut caps and the foliaged hood mould clearly points to a later period than would at first sight be supposed, certainly not earlier than the nave. To the right of this, and along the east wall of the cloister (see Fig. 795), are arched recesses of a late style; and in the south wall is an arcade of trefoil form, with nail-head enrichments. The latter might also at first sight be regarded as early work, but closer inspection shows that it is an example of the late revival of early forms which prevailed towards the close of the Gothic epoch.

Not a fragment remains to show how the cloister walk was enclosed. The roof has evidently been of wood, from the corbels for the wall plate and the holes cut in the wall to receive the timbers (see Fig. 795). These probably rested on a series of pillars and arches running round the outer side of the cloister walk, but whether of stone or timber cannot now be determined. It seems not unlikely, from its entire disappearance, that the outer arcade may have been of timber.

[Image unavailable.]

Fig. 794.—Melrose Abbey.

Royal Arms on West Buttress.

It is stated in Wade’s History of Melrose Abbey[135] that the arcade of the cloister formerly extended 150 feet each way. The wall of the cloister is now reduced to the portions which abut against the nave and transept, being 50 feet on the east side and 80 feet on the south side. The former side contains a wall arcade of seven arches (see Fig. 795). These are of the form called drop arches, with crocketed ogee hood moulding, and have plain spandrils above, over which there runs a straight cornice, enriched with flowers and shells of all descriptions, very beautifully carved. It is of these Sir Walter truly says—

“Nor herb nor floweret glistened there
But was carved in the cloister arches as fair.”

Of the tower (see Fig. 766) over the crossing, which is 84 feet high, only the western wall, with small portions of the north and south walls, now exists. It rises one story in height above the nave roof, and is{376}

[Image unavailable.]

Fig. 795.—Melrose Abbey. Wall Arcades and North Doorway in Cloister.

{377}

crowned with a parapet filled in with quatrefoils, and resting on an enriched and corbelled cornice. At each angle is a shaft rising from a corbel. The three windows are simple, with pointed arch and cusped trefoil, similar to those of the clerestory of the nave and north transept. The tower has, doubtless, been erected about the same time as the transept.

The above description of the various portions of the abbey suffices to show how full of interest it is to the student of architecture as well as to the artist.

We have drawn attention to the more prominent features, but it is impossible for us here to enter fully into all the multiplicity of details which such an elaborate structure offers for observation and study.

No building in Scotland affords such an extensive and almost inexhaustible field for minute investigation and enjoyment of detail as this. Whether we consider the great variety of the beautifully sculptured figures of monks and angels playing on musical instruments (Fig. 796), or displaying “the scrolls which teach us to live and die,” or turn to the elaborate canopies and beautiful pinnacles of the buttresses (see Figs. 769 and 778), or examine the rich variety of foliage and other sculptures on the capitals of the nave and the doorway and arches of the cloisters; or if, again, we take a more general view of the different parts of the edifice from the numerous fine standpoints from which it can be so advantageously contemplated, we know of no Scottish building which surpasses Melrose either in the picturesqueness of its general aspect, or in the profusion or value of its details.

[Image unavailable.]

Fig. 796.—Melrose Abbey. Figures of Monks and Angels.

It occupies an important position also historically, as it in part supplies an admirable example of that decorated architecture the existence of which in this country has been so often denied, but of which, we trust, a sufficient number of examples are now provided to render that reproach to Scottish architecture no longer justifiable.

We have to thank the fine red sandstone of the district, of which the church is built, for the perfect preservation of all the details of the structure. These remain, even in the minutest carving, as perfect and complete as the day they were executed.

In the south transept (see Fig. 784) are two remarkable inscriptions, which have given rise to much speculation. One of these is carved over the doorway in the west wall which gives access to the wheel stair, and{378} part of the inscription is carried down one side for want of room. It runs as follows:—

Sa ye Cumpas gays evyn about
Sua trouth and laute sall do but diute
Behalde to ye hende q. Johne Morvo.

The other inscription is carved on a tablet in the wall on the south side of the same door, viz.:—

John Morow sum tym callit was I
and born in Parysse certainly
And had in keeping al masoun werk
Of Santandroys ye hye kyrk
Of Glasgw Melros and Paslay
Of Nyddysdayll and of Galway
I pray to God and Mari bath
And sweet S. John kep this haly kirk frae skaith.

In the centre of the former inscription is a sunk panel containing a shield with two masons’ compasses, arranged somewhat like a saltier, and beneath a figure resembling a fleur-de-lys.

The late Dr. John Smith, in the Proceedings of the Antiquarian Society of Scotland, considers these inscriptions as applying to one man, who may have been the master mason of the building. But Mr. Pinches, in his account of the abbey, mentions that John Murdo, or Morow, was engaged in building a church in Galloway in 1508. It thus seems likely that these inscriptions are not earlier than that date, and have been added to the building after its completion.

Since the foregoing description of Melrose Abbey was written, we have had the pleasure of reading the very interesting work by Mr. Peter M‘Gregor Chalmers, called A Scots Mediæval Architect, in which an attempt is made to identify the John Morow of the inscription in the south transept, and to trace his work in the various localities where he is stated to have “all mason work in keeping.”

This book shows a great amount of careful investigation and intelligent observation in connection with a number of our ecclesiastical structures, especially Melrose Abbey; and we have to acknowledge our indebtedness to Mr. Chalmers for some valuable hints, which are duly noted in their places as they occur.

The inscription on John Morow’s tablet states that he “had in keeping all mason work of St. Andrews, the High Kirk of Glasgow, Melrose and Paisley, of Niddisdale and of Galloway.”

From this statement it is generally assumed by Mr. Chalmers and other writers on the subject that John Morow was the architect engaged to carry out all the architectural work required at the above places during the term of his official appointment.

Mr. Chalmers conducts the reader to the various places which John Morow “had in keeping;” and wherever he finds a fine specimen of{379} somewhat late work, he confidently attributes its design to that “Scots Mediæval Architect.”

At Paisley he thinks he can trace his handiwork in a panel which formerly stood in the abbey wall, built by Abbot Shaw in 1485, from a certain resemblance in the form of the letters and phraseology employed to those of the Melrose tablet.

At Glasgow Cathedral and Lincluden College the design of the rood screen at each and the chief part of “Blackadder’s Aisle,” and of other details in the former, is assigned to John Morow.

At St. Andrews he believes him to be traceable in the carving of certain coats of arms; and at Melrose Abbey a great part of the later work is attributed to him.

At Whithorn Priory and Glenluce Abbey, which are within John Morow’s province, some work is pointed out which might be of his date; but as it is somewhat poor in character, that “Mediæval Architect” is presumed to have been busy elsewhere, and to have left the job to inferior hands.

It is admitted by Mr. Chalmers that the work at Melrose Abbey must have, undoubtedly, extended over more than half a century, and would, in all likelihood, exceed the compass of one man’s lifetime. But as there are two inscriptions at Melrose to “John Morow,” or Morvo, Mr. Chalmers has no difficulty in deciding that they are to two members of the same family, both architects, who, he believes, carried on the works at the abbey from before the middle of the fifteenth century till some time in the sixteenth century.

The inscription on the lintel of the doorway is, therefore, supposed to be in memory of John Morvo, the assumed grandfather of the John Morow whose tablet is inserted in the west wall adjoining—the earlier parts of the work having been carried out by the former, and the later parts by the latter.

But Mr. Chalmers’ fancy is not limited to the invention of these great architects as illustrious members of the family of the Morows. He would also fain attribute to them other honours and distinctions.

He therefore assumes that John Morow the younger was identical with John Murray, of Faulohill, a favourite at the Court of James IV., from whom he received many gifts, which favours he requited by rebellion, and by finally appearing on the scene as the chief actor in the ballad of the outlaw Murray; of which ballad he is further believed to have been the author! And, to crown this strange eventful history, we are told that the success of this architect so excited the jealousy of the nobles that he was waylaid and assassinated by them.

Here we have disclosed, if not a history, at least a fiction of the most thrilling interest in the life and death of the “Mediæval Architect,” John Morow; and so full of invention is this flight of fancy, that we trust its{380} introduction here will be excused as a relief to the dry details of prosaic architectural descriptions.

We have no desire to disturb this touching romance; but we feel called upon to indicate some points which may be regarded as worthy of consideration before it is accepted as historically or architecturally consistent with fact.

However beautiful this dream may be, and much as the author is entitled to praise for his careful study of the buildings he describes (which, we gladly acknowledge, is considerable), we fear that his theory will be found, on examination, to rest on a very weak and unreliable foundation.

The following are some objections which at once present themselves:—

1. Without entering into the question as between the “master of the work” and the “master mason,” or attempting to prove by whom mediæval buildings were designed, we believe it has been distinctly shown that there was in Scotland, about A.D. 1500, no one recognised as “the architect” apart from the builder. The “master of the works” was a fully recognised and salaried officer, and would, we believe, be more likely to receive a tablet such as this than the master mason.[136]

2. But supposing that John Morow, to whom the tablet was erected, was a master mason. It is assumed that John Morow was a Scot. The inscription emphasises the statement that he was “born in Paris certainly,” from which it may be fairly inferred that his French birth and, probably, education had to do with his appointment. This might indicate that he was a French master mason; and it is known that many French master masons were employed under James IV. and V.

3. It is assumed that the name Morow is identical with Murray (an idea which was suggested, in 1854, by the late Dr. John Smith[137]), but this is entirely hypothetical. Besides, there is absolutely no evidence produced to show any connection between John Morow and John Murray of Faulohill.

4. Nor can it be shown that the latter had any connection with building or architecture.

Let us now glance at the descriptions of the various portions of Melrose Abbey which are assumed by Mr. Chalmers to be the work of John Morow.

There seems to be nothing in Mr. Chalmers’ views antagonistic to the general divisions of Scottish mediæval architecture adopted in this book; indeed, his observations seem to confirm these divisions, which assign to the decorated work in Scotland the period before 1460, and to the late or third pointed work the subsequent period.

Supposing this to be correct, we suspect that some of the work which{381} Mr Chalmers attributes to John Morow, and of the date of about 1490 to 1510, is in the earlier category. At Melrose, as we have seen, the decorated work is before 1460, and the later work is quite inferior. Hence the necessity for the introduction of the earlier John Morvo, to whom we have no objections, if his existence could be proved. At all events, it must be conceded that the earlier or decorated work was not executed by the “Scots Mediæval Architect,” John Morow.

The same remark will, we think, be found to apply to the rood screen at Lincluden,[138] and to that at Glasgow,[139] the work at both of which is very superior to the sixteenth century work at Melrose, and therefore, in all probability, considerably earlier than John Morow’s time.

We observe that Mr. Chalmers considers the choir and presbytery of Melrose, in which a strong similarity to perpendicular work is perceptible, to be of the time of James IV., and sarcastically remarks on what he considers the unworthy exaltation of the king and his queen to the place of honour on the apex of the east gable of a building dedicated to God. But this is an entire assumption. There is no proof that these figures represent James IV. and Queen Margaret Tudor. The figures in the east gable appear to us to represent the coronation of the Blessed Virgin, a frequent subject in similar positions.

[Image unavailable.]

Fig. 797.—Boss from York Minster.[140]

We have already remarked on the similarity of much of the work at Melrose to that of York Minster, and there occurs in one of the bosses of the latter a representation of the coronation of the Blessed Virgin (Fig. 797), in which the figures are almost identical in every respect with those in the east gable of Melrose choir. The attitude is precisely the same in both. At York, the Saviour is represented as having a beard and long flowing hair. He is crowned, and holds up the right hand in benediction, while in the left hand he supports the globe. The Virgin holds her hands palm to palm, in the attitude of adoration, while an angel places the crown on her head, and on the other side an angel throws the censer. Another similar example from Dore Abbey is shown in Fig. 798.[141]{382}

The figures at Melrose are somewhat wasted by exposure, but a comparison of the above sketches with that of the east gable (Fig. 774) will show that, while there is no ground for the assumption that the latter represents James IV. and Queen Margaret, there is every reason to believe that it personifies the more appropriate subject of the coronation of the Blessed Virgin. In the series of niches on each side there still remain kneeling figures of adoring angels, which, while most appropriate to the latter subject, would be quite out of place in the former.

[Image unavailable.]

Fig. 798.—Boss from Dore Abbey.

Mr Chalmers gives some interesting details and observations regarding the chapels in the east aisle of the transept. He points out that these were probably dedicated to the saints whose statues stand, or stood, on the west side of the transept, opposite each chapel. Thus, in the north transept, the chapels would be those of St. Peter and St. Paul, whose statues still survive in the west wall; while those in the south transept would be dedicated to St. Andrew and St. John. Mr. Chalmers suggests that the statue of St. Andrew (see Fig. 769), which previously stood opposite his chapel in the south transept, was removed and placed in a niche in one of the south buttresses, the pedestal being heightened to receive it, as the statue was too short for the niche. The south chapel of the transept he believed to be that of St. John. John Morow’s tablet is opposite this chapel, and his prayer to “Sweet St. John” is, therefore, most appropriate. Mr. Chalmers points out that the chapels at the east end of Glasgow Cathedral are dedicated to the same saints and in the above order.

[Image unavailable.]

Melrose Abbey.

{383}

LINCLUDEN COLLEGE, Kirkcudbrightshire.

This small, but valuable, example of Scottish decorated architecture is pleasantly situated on a quiet level holm at the junction of the water of Cluden with the river Nith, about one mile north from Dumfries. Although the surviving portions of the church are fragmentary, they exhibit many beautiful details of the Scottish decorated style.

Originally the site was occupied by a convent of Black or Benedictine nuns, which was founded in the twelfth century by Uchtred, son of Fergus, Lord of Galloway, who endowed the convent with lands.[142] Of this establishment only trifling remains can be traced. The edifice whose ruins now exist was founded anew, about the end of the fourteenth century, by Archibald the Grim, Earl of Douglas and Lord of Galloway. He is said to have expelled the nuns on account of their “insolence;” but it is also recorded that he acquired considerable possessions by the transaction. Be this as it may, the earl showed his devotion by rebuilding the church and endowing a new establishment. The new foundation consisted of a collegiate church, with the necessary domestic structures. It comprised at first a provost and twelve canons, Elise, or Elias, being appointed the first provost in 1404. The second provost was named Cairns, and under him the college consisted of eight canons, twenty-four bedesmen, and a chaplain.[143] The surviving remains of the domestic buildings for the accommodation of the inmates extend in the form of a long wing to the north of the church (Fig. 799). These now consist of a series of vaulted cellars, dimly lighted with one small loophole in each, and entered by a few steps down from the ground level. On the floor above the cellars there was probably a large hall; and at the north end a portion rose into a keep or tower, which probably formed the residence of the provost (Fig. 800). In Grose’s Views, drawn in 1789, the tower is shown much more complete than it now is, a large part having tumbled down a good many years ago. The staircase turret on the west side was also much higher at the end of last century, having fallen so recently as 1851. It bore the royal arms and the arms of Provost William Stewart. These out-buildings would thus appear to have been built about the beginning of the sixteenth century. Foundations of other structures are observable, which probably formed a courtyard to the west; while, on the eastern side, the outline of a wall which enclosed a considerable space of ground can be traced in the grass-grown mounds. There is a high mound adjoining to the south-east, which had a winding path leading to the summit, and from which an extensive view can be obtained over the level country around.

It is believed that Lincluden was a frequent residence of the Earls of Douglas. They were the Wardens of the Western Marches; and a parlia{384}ment of the Border chiefs was held here in 1468 by Earl William, in order to revise the laws of Border warfare.

[Image unavailable.]

Fig. 799.—Lincluden College. Plan.

{385}

[Image unavailable.]

Fig. 800.—Lincluden College. View from South-East.

{386}

Many of the Provosts of Lincluden were men of distinction. For instance, John Cameron (who died in 1446), besides holding important offices under the Crown, was afterwards made Bishop of Glasgow; John Winchester, who died in 1458, became Bishop of Moray; Andrew Stewart, who died in 1501, was appointed to the Bishopric of Moray; and William Stewart (1545) became Bishop of Aberdeen. Robert Douglas, the last Provost, enjoyed the benefice for forty years after the Reformation. Like other incumbents about that period, he endeavoured to dispose of the property for his own benefit, but was opposed by the prebendaries. Some of the latter continued to occupy the college till 1567;[144] and mass was sung in the church so late as 1586, under sanction of Lord Maxwell. The reversion of the provostry fell to William Douglas of Drumlanrig, grand-nephew of the last Provost. Lincluden was erected into a temporal barony in 1565, and subsequently passed into the hands of the Earl of Nithsdale, whose descendant, Captain Maxwell of Terregles, has done much for the repair and preservation of what remains of this charming old building.

A few traces of the original Norman masonry have been discovered. The church seems to have occupied the same site as the existing building, and to have consisted of a nave, 56 feet by 20 feet, and a choir of the same width. There was a north aisle, 9 feet wide, with cylindrical pillars and a depressed arcade. A south aisle probably also existed. The western door (4½ feet wide) can be traced, which had a semicircular arch of several orders. These facts were all ascertained during recent excavations.[145]

The Plan (see Fig. 799) shows the arrangements of the church of the fifteenth century and the other buildings, so far as preserved. The church consisted of a choir, which is in a fair state of preservation, except the roof and vaulting, the former of which has disappeared since Grose’s time. It is separated by a stone screen, with a wide doorway, from the nave and transept, which are greatly demolished, only the walls of the south transept and part of that of the south aisle of the nave now remaining. The choir is without aisles, and consists of three bays. It is 44 feet in length by 19 feet 6 inches in breadth internally. The nave and transept measured about 56 feet in length from the choir screen, and the nave appears to have contained three bays, with a window in each. It had an aisle on the south side. The responds of the piers still partly exist at the east and west ends. The nave and transept were about the same size as the original nave—viz., 56 feet long, the former being 20 feet and the aisle 12 feet broad.

The transept was without aisles, and was 14 feet in width, and projected 12 feet 6 inches beyond the nave aisle. There are foundations traceable on the north side of the nave, but it is not clear to what buildings these belonged. It is not improbable, however, that there may have{387}

[Image unavailable.]

Fig. 801.—Lincluden College. Door to Sacristy, and Monument to Margaret, Countess of Douglas.

been a north aisle. The sacristy is entered from the north side of the choir. The door is very ornate, and contained, on two shields, the arms{388} of Archibald the Grim and his lady (Fig. 801). The sacristy was covered with groined vaulting, and had an entrance from the court of the domestic apartments.

[Image unavailable.]

Fig. 802.—Lincluden College. Choir.

{389}

The details of the architecture of the choir are of great beauty (Fig. 802). It has often been remarked that they are unusually large and massive, as if intended for a larger structure, which gives them great picturesqueness of effect. The corbels which carry the vaulting shafts are carved in the form of angels, some playing musical instruments. The caps of the shafts are richly ornamented with foliage and armorial bearings; and as these are well preserved in the durable red stone of the district, the heraldic decorations tell the story of the intimate connection of the Douglas family with the structure (Fig. 803).

[Image unavailable.]

Fig. 803.—Lincluden College. Caps of Shafts.

Large pointed windows, originally filled with fine geometric tracery (Figs. 800 and 804), are inserted in all the bays of the south side of the nave and choir and in the gable walls of the choir and transept. The design of the tracery may be easily restored from the surviving fragments (see Billings). The windows of the north wall of the choir are placed high in the wall and are of small dimensions, owing to the large monument in that wall, and also because part of the wall was covered by the roof of the sacristy. The mullions and tracery are all very massive and of purer geometric form than is generally met with in Scotland. The somewhat debased tracery common in later Scottish structures is here entirely absent.

The exterior of the structure (see Fig. 800) is simple, but chaste, in design, and accords well with that of the interior. The base mouldings and the beautifully-carved cornice are decorated in character.

The splendid monument in the north wall of the choir (see Fig. 801) was erected in memory of Margaret, daughter of Robert III. and wife of Archibald, 4th Earl of Douglas, son of Archibald the Grim. He went to France in 1423, with a large retinue, to the aid of Charles VII., by whom he was created Duke of Touraine. He was killed at the battle of Verneuil, in 1424. The countess survived till about 1440. She made grants to the college in 1429, which were confirmed by her brother, James I. She also founded a chapel, and increased the number of inmates from thirteen to thirty-four. The monument is evidently part of the original design. The choir would, therefore, appear to have been in{390}

[Image unavailable.]

Fig. 804.—Lincluden College. Chancel Arch, Rood Screen, and Nave.

{391}

progress during the countess’s lifetime, and may thus not have been completed till the first half of the fifteenth century was well advanced. In confirmation of this, we find that the arms of Provost Haliburton (see Fig. 803) are carved on the south wall, and he was superior of the college about 1430. The architecture of the church corresponds in style with the decorated work usual in Scotland in the first half of the fifteenth century, of which it forms an important example.

The monument to the Countess of Douglas is amongst the finest specimens of that kind of structure in Scotland. It is, like the other features of the church, of large size for the small building in which it is erected. The principal arch is semicircular in form, a peculiarity of common occurrence at all periods in this country. It is very richly ornamented with running foliage and small shafts and mouldings, and the inner arch is enriched with a large traceried border, elaborately foiled and cusped, while the outer label is decorated with carved crockets, and is carried up with an ogee curve to a large foliaged finial on top. The sides are bounded by buttresses of light and simple form, finished with crocketed finials, and a bold cornice, enriched with leaf ornaments, runs along the top. The base which enclosed the sarcophagus displays an arcade of nine trefoiled arches, each containing a shield, on which the arms of the family were formerly blazoned, but they are now much decayed by the weather.

“The Lordship of Annandale is represented by its saltier and chief; a lion rampant, the cognisance of the M‘Dowalls, typifies Galloway; three stars show the Moray arms, which the founder of Lincluden acquired by marriage; three stars of the first, with a man’s heart below, indicate the escutcheon of the Douglases when rising nearer the political zenith. * * * One of the shields displays a fess chequé, surmounted by a band ingrailed; another, the same emblem, without the band, these telling, in heraldic language, of the Royal Stewarts’ connection with the Douglases, the chequered fess illustrating the old tally method by which stewards kept their accounts.”[146]

[Image unavailable.]

Fig. 805.—Lincluden College.
Cups or Chalices over Main Arch.

Within the triangle formed by the label over the main arch there occurs a very remarkable design, consisting of three cups or chalices (Fig. 805), each accompanied with a star following one another round the triangle. As Grose suggests, these probably represent the insignia of the earl’s office as “panitarius” or cupbearer to the king. Some letters are engraved at the angles, but they are difficult to decipher. At the back of the monument are carved the following inscriptions,{392} “A l’aide de Dieu,” and, lower down, “Hic jacet Dña Margareta Regis Scotiæ filia quondam Comitessa de Douglas Dña Gallovidiæ et Vallis Annandiæ.”

The tomb has been rifled, and is now empty, and the effigy of the countess, which still reposed on the monument in Pennant’s time (1772), has now disappeared.[147]

On the opposite side of the choir are the triple sedilia and piscina (see Fig. 802), both fine works, but sadly mutilated. They are of the usual style of the period, and are adorned with much carving of a similar description to that of the tomb.

Behind the place of the high altar, three large plain corbels are inserted in the wall (see Fig. 802). These seem to have carried a reredos of carved stone, and some fragments of a sculptured stone, such as would have suited for this purpose, still survive (Fig. 806).

[Image unavailable.]

Fig. 806.—Lincluden College. Fragments of Sculptured Stone.

As in other churches, the choir was reserved for the ecclesiastics, being separated from the nave by a stone screen (see Fig. 804), in which, however, there is a large doorway, six feet wide, which was furnished with an iron grating, through which the interior could be seen from the nave. The upper part of this screen formed a loft, approached by a turnpike stair. The loft, no doubt, carried the rood. It is wider than the screen wall, and is supported by three corbelled courses, decorated with carved work of a large and massive character. The two upper rows represent angels, with wings, and having their hands crossed in front of the breast. The lower row shows a number of groups of figures, much damaged, but{393} apparently representing scenes from the life of Christ. The large arch over the screen formed the western termination of the choir.[148]

It will be observed that the springing of the groined vaulting of the choir (which is now demolished, or, possibly, was never completed) is still visible, rising from the caps of the vaulting shafts (see Fig. 802). The groining, like the other features of the structure, was of a complete character, corresponding to the perfected style of the architecture. It comprised the usual transverse, diagonal, and wall ribs, and had also, as is common in English examples, intermediate ribs, or tiercerons and ridge ribs. These can all be traced in the remaining fragments. But what is more remarkable is that the remains of another and independent tier of vaulting can be observed above the groined roof. This is evident from the Sketch (see Fig. 802), which shows the springing of an upper plain pointed barrel vault, strengthened at intervals with transverse ribs. Grose compares this with the vaulting of King’s College Chapel, Cambridge; but he has mistaken the purpose of the different vaults. That of Cambridge was introduced in order to carry the pendants of the fan-vaulting below, whereas that of Lincluden has evidently been built to support a stone roof above. Plain pointed barrel vaults are very common in Scottish churches, and are invariably introduced for the purpose of supporting a roof of overlapping stone slabs. Numerous examples occur in this work, and roofs of that description were also very usual in the castles—as at Borthwick, &c. Generally, the barrel vault is visible from the interior; but in the present instance, the building being a decorated one, a roof of groined vaulting has been intended under the plain vault.

Grose speaks of a third roof of timber over the barrel vault, and both his drawing and Pennant’s indicate a turf or straw covering. But that could hardly be original. The building was, in their time, almost as ruinous as now, and it is very likely that the stone slabs of the roof had been removed, and a temporary wooden roof substituted, or a covering of turf laid over the barrel vault, which, perhaps, at that time still remained.

The space between the two vaults would form a chamber, which may have been used as a sleeping apartment. The window in the gable is still visible. A similar apartment, with a window, seems to have existed over the vaulting of the south transept, and both appear to have entered from the turret stair in the wall between the nave and choir.

A similar roof to the above occurs at St. Mirren’s Aisle, Paisley Abbey, where the two vaults, with a small chamber between them, still exist.{394}

The ornamental work of the nave (see Fig. 804) is similar to that of the choir, and of the same date. The vaulting shafts are carried on brackets carved with the figures of angels, and the caps are of similar massive design to those of the choir. The tracery of the windows was of the same geometric or decorated style as that of the choir. The foundations of the west end of the church are quite distinct, but the foundations on the north side of the nave seem to have belonged to later buildings, as they do not harmonise with the design of the church.

The domestic wing has already been noticed. The cellars of the basement enter from the courtyard. Some of these have ambries in the walls. An octagonal turret, about the centre, contained the entrance doorway and a wheel stair to the upper floor. It was also provided with the shotholes usual in the sixteenth century.

Another turret, in the angle next the sacristy, contained a private door to the latter, and, probably, another stair to the upper floor. The provost’s tower has evidently, from Pennant’s view, contained at least four stories; but it is now much decayed and demolished. These buildings present very much the appearance of a secular dwelling or castle of the sixteenth century.

The whole edifice being now surrounded with an iron railing, and properly looked after, it is hoped that this interesting specimen of Scottish ecclesiastical architecture will be long preserved from further ruin.

FORTROSE CATHEDRAL, Ross-shire.

According to tradition, the origin of the Church of Rosemarkie, the first cathedral of Ross, is ascribed to St. Boniface, otherwise known as Albanus Kiritinus or Cuiritan. This saint is now supposed to have been an Irish monk named Cuiritan, who, in the seventh century, adopted the Roman ecclesiastical forms, and, coming to Scotland, endeavoured to introduce them there. The legend of Bonifacius is evidently connected with the revolution by which King Nectan and the Picts conformed to Rome. After visiting various places in Pictland, and being well received by King Nectan, St. Boniface founded churches at Restennet[149] and Invergowrie, which were dedicated to St. Peter. Finally, he landed at Rosemarkie, on the north side of the Moray Frith, the site of an old Columban monastery founded by Lugadius or Moluog of Lismore, where, also, he built a church, and named it after St. Peter and Bonifacius.[150]

On this site, which is just opposite the long spit of land which runs far across the Frith from the south side at Fort George, there arose in later times a small town, while a larger ecclesiastical establishment, called the Chanonry, was afterwards founded about one mile further west.{395} These two places were united under one charter by James II., in 1444, with the name of Fortrose, and the two small towns still remain in the same relative position.

The Culdee College continued at Rosemarkie till the Romanising influences of Queen Margaret’s sons were brought to bear upon it. In 1126 there occurs the first mention of the Bishop of Rosemarkie in a charter of David I. It seems probable that here, as at other places, King David converted the existing Culdee College into a chapter, and appointed the abbot, or prior, as the bishop of the diocese. The Bishop of Ross has this peculiarity, that he takes his title from the province, and not from the town, where he holds his see.

When Argyle had been brought under the royal power, the whole of North Argyle was, in 1221, added to the Earldom of Ross, and the diocese was largely increased by the addition to it of the churches in that county.

Up to 1227 the Chapter of Rosemarkie was small, consisting of the dean, the treasurer, the archdeacon, and four canons; but in 1235 Pope Gregory IX. gave leave to the bishop to found and endow new canonries, and increase the endowment of the other four.[151]

It seems probable that at the period of the enlargement of the chapter the cathedral was moved from Rosemarkie to Chanonry, or Fortrose. Although most of the buildings which would have fixed the date of this change are now removed, there still remains one structure which, from its style, seems to be of the first half of the thirteenth century. This is the undercroft of the sacristy, an erection the enlargement of which would be called for by the increased size of the chapter.

The cathedral then constructed was a large and important building. It stood on level ground not far from the Moray Frith, over which it commanded a fine prospect. The ruins still occupy the central position in the town of Fortrose, and stand in a large open plot of grassy ground, where they can be well seen, and where they are well cared for.

The existing portions of the cathedral are very fragmentary. The greater part of the church and the houses of the bishop and chapter have entirely disappeared. All that now remains consists of the south aisle of the nave and the sacristy or undercroft of the chapter house. So completely have the nave and choir of the church been swept away, that Mr. Muir was led to imagine that the existing south transept was the main body of the cathedral, and that it had only had an aisle on the north side.[152] But the excavations undertaken, about twenty-five years ago, by the Commissioners of Her Majesty’s Woods and Forests, laid bare the foundations of the choir and nave, and showed that the cathedral had been a complete structure, with a choir 85 feet in length, and a nave 100 feet in length, the width of both being 25 feet.{396}

What the style of the edifice was we have now no means of knowing; but it may be assumed that, like the sacristy, it was built in the first pointed style, which prevailed in the thirteenth century, when the see is believed to have been removed from Rosemarkie to Fortrose.

Mr. Muir may well have been deceived with regard to the existing south aisle, for it is a structure of unusual size and splendour, and, in its present solitary condition, presents rather the appearance of a complete church, with distinct choir and nave, than that of a nave aisle. It is composed of two parts (Fig. 807), an eastern portion, which measures 41 feet 6 inches in length by 21 feet broad, and a western portion, 56 feet 6 inches long by 14 feet 9 inches broad, with a bell turret projecting at the angle where the two parts meet.

[Image unavailable.]

Fig. 807.—Fortrose Cathedral. Plan.

Both of the divisions are elegantly vaulted in the English style, with ridge ribs and tiercerons or intermediate ribs. On the north side is a range of clustered pillars and arches, forming five bays, which separated the aisle from the nave. Some of the arch openings are enriched with canopied monuments.

The east end (Fig. 808) contained a large traceried window of five lights, and some fragments of the tracery still cling to the arch. The window is rather short for its width, being kept high, so as to admit of an altar and reredos. The south wall has also been pierced with traceried windows, now, unfortunately, mutilated. The other division towards the west end contains a doorway, formerly sheltered by a large porch, now demolished.

The exterior (Fig. 809) presents, at the east and west ends, the appearance of complete gables, with a span roof, not a lean-to roof, as is usual over aisles. The buttresses are of good form, and the enriched cornice still survives. The parapet is gone, but at the west end a wide{397} stone gutter, or alure, supported on corbels and roofed in, still remains. The windows of the western portion are less elaborate than those of the eastern portion.

[Image unavailable.]

Fig. 808.—Fortrose Cathedral. East End of South Aisle.

{398}

[Image unavailable.]

Fig. 809.—Fortrose Cathedral. View from South-East.

{399}

In the angle between the two divisions of the aisle a staircase and bell turret are erected. Rising from a square base the walls are changed by a set-off on each angle into an octagon; a balcony is carried round the turret, and the top is finished with a modern pointed roof.

The whole of the architecture of the aisle is of unusually good design, and the building is altogether quite unique and full of beauty and interest.

Not the least remarkable feature in the structure is the range of canopied monuments which stand between the pillars on the north side. In connection with these monuments, the history of the edifice has been ingeniously traced by Mr. Chisholm-Batten.[153] The eastmost monument (see Fig. 808) is traditionally stated to be that of a Countess of Ross; and Mr. Chisholm-Batten, from various indications in the building, shows that it was, in all probability, the Countess Eufamia, daughter and heiress of the Earl of Ross, who erected this aisle, and is buried under the eastern monument therein. This lady was possessed of ample means to erect such a splendid structure. She married, first, in 1366, Walter de Leslie, and succeeded, in 1372, to the estates of Ross. Leslie died in 1382; and in the same year the countess espoused the Earl of Buchan, better known as the “Wolf of Badenoch.” He died in 1394; and thereafter the countess took the veil, and became abbess of the convent of Elcho.

Mr. Chisholm-Batten has detected the arms of Leslie, her first husband (on a bend three buckles), on one of the bosses of the vaulting of the western division; while on another boss is carved a bull’s-head caboshed, the arms of Bishop Bulloch, who occupied the see from 1420 to 1439.

As the style of the architecture accords with these dates, the inference is that the western part of the aisle was erected either by the countess or her son, Alexander Leslie, Earl of Ross, and completed during the episcopate of Bishop Bulloch, and that the monument to the countess was erected by her son in the noble aisle which she had built, and in which she, no doubt, took great pride. The death of the countess took place before 1398. The aisle would thus date about the end of the fourteenth or the beginning of the fifteenth century, and must be regarded as a splendid example of Scottish architecture of that period. Possibly some portions of the western division are older; but, if so, it has been remodelled and vaulted at the above date. The piers next the nave (Fig. 810) have the peculiar feature of a square plinth (somewhat like the small buttresses which enclose the adjoining tombs) running up the inner side to form a support for the springing of the vaulting (Fig. 810). This feature has the appearance of being an addition to the piers, thus suggesting that the aisle and its vaulting are of later date than the nave of the cathedral. The piers are clustered, and have moulded caps with round abaci.

The monument in the western division of the aisle (see Fig. 810) is believed to be that of Bishop Fraser, who occupied the see from 1498 to 1507;{400}

[Image unavailable.]

Fig. 810.—Fortrose Cathedral. West End of South Aisle.

and the style of the work confirms this view. The arched canopy, with its ogee head, and the third pointed carved work of its crockets and finial are in good preservation. The figure of the bishop is also well preserved. The fragments of a third tomb still exist under the arch, between the two{401} already described (see Fig. 808). This has evidently been a late structure, with a canopy supported on a series of arches; but it is now so mutilated that its features cannot be distinctly made out. It is believed to be the tomb of Bishop Cairncross (1539-45).

It is thought that the western division of the nave was the chapel of St. Boniface;[154] for when Bishop Tulloch, about 1460, presented the bell (which still hangs in the south turret) to the church, he dedicated it to St. Mary and St. Boniface, probably because the chapels adjoining the bell turret were dedicated to these saints.

[Image unavailable.]

Fig. 811.—Fortrose Cathedral. Piscina.

Besides the tracery of the windows and the beauty of the tombs, the aisle is rich in details. In the south wall there is a fine piscina (Fig. 811), and in the north wall an ambry, with a small stone penthouse. All the windows have label terminals, many of them finely carved with heads.

An octagonal font of remarkable design (Fig. 812) stands against the east wall of the aisle.

[Image unavailable.]

Fig. 812.—Fortrose Cathedral. Font.

We have seen that the sacristy is the only part of the original building which now remains. This is a plain rectangular structure, two stories in height, 45 feet long by 12 feet wide internally, which stands quite detached in the centre of the open space surrounding the site of the cathedral. The upper floor is, with all probability, believed to have been the chapter house; but it has{402} been rebuilt, and is now used as the place of meeting of the Town Council. Externally the building has the appearance of a plain modern stone erection; but internally the ground floor preserves most of its original features. It is vaulted in six bays, with groined vaulting; but being low, and provided with very few small windows, the interior can only be dimly seen. The dog-tooth and other details, however, seem to indicate first pointed work. There is a range of arched seats, and an ambry at each side, towards the east end. The doorway entered from the choir, in the centre of the south side; and a staircase in the west wall led to the upper floor.

Mr. Chisholm-Batten thinks that this undercroft was the chapel of St. Nicholas, where a consistorial office was held in 1451, being more suitable for such an assembly than the open south aisle of the nave. So far as can now be ascertained, there were no other aisles connected with the cathedral.

The history of the cathedral subsequently to the Reformation is not well known. Under the Regent Morton the lead was removed from the roof, and the structure fell into disrepair. But it was partially repaired by Bishop Lindsay in 1615; and in 1649 it was not very ruinous. It would, therefore, appear that the tradition is probably correct which says that the masonry of the walls was removed by Cromwell, like that of Kinloss Abbey, for the construction of his citadel at Inverness.

CROSRAGUEL ABBEY, Ayrshire.

This monastery, whose abbots once possessed regal sway over nearly the whole of Carrick, now stands a solitary deserted ruin in a small sequestered valley, about two miles from Maybole, on the road leading by Kirkoswald to Girvan. The monastic buildings, although much ruined, are still of considerable extent, and comprise, besides the church, more remains of ecclesiastical and domestic structures than are usual in our Scottish religious establishments. This has probably arisen from the quiet and secluded nature of the site, as well as from the protection afforded by the powerful Earls of Carrick.

The chartulary of the abbey is lost, but many of the scattered charters have been collected and printed by the Ayrshire and Galloway Archæological Association, and edited by Mr. F. C. Hunter Blair, 1886. From these and the introductory chapter most of the following historical notes are gleaned.

The abbey was founded by Duncan, Earl of Carrick, in the end of the twelfth century. By him lands and churches were granted to the Abbey of Paisley, on condition that the monks should found a monastery in his province of Carrick, after their own Order of Cluny, to which the said{403} endowments should be handed over. These conditions were evaded by the monks of Paisley, who contented themselves with erecting a cell at Crosraguel, and kept the rest of the revenue to themselves. Such conduct was naturally complained of by the earl, and it was decided by William de Bondington, Bishop of Glasgow, that a monastery should be forthwith erected at Crosraguel. Earl Duncan is said to have superintended the erection of the structure, in which case it must have been in progress between 1244, the date of the bishop’s decision, and 1250, when the earl died. In 1265 the Pope confirmed the “Scriptum de Crosragmol” of Bishop Bondington.

Additional grants were made to the abbey by Earl Nigel, the successor of the founder. The church was dedicated to the Virgin Mary. The monks were of the Order of Cluny, in France. This order was first introduced into England at Wenlock, in Shropshire, whence monks were brought to Paisley Abbey by Walter, first Steward of Scotland. The ecclesiastics of that convent, being the superiors of Crosraguel, naturally colonised it with monks of their own order of Cluniacs.

During the fourteenth century the abbey is much associated with the history of the Bruces. The romantic marriage of the father of King Robert to the Countess of Carrick established the family in the earldom. The countess and her husband were benefactors of the abbey, and their neighbouring Castle of Turnberry became a protection to the monks.

During Edward’s invasion, in 1296, Henry de Percy was appointed Sheriff of Ayr. In 1306 he held Turnberry Castle, and a letter, dated by him from Crosraguel, asking for two engines of war to be sent to him, shows that siege operations were in contemplation.

During this disturbed period of Scottish history it seems probable that this abbey, like many other similar institutions throughout the country, suffered from the effects of war. The buildings show that the original structure of the monastery has been demolished, and that new edifices were erected in the fifteenth century; and it is supposed that this reconstruction was rendered necessary by the damage caused during the English invasion. When the kingdom became settled, after the War of Independence, King Robert granted a charter to the abbey, confirming the endowments of Earl Duncan; and in 1329-30, gifts from the royal purse, for the repair of the monastery, are noted in the Exchequer Rolls. The king was lavish in benefactions to the abbey. In 1324 he presented it with lands, and, as a mark of special favour, he erected the domains of the abbey into a barony. Shortly after the accession of David II. the abbot received the king’s penny for three years (amounting to £100, 1s. 10d.) to assist him in the repair of the buildings.

Under the Stewart kings Crosraguel still continued to receive the royal favour. In 1374 Robert II. confirmed the Crown charters of Robert I.; and in 1404 the great Crosraguel charter was granted by Robert {404}III. confirming all the abbey lands and property to be held for ever in free regality. By this charter the abbot was raised into the position of an absolute sovereign over all the abbey possessions, which comprised nearly the whole of the southern division of Ayrshire. The abbey continued to occupy a high position during the fifteenth century. The abbot was in favour at Court, and was employed on special missions and diplomatic services.

In 1460 the Abbot Colin, a man of some eminence, was elected. He devoted much care to the church and buildings, which he found in a dilapidated condition, and is believed to have built the existing chapter house. He died in 1491.

Abbot David obtained a confirmation of the special rights of the abbey from the Archbishop of Glasgow, and, in 1515, procured a special dispensation from inspection by the Archbishop of St. Andrews, who was delegated by the Pope to visit every monastery in Scotland, and to punish the “excess and enormity of the brethren dwelling therein.”

During the forty years prior to the Reformation the abbey enjoyed the protection of the Earl of Carrick, two eminent members of the family being about that time abbots in succession to each other. At this period the right of appointment to vacant benefices was gradually passing into the hands of the Crown, and by 1550 that change was completed.

In those troublous times the Church was felt to be in danger, and Abbot William Kennedy, who had acted as guardian to the young Earl Cassilis, who was then abroad, wrote to him to return to Scotland to look after the interests of the abbey. At the same time the Archbishop of Glasgow sent all his possessions to Crosraguel, as to a place of safety. These consisted of embroidered vestments, gold and silver plate, jewels, and a library of books of great value.

Abbot William was succeeded by his nephew, Quintin Kennedy (1547-64), an ardent champion of the Church, whose contest with Knox at Maybole in 1562 is well known. It is thought that he was the first abbot to occupy the abbots’ tower, a fortified pele which stands at the south-east corner of the grounds. Gilbert M‘Brayar, one of the monks, is said to have made many “sumptuous additions” to the monastery. These were probably domestic structures in the cloister, whose ruins are still traceable.

In 1561 an Act was passed by the Privy Council suppressing “Idolatori and all monumentis thairof,” and Arran, Glencairn, and Argyle were despatched to the West to carry the Act into execution. Amongst the other demolitions executed by them was the casting down of part of Crosraguel.

Ten years before the Reformation leases of church lands were frequently granted to nobles and other powerful individuals who were able to protect them. Thus, in 1564, the whole benefice of Crosraguel was{405} leased to the Earl of Cassillis for 700 marks (£466, 13s. 4d.) Under his protection the monks continued to occupy the monastery till 1592, probably later than any other abbey in Scotland.

In 1570 occurred the famous “roasting of the abbot.” The Earl of Cassillis had resolved to get the whole property of the abbey into his hands, and endeavoured, by torturing Allan Stewart, the abbot, to force him to surrender the titles of the lands of the abbey, and he thus succeeded, in consideration of a large sum, in becoming sole proprietor of the regality. The abbot survived, but was maimed for life. He disposed of every shred of the monastic property, and died in 1587. The annexation to the Crown took place the same year. The possessions had been gradually disposed of by Queen Mary and her son to numerous retainers. George Buchanan received a pension out of the revenues, and King James intended to restore the abbey as a residence for his son Henry.

In 1617 the whole benefice was annexed to the Bishopric of Dunblane, in order to provide a suitable support for the bishop. On the overthrow of Episcopacy, in 1689, the revenues were annexed to the Crown; and now the sole relic of the great regality of Crosraguel is the small plot of ground enclosing the ruins.

The abbey buildings (Fig. 813) have been of considerable extent, and still comprise, besides the remains of the church and cloisters, with the usual ecclesiastical buildings surrounding them, an outer court to the south-west, with a picturesque gatehouse, pigeon-house, and other domestic structures. There was also an eastern courtyard, which contained the abbot’s hall, and the adjoining tower or keep, the infirmary, &c. The whole precincts were enclosed with a high wall, which included an extensive garden. The small burn which flows along the south side is believed to have fed fish-ponds in the neighbourhood. The church (Fig. 813) is a simple oblong structure, consisting of choir and nave, without aisles and without transepts. It would appear, however, from excavations carried out by the Ayrshire and Galloway Archæological Association, that the original church of the thirteenth century contained a north and south transept, some traces of the foundations of which were disclosed. A few other relics of this earlier church are observable in the base of the western part of the nave, in traces of the jambs of the western doorway and the jambs of the north doorway of the nave; but the remainder of the church has been entirely rebuilt, chiefly on the old foundations.

It is thought by Mr. Morris, who illustrates and describes the abbey in the publication of the above Association, that part of the older building is traceable in the wall between the choir and the sacristy, where vaulting shafts exist on the sacristy side in such a position as not to be available in the present structure (Fig. 814). From this fact he forms the deduction that these shafts and the wall they are attached to are part of the original church. He is further of opinion that the part of the ancient church{406}

[Image unavailable.]

Fig. 813.—Crosraguel Abbey. Plan.

{407}

[Image unavailable.]

Fig. 814.—Crosraguel Abbey. Sacristy, looking East.

which he supposes has survived at this point formed the model on which the restored building was designed. From the character of the design,{408}

[Image unavailable.]

Fig. 815.—Crosraguel Abbey. Interior of Choir.

{409}

this seems very doubtful. The three shafts referred to doubtless indicate a change in the design at the date of the restoration in the fifteenth century. The choir appears to have been erected, and a chapter house contemplated (if not actually carried out) immediately to the south of it, in the position formerly occupied by the south transept. The three shafts were apparently erected at that time (say before 1450). The bases of the shafts correspond in design with the bases of the choir, and are clearly fifteenth century work. The walls of the chapter house (afterwards changed into the sacristy) were evidently erected at this time, as the usual stone seat of the chapter house still runs round two of the sides. At a later date (towards the end of the fifteenth century) a new range of buildings was erected on the east side of the cloister. These consisted of a new chapter house, while that first erected was converted into the sacristy. The new range was of less width than the chapter house originally contemplated, and, therefore, new vaulting shafts, spaced so as to suit the vaulting of the new width, were introduced; and three of the old vaulting shafts were allowed to remain, although two of them were no longer of use.

The architecture of the interior of the choir (Fig. 815) is peculiar, and clearly indicates a structure of the fifteenth century. The three-sided eastern apse is characteristic of the fifteenth century, and is among the earliest examples of that form then introduced into Scotland. Crosraguel obtained its great charter in 1404, and was, no doubt, then in a very flourishing condition; and it seems likely that the church was rebuilt soon after that period. The style of the architecture corresponds with other buildings of that date in Scotland. The windows, which have been filled with tracery (now, unfortunately, all destroyed), show, in their remaining jambs, shafts, and arch mouldings (especially in the apse), a character resembling Scottish decorated work. The triple wall shafts which divide the bays are carried down to decorated bases in the sanctuary only, the others being stopped on a corbel at the level of the central string course (see Fig. 815). The sedilia (Fig. 816) and piscina of the choir (see Fig. 815) are also beautiful specimens of the decorated style. The buttresses of the choir and apse (Fig. 817) are simple, and of an early type. The nave (Fig. 818) has windows on the north side only. Here, as already observed, a few traces of the original church are found in the early forms of the base mouldings and the shafts of the north doorway. The arch supported by these shafts, and forming the upper part of the doorway, is of very inferior design, and is evidently a very late restoration. The shafts are sloped off at top, so as to fit a straight impost. The buttresses also show relics of older work. One of the nave windows is filled with tracery; but it is of peculiar design, having been constructed in connection with the erection of a monument to Egidia Blair, Lady Row, a benefactress of the abbey, who died in 1530. The{410} engraved recumbent stone over her grave, bearing her arms and name, still exists; but scarcely a trace of the monument survives.

[Image unavailable.]

Fig. 816.—Crosraguel Abbey. Sedilia.

The nave is divided from the choir by a wall, which has been erected in the sixteenth century (the upper part is seen in Fig. 819), probably when the monks required protection, or owing to their number having become diminished, when so large a church was unnecessary. This central wall partly blocks up one of the nave windows, thus showing that it was an afterthought. It seems, however, to have been substituted for an older wall, which may have contained an arch between the nave and{411}

[Image unavailable.]

Fig. 817.—Crosraguel Abbey. Choir and Apse, from South-East.

{412}

[Image unavailable.]

Fig. 818.—Crosraguel Abbey. View from North-East.

{413}

[Image unavailable.]

Fig. 819.—Crosraguel Abbey. Cloister, looking North-East.

{414}

choir. The nave, thus separated from the choir, was known as St. Mary’s or the Virgin’s Aisle. The wall contained a wheel staircase, and is crowned with a good double belfry, surmounted by a well-carved cross (Fig. 820), containing hearts in the centre, and having each arm cut into the form of a cross. This may possibly be in imitation of the crossleted crosses of the Kennedy arms. The pointed doorway from the nave to the choir is of good, simple design, and has been defended with a strong sliding bar, the slot in the wall for which still exists.

[Image unavailable.]

Fig. 820.

Crosraguel
Abbey.

Cross on Belfry.

The sacristy entered from the south side of the choir by a door having a semi-elliptic arch, and mouldings and bases corresponding with those of the choir (see Fig. 815). This doorway also led to a wheel stair, which conducted to the scriptorium and library on the upper floor, and, through them, to the dormitory. The ancient south transept was wider than the present sacristy which occupies its site, as was disclosed by the excavations above mentioned. The sacristy and the chapter house adjoining are the best preserved parts of the edifice. They are both elegantly vaulted, and lighted with windows, the tracery of which is partly preserved (Fig. 821). The corbels (Fig. 822) which carry the ribs of the sacristy vaults are carved in a quaint and rather debased style, and point to a late date. The vaulting of the sacristy (see Fig. 814) is peculiar, the ribs being arranged in the sexpartite form. The apartment is considerably longer than it is wide; and the usual method of vaulting such an apartment would be to divide it into two bays, each bay having the usual cross ribs; but here the whole is vaulted in one bay, having six ribs. This arrangement makes the axes of the side vaults oblique, and produces the effect of twisting in the four side spaces of the vaults towards the centre. The vaulting here, being wider than that of the chapter house, rises higher, and thus rendered the floor of the scriptorium above it higher than that of the library over the chapter house, and necessitated some steps in the passages from the dormitory to the church. The opening to the sacristy from the choir is recent, this position having formerly been occupied by an altar platform, believed to have been erected in honour of Robert III. in 1404. The position of the high altar is still distinctly marked, being placed against a detached wall carried across the apse, and provided with a small door for access to the space behind. The three steps leading up to the east end are also discoverable, and each step is beaded on the edge (see Fig. 815). A plain doorway, with a drop arch, leads from the south-west angle of the choir to the east walk of the cloister (see Fig. 819). Only the foundations of the outer wall of the cloister walks are now traceable. This, no doubt, carried pillars and arches (or wooden posts), on which the wooden roof of the cloister walks rested. There may have been stone piers{415}

[Image unavailable.]

Fig. 821.—Crosraguel Abbey. East Side of Chapter House and Sacristy.

{416}

[Image unavailable.]

Fig. 822.—Crosraguel Abbey. Corbels in Sacristy.

{417}

at the angles and at intervals; the springing of a diagonal arch survives in the north-west angle. A well exists in the centre of the cloister garth, with stone steps leading down to it. The chapter house enters by a doorway only, without side windows, from the east alley (see Fig. 819). The jambs and pointed arch are moulded, but there are no caps. The chapter house is square, and has a central pillar, which carries fine vaulting (Fig. 823). The vaulting is divided into four square bays, each with cross ribs, resting on the central pillar and on responds against the walls, which have bases set on the stone bench. The bosses have been carved with coats of arms, now obliterated. One of them has a mitre; another shows indications of an apsidal building. The abbot’s seat occupies the centre of the east side, between the two windows; and a stone bench is carried round the walls.

The upper floor, which still survives, above the chapter house and sacristy (see Figs. 819 and 820) contained the scriptorium and library, the latter having had a good mullioned window, overlooking the cloister, now nearly destroyed. Following the ruins which continue the east side of the cloister southwards, we come first to a vaulted chamber, which may have been a parlour; then to the slype leading to the eastern garth, which has a stone bench on each side, and is covered with a segmental barrel vault. Beyond this are vaulted ruins of an indeterminate character. On the south side of the cloister garth are the refectory and part of the buttery, with a hatch which led from the one to the other. Between these apartments a wide scale staircase formed the day access to the dormitories above. This range of buildings is evidently of late date, and may have been the work of Abbot Gilbert M‘Brayar, above referred to. The refectory has been covered with a barrel vault, and had a fireplace in the north wall. The windows in the south wall are low, horizontal openings. The west side of the cloister is believed to have contained a large common room, but it is now much ruined; the pointed doorway at the north end, however, still remains.

The eastern courtyard is triangular in form. The ruin on the east side is probably a fragment of the infirmary. On the south side is a range of ruined vaults, over which was probably the abbot’s hall. At the south-east angle stand the ruins of what was the abbot’s keep, or place of strength, erected apparently in the sixteenth century. It is of the ordinary form of the lay keeps of the period, having thick walls, with chambers formed in their thickness and a corbelled parapet for defence. It no doubt communicated with the abbot’s hall adjoining. It is built over the stream which bounds the convent on the south, and passes under the lower story, where it had an archway, grated at each end. The principal floor contains a good fireplace, with ambry adjoining, and a small stair leading to the water below. The upper floors contained the usual bedrooms, one of which still shows the remains of a carved fireplace. The{418}

[Image unavailable.]

Fig. 823.—Crosraguel Abbey. Chapter House, looking North-West.

{419}

north and east walls are demolished. The south and west walls are quite plain. Some of the corbels of the parapet, however, still survive.

The south-west courtyard is of considerable extent, and contained a number of domestic offices, such as bakehouse, brewhouse, &c. A picturesque gatehouse gives entrance to the monastery through this courtyard, and strangers’ apartments are provided in the upper floors.[155] The pigeon house is also a well preserved example of that common class of structure.

The ruins seem for a long period to have formed a convenient quarry for the district, but they were put in good order about fifty years ago by the Kilkerran family, and are now well preserved and cared for.

ST. GILES’ COLLEGIATE CHURCH,[156] Edinburgh.

The Church of St. Giles occupies the site of the original parish church of Edinburgh. It stands in a conspicuous situation in the centre of the Old Town, on a comparatively level piece of ground (probably an ancient sea margin), which occurs in the general slope extending from the Castle to Holyrood. In the ninth century, when Lothian formed part of Northumbria, the Church of Edinburgh is mentioned as belonging to the diocese of Lindisfarne.

About 1120 a new church was erected by Alexander I., of which some fragments remained till the end of last century. This church is frequently referred to in subsequent reigns. Notice of it occurs under Alexander II., in the early part of the thirteenth century; in 1319, it is mentioned in an Act of Robert I.; and in 1359, under David II., a gift of lands is confirmed to it.

The earliest of these notices doubtless referred to the Norman church of the twelfth century, of which not a fragment now remains in situ; but some detached Norman carved stones, such as caps, have been found in excavations in the interior. The edifice appears to have been rebuilt about the time of David II.

In the constant wars with England Edinburgh naturally suffered much. It was damaged by Edward II. in 1322, when Holyrood Abbey was also spoiled. Under Edward III. the country was laid waste in 1335, when the capital was again injured. This raid, having occurred in February, was afterwards known as the “burnt Candlemas,” from the{420} conflagrations raised during its continuance. A reconstruction of the edifice was probably required after these destructive harryings, and this appears to have been carried out during the fourteenth century. But shortly afterwards a most complete devastation of the town and all its buildings was occasioned by Richard II. during his invasion in 1385. He then occupied Edinburgh for five days, and, on his departure, laid the town and the parish church in ashes.

A great effort was made by the citizens on this occasion, along with assistance from the Crown, to repair the disaster to their church. From this period the history of the structure as it now exists may be said to date.

We have no account of the condition of the edifice immediately before its destruction in 1385, but it must (as above mentioned) have been to a large extent rebuilt before that time.

It is said that during the restoration which took place in 1870-80,[157] traces of fire were observed on the pillars of the choir, and it is inferred that these pillars must have existed before the burning caused by Richard II. This view is confirmed by the fact that, after 1387, when, doubtless, the town authorities were doing all they could to complete the restoration of St. Giles’, they entered into a contract with certain masons to erect five chapels along the south side of the nave, having pillars and vaulted roofs, covered with dressed stone slabs[158] These chapels still exist, and the wall rib of the vaulting is yet visible on the south side of the arcade, next the south aisle; but the vault and stone roof have been removed, and a plaster ceiling of imitation vaulting substituted. The above contract indicates that the walls of the nave then existed.

We must, therefore, assume that the church had been rebuilt previous to the destruction of 1385, and that the above contract was an addition to the building connected with its restoration two years after the fire. Although, doubtless, much injured by the conflagration, the walls and pillars of the church seem to have escaped total destruction. The style of the architecture would lead to the same view; the octagonal pillars of the choir, with their moulded caps, being most probably of the fourteenth century.

The church, as restored and added to after 1387, would then consist (Fig. 824)[159] of a choir of four bays, with side aisles; a nave of five bays, also with side aisles; a central crossing, north and south transepts, and the five chapels just added south of the nave. A large open porch, to the south of the central one of those chapels, was also erected along with them. It had a finely groined vault in the roof, and over it was a small chamber,{421}

[Image unavailable.]

Fig. 824.—St. Giles’ Collegiate Church. Plan.

{422}

lighted by a picturesque oriel window, supported on a corbel, carved with an angel, displaying the city arms (Fig. 825).[160] The upper story, which is supposed to have been the revestry, was reached by a bold turret stair on the west side of the south porch.

The whole of the main divisions of the structure were vaulted; but the vault of the central aisles was low, being little higher than that of the side aisles. The massive octagonal piers of the crossing appear to have been raised about this period. The traces of the caps, which were cut off, are visible at a lower level (Fig. 826), and the few courses of ashlar work above them, with the new caps at the heightened level, may be traced as additions (Fig. 827). The vaulting of the crossing, with its central opening, was, doubtless, executed during the restoration of about 1400.

The ancient Norman porch, which formed the north entrance to the nave, was the only part of the twelfth century structure then preserved, and a small chamber was erected above it, with a narrow turnpike stair leading to it. The restoration seems to have been in progress for a considerable length of time. Donations from the Crown towards it continued to be given till 1413. It was probably completed about 1416.

[Image unavailable.]

Fig. 825.—St. Giles’ Collegiate Church.

Oriel originally over South Porch.

Shortly after the erection of the five chapels on the south side of the nave, another chapel was built on the north side of the nave, to the{423}

[Image unavailable.]

Fig. 826.—St. Giles’ Collegiate Church. South Piers of Crossing.

west of the old Norman doorway. This chapel, called the Albany aisle (Fig. 828), is 32 feet long by 12 feet in width. It opens from the nave{424}

[Image unavailable.]

Fig. 827.—St. Giles’ Collegiate Church. North Piers of Crossing.

{425}

[Image unavailable.]

Fig 828.—St. Giles’ Collegiate Church. The Albany Aisle.

with two arches, which rest on a central pillar, and the roof is covered with groined vaulting in two bays. The central pillar and the two{426} responds are moulded, and have caps and bases, all in the same style as those of the south chapels. The cap of the central pillar contains two shields, the arms on which not only give a clue to the date of the chapel, but also recall a dark passage in Scottish history. One of these shields (that on the south) bears the arms of Robert, Duke of Albany, the second son of Robert II. (the Scottish lion quartered with the fesse chequé for Stewart); the other, or north shield, bears the well-known Douglas arms, being those of Archibald, Fourth Earl of Douglas. These two noblemen were both implicated in the death of David, Duke of Rothesay, who, in 1401, was starved to death at Falkland Palace; and it is believed that this chapel was erected by them as a good work in expiation of their horrid crime, or, at least, in order to propitiate the clergy. The architecture of the chapel is light and elegant, and the vaulting is enriched with bosses, one of which contains the monogram of the Blessed Virgin.

Two other chapels were added on the north side of the nave, to the east of the Norman doorway, probably about this period. The eastern of these chapels was dedicated to St. Eloi.

The vaulting of the north aisle of the nave was almost necessarily rebuilt at the time when the north chapels were erected.

About half a century after the above restoration, great extensions and improvements were undertaken. It is believed, from the internal evidence of the architecture, that the extensions of St. Giles’ were carried out under the auspices of Queen Mary of Gueldres, by whom also Trinity College Church, Edinburgh, was founded in 1462.

During the fifteenth century St. Giles’ received many endowments, chiefly from merchants of Edinburgh, and increased considerably in wealth, so that funds would thus be forthcoming for the new work. Money was also contributed by the Town Council, who raised it by fines and otherwise.

The extensions undertaken at this time consisted of (1) the lengthening of the choir by one bay; (2) the heightening of the central aisle of the choir and vaulting it anew, together with the introduction of a new clerestory; (3) the lengthening of the transepts.

It is thus apparent that the edifice was to a great extent remodelled—the north and south aisles of the choir, and the central and recently renewed side aisles and chapels of the nave, being the only portions left untouched. The south aisle of the nave had (as above mentioned) been remodelled some fifty years before, when the five chapels were added to the south of it. The south wall of the south aisle had then been removed, and its place supplied by the pillars which connected it with the five added chapels (Fig. 829); while at the same time both aisle and chapels had been vaulted with finely groined vaults, having numerous moulded ribs springing from corbels inserted above the capitals.

1. The first of the alterations of about 1460, above mentioned, is the lengthening of the choir by one bay. The original east wall, no doubt,{427}

[Image unavailable.]

Fig. 829.—St. Giles’ Collegiate Church. South Aisle of Nave and South Chapels.

stood where the two eastern free pillars now stand; and, the wall having to be removed, the two new pillars (Fig. 830) were substituted for it. These pillars and the two responds against the east wall tell a very remark-{428}able

[Image unavailable.]

Fig. 830.—St. Giles’ Collegiate Church. Choir.

{429}

[Image unavailable.]

Fig. 831.—St. Giles’ Collegiate Church. The East Pillar, South Side of Choir.

and interesting story, and prove beyond doubt the date of the work. Each capital contains four shields (Fig. 831), which are explained by Dr. Laing in the following manner:—The north or, as it is commonly called, the king’s pillar contains in its sculptured cap a series of heraldic emblems of special significance. The shield facing the east contains the royal arms (Fig. 832), with a label of three points, which, no doubt, denotes the infant heir to the throne, James III. The shield facing the west is also carved with the royal lion rampant, with its double tressure; but the top of the shield is unfinished. This is probably the arms of James II. The shield{430}

[Image unavailable.]

Fig. 832.—St. Giles’ Collegiate Church.
Shield bearing the Royal Arms.

[Image unavailable.]

Fig. 833.—St. Giles’ Collegiate Church.
Shield bearing Arms of Bishop Kennedy.

 

Fig. 834.—St. Giles’ Collegiate Church.
Shield bearing Arms of Nicholas de Otterburn.

facing the north contains the arms of Mary of Gueldres, impaled with the royal arms. This also is unfinished on the top. The shield facing the south has the three fleurs-de-lys for France, the old ally of Scotland. These shields clearly connect the pillar with Mary of Gueldres and her husband, James II., and their son, James III. The marriage of the king and queen took place in 1449, and James III. was born in 1453. His father was killed at the siege of Roxburgh Castle in 1460, and Mary of Gueldres died in 1463. The work was, therefore, probably executed between 1453 and 1463. The unfinished condition of the west and north shields may, perhaps, point to a date shortly after the king’s death and before that of Mary of Gueldres. The heraldic devices on the other pillars and responds are those of distinguished men of the time. On the pillar on the south side of the choir, the shield facing the east bears three unicorns’ heads (see Fig. 831), the arms of William Preston of Gorton, who bestowed (as we shall see) a great gift on the church. The shield on the west bears the arms of Bishop Kennedy (Fig. 833), a chevron between three crosses crossleted, surrounded by a double tressure. This prelate, who{431}

[Image unavailable.]

Fig. 835.—St. Giles’ Collegiate Church. East Pillar of Choir.

{432}

[Image unavailable.]

Fig. 836.—St. Giles’ Collegiate Church. The Crossing, from the Nave.

was a grandson of Robert III., was Bishop of St. Andrews, and one of the most eminent men of the period. The shield on the north (Fig. 834) bears the arms of Nicholas de Otterburn, who was Vicar of Edin{433}burgh in 1455, and who had been sent to France in 1448 in connection with the selection of Mary of Gueldres as the bride of James II. The south shield bears a castle, being the emblem of the city (see Fig. 831).

The north respond contains the arms (three cranes gorged) of Thomas Cranstoun, Chief Magistrate of Edinburgh in 1439 and also in 1454. As formerly, the good town which he represented would aid in the restoration.

The south respond bears the arms of Napier of Merchiston, Provost of Edinburgh, 1457—viz., a saltier engrailed, cantoned with four roses.

These new pillars and responds (Fig. 835) differ entirely from the older plain octagonal ones. They are of a form which became very common in Scotland after this time. The pillars are moulded, rather than clustered, and contain a variety of mouldings instead of shafts. These rise from a base which is moulded and ornamented with carvings, and is set on one or two high plinths. The pillar is crowned with a richly-moulded capital, the lower or bed mould being carved with cherubs’ heads, fitted into the re-entering angles of the pier, while the upper mouldings run in straight lines, and include several of the members of the piers in one stretch.

The mouldings of the main arches, which spring from these piers, are also richer than the plain splays of the older arches.

2. The heightening of the choir and the introduction of a new clerestory were also carried out shortly after the middle of the fifteenth century. The height of the former vault of the choir is shown by the vault of the crossing (Fig. 836), which it doubtless resembled, and which was not altered at this time. The former position of the vault of the choir is also indicated by portions of the groins, which have only been partly cut away, and which are still visible, springing directly from the caps of the choir piers at the previous low level (see Fig. 830). The ancient vault of the choir, springing, as it did, directly from the caps of the main piers, would only afford room under the wall rib for small clerestory windows. Traces of several similar small windows may still be observed over the main arcade on the south side of the nave, where they have been built up at some period—perhaps during the alterations in 1829; but the rybats and arches are still traceable. The outline of the old roof may also be observed against the east and west walls of the tower (see Fig. 836), the raglet and a stepped string course above it being yet preserved, and being specially apparent on the east side next the choir.

The condition of the walls where they have been heightened for the clerestory also indicates that some of the old vaulting has been cut off, and new masonry substituted. The clerestory is carried up so as to admit of good windows, each with arched head, and divided into two lights by a central mullion (see Fig. 830). The traceried heads have drop arches on the inside. The new vaulting is of simple, but elegant, design. The ribs{434} of the vault are moulded, and are provided, besides the main cross ribs, with ridge ribs and intermediate ribs; and the junctions are all ornamented with large and finely-carved bosses, of which some examples are given (Figs. 837 and 838). The curved panels of the vaults are arranged so as to be either parallel or at right angles to the side walls, so that the joints of the stones composing the different vaulting surfaces are all set at right angles to one another, being the plan usually adopted in England, but not in France. The ribs of the vaults spring from the carved caps (Fig. 839) of short and light vaulting shafts, inserted in the side walls and resting on corbels, considerably above the caps of the main piers (see Fig. 830). The insertion of these shafts in the old masonry is plainly visible.

[Image unavailable.]

Fig. 837.—St. Giles’ Collegiate Church. Bosses in Choir.

The beauty of the vaulting of the central aisle is particularly noticeable when contrasted with that of the side aisles. The eastern or extended bay of the choir aisles, being new, has been vaulted with{435} groined vaulting in the same manner as the central aisle, but the old portions of the aisles are vaulted with what nearly approaches to a domical form (Fig. 840). Each bay has the usual transverse and diagonal ribs, but the surfaces of the vault are domed up above the wall rib at the side walls, so that the height to which the windows may be carried is greatly reduced from what it might be with groined vaults, similar to those of the central aisle. The difference of this style of vaulting from the true groined vaulting used in the eastern compartment is most marked, and its effect on the height of the windows is distinctly observable in the different divisions of the aisles.

[Image unavailable.]

Fig. 838.—St. Giles’ Collegiate Church.
Boss in Choir.

 

Fig. 839.—St. Giles’ Collegiate Church.
Cap of Vaulting Shaft in Choir.

The vaulting of the nave remained at this time unaltered at its comparatively low level, and over the vault of the central aisle there existed an attic story, which formed the house of the bell-ringer, and contained several rooms. The vaulting of the aisles of the nave (as above mentioned) had already been altered, and several chapels had been extended northwards from the north aisle. These projected beyond the old Norman porch, and thus placed it in a recess. The central crossing, with its vault, was left unaltered, and still remains in the same position, with its vaulting at the level it was raised to about 1400. It thus forms a{436} break between the nave and choir, in both of which the vault has been raised (see Fig. 836).

[Image unavailable.]

Fig. 840.—St. Giles’ Collegiate Church. South Aisle of Choir.

3. The transepts were extended, their original length being marked by breaks in the roof, where the vaulting terminates. The extension is{437}

[Image unavailable.]

Fig. 841.—St. Giles’ Collegiate Church. Junction of Vault of South Transept.

{438}

specially observable in the vaulting, the vaults of the transept having to be carried on arches which rest on corbels, inserted in the arches of the aisles, in an awkward manner (see Fig. 829 and Fig. 841). The east window of the north transept, which had been long obscured by a structure built against it, was recently discovered and opened up. It is of good, but late, decorated work (Fig. 842), and probably gives an idea of the mullions which, no doubt, formerly existed in the windows of the nave and choir, but which have been removed and traceries of 1829 substituted. The details of this window, as shown in Fig. 842, are the only original window details now remaining in the church. The window is of three lights, with an arched transom ornamented with battlements, like some windows at Melrose. In the interior very elaborate niches were found, with ornamental canopies, which have been unfortunately much destroyed. Over the windows, on the outside, there were in position two corbels, supporting the wall-head parapet. As these would have been concealed by the vaulting of the Chambers aisle (which was recently inserted), they were built into the piers at the arch springers of the entrance to that aisle. Amongst the rubbish cleared out in opening up this window, a rude Norman capital was found built into the wall.

The north transept was considerably widened, in 1829, by setting back the west wall and wheel stair. A portion of the old arcading is still visible at the break on the west side.

It has been mentioned above that Sir William Preston of Gorton was a benefactor of St. Giles’. In 1454, after much trouble and expense abroad, and aided by “a high and mighty prince, the King of France, and many other Lords of France,” he succeeded in obtaining an arm bone of the Patron Saint, which he generously bequeathed to the church. The Town Council were so gratified with the gift that they resolved to add an aisle to the choir in commemoration of the event, and to place therein a tablet of brass narrating the bounty of Sir William. This aisle was to be built within six or seven years, “furth frae our Lady Isle where the said William lyis.” From this it appears that the south aisle of the nave was known as the lady chapel, and that Sir William had been buried there. The above resolution was carried into effect, and a new aisle, called the Preston Aisle (see Fig. 824), was constructed to the south of the lady chapel. In carrying this out the south wall opposite the three westmost bays of the choir was removed, and three arches carried on two piers substituted (Fig. 843). These piers and arches correspond with the work of the same period at the east end of the choir. The vaulting is also of a similar light and elegant character, and has similar intermediate ribs or tiercerons and ridge ribs. The vaulting is raised considerably above the arches next the aisle, and is carried on caps, which have short shafts resting on corbels. One of these contains a shield bearing the three unicorns’ heads of the Prestons.{439}

[Image unavailable.]

Section of Mouldings of Window Jamb and Niche.

Interior.

Exterior.

Fig. 842.—St. Giles’ Collegiate Church. East Window of North Transept.

{440}

[Image unavailable.]

Fig. 843.—St. Giles’ Collegiate Church. Preston Aisle.

The aisle had one large window in the east end and three windows to the south. This structure extends into the choir the great width of the{441} four aisles of the church previously formed in the nave, thus adding greatly both to the superficial area and to the appearance of spaciousness and grandeur of the edifice.

[Image unavailable.]

Fig. 844.—St. Giles’ Collegiate Church. Monument in Lauder’s Aisle.

The church, in its full length and breadth, was now complete in all its parts, as it still remains internally, with a few exceptions, till the present day. It measures internally 196 feet from east to west by 125 feet from north to south across the transepts. The choir is 68 feet in width over the north and south aisles, and the Preston aisle is 45 feet 6 inches in length and 27 feet in width. The nave, including the five south chapels, is 81 feet in length by 91 feet in width within the walls.

Several additional chapels were afterwards thrown out. In 1513 an aisle of two arches was formed by Alexander Lauder, of Blyth, Provost of the city; and in 1518 the altar of the Holy Blood was erected in this aisle, which lay on the south of the nave, and to the east of the south{442} porch, immediately adjoining the south transept. It was 29 feet long by 14 feet wide, and opened into the south chapels of the nave with two arches, and had two windows to the south. Between these windows, and recessed in the wall, has now been erected what was, doubtless, a handsome monument (Fig. 844), containing a recumbent statue, or was, as some suppose, part of the canopy of the altar.

During the alterations of 1829 one half of this chapel was obliterated; but the monument is still preserved, and its details are illustrated in Figs. 845 and 846.

[Image unavailable.]

Fig. 845.—St. Giles’ Collegiate Church. Details of Monument in Lauder’s Aisle.

In 1466 the Church of St. Giles was erected, by charter of James III., into a collegiate establishment, but is not called collegiate till 1475. The chapter consisted of a provost, curate, sixteen prebendaries, a minister of the choir, four choristers, a sacristan, and a beadle. Besides these, there were chaplains ministering at thirty-six altars in the church. The number of clergy connected with the establishment probably reached about one hundred, who were supported by its endowments. The perpetual vicar became the first provost, and the second provost was Gavin Douglas, whose translation of Virgil’s Æneid into the Scottish language was the first version of a Latin classic rendered into any British tongue.

The erection of St. Giles’ into a collegiate establishment was chiefly effected through the exertions of the Town Council, who were desirous{443} of raising the status of their parish church. A great impetus was thus given to the contributions of the faithful, and money for the “new work” was also raised by fines.

After this period a few additions still continued to be made to the fabric. A small chapel, called the Chepman aisle, was thrown out from the Preston aisle close to the south transept. It measures about 14 feet long by 12 feet wide, and opens from the Preston aisle with a pointed arch (Fig. 847). The ceiling is formed with a pointed barrel vault, ornamented with cross ribs, which spring from large carved corbels. This chapel was founded and dedicated to St. John the Evangelist by Walter Chepman, called the Scottish Caxton, from his having, in 1507, introduced the art of printing into Scotland. St. John’s emblem of the eagle (Fig. 848) is carved on one of the corbels of the roof. Chepman’s enterprise was greatly encouraged by James IV. and his Queen Margaret; and, in thankfulness for the royal patronage, this chapel was dedicated by Chepman, on 21st August 1513, to the welfare of the souls of the king and queen, and their offspring. This happened within a month of James’s death at Flodden, on 9th September 1513. Chepman himself was buried in this aisle in 1532. The south transept seems to have been extended southwards when the two chapels last mentioned were erected.

[Image unavailable.]

Fig. 846.—St. Giles’ Collegiate Church. Mouldings of Monument.

The only part of the interior of the structure still unmentioned is a chapel to the east of the north transept. This building was at one time used by the Town Clerk as his office, and contained several stories and a staircase. It is said to have been erected after the Reformation, but it was altered, having large windows inserted, and was connected with the church as a vestry in 1829. It has recently been set apart to contain the monument of Dr. Wm. Chambers, to whose liberality the city is indebted for the complete renovation of the ancient cathedral.

In 1829 the church was entirely renewed as regards the exterior, when two chapels to the south of those built in 1389 and the south porch were{444}

[Image unavailable.]

Fig. 847.—St. Giles’ Collegiate Church. The Chepman Aisle, from the Preston Aisle.

{445}

removed. The round arched doorway of the south porch (Fig. 849) was again erected between the north pillars of the crossing as the entrance to the central division of the church. It has now been transferred to the entrance doorway to the royal pew at the east end of the Preston aisle. Fig. 850 shows the carved ornaments of this doorway, which are all in the decorated style of its period.

[Image unavailable.]

Fig. 848.—St. Giles’ Collegiate Church. Chepman Aisle: Corbel of Vault.

The only portions of the exterior which escaped renewal were the tower and steeple. Fortunately the well-known crown of St Giles’ (Fig. 851), which forms such a characteristic object in almost every view of Edinburgh, was not interfered with in 1829. The date of its erection is unknown, but to judge from its style it was probably built after the great alterations in the interior were carried out. This crown termination seems to have been a favourite feature with Scottish architects. The crown of the tower of King’s College, Aberdeen, was built after 1505, and similar crowns formerly existed on the towers of Linlithgow and Haddington churches. The crown of St. Nicholas’ Church, Newcastle, which is probably the only other steeple of this kind in Great Britain, is also of a late date. There is a crown of the same description on the tower of the Town Hall at Oudenarde, in Belgium,{446}

[Image unavailable.]

Fig. 849.—St. Giles’ Collegiate Church. Doorway of South Porch and Section of Mouldings.

which is also of late Gothic work, and there can be no hesitation in assigning a late date (probably about 1500) to that of St Giles’. It is a very picturesque and striking design, and accords well with its surroundings{447}

[Image unavailable.]

Fig. 850.—St. Giles’ Collegiate Church. Details of Doorway to Royal Pew.

{448}

[Image unavailable.]

Fig. 851.—St. Giles’ Collegiate Church. Tower and Crown.

{449}

in the Old Town. Some of the above crown steeples have an arch thrown from each angle to a central pinnacle, an arrangement which renders them rather thin and empty looking; but that of St. Giles’ has, in addition to the arches from the angles, another arch cast from the centre of each side to the centre pinnacle (Figs. 852 and 853). This produces an octagonal appearance, which, together with the numerous crocketed pinnacles with which the arches are ornamented, gives a richness and fullness of effect which is wanting in some of the other steeples of this description (Fig. 854). The steeple of St. Giles’ was partly rebuilt in 1648.

Towards the beginning of the sixteenth century, several of the guilds had chapels assigned to them, for which they contributed to the church funds. St. Eloi’s Chapel was given to the hammermen, and the “blue blanket,” the flag to which the trades rallied, was kept there. Other chapels and altars were set apart for the other corporations and trades, and maintained by them. Many individuals famous in Scottish history were buried in St. Giles’. Amongst these was Napier, the inventor of logarithms, who died in 1617. His tomb is now inserted in the exterior of the north wall of the choir, having been removed there, in 1829, from the south side of the church. There still exist the remains of an arched tomb recessed in the interior of the north wall of the choir, nearly opposite the above, but no clue can be found to the name of the person buried there. The Regent Murray, who was assassinated at Linlithgow in 1569, was buried in the south aisle. His monument was destroyed, but the brass plate containing the inscription written in his honour by George Buchanan was fortunately rescued, and has again been inserted in a new monument erected in the Murray aisle (Fig. 855). The scattered members of the body of the great Montrose were collected and buried in the Chepman aisle in the south part of St. Giles’ in 1661, but all trace of his remains has now been lost, and no monument till recently marked his grave.

The Norman doorway on the north side of the church, which had been carefully preserved for upwards of five centuries, and had survived all the above alterations and reconstructions, was taken down and removed in 1798, probably, as Sir D. Wilson suggests, “for no better reason than to evade the cost of its repair.”

The disturbances of the Reformation broke out in Edinburgh at an early date, and the Church of St. Giles was one of the first to suffer. In 1556 several of the images were stolen from the church, and next year that of St. Giles was carried off by the mob, and first drowned in the North Loch, and then burned. His arm bone, regarded as so precious one hundred years before, is supposed to have been thrown out into the adjoining churchyard. The church was pillaged and the altars and images cast down. The valuables, however, were taken possession of by the authorities and sold, and the proceeds spent in the repair of the{450}

[Image unavailable.]

Plan through Parapet.

Plan through Pinnacle, looking down.

Fig. 852.—St. Giles’ Collegiate Church. Plans of Crown.

{451}

[Image unavailable.]

Fig. 853.—St. Giles’ Collegiate Church. Section through Crown.

{452}

[Image unavailable.]

Fig. 854.—St. Giles’ Collegiate Church. Crown Steeple.

{453}

[Image unavailable.]

Fig 855.—St. Giles’ Collegiate Church. Monument of Regent Murray.

{454}

structure. In 1560 St. Giles’ again became the parish church, with John Knox for its minister.

Amongst the disturbances of the period, St. Giles’ Church was seized upon, in 1571, by Kirkcaldy of Grange, who acted for the Queen’s party, and used it as a fortress. He put soldiers in the roof and tower, who riddled the vault with holes, so as to shoot down on their opponents.

After the Reformation the church was considered to be too large for Protestant worship, and in Knox’s time the Magistrates began to cut it up into sections, so as to form several churches. Other alterations were made at different times, and parts were appropriated to other than sacred uses; so that at one time, besides the High Church in the choir and the Tolbooth Church in the nave, there were included under the same roof a grammar school, courts of justice, the Town Clerk’s office, a weaver’s workshop, and a place for the “Maiden,” or instrument of public executions.

On the introduction, in 1633, of Laud’s new forms of worship, the church became the see of a bishopric, and the choir was fitted up as a cathedral.

Between the downfall of Episcopacy in 1637 and its restoration in 1661, it was once more Presbyterian; but having again become Episcopalian, the bishop was ejected at the Revolution, and the Presbyterian form of worship restored. These variations entailed several alterations in the mode in which the interior was divided up, but the condition of the building up to this century remained little altered for the better. The choir still formed a separate church, having galleries introduced round three sides of it, so as to completely spoil and conceal the architecture. The nave was divided with walls, so as to contain several separate churches, and other incongruous accommodation.

The Tolbooth Church occupied the south-west angle, and Haddow’s Hole Church the north-west angle. The Old Church comprised the south transept and portions adjoining, and the Preston aisle was partitioned off as a place of meeting for the General Assembly and other purposes. The dark portions under the crossing and the north transept were occupied as the police office.

The alterations and rebuilding of 1829 still left the edifice divided into three separate churches—the choir was appropriated to the High Church, the nave was made into West St. Giles’ Church, and the Old Church occupied the south transept and other portions adjoining. The police office, however, and the Town Clerk’s office were cleared out, and the north transept, which was occupied by the former, was converted into a spacious lobby, from which the three churches entered.

Although the ancient architecture of the exterior of St. Giles’ was entirely obliterated by the reconstruction of 1829, it should be added that some advantage was obtained by the removal of the small houses and booths which had been built against the structure and between the but{455}tresses. The houses called the Luckenbooths had also encroached far too close to the edifice, and their removal was a great gain to the church and the town generally.

The position of affairs in connection with St. Giles’ was as above described when, as Lord Provost, Dr. William Chambers conceived the idea of removing the partitions which divided the structure, and again throwing the whole into one noble building. By his exertions, and greatly by his pecuniary aid, this object was effected between 1870 and 1883. The opening service after the restoration was performed by the Very Rev. Dr. Lees, in the presence of a congregation of 3000 people.

St. Giles’ Cathedral, as restored, is now, as regards its interior, one of the largest and most interesting Gothic buildings in the country.

ST. MICHAEL’S PARISH CHURCH, Linlithgow, West Lothian.

A church dedicated to St. Michael existed here as early as the time of David I. A new church is said to have been erected in 1242, and in 1384 Robert II. contributed to its repair. A great fire occurred in 1424, from which both the palace and church suffered great damage, and the church seems to have been entirely rebuilt after that date. The reconstruction of the edifice no doubt progressed, under the James’s, simultaneously with the palace. In 1530-40, Thomas French, the king’s master mason, was engaged at Linlithgow,[161] and it is possible that the church may have received some internal embellishment under his direction.

This edifice is, in part, a good example of the Scottish decorated period. The nave is the earliest part of the structure, and, from its history and style, it would appear to have been erected before the middle of the fifteenth century. The choir is of somewhat later date. These two portions were separated by an arch, which was removed about 1814, when the choir was cut off by a wall from the nave, and converted into a church with galleries. At that time, too, the present plaster ceiling of nave and choir (in the form of groined vaulting) was substituted for the open oaken roof which was formerly visible. The original stone vaulting of the side aisles, however, still extends round the whole building. The plaster groining of the apse was introduced at the above period. Otherwise, the structure has been little altered in its leading features.

St. Michael’s (Fig. 856) consists of a choir, 53 feet from east to west, by 65 feet from north to south, including two aisles, and a three-sided apse at the east end; a nave, 95 feet in length by 65 feet in width, including two aisles; two chapels inserted in the place (on the north and south){456}

[Image unavailable.]

Fig. 856.—St. Michael’s Parish Church. Plan.

{457}

usually occupied by the transept; a square tower at the west end; and a south porch giving access to the nave.

From the style of the architecture, we have no hesitation in deciding that the nave is the oldest part of the structure. The simple section of the piers (Fig. 857), and their moulded caps, with circular abaci and characteristic bases (Fig. 858), together with the elegantly pointed arch mouldings, with their wide and effective spans, are all strongly allied to decorated work. The corresponding features in the choir (Fig. 859) are somewhat similar to those of the nave, but the details, especially the caps and bases of the piers, with their long, straight mouldings, are of a later character, and recall those of the east end of St. Giles’ Cathedral erected after the middle of the fifteenth century.

[Image unavailable.]

Fig. 857.—St. Michael’s Parish Church. Piers.

The vaulting of the side aisles, both in nave and choir, is of the simplest description, but bold and light in its effect. The bosses of the north aisle of the nave contain shields charged with armorial bearings, and still partly coloured. Small shields (without charge) are also picturesquely placed upon the nave piers (see Fig. 858).

A broad stone bench or seat is carried all round the nave, and the bases of the triple wall shafts of the vaulting, which are of good design, rest upon it. Those of the choir, which are of different design, descend to the floor, there being no bench in the choir.

In the nave there are triforium openings in each bay, and clerestory windows above them. The former have pointed arches, and each contains two pointed and cusped lights, divided by a central mullion. The clerestory windows have each a semicircular arch, and each contains a two-light pointed and cusped opening (see Fig. 858). Both clerestory and triforium openings have label mouldings in the interior. The light wall shafts which carried the wooden roof rest on corbels at the clerestory level. The choir (see Fig. 859) is distinguished from the nave by having no triforium openings, but the clerestory windows are similar in both.

The windows throughout the church are of large size, and mostly filled with good and varied geometric tracery (Fig. 860). That of the south transept has six lights, and the tracery (which has been renewed) is of good design. The restoration of the tracery of this window was carried out about 1840 by William Roberts, mason, who executed the work bit by bit, making the new tracery an exact copy of the old, which had been a good deal damaged. The south transept contained the altar of St. Katherine. It was in this transept that the strange apparition was seen by James IV. which warned him against his fatal expedition into England before the battle of Flodden.{458}

[Image unavailable.]

Fig. 858.—St. Michael’s Parish Church. View from South-West.

{459}

[Image unavailable.]

Fig. 859.—St. Michael’s Parish Church. Choir.

{460}

The apse (Fig. 861), which is three-sided, is somewhat awkwardly fitted on to the choir, being formed like a large bow window, extending beyond the choir, from which it opens by a large semicircular arch in the east wall (see Fig. 859). This wall is continued upwards on the exterior, so as to form a gable, finished with crow-steps. The windows of the apse are large, and the tracery of two of the windows is perpendicular in character.

The transepts (or north and south chapels) and the south porch are constructed in a somewhat peculiar manner (see Figs. 862 and 863), having crow-stepped gables both on their outer walls and also over the inner or aisle wall which separates them from the church. The upper part of these structures does not thus interfere with the aisle roof, but stands apart from it, allowing the aisle roof and the clerestory to pass clear behind them. The north chapel, with its round turret (see Fig. 862), forms a very picturesque feature of the edifice. Each of these partly detached adjuncts contains an apartment over the vault (see Fig. 856). The chambers over the north transept and south porch are approached by turret stairs, while access to that over the south transept is obtained by passing along the gutter from the south porch and entering by a door in the inner gable. The room over the south porch seems to have been a place for preserving documents, there being three wall presses, one having had double doors. The light from the small oriel over the arch of the porch is not good. The room over the south transept is provided with a large fireplace, and may have been used as a kitchen; that over the north transept is empty and bare. The south porch, with its picturesque upper oriel and stair turret (Fig. 863), is a very interesting part of the edifice. The doorway has good mouldings and bold enrichment in the arch, and the corbelled oriel is a peculiar adjunct to the church. A similar one existed at St. Giles’, Edinburgh.

The parapet of the south aisle of the choir is provided with plain gargoyles (Fig. 864), twisted so as to throw the water off the windows; but that of the nave has no gargoyles, the water being removed by pipes. The cornice of the nave is also different from the rest of the building, and has the appearance of being a comparatively recent repair. This may have been executed at the same time as the repair of the tower (to be referred to). The junction of the different parts of the parapet and clerestory is seen in Figs. 860 and 864.

The forms of the buttresses are worthy of notice (see Figs. 860 and 864). Those of the nave have a simpler character than those of the apse and north transept. They are all well enriched with niches, having carved canopies and corbels, but those of the choir and north transept contain a more minute style of carving and ornament than those of the nave. The numerous set-offs of the buttresses of the apse (see Fig. 861),

{461}

[Image unavailable.]

Fig. 860.—St. Michael’s Parish Church. View from South.

{462}

[Image unavailable.]

Fig. 861.—St. Michael’s Parish Church. East End.

{463}

[Image unavailable.]

Fig. 862.—St. Michael’s Parish Church. North Transept or Chapel.

and the small and paltry character of the finials of the north transept (see Fig. 862), indicate a late date. The canopies of the niches are{464}

[Image unavailable.]

Fig. 863.—St. Michael’s Parish Church. South Porch.

{465}

[Image unavailable.]

Fig. 864.—St. Michael’s Parish Church. South Side of Choir.

{466}

ornamented in a somewhat elaborate style (Fig. 865), some of the ornaments having a strong resemblance to the style of many of the enrichments at Rosslyn.

The buttress of the south-west angle of the nave, crowned with the sculptured figure of St. Michael (Fig. 866), forms a striking feature on approaching the church. To the left, under the west window of the south aisle of the nave, may be observed three corbels in the aisle wall, which have apparently carried a pent roof, under which there is an oblong aperture in the wall of the church. It is said that pensioners here received their dole, but the use of the opening is not clear.

[Image unavailable.]

Fig. 865.—St. Michael’s Parish Church. Canopies of Choir.

The western tower (see Fig. 860) once formed an important feature of St. Michael’s. It was originally terminated with a crown of open stonework, similar to that of St. Giles’ in Edinburgh. But, about 1821, this crown was found to be in a dangerous state, and had to be taken down. The tower would appear to have been an addition to the original structure. The Plan shows that a part of the original west wall has been cut out, and the thicker wall of the tower inserted. This is seen both externally and internally, and the awkward junction of the tower with the nave is also apparent. The tower itself is of good design, but late—probably of the same period as the apse. It contains a remarkable entrance doorway (Fig. 867), quite Continental in style, which may possibly be the work of Thomas French, the king’s master mason. Above this doorway there is a large perpendicular window. The upper part of the tower is plain and solid, and would contrast well with the airy crown on top.

In the interior the tower is designed so as to produce a good effect. It opens into the nave with a wide and lofty arch (Fig. 868) carried up to the clerestory level; and the groined vault of the tower, with the large window below, as seen through the arch, produce a good effect. In{467}

[Image unavailable.]

Fig. 866.—St. Michael’s Parish Church. South-West Buttress of Nave.

{468}

each side wall of the tower there is a richly canopied recess, evidently intended to receive monuments or sculpture, but now empty.

[Image unavailable.]

Fig. 867.—St. Michael’s Parish Church. West Doorway.

{469}

[Image unavailable.]

Fig. 868.—St. Michael’s Parish Church. Interior of Tower.

A portion of what appears to have been a carved altar-piece has been preserved in the church (Fig. 869). It consists of two panels, which have evidently formed part of a series, representing scenes in our Lord’s Passion{470} and death. The panel on the left shows the scene in the garden, with the three apostles asleep; and the panel on the right exhibits the betrayal.

[Image unavailable.]

Fig. 869.—St. Michael’s Parish Church. Carved Altar-piece.

The Church of St. Michael’s is one of the largest of the ancient parish churches of Scotland. The wall which separated the nave and choir has recently been removed, and the whole thrown into one church. In 1559 the building was taken possession of by the Lords of the Congregation, in their march from Perth to Edinburgh, when the altars and images were destroyed, the figure of St. Michael (see Fig. 866) only escaping demolition.

The steeple contains three old bells—one dated 1490, and the other two recast during the eighteenth century.{471}

ST. MONANS CHURCH, Fifeshire.

St. Monans is the name of one of the numerous fishing villages on the Fifeshire coast of the Frith of Forth, and lies about three miles west from Anstruther. The village derives its name from St. Monan, who, by tradition, is believed to have been a missionary to the Picts in the eighth century, and to have suffered martyrdom by the Danes on the Isle of May. His body is said to have been buried on the mainland; and over it a small chapel was subsequently erected, which had a reputation for cures. Dr. Skene, however, thinks that St. Monan was Bishop of Clonfert, and that his relics were brought from Ireland to Fife about 845, and deposited in a church erected in his honour.[162] This original chapel was replaced with a larger edifice by David II. in 1362, in gratitude for his miraculous escape, through St. Monan’s influence, from the fatal effects of the barb of an arrow with which he was wounded at Durham. Sir William Dishington, of the adjoining estate of Ardross, was appointed master of the works;[163] and between 1362 and 1370 the sum of £613, 7s. was paid to him in connection with the fabric, besides £6, 13s. 4d. for the carpenter work. Dishington hired a ship from a burgess of Inverness to convey timber from there for the building; and there appear to have been three freights, which cost for transit £20, £10, and £7, 17s. 8d. In 1364 and 1366, before the church was finished, there are payments to at least three chaplains celebrating at St. Monans, two of whom had £10 and the other 20 merks yearly.[164]

About a century after the founding of the church, it was bestowed by James III. on the Dominicans. In 1544 it is said to have suffered a good deal at the hands of the English. The structure, however, still survives, and has long been used as the parish church. It is most picturesquely situated on the rocks, at the junction of a small stream with the sea; and, although exposed to the violence of the tempests and the waves for several centuries, it still retains more of its original architecture than most of our more favourably situated churches.

The building (Fig. 870) consists of a chancel, north and south transepts, and a tower and spire over the crossing. Although a nave has evidently been intended, it has never been built. The chancel is 50 feet long by 23 feet wide internally. It is divided into four bays, marked externally by buttresses, with traceried windows between them (Fig. 871); and, internally, by groined vaults, springing from wall shafts between the bays (Fig. 872). The east end (see Fig. 871) has two traceried windows, with a buttress between, surmounted by a small oblong light, filled with tracery.{472} The north and south transepts are each 17 feet in length by 18 feet in width. The north transept (Fig. 873) has a three-light window to the north and a two-light window to the west; and the ceiling is covered with a groined vault, having numerous ribs. The south transept (Fig. 874) has two windows to the south and one to the west. The crossing has large clustered piers supporting the arches (see Fig. 872), which carry the tower and spire. The western end is built up with a solid wall (see Fig. 874), without any indication of an arch to the nave. It contains a tall traceried window of two lights, with a transom in the centre of the height. A turret stair at the north-west angle leads to the top of the tower.

[Image unavailable.]

Fig. 870.—St. Monans Church. Plan.

The evidence of the Exchequer Rolls is conclusive as to a church having been erected here, at considerable outlay, in the fourteenth century; but,{473}

[Image unavailable.]

Fig. 871.—St. Monans Church. View from South-East.

{474}

[Image unavailable.]

Fig. 872.—St. Monans Church. Choir, looking East.

to judge from the architecture alone, it seems scarcely possible to believe that the church we now see is the one erected in the time of David II. All{475}

[Image unavailable.]

Fig. 873.—St. Monans Church. View from North-East.

{476}

[Image unavailable.]

Fig. 874.—St. Monans Church. South Transept.

the features of the structure point to a date later by about a century. The church having been bestowed by James III. on the Dominicans, one would be inclined to ascribe the erection or, perhaps, restoration of the edifice to his reign. The style of church erected in the fifteenth century was generally a cross church, without aisles. St. Monans is designed on{477}

[Image unavailable.]

Fig. 875.—St. Monans Church. East End of Choir.

that plan, and, like many of the other cross churches, remains incomplete, the nave not having been erected. In almost all its details it corresponds{478} with the Scottish structures of the fifteenth century. The windows have all splays running round the jambs and arches, without caps; and the tracery is of an undoubtedly late Scottish form (see Figs. 871 and 875). The curious small upper window in the east end could scarcely be of fourteenth century date.

The vaulting (see Fig. 874) is groined, and has main and subsidiary ribs or tiercerons. This is not usual in the collegiate churches of the fifteenth century, in which the pointed barrel vault is commonly used; but we have one prominent example in the Trinity College Kirk of Edinburgh, built about 1460, in which groined and ribbed vaulting was fully carried out. The ribs at St. Monans are arranged in a rather singular manner. There is a well-marked ridge rib, and there are also transverse ridge ribs; but the latter stop at the point where the tiercerons meet them; and from that point the transverse ridge ribs slope down to the apex of the windows, where they are received by a small corbel (Fig. 875). The tiercerons are also irregularly placed; they do not spring, like the other ribs, from the cap of the vaulting shaft, but die away into the wall some way up the wall rib. These peculiarities have the appearance of late and imperfect workmanship. It will be observed that the single wall shafts, from the capital of which the vaulting ribs spring, have no bases.

The sedilia (see Fig. 875) in the south wall of the choir of St. Monans may be regarded as decorated work. We find similar, and even finer, work of this description at Crosraguel Abbey in the fifteenth century.

The buttresses are simple, and might belong to almost any period. It should be stated that the tops of the buttresses were “restored” early in this century. The want of a parapet at the roof is peculiar, and may possibly be the effect of restoration. It is evident that a parapet has been intended at the gable of the south transept, where there is a door for access to the parapet walk (see Fig. 874). The peculiar character of this transept is remarkable. The two small round-headed windows, with their deep recess, and the great expanse of dead wall above them, must certainly be considered as of late design.

The stunted style of the square tower (see Figs. 871 and 873), which just rises above the roofs, is quite in keeping with the Scottish towers of the fifteenth century. The parapet is supported on corbels, which are different on three of the sides. The tower is surmounted by an octagonal spire, which is of the usual rather stunted form common in the fifteenth century. Some of the details, such as the numerous lucarnes, may be even later.

It will be observed that the sedilia is placed at a considerable height above the floor. This may arise from the steps leading to the altar having been removed, and the floor of the whole of the east end lowered to the general level of the choir; or, perhaps, the floor of the whole church has been lowered. The bases of the piers at the crossing, which{479} are of a very unusual height, would rather support the latter view (see Fig. 872).

It is not clear where the original entrance to the church was situated. Two doors in the east end now give access to it, but these are clearly modern innovations. There is a pointed doorway in the north wall of the choir (see Fig. 872), which now gives access to a vestry, and, from its position, it seems likely to have originally led to the sacristy.

Whether viewed from the village as one approaches the church from the opposite high bank of the burn (see Fig. 873), or as seen from the rocky shore (see Fig. 871), the Church of St. Monans, both from its situation and the completeness and charm of its ancient architecture, is one of the most picturesque and interesting structures of its class in Scotland.

Although, from what is above said, we cannot regard this structure as so old as 1360, still we consider it worthy of being included amongst the Scottish examples of decorated work.

WHITHORN PRIORY, Wigtonshire.

The name of Whithorn is a venerable one in Scottish annals. Here, according to tradition, St. Ninian, in the beginning of the fifth century, planted the first seeds of Christianity in Scotland. It is disputed whether his first oratory, called Candida Casa, was established, after the manner of the early hermits, on a small isle or peninsula at the point of the promontory which lies between the bays of Luce and Wigton, about three miles south from Whithorn, or on the spot where the monastery afterwards arose. There are the ruins of a small chapel[165] on “The Isle,” and although that structure evidently belongs to a much later time, it is surmised by Mr. Muir and others that it is probably the successor of St. Ninian’s first foundation.

It has been mentioned in the Introduction[166] that other indications exist in this region in the form of ancient sculptured stones, which point to its early Christianisation, and that after a great school of religious instruction had been established here, it gradually died out, and became practically extinct. But under David I. a new religious fervour arose, and the diocese of Candida Casa was established between 1124 and 1130. This part of Galloway having been long under the sway of Northumbria, the bishop remained under the jurisdiction of the see of York till 1472, when the archbishopric of St. Andrews was constituted; and, in 1491, when Glasgow was made a metropolitan see, the Bishop of Galloway became Vicar-General.

The priory of Whithorn was founded in the time of David I. by his{480} friend Fergus, Lord of Galloway. It was colonised by Premonstratensian Canons, and became the chief church of the diocese of Galloway.

The sanctity of St. Ninian’s shrine was universally recognised, and it was constantly visited by thousands of pilgrims, many of them the most distinguished persons in the land. King Robert Bruce made the pilgrimage to Whithorn in 1329, not long before his death. Other royal personages also visited the ancient seat. James IV. paid annual visits, and sometimes went twice in the year. From the Accounts of the Lord High Treasurer we learn that he made the pilgrimage in state, accompanied by a large retinue, including his minstrels. The priory naturally became wealthy, and the church and other buildings were of great extent.

[Image unavailable.]

Fig. 876.—Whithorn Priory. Plan of Nave.

In 1587 the property was, by Act of Parliament, annexed to the Crown; and in 1606 it was granted by James VI. to the Bishop of Galloway. It became transferred, in 1641, to the College of Glasgow, and finally, in 1689, it reverted to the Crown.

All the documents which might throw light on the history of the monastery have, unfortunately, been lost. They are supposed to have either been destroyed or carried abroad by the canons at the Reformation. Some distinguished men held the office of prior, amongst whom were Gavin Dunbar, who was prior in 1514, and afterwards tutor to James V., and Archbishop of Glasgow; and James Beaton, who also subsequently became Archbishop of Glasgow and St. Andrews.[167]

Of the extensive buildings of the monastery there remained standing, in 1684, according to Symson, only the steeple and the body of the great church; all the remainder was in ruins, or had been carried away. The{481}

[Image unavailable.]

Fig. 877.—Whithorn Priory. Ground Plan.

 1. Foundations of West Tower, which fell at the beginning of last century.
 2. Gable then erected, closing and contracting Parish Church.
 3. In its complete state, Nave of the Old Priory Church, closed at east end by a sixteenth or seventeenth century gable.
 4. Burial Vault of the Murrays of Broughton, seventeenth century.
 5. Site of Cloisters.
 6. Site of Domestic Buildings of Priory, on the foundations of which the present Parish Church was erected, 1822.
 7. Ancient Entrance to Domestic Buildings.
 8. Remains of Slype, uncovered December 1888.
 9. Piece of well-laid Rubble Causeway, with good Camber.
10. Chapter House, Site of.
11. Remains of Pillar found in situ.
12. Small portion of twelfth century South Transept.
13. Crypt of a later Transept, with small circular and domed chamber, and angle buttresses of uncertain projection.
14. Chancel Crypt, originally rib-vaulted, now barrel-vaulted.
15. Stair from Church to Crypt, now blocked.
16. Larder, or Apartment connected with the preparation of edible animals for the kitchen.
17. Foundations of Lady Chapel.
Making the entire length of Buildings, inclusive of West Tower, nearly 250 feet.

{482}

tower at the west end of the church, which contained the belfry, fell more than a century ago, and, in falling, destroyed the west gable of the church.

The buildings of the priory have now been reduced to the nave (Fig. 876), an aisleless structure, 74 feet long by 24 feet wide internally, and to some underground vaulted buildings, which no doubt formerly supported the choir and other erections above. Considerable excavations and investigations have recently been made on the site by the Marquis of Bute, under the careful superintendence of Mr. William Galloway, architect, whom we have to thank for the accompanying Plan (Fig. 877) showing the outline of all that remains of the priory. The explanations attached to the Plan give Mr. Galloway’s views as to the various parts of the edifice.

[Image unavailable.]

Fig. 878.—Whithorn Priory. Nave, from South-East.

The west tower (1), which fell in the beginning of last century, is now a mere ruin a few feet in height, and the new west wall (2), built in consequence of the destruction of the old gable wall, diminishes the size of the nave. The eastern wall of the nave (Fig. 878) is a post-Reformation erection, evidently added to enable the old nave to be used as a parish church. The cloister (5) lay to the north of the nave, which accounts for{483} there being no windows in the north wall of the latter. Not a vestige now remains of the cloister walk or garth.

The chapter house (10), slype (8), and (6) site of domestic buildings extended to the north of the transept. The old foundations and portions of walls remain in connection with the parts tinted black. The parish church (6) is now built on old foundations, with a porch at 7. 9 shows a piece of causeway flooring in situ, and 11 is the foundation of a pillar of the chapter house. The crypts (14), which are on a basement floor, show the extent of the choir, and 13 is the crypt or basement of a large building to the south. A considerable portion of the vaulting of these crypts has been preserved. To the east 17 probably indicates the foundations of the lady chapel. To the north of the choir is a detached structure (16), believed, from the remains of feathers, &c. found in it, to have been a larder. The remainder of the ground is entirely covered with graves, so that it was only accidentally that a small portion of the foundation of the south transept (12) was discovered.

[Image unavailable.]

Fig. 879.—Whithorn Priory. Tomb Recess in Nave.

The nave (see Fig. 878) still retains its ancient side walls, which are probably of the fifteenth century. The south-east doorway is of good form, and the mouldings are also good. “It bears the arms of Alexander Vaus, Bishop from 1426 to 1450.”[168] In the interior (Fig. 879) the north wall{484}

[Image unavailable.]

Fig. 880.—Whithorn Priory. South-West Doorway of Nave.

contains two pointed recesses for monuments, of which the design is excellent. The general design is of first pointed character, but the moulding on the left side has been repaired with ornament of fifteenth{485}

[Image unavailable.]

Fig. 881.—Whithorn Priory. Font.

century work. The most important feature connected with the nave is the doorway at the south-west angle (Fig. 880). It is set in a slight projection of the wall, which contains features, such as the pointed window over the doorway, which indicate a late period. The doorway itself is undoubtedly Norman, and probably of an early date. It is much worn away, and has been greatly damaged by the erection of a porch (now removed), the roof of which has cut into the mouldings. The shafts are built in nooks, and have caps carved with owls’ heads and other ornaments, now much decayed. One cap is carved with a quatrefoil, which is certainly a late addition. The abacus is of simple section, and is carved with sunk faceted ornaments. The arch comprises four orders, besides a hood mould. Three of these orders are enriched with chevron ornaments, and one order (the second from the inner opening) has an irregular arrangement of geometric patterns and circular discs. Similar geometric patterns are introduced in the west doorway at Dunfermline Abbey. It will be observed that some of the voussoirs are incomplete. Thus in the outer order the second voussoir to the left of the head over the centre has the chevron very imperfectly cut, and is evidently an insertion. The same remark applies to the voussoir below it to the right, which has only one half of a chevron, and in the next order straight below the head a rounded stone is substituted for the proper voussoir. All these divergences from the usual careful work of Norman building seem to indicate that there has been an alteration of the doorway.{486} Most probably it has been rebuilt and the imperfect voussoirs introduced to make up deficiencies in the old work.

The hood mould, which is plain, had a terminal at each end, carved as a large human head.

The remarkable figures carved on the projecting wall, above each side of the arch, are worthy of observation. The sculpture on the right side and the lower one on the left have a strong resemblance to the figures often found on the ancient sculptured stones, and, when taken in connection with the sculptures at Dalmeny, point to a close affinity between the sculptured figures on the ancient stones and the architecture of the twelfth century in Scotland. It may be mentioned that many fragments of sculptured stones, chiefly carved with interlacing work, have been dug up in the neighbourhood, and are kept in the existing part of the old church.

The ancient font (Fig. 881) has been preserved. It is bowl shaped and extremely simple in design, and may be of Norman date. Mr. Galloway informs us that it was long used as a trough for pounding stucco, and stood at the Town Hall. It is now reverently placed in the church.

TEMPLE CHURCH, Mid-Lothian.

[Image unavailable.]

Fig. 882.—Temple Church. Plan.

The ancient Church of Temple is beautifully situated in the valley of the river South Esk, about three miles from Gorebridge Railway Station, and seven miles south from Dalkeith. As the name implies, this site was (in the time of David I.) the residence of the Knights Templars.{487}

Before the Reformation there were three churches in the upper valley of the Esk, which belonged to the monks of Newbotle. One of these, called Balentradoch, was granted by Pope Clement V., in 1312, after the suppression of the Templars, to the Knights Hospitallers of St. John. At the Reformation the three churches were united into one parish, and the existing structure was used as the parish church till 1832, when a new church was erected near it.

[Image unavailable.]

Fig. 883.—Temple Church. View from South-East.

The plan of the church (Fig. 882) is a simple oblong, 55 feet in length by 17 feet 9 inches in width internally. A portion at the west end, measuring about 17 feet 6 inches externally, has been added since the Reformation. This portion contained a gallery, entered by a high outside doorway in the north-west corner. There are in the west wall a round-headed doorway on the ground level and a high window with two pointed lights over it. Some doorways have also been opened in the older part of{488} the structure about the same time—viz., one in the centre of the north wall and one at the east end of the south wall.

[Image unavailable.]

Fig. 884.—Temple Church. East End of North Wall.

The more ancient part of the building is in good preservation, although roofless. It contains a large traceried window in the east wall (Fig. 883), and has had two traceried windows, each with three lights, in each of the side walls. These windows are well preserved, except the west one in the north wall, which has been practically removed and built up, only the interior sconsions being now traceable. To the west of the above windows there occur two narrow lancet windows, one in the north and one in the south wall, opposite one another. There is an ancient trefoil-headed doorway in the north wall (Fig. 884), and at the north-east angle of the same wall a broad set-off is visible at a high level,{489}

[Image unavailable.]

Fig. 885.—Temple Church. Interior of East End.

indicating that there must have been some structure with a sloping stone roof (possibly a monument) under it. The wall at this place has been rebuilt. In the interior of the north wall (Fig. 885), under the eastmost side window, a segmentally-arched recess is introduced. It is about 6 feet 2 inches long, and has had good mouldings springing from small shafts and caps, but is now greatly destroyed. This may have been an easter sepulchre. In the interior of the south wall there has been a sedilia with{490} two seats (see Fig. 885), each having a trefoil-headed arch, with bold roll on edge, of which only a small portion survives.

Externally (see Fig. 883) the building is provided with a buttress at each side of the east end, and another at right angles to it at the south-east angle. A similar buttress occurs on the south wall between the two south windows. These buttresses are all finished with acute gablets and fleur-de-lys ridges, and the string course and base are returned round them.

[Image unavailable.]

Fig. 886.—Temple Church.

Details of Windows.

 

Fig. 887.—Temple Church.

Details.

The east window has a double splay on the jambs (Fig. 886), and the arch mouldings, which consist of bold rolls, partly filleted, die against the splays. The hood moulding has carved terminals, apparently of animals. The intersecting tracery is simple, and the mullions are splayed, and each aperture between the curved branches of the mullions contains a chamfered circle. There is no cusping.

In the interior (see Fig. 885), the opening of the east window being wider than on the exterior, the arch is larger and the springing is lower. It is moulded with a large filleted roll, and has a hood (Fig. 887). The roll rests on a round moulded cap, which crowns the angle shaft of the sconsion.

[Image unavailable.]

Fig. 888.

Temple Church,
Rear Arch of
Side Windows.

The side windows have also arch mouldings, which die against the splays of the jambs (see Fig. 886), and the hoods are terminated with roses, or animals like lizards, much decayed. The tracery is simple, and the large circle over the central light is peculiar. The sconsions are plain, but the sconsion arches are segmental and moulded (see Figs. 885 and 888). The two lancet windows to the west have hoods terminated with roses, and the sconsion arches are segmental and moulded. Beneath the windows a filleted roll runs round the building as a string course, and one course below it is a broadly splayed base course, with a lower base under it (see Fig. 883). These mouldings only extend round the older part of the structure, the newer portion at the west end having a separate base of a different character.{491}

The east gable still retains its sloping cope, which has at the base a small gablet erected upon the skew putt, finished with a fleur-de-lys ridge. In the gable (see Fig. 883) over the east window there is a circular aperture, now blocked up; and on the apex there has been erected, in comparatively recent times, a plain bellcot, with pyramidal roof.

On a stone at the base of the bellcot the following Roman letters have been run in with lead—viz., V Æ S A C, and below these, M I H M. Round the corner of the same stone, on the north side, are the similar letters R I. The meaning of these letters has not been explained. Possibly the stone has been brought from somewhere else, where the context might have rendered the letters intelligible.

From the general style of the details of the building there can be no difficulty in fixing its date during the middle pointed period. Most of the mouldings are of an early character, but some of the features (such as the arch mouldings dying on the jambs) are later. Besides, in Scotland allowance must be made for backwardness, and we should be inclined to regard this structure as being of about the end of the fourteenth century. It is valuable as an example of the decorated period in Scotland, of which period few, if any, parish churches are now to be found.

THE PARISH CHURCH, Haddington, East Lothian.

The town of Haddington is situated on the left bank of the Tyne, near the centre of the county to which it gives its name. It is of very ancient date, having been a royal residence from the time of David I. till the thirteenth century. The last remains of the royal palace were only removed in 1833. The town was formerly well provided with ecclesiastical edifices, having, besides the Parish Church, the monasteries of the Franciscans and Dominicans, the Cistercian Nunnery (about a mile lower down the river), and the chapels of St. Martin, St. Ann, St. Katherine, St. John, and St. Ninian. Of these establishments, the only one (except St. Martin’s, already described)[169] of which any trace of the structure remains is the Parish Church, which, although now to a great extent ruinous, still retains enough of its noble architecture to justify its ancient name of the “Lamp of Lothian.”

Considerable difference of opinion has been expressed as to the identity of the existing edifice. Dr. Barclay, who wrote in 1792,[170] says:—“I am decidedly of opinion that the present Parish Church of Haddington is the same that formerly belonged to the Franciscans, and{492} which Major says was called Lucerna Laudoniæ; as a field, now converted into a garden, and which is still styled the Friars’ Croft, lies contiguous to the churchyard, and is not above 30 yards distant from the Parish Church.”

On the other hand, as has been pointed out by Mr. Robb in his Guide to Haddington, the site of the property of the Franciscans is fully described in the charter of 1560 disponing it to the burgh, which charter is signed by one of the friars. From this it appears that the position of the Church of the Franciscans, as defined by the boundaries of their lands, lay a little way lower down the river. One of the boundaries is called in the charter the high road leading towards the Parish Church, thus indicating that the Parish Church was different from the Church of the Franciscans. Besides, the other boundaries are pretty distinctly defined, and may still be followed.

This matter has been further fully discussed in a paper by Mr. Henry F. Kerr, in the Transactions of the Edinburgh Architectural Association, Vol. I. p. 21, in which Mr. Kerr concurs with Mr. Robb’s views.

The Church of the Franciscans, as ascertained from an old charter of the friars, was founded in 1258, and was a splendid structure. Not a trace of it now remains.

Another croft, nearer the Parish Church, called the King’s Yard, of which the boundaries are described, also belonged to the Franciscans. On this land Haddington House[171] was erected in 1680, and the croft was converted into a garden. In 1477 King James III. made over this field to Sir Richard Cockburn of Clubington, who afterwards gave it as a gift to the friars of the Franciscan monastery. At the Reformation the friars disponed it to the town, and its boundaries are fully described in a charter of 1580.[172] It is believed that this is the field, “still called the Friars’ Croft,” which misled Dr. Barclay into the belief that the Parish Church was that of the Franciscans.

The Abbey, or Nunnery, of Haddington (above referred to as being one mile east of the town) was of ancient foundation, having been founded, in 1178, by Ada, Countess of Northumberland, widow of Prince Henry, and mother of Malcolm the Maiden and William the Lion. It was occupied by Cistercian Nuns, and possessed the Nungate, or suburb of Haddington, lying on the east side of the Tyne. Owing to its situation so near the Borders, and also to its proximity to the Tyne, the town of Haddington and its religious establishments were much exposed to injury, both by the invading hosts from the South and by the flooded waters of the river, and it also suffered severely on several occasions from fire. The town was burnt in 1244.

In 1355 Edward III. invaded Scotland, when the town and the Church{493} of the Franciscans were destroyed, together with numerous other towns and churches in the South of Scotland. So severe was this attack that it was long recalled in that part of the country as the “burnt Candlemas,” the invasion having taken place in the month of February.

In 1358 the town was overwhelmed with an extraordinary inundation, when the Nungate, or suburb on the eastern bank of the river, was levelled with the ground, and the sacristy of the church was flooded and its contents destroyed.

The ancient Church of Haddington, which was dedicated to the Virgin, was founded by David I., and by him granted, in 1134, to the priory of St. Andrews. The existing structure is of considerably later date. There is no record of its erection; but, from the style of the architecture, it was probably rebuilt in the first half of the fifteenth century.

The church (Fig. 889) is cruciform, having choir and nave, both with side aisles, and north and south transepts without aisles. The choir is 77 feet long and 54 feet 11 inches wide internally (including the aisles), and consists of four bays; the transept is 105 feet 4½ inches long, from north to south, by 23 feet 2½ inches wide; and the nave is 47 feet 6 inches long by 56 feet wide (including the side aisles), and is divided into five bays. The structure is thus of considerable dimensions, the total internal length being 196 feet 8 inches. Over the crossing rises the central tower, 90 feet in height.

The nave is the only part of the edifice which is roofed and occupied, being still used as the Parish Church. The choir and transepts are ruinous, and the walls have had to be supported with iron rances and ties, which greatly spoil the appearance of the interior of the choir. Otherwise the walls are pretty complete.

There is no record of there having been any destruction of the church by popular outbreak at the Reformation, to which fact we may attribute the comparatively perfect state of the structure at the present time.

The design of the interior of the choir (Figs. 890 and 891) comprises in each bay a main arcade, resting on simple clustered piers of rather diminutive height, having bases and caps, the mouldings and foliage of which clearly belong to the middle pointed or decorated period. There is no triforium; but the arches of the main arcade being large and lofty, comparatively little plain wall space is left between them and the string course, but the wall space below the clerestory windows is plain and heavy. The latter windows are pointed and filled with simple tracery. The choir was entirely vaulted, both in centre and side aisles, the central vault springing from vaulting shafts resting on the capitals of the main piers, but only stumps of the ribs remain at the springing of the vaults.

The windows of the side aisles, which are lofty (see Fig. 890), have been provided with tracery, having rather elaborate cusping. Many{494}

[Image unavailable.]

Fig. 889.—The Parish Church, Haddington. Plan.

{495}

[Image unavailable.]

Fig. 890.—The Parish Church, Haddington. The Choir, from the South Transept.

parts of the building, such as the gargoyles, label terminals, caps, &c. are ornamented with grotesque carvings of various kinds of animals,{496}

[Image unavailable.]

Fig. 891.—The Parish Church, Haddington. South Side of Choir and East Side of Tower.

{497}

foliage, &c. (see Fig. 896). The tracery in the large pointed east window is modern.

[Image unavailable.]

Fig. 892.—The Parish Church, Haddington. North Side of Nave.

{498}

On the north side of the choir a chapel has been built in the seventeenth century to contain the monuments of the Lauderdale family—a fine specimen of Renaissance work.[173]

[Image unavailable.]

Fig. 893.—The Parish Church, Haddington. View from North-West.

The nave appears to have been originally of the same design as the choir; but about the beginning of this century it underwent considerable repairs and improvements, which greatly altered the character of the design, both externally and internally. As it was desired to introduce galleries in the side aisles, it was found necessary to raise the height of the main piers and arches. This was effected by taking off the caps, carrying up the piers for 6 feet 4 inches, and putting the caps on again,{499}

[Image unavailable.]

Fig. 894.—The Parish Church, Haddington. South Transept and Choir.

the arches being also taken down and rebuilt at the new height, as shown in Fig. 892. The outer walls of the aisles were also carried up about 3 feet, the buttresses being heightened at the same time, and finished with new pinnacles of a totally different design from the old ones{500}

[Image unavailable.]

Fig. 895.—The Parish Church, Haddington. West Doorway.

{501}

(Fig. 893), some of which still remain on the buttresses of the choir (Fig. 894). The latter are in character with the pinnacles of the late pointed period in Scotland, while the new pinnacles of the nave are of a quite different description. At the time of these alterations the opportunity was taken to introduce a perforated and crenellated parapet, evidently copied from some English example.

These alterations were only carried out in 1811, but the white stone used being of a soft character, the work has now a weather-worn and ancient appearance, which renders the distinction between the old and new work somewhat difficult. The drawing of the church by Grose, and a view in Dr. Barclay’s paper in the Proceedings of the Society of Antiquaries of Scotland, show the condition of the nave before the alterations of 1811 took place, proving that the buttresses, &c., then erected are new.

The west front (see Fig. 893) has, fortunately, not been so much interfered with. This elevation is specially characteristic of Scottish design. It contains the main doorway of the building (Fig. 895), in which the circular arch (so often employed, especially in the doorways of Scottish churches) is used; but it is enriched with the mouldings and ornaments of the late decorated style (see Fig. 896). The mouldings and foliage of the caps are specially striking and characteristic, while the large leaves introduced amongst the arch mouldings are somewhat late in design. The large arch is divided into two smaller openings by a central pillar, the cap of which is of good design. It contains a shield (see Fig. 896), surrounded with foliage, on which are carved the crown of thorns, with a heart in the centre, and two hands and feet and the nails, all emblems of the Passion.

Above the west doorway there is a very large pointed window (see Fig. 893), filled with mullions and tracery. The wide opening is divided into two sections by a large central mullion, branching into two arches at top; and these subdivisions each contain smaller tracery. It has been suggested that this west window has been heightened, the jambs being so low up to the caps and the pointed arch above so high; but there is no apparent alteration to justify this view. This form of window is not infrequent in late Scottish architecture, as at Paisley transept, Seton Chapel, &c.

The parapet above the window is evidently modern, and the gable has doubtless been heightened.

This part of the church has recently undergone a fresh restoration, but it consisted almost entirely of the removal of the galleries in the aisles and new seating in the centre. The pillars and arches of the interior have been allowed to remain at the high level to which they were heightened during the previous restoration; and it is fairly questionable whether they are not more effective as altered than when they stood at the original lower level.{502}

The aisles having been originally vaulted, the old vault stood at the former low level. The ancient wall rib was, therefore, at that level, but was chipped off during the restoration. The stones which composed the wall rib can still be traced in the walls in both aisles (see Fig. 892). The string course over the main arches was originally at the same height as in the choir, but had to be chipped off. Traces of it can still be seen. The heightening of the piers had also the effect of cutting off the lower part of the vaulting shafts, thus depriving them of the base which they have in the choir. The old vaulting was necessarily removed when the aisles were heightened, and the church is now vaulted in plaster.

[Image unavailable.]

Fig. 896.—The Parish Church, Haddington.

1, 2, and 3. Details of West Doorway. 4. Cap of Shaft, Nave Clerestory.
5. Jamb of West Window.

The tracery of the windows of the nave has been renewed, and is entirely without cusping.

The transept has been to some extent destroyed, especially at the{503}

[Image unavailable.]

Fig. 897.—The Parish Church, Haddington. North Transept and Tower.

{504}

north end, the north wall being demolished. The corbels and wall ribs (Fig. 897) show how each end was divided into two bays, and that the whole was vaulted. Owing to the absence of aisles, the transept walls, which have few windows, have a heavy aspect, especially externally, where the blank wall is not much relieved by the buttresses employed. This is seen in the view of the south transept (see Fig. 894).

The tower over the crossing (see Fig. 894) is one of the most effective parts of the structure. It is about 30 feet square, and rises above the church as a square-angled structure, without buttresses or breaks. It has a lofty triple window in each face, each opening being crowned with a semicircular arch, and divided in the centre by an ornamental transom.

On each side of the tower two niches, with carved canopies and corbels (but now without statues), occupy the plain space between the windows and the corners of the structure.

Originally the tower was crowned with a canopy or spire of open work, similar to those which still exist at St. Giles’, Edinburgh, and King’s College, Aberdeen, and also that which formerly crowned the tower of Linlithgow Church. A slight corbelled break in the centre of each face of the tower indicates that a rib sprang from the centre of each face, as well as the angles of the tower, thus producing the effect of an octagonal crown, as at St. Giles’. Large picturesque gargoyles still break the line of the cornice on top.

The whole church seems to have been designed and constructed at the same period—probably about the middle of the fifteenth century. The choir and nave were almost identical in their general features as originally executed; and the details of the piers, mouldings, bases, caps, &c., are very similar in both divisions. The style of the carved foliage is also similar in each, and bears the stamp of Scottish decorated work, but rather late in the style.

As an indication that the building was completed about the middle of the fifteenth century, there occur in the “Buke of Auld Register of Haidinton”[174] many entries of gifts of chalices and other furnishings made to the various altars in the church, extending from 1423 to 1463, showing that “more than ordinary interest had been taken in the ‘Paroche Kirk.’

The altars were the following:—

1. Our Lady Altar.
2. Haly Blude Altar.
3. St. Blaise’s Altar.
4. St. John’s Altar.
5. The Three Kings of Cologne.
6. St. Salvator’s Altar.
7. St. Katrine’s Altar.
8. St. Mychael’s Altar.
9. St. Towbart’s Altar.
10. Crispin and Crispianus.
11. Trinity Altar.[175]

At the Reformation the possessions of the church and chapel dependent on it fell to Queen Mary’s brother, the Earl of Moray, who was Prior of{505} St. Andrews. They were afterwards seized by the Earl of Morton, and, at his forfeiture, passed to the Crown. They were next presented by James VI. to his favourite, Esmé, Duke of Lennox, as a temporal lordship; and ultimately came into the hands of the Earl of Hopetoun.

It has already been mentioned that the building of the church does not appear to have suffered from any outbreak at the Reformation; but the fabric has been damaged to a considerable extent. The town was subjected to a siege in 1548, when it was held by the English after the battle of Pinkie, and was attacked and taken by the Scots and their French allies. It is not unlikely that the church may have suffered damage at that time, as it is stated that certain of the chapels did.

BALMERINO ABBEY,[176] Fifeshire.

The few fragments which survive of this once extensive structure stand on a height overlooking the Frith of Tay from its south or Fife shore, about three or four miles south-west from Dundee.

The Cistercian Abbey of Balmerino was founded in the year 1229 by Queen Ermengard, widow of William the Lion, and her son, Alexander II. The foundation charter by the latter is dated 3rd February 1230-1. The abbey was dedicated to the Virgin Mary and to the most holy King Edward.

Queen Ermengard obtained possession of the adjoining lands in the year 1225, and it is supposed that building operations were commenced immediately after the foundation, as on the 13th December 1229, the original colony of monks for Balmerino set out from Melrose under the guidance of Alan, the first abbot. The building must probably then have made some progress to be in a fit state for their occupation. Ermengard died in 1233 and was buried in the church, and, according to Spottiswoode, her place of sepulture was before the high altar. She was a liberal benefactress to the abbey, and Alexander, her son, took a continued interest in its affairs after her death, and was a frequent visitor at Balmerino. During the time of Ralph, the second abbot (1236-1251), the abbey received the first confirmation of its privileges and possessions from Pope Innocent IV. It is undated, but the Rev. Dr. Campbell, in his account of the abbey, assigns its date to between 1242 and 1246. About the last decade of the thirteenth century, Hugo of Nydie grants the use of his quarry of Nydie to the abbey, and also a toft, with the privilege of grazing on the common pasture of Nydie. Dr. Campbell conjectures that as the journey between the quarry and Balmerino was too long to be per{506}formed both ways on the same day, the toft would form the lodging for the men, and the pasturage for the draught animals. In this connection William of Burglyn grants “that old road through his land of Burthlyn, by which the monks were wont to go with their carts and other carriages to the quarry of Nidyn;” and further, “if it shall happen that the carts and waggons of the monks shall at any time halt at the ford of Burglyn on account of any hindrance in crossing, he grants them permission in such a case to unyoke and feed their beasts there, and, if necessary, to stay over the night.”[177]

Beyond the above facts, there is no information whatever preserved that has any bearing on the history of the erection of the abbey buildings. No contracts are referred to, nor in its records is the name of any particular abbot associated with the building of any part of the abbey. The next recorded event in connection with the structure is its destruction, or partial destruction, during Somerset’s invasion in 1547, when Admiral Thomas Wyndham, on the night of the 25th December, assailed the monastery, and in the words of his own report,[178] “he bornt the abbey with all thyngs that wer in it.” This damage was, doubtless, to a certain extent repaired; but a more serious encounter was approaching. In 1559 Balmerino suffered the usual fate of similar establishments. The Earl of Argyle and the Prior of St. Andrews, having destroyed the churches of St. Andrews, “convened a great company of countrymen and passed to the abbeys of Lindores and Balmerino, the Parish Kirks within Fife, and did the like.”[179] Bishop Leslie ascribes the demolition of the abbey to “certain most worthless men, of the common people.”

As usually happened in connection with all the other abbeys at this period, a nobleman or Court favourite was appointed commendator, who drew two-thirds of the revenue, the remainder being reserved for the reformed minister and the Crown. John Hay, descended from the family of Naughton (a large property in the neighbourhood), was appointed commendator in 1561. The office was resigned into the king’s hands in 1605, whereupon the abbacy was converted into a temporal lordship, in favour of Sir James Elphinstone, with the title of Lord Balmerino.

The abbey buildings (Fig. 898) are in a very ruinous state, only the chapter house with the erections adjoining it being at all well preserved. The north wall of the nave with the west wall of the north transept remain throughout their whole length for about 5 feet above the ground. In the month of March 1896, the Rev. Dr. Campbell was allowed by the proprietor to make some excavations, and as the result of a few days’ work sufficient remains were disclosed to enable a fairly{507} accurate plan of the church to be made. And if the work of excavation were carried further, the rubbish removed, and most of the trees cut down which at present crowd the site, there is no doubt but that a much more complete plan of the church and abbey would be disclosed.

[Image unavailable.]

Fig. 898.—Balmerino Abbey. Plan.

The church is situated, as at the mother church of Melrose, on the south side of the cloister. It consisted of a nave with a south aisle (there being no north aisle), transepts with the usual eastern aisle, and a short presbytery without aisles. The internal dimensions of the church were as follows:—Total length from east to west about 206 feet, width of nave{508} about 45 feet, length of transepts and crossing about 98 feet, width of transept (including the east aisle) about 46 feet, and width of presbytery about 25 feet.

[Image unavailable.]

Fig. 899.—Balmerino Abbey. Plan of Piers and Responds.

Three of the vaulting shafts of the nave exist against the north wall (their section is shown in Fig. 899); but they are so situated as to give an unequal division to the bays. Until the ivy is stripped from the walls, and the accumulated debris of centuries is removed from the floor, nothing more definite can be ascertained regarding them; but assuming that two of the responds are in their proper places at a distance of 20 feet apart—of which there seems to be no doubt—this would give a nave of six bays. In the line of the nave piers various foundations have been laid bare, as shown on Plan. Beginning at the west end a foundation projects inwards 5 feet; next it there is a cross wall about 10 feet in length; then further to the east, two foundations as if for piers, and next them the great south-east pier of the crossing, one side of which is quite entire and is shown in Fig. 899. It measures along the diagonal face 6 feet 10 inches by 7 feet 7 inches across. There were three such piers, the fourth (see Fig. 899) being made up with the responds at the junction of the nave and transept walls at the north-west corner of the crossing. Each transept probably contained two bays. The respond against the north transept wall still exists.{509}

[Image unavailable.]

Fig. 900.—Balmerino Abbey.
Plan of West Doorway.

The west doorway (Fig. 900) was evidently one of considerable importance. It was a double doorway, 8 feet 8 inches wide, the central pillar being about 14 inches square; only the merest fragment of the base of the doorway has been unearthed. The ingoing probably extended with a wide splay outwards, decorated with shafts, the base of one of these being in situ. The south-west corner of the church is one of the best preserved fragments. It consists of a deeply splayed base of beautiful masonry, with an angle buttress, measuring 7 feet on each face, with a projection of nearly 5 feet. This buttress probably contained a wheel stair for access to the roof. The north-west corner has not been cleared of rubbish. At the south-east corners of the transept and of the presbytery there are foundations (as shown on Plan), of which at present nothing definite can be made. The details of the church indicate a building in the first pointed style of the thirteenth century.

Entering from the south transept is the sacristy, a chamber 32 feet 4 inches long by 23 feet wide, covered with a round barrel vault. All the buildings to the north of the church appear to have been to a greater or less extent altered and adapted by the commendators, in order to form a mansion house, so that they do not now quite represent their original condition.

[Image unavailable.]

Fig. 901.—Balmerino Abbey. Plan of Charter House.

To the north of the sacristy is the chapter house, with a doorway between them, which is not original. This has been a very fine apartment, measuring about 56 feet long by about 27 feet 3 inches wide. It is divided into two compartments, the eastern compartment being the chapter house proper, and the western the vestibule (see Fig. 901). The eastern half is probably of a slightly later date than the western half. It was vaulted, like the western half, with groined vaulting, but at a much higher level and with arches of a much greater span, having had one central pillar instead of the two in the older part. The central pillar is entirely gone; and of the high vaulting only the wall ribs, with the corbels from which the ribs sprang, remain (see Fig. 902). From the indications of the ribs which remain, the vaulting has been restored in{510} dotted lines. It is quite obvious from Fig. 902 that this vaulting was removed to admit of an upper room at the lower level of the western vault.

[Image unavailable.]

Fig. 902.—Balmerino Abbey. Chapter House, from South-East.

The western division or vestibule (Fig. 903) has two octagonal centre pillars, with no wall responds in a line with them, the vaulting at the wall springing from rounded corbels; eastwards, there are two larger octagonal pillars with responds. The height of the pillars is about 7 feet 10 inches, and to the apex of the vaulting the height is about 14 feet 9 inches.

The western wall of the chapter house is gone, and only some portions of a later wall remain. Owing to this the western compartments of the{511}

[Image unavailable.]

Fig. 903.—Balmerino Abbey. Chapter House, from North-West.

{512}

vaulting have fallen, all except the part shown by strong lines at the south side of this compartment, which merely holds together by the tenacity of the mortar. Unless means are shortly taken to support this fragment, it will soon give way and come to the ground. There was a continuous seat round the entire chapter house. The recesses at the east end on the north side are modern (Fig. 904).

The east wall of the chapter house (Fig. 905) still remains; it contains two windows, having square heads, built with radiating stones, and probably had mullions with tracery. The southmost of these windows was, in the later occupation, converted into a doorway, with fan lights over (see Fig. 905).

During this period the chapter house formed a part of the residence, the eastern part being a hall, with some kind of screen or division between the pillars and the responds, and having a door through the northern archway, of which door the ends of the stone lintel still remain on each side. A large fireplace was constructed at the centre arch, and the chimney flue still remains, as shown on the Plan of the vaulting (see Fig. 901), with the ribs crossing the flue. About this time the wheel staircase, seen projecting into the cloister, was probably built. The chapter house finishes on the top with a row of corbels similar to what is seen on the pele towers; but the whole is so covered with ivy and abundant vegetation on the roof that further elucidation of this part of the building is impossible.

The details of the chapter house, as seen in the vaulting and the carved work of the caps of the piers and corbels (Fig. 906), belong, probably, to the first half of the fifteenth century. Adjoining the chapter house is a vaulted apartment about 28 feet 9 inches long by 11 feet 6 inches wide, and provided with a seat on either side. It is entered from the east by a pointed doorway, and is unlighted by any windows. It was probably the slype. To the north of this is the last building of the eastern range, which is believed to be the penitentiary. It contains three cells; the eastmost one, which enters from a hatchway in the vaulted roof, measures about 8 feet by 6 feet, and is lofty. It was lighted with a small window, and probably contained a garde-robe. The adjoining cell shown on the Ground Plan is divided into two—a lower and an upper cell, the latter entering from a hatchway in the roof, and the former being some steps down from the ground level. The lower cell is provided with a stone seat on each side, and so, perhaps, are the others; but they are so encumbered with rubbish that their details cannot be made out.

Of the other buildings surrounding the cloister nothing remains except the indications of the inner wall of the west wing, shown by dotted lines on Plan, which gives a breadth to the garth, from east to west, of about 104 feet.{513}

[Image unavailable.]

Fig. 904.—Balmerino Abbey. Chapter House, from South-West.

{514}

[Image unavailable.]

Fig. 905.—Balmerino Abbey. South-East Angle of Chapter House.

{515}

[Image unavailable.]

Fig. 906.—Balmerino Abbey. Details of Piers of Chapter House.

It is quite possible that the present farmhouse is on the site, if it did not form a part, of the north-west corner of the cloister. To the north of this house there still remains a portion of the old granary, now part of the modern farm-steading. It contains two doorways, one with a splayed and pointed arch, and the other much wider, having a rounded top. The west gable, as seen above a modern roof, is constructed as a dovecot with nests, similar to what is found at Cambuskenneth. On the skew putt at the north side of the gable there is a coat of arms (Fig. 907), two bars embattled. There is no known coat quite similar to this. A richly{516} moulded and embattled finial terminates this gable, but it is broken and mutilated. Another coat of arms, built into the modern walls of the farm-steading, and shown by Fig. 908, is also unknown, as likewise are the initials.

[Image unavailable.]

Fig. 907.—Balmerino Abbey.
Arms on Skew Putt of Barn.

 

Fig. 908.—Balmerino Abbey.
Dormer in Farm Building.

[Image unavailable.]

Fig. 909.—Balmerino Abbey.
Figure of Ecclesiastic.

 

Fig. 910.—Balmerino Abbey.
Figure in Armour.

{517}

To the east of the chapter house, at a distance of about 90 feet, are the ruins of what is called on the Plan the abbot’s house. What remains consists of a vaulted cellar, measuring on the inside about 18 feet 2 inches by 15 feet 7 inches, and separated by a thick wall from a similar apartment on the north, which only in part survives. How far this structure extended it is impossible to say. It is constructed of good masonry, the doorway between the apartments being finely wrought; and it evidently was an important building.

Adjoining this house, two sculptured figures—one of an ecclesiastic and the other in mail armour (Figs. 909 and 910)[180]—are stuck into the ground. The first has probably been a recumbent figure on a tomb, and the other is an isolated upright figure, the back being as carefully wrought as the front.

A laudable effort has been made to preserve the ruins by enclosing them with a lofty fence; but much might yet be done by way of preservation and disclosure by excavation.

CHAPEL, ROTHESAY CASTLE, Buteshire.

[Image unavailable.]

Fig. 911.—Chapel, Rothesay Castle. Plan.

In the description of Rothesay Castle[181] the plan of the ground floor of the chapel is shown standing within the courtyard, and at right angles to the east wall of enceinte. The chapel itself, however, was on the upper floor of this building, which is two stories in height. The chapel (Fig. 911){518}

[Image unavailable.]

Fig. 912.—Chapel, Rothesay Castle. View from North-West.

{519}

is 30 feet in length by 20 feet in width internally. The west wall is now much broken down, so that in the view from the north-west (Fig. 912) there is seen the exterior of the north side and the interior of the south side. The chapel has been lighted by two windows in the north and two windows in the south wall, all towards the east end. About the middle of the structure there is a small window in each of the north and south walls, and further westwards the entrance doorway occurs in the south wall. The doorway is still pretty complete, and has a round arch and splayed jambs. Being at the height of one story from the ground, it must have been approached by an outside staircase, probably somewhat in the manner shown by dotted lines on Plan.

[Image unavailable.]

Fig. 913.—Chapel, Rothesay Castle. Windows in North Wall.

{520}

There is no window in the east wall, as a window in that position would have been blocked by the staircase leading to the battlements on the outer wall of the fortress. The eastern part of the church, however, is amply lighted by the two large windows on each side. These windows (Fig. 913) are pointed, and each had a central mullion and simple branching tracery. The mouldings consist of simple splays. There is a piscina in the south wall of the chancel to the east of the eastern window.

The small windows in the side walls are pointed, and may have lit altars at the rood screen. The western portion of the chapel had probably a window in the west wall.

The whole structure is simple, but massive. There are few features by which the date may be fixed, but it seems most probable that it was erected towards the end of the fourteenth century, when the castle was enlarged and frequently occupied by Kings Robert II. and III.

ST. BRIDGET’S OR ST. BRIDE’S CHURCH, Douglas, Lanarkshire.

The town of Douglas, in the parish of the same name, stands in the Upper Ward of Lanarkshire, about 3½ miles south from Douglas Station, on the Lesmahagow branch of the Caledonian Railway. The town and castle are closely connected with the great Douglas family, several members of which are buried in the church, and have sumptuous monuments erected therein to their memory.

The church of Douglas existed in the twelfth century, but the present structure is of considerably later date. Douglas Church belonged to Kelso Abbey. In the end of the fourteenth century it was made a prebend of Glasgow Cathedral. The ancient church here, in 1307, played an important part in one of the bold feats of the Good Sir James Douglas in the time of Bruce. The English garrison of Douglas Castle, being assembled in the church, were attacked by Sir James, and were all killed.

The church, of which some fragments are still preserved, was doubtless destroyed during the troublous times of the War of Independence. The present structure, of which little but the choir remains, appears to have been built about the end of the fourteenth century. Its architecture is very simple, all the rybats and mullions having plain splays instead of mouldings.

The choir (Fig. 914) measures, internally, 40 feet in length by 17 feet 4 inches in width, and has no aisles. There has at one time been a nave, the large arch to which, though built up, is visible in the wall between the nave and choir.

The central part of the nave has entirely disappeared, and its space{521} now forms part of the churchyard. There remains, however, what has apparently been the south aisle of the nave. It has been connected with the central aisle by two arches, the central pillar and west respond of which still survive, though built up with modern masonry. This aisle is about 38 feet in length by 20 feet in width over the walls. In the north-east angle of the aisle a square turret, about 10 feet over the walls, has been erected.

The choir contains a large three-light window in the east end (Fig. 915), having two mullions, which form three smaller pointed arches within the large arch-head. In the south side there are three similar windows, but smaller, the central one having the sill kept very high, and being thus of a stunted appearance.

[Image unavailable.]

Fig. 914.—St. Bridget’s or St. Bride’s Church. Plan.

The monument in the south side, which contains the effigies of James, seventh Earl of Douglas, and his wife, has required a break to be formed in the wall on the exterior, so as to allow breadth for the two figures under the canopy.

The entrance to the choir is by a modernised doorway in the north wall, close to the west end. On entering one is struck by the fine appearance of the large monuments (Fig. 916), especially those on the left or north side. These monuments, as well as the whole building, have evidently been considerably repaired within recent years. Until about fifteen years ago the church was in a miserable condition, the windows being built up, so that the monuments could only be seen by lamp light. The building stood open, and the school children (the schoolhouse being{522}

[Image unavailable.]

Fig. 915.—St. Bridget’s or St. Bride’s Church. View from South-East.

{523}

near) used it as a place to play in. It is, therefore, no wonder that the fine monuments and effigies suffered damage. The whole have been

[Image unavailable.]

Fig. 916.—St. Bridget’s or St. Bride’s Church. Interior of Choir.

{524}

[Image unavailable.]

Fig. 917.—St. Bridget’s or St. Bride’s Church. Monument of the Good Sir James Douglas.

{525}

repaired by Lord Home, and are now in excellent condition, and a new roof has been placed on the building.

The oldest monument is, doubtless, that in the north wall (Fig. 917), near the doorway. It is traditionally ascribed to the Good Sir James, the staunch adherent and companion in arms of Bruce. He died in Spain, in 1331, when on his way to the Holy Land with the heart of King Robert. The tomb contains a broken effigy, having a shield on the left side, and with hands drawing his sword, but the right arm is broken off. The legs have been crossed, but the upper limb is broken off by the knee. The head rests on a cushion and the feet against a mutilated animal, probably a lion. This monument is illustrated by Blore in his Monumental Remains, and the effigy is pronounced by him to be of a date anterior to the time of Sir James. The canopy is of a much later period, probably fifteenth century.[182] It comprises a large pointed arch with fine detached and freely cut cusping, surmounted by a crocketed label moulding of ogee form, terminating in a large finial, which reaches to the top of the wall of the church. A buttress on each side, set diagonally, encloses the monument. Each buttress has a tall crocketed pinnacle and foliaged finial. The shield in the spandril of the canopy contains the heart, an addition to the Douglas Arms, made in consequence of Sir James’s mission to the Holy Land with Bruce’s heart.

To the east of the above monument in the north wall is that of Archibald, fifth Earl of Douglas (Fig. 918), who died in 1438. He was the son of Archibald, fourth Earl, who distinguished himself in the service of Charles VII. of France, and received therefor the Duchy of Touraine, in 1423. This Earl was killed, along with most of his Scottish followers, at the battle of Verneuil, 1424. Archibald, the fifth Earl, after serving for some time in France, returned home and died of fever in 1438.

The effigy which lies within the monument is habited in robes of state, and wears a ducal coronet. In the left hand was probably a baton of office, and the right hand holds together the cord which fastens the mantle. The feet rest on a lion couchant. Round the waist is a broad ornamental belt. Round the margin of the slab was formerly an inscription, now nearly obliterated, which Godscroft gives as follows:—

HIC · JACET · ARCHIBALDUS · DE · DOUGLAS · DUX · TOURENIAE · COMES DE · DOUGLAS · ET · LONGUEVILLE · DOMINUS · GALLOVIDIAE · WIGTONIAE · ET ANNANDIAE · LOCUM · TENENS · REGIS · SCOTIE · OBIIT · XXVIº · DIE · MENSIS IUNII · ANNO · DOMINI · MILLESIMO · QUARINGENTESIMO · TRICESIMO · OCTAVO.[183]

The effigy rests on a tomb, the front of which is divided into six panels, each containing a small figure, probably representing the family of the deceased. The figures stand on small pedestals, and are surmounted with ornamental canopies. Over the tomb is a somewhat flat arch of ogee form,{526}

[Image unavailable.]

Fig. 918.—St. Bridget’s or St. Bride’s Church. Monument of Archibald, Fifth Earl of Douglas.

with enriched mouldings, having a crocketed hood terminating in an enriched finial. At either side are two small buttresses, each containing{527}

[Image unavailable.]

Fig. 919.—St. Bridget’s or St. Bride’s Church. Monument of James, Seventh Earl of Douglas.

a small statue and covered with a crocketed pinnacle. A parapet, pierced with quatrefoils, and which has been considerably renewed, runs along the top. On the wall at the back of the arched recess a figure, kneeling{528} at an altar, is carved. A small shield over the altar bears the Douglas arms, and the scroll carried an inscription, now obliterated.

In Blore’s time this monument was sadly destroyed, and the small figures were scattered over the floor, but they have now been replaced and the monument restored.

The base of the monument bears an ornament of sculptured foliage, very closely resembling that on the two eastern pillars of St. Giles’, Edinburgh, the work on both being probably of about the same period, about the middle of the fifteenth century.

[Image unavailable.]

Fig. 920.—St. Bridget’s or St. Bride’s Church.
Effigies of James, Seventh Earl of Douglas,
and Beatrice de Sinclair.

In the south wall of the choir there is a third monument (Fig. 919), which contains recumbent figures of James, seventh Earl of Douglas, and Beatrice de Sinclair, his wife (Fig. 920). The former is in armour, but the statue is much broken. The latter wears a long robe. The heads rest on cushions, and the hands are clasped in the attitude of prayer. In the face of the tomb are ten niches containing upright figures of the sons and daughters of the Earl and Countess, and one niche containing an angel, who supports a shield blazoned with the Douglas and Sinclair arms. Above the figures was the following inscription:—“Hic jacet magnus et potens princeps Dominus Jacobus de Douglas Dux Toureniae et Comes de Douglas Dominus Annandiae Gallovidiae Liddaliae Jedburg Forestiae et Dominus de Balveniae Magnus Wardanus Regni Scotiae versus Angliam, &c., qui obiit 24 die mensis Martii anno domini 1443.”[184]

[Image unavailable.]

Fig. 921.—St. Bridget’s or St. Bride’s Church. Crocket and Finial of Monument.

{529}

This Earl was the brother of the forementioned Archibald, sixth Earl, to whom he succeeded after the murder, in Edinburgh Castle, of Archibald’s two sons. He was called “Le Gros” on account of his corpulence, and seems to have been a “prudent and peaceable man.”

The inscription for his lady was as follows:—“Hic jacit Domina Beatrix de Sinclair filia domini Henrici Comitis Arcadum Domini de Sinclair, &c. Comitessa de Douglas et Aveniae Domina Gallovidiae.”

On the east side of these inscriptions was a stone, on which were recorded the names and titles of the sons and daughters.

“This inscription enables us to fix the date of the erection of the monument—viz., between 1448, when Archibald was made Earl of Moray, and 1451, when James, the eldest son, was killed.”[185]

[Image unavailable.]

Fig. 922.—St. Bridget’s or St. Bride’s Church. Monument in South-West Angle of Choir.

As already mentioned, the outer wall has been extended so as to give width for the tomb. The arch of the canopy is flat and low, so that the space is dark at the back. The label is enriched with crockets, which run up into a foliaged finial of late character (Fig. 921). Over this a shield, bearing the Douglas Arms, surmounted by a helmet with a peacock for crest, and covered with a small enriched string course, is inserted in the wall. In a niche in the wall on either side of the shield there have been “wild men” as supporters, but one of these has been removed.

This monument is evidently of a later date than those on the north side, and is inferior in design and execution, as might be expected from its date.

To the west of the above monument, and in the extreme south-west{530} angle of the church, there lies an effigy (Fig. 922) of beautiful workmanship and of an early date. It is apparently a female figure, the arms and head of which are damaged. The feet rest upon a bunch of foliage of first pointed design, greatly worn away. Such a footing for the effigy of a monument is rare in Scotland.

In the east wall two circular headed recesses occur under the large window, which may have been credence niches.

[Image unavailable.]

Fig. 923.—St. Bridget’s or St. Bride’s Church. Norman Fragments.

In the south wall near the east end there is a double piscina in a recess, having a trefoiled head. The basins are round plain sinkings.

The nave appears to have been a structure of the same date as the choir. The pillar between it and the south aisle seems to be of the fifteenth century. At the east end of the south aisle there is a piscina in the south wall, set in a trefoil headed recess, similar to that in the choir.

The turret in the north-east angle of the nave aisle is carried to a{531} considerable height. It is octagonal in the upper stories; and the top story, which forms the belfry, is pierced with eight small pointed windows (see Fig. 915), the mouldings round which form square frames above the arch-heads. The turret is finished with an octagonal spire of stone, and at the base of each angle of the spire there is a small stone pinnacle, now much worn away.

There still survive some fragments of carved work, which bear evidence of the former existence of an ancient church in Douglas. These fragments are portions of Norman capitals, which are piled up, as shown in the sketch, (Fig. 923), in the recess of the south aisle adjoining the turret. One cap shows a face with a fierce moustache, and others are good specimens of characteristic Norman design.

ST. BRIDE’S COLLEGIATE CHURCH, Bothwell, Lanarkshire.

[Image unavailable.]

Fig. 924.—St. Bride’s Collegiate Church. Plan.

This very interesting church was founded by Archibald the Grim, Earl of Douglas, in 1398. He was proprietor of the great Castle of Bothwell in the vicinity, and he dedicated the church to St. Bride, his patron saint. The establishment was to consist of a provost and eight{532}

[Image unavailable.]

Fig. 925.—St. Bride’s Collegiate Church. View from South-East.

prebendaries. In order to provide suitable accommodation, he added a choir to the existing parish church, and granted to the establishment sufficient resources. In this church the unfortunate Duke of Rothesay was married to the Earl’s daughter Marjory, in the year 1400. The old College Church is now attached to a new and larger modern parish church which adjoins it on the west, but the College Church is not now used for service. The structure is a simple oblong chamber (Fig. 924), 55 feet in length by 22 feet in width internally, with a sacristy on the north side 14 feet long by 10 feet wide. The church, externally divided by buttresses, has four bays (Fig. 925), with a series of pointed windows in the south wall and three windows in the north wall. The east end is square, and has one large pointed window with drop arch. The entrance doorway (Fig. 926) is in the south wall in the second bay from the west end, under a window. The arch of the doorway is remarkable from being elliptic in form. The mouldings of the arch are bold, but they are destroyed on the jambs. A label mitring into a string course at top runs round the arch. The windows are deeply splayed both inside and out, but the tracery with which they were doubtless filled is now wanting. The arch of the east window springs{533}

[Image unavailable.]

Fig. 926.—St. Bride’s Collegiate Church. Entrance Doorway.

{534}

[Image unavailable.]

Fig. 927.—St. Bride’s Collegiate Church. Interior of Choir.

{535}

[Image unavailable.]

Fig. 928.—St. Bride’s Collegiate Church. Doorway to Sacristy.

from a point considerably below the junction with the jambs, which gives it a broken appearance. An inner moulding, finished with well wrought bases, runs round the exterior of the windows. The roof of this church, like that of so many erected at a somewhat later period, is covered with overlapping stone slabs, which rest on a pointed barrel vault (Fig. 927), for the purpose of supporting it. This is the earliest example we have met with of this form of vault, which became very common in the churches of the following period. That at Lincluden, already referred to, is similar, but had a groined vault beneath it. The vault is ornamented with moulded ribs at intervals, springing from small moulded corbels.{536} There is also a ridge rib, and bosses occur at the junction with the curved side ribs. The buttresses are simple in outline, and have a deep series of set offs at top, and those next the doorway have small cusped niches in the face of each. The stone work of the roof is very carefully executed, every stone being curved so as to throw the water away from the joints. The cornice is rather more prominent than usual.

[Image unavailable.]

Fig. 929.—St. Bride’s Collegiate Church. Sedilia.

[Image unavailable.]

Fig. 930.—St. Bride’s Collegiate Church. Tombstone, with Shield and Douglas Arms.

The entrance to the sacristy is by an unusually handsome doorway (Fig. 928), having two orders of shafts and mouldings. The carving of the caps has been very fine, but is sadly damaged. In the sacristy there are a piscina and a locker, and in the south wall of the choir the remains of a triple beautifully carved sedilia (Fig. 929) and a piscina. The sacristy is roofed with overlapping stone flags, supported on a vault.{537}

Some elaborate monuments have been erected in the church (see Fig. 927) in memory of the two Archibald Douglases, Earls of Forfar, one of whom was mortally wounded at Sheriffmuir (1715).

Some ancient carved stones are also preserved at the east end, one of them being a tombstone containing a shield, with the original three stars of the Douglas arms (Fig. 930).

ST. DUTHUS’ CHURCH, Tain, Ross-shire.

[Image unavailable.]

Fig. 931.—Old St. Duthus’ Church. Plan.

The ancient town of Tain claims to have received its first privileges from Malcolm Canmore in the eleventh century. It was also the site of an early church, and St. Duthus, the patron saint of the town, is reputed to have been the Bishop of Ross in the eleventh century. The existing town stands at a point near the entrance to Dornoch Frith, on an ancient sea margin, which rises above a great expanse of sandy links stretching eastwards towards the sea. It possesses no less than three ancient churches, all said to have been dedicated to St. Duthus. This saint probably lived about the year 1000, and his remains are said to have been translated to his native town of Tain in 1253.[186] The most ancient church (Fig. 931) stands on a knoll which rises above the general level of the links. It is now surrounded by a well kept modern cemetery, and is at some distance from the town, but is believed to have stood in the midst of the houses of the older Tain, which occupied the low ground near the sea. This ancient fane is a simple parallelogram, 46 feet long by 16 feet 6 inches wide internally. Three of its walls (Fig. 932), which are all built with the granite boulders of the district, and the east and west gables are still almost entire, but the south wall is reduced to a state of ruin. The north, east, and west walls, which are much exposed to the storms from the sea, are without any openings, except a small pointed window in the west gable. The doorway and windows seem to have been in the south wall, which may account for its ruinous condition. The one small window remaining in that wall, and the pointed window in the west{538} gable, indicate a date not earlier than the thirteenth century. Besides these there are no features to give a clue to the date of the structure; but the period they point to agrees with the time when the body of St. Duthus is believed to have been brought here for burial.

The shrine of St. Duthus was regarded as specially sacred, and possessed the right of sanctuary. To it the wife and daughter of King Robert I. betook themselves when compelled to flee from Kildrummy Castle, in Aberdeenshire. But the sacred nature of the sanctuary did not avail the royal fugitives, and they were delivered up to Edward by the Earl of Ross.

[Image unavailable.]

Fig. 932.—Old St. Duthus’ Church. View from South-West.

It is believed that this church was destroyed by fire in 1429; M‘Neill of Creich, having pursued his enemies thither, took that means of evading the right of sanctuary. He did not seize his enemies within the sacred ground, but set fire to the church in which they had taken refuge.

The second church in point of antiquity is a small quadrangular structure (Fig. 933) which stands near the principal church, and to the south-east of it, on the higher ground adjacent to the modern town. It is 32 feet long by 13 feet wide within the walls, which are now reduced to about 6 to 7 feet in height all round. The north wall appears to have been rebuilt, for Mr. Neale describes it in his Ecclesiological Notes[187] as being ruinous, but having one lancet. The east end contains a triplet enclosed in one arch, and the south side has a door and a two-light window under one arch. These features point to the date of this chapel as being early, but it is scarcely possible to fix a definite time. It is, however, apparently earlier than 1429, the date of the burning of St.{539} Duthus’ Church on the links, and it is thought that this may have been the original parish church. The adjoining larger church is recorded as having been a rebuilding of a previous church, and it seems most probable that the building now under consideration was the earlier church.

As regards the third church (see Fig. 933), which was undoubtedly dedicated to St. Duthus, chronicles declare it to have been built by William, Earl of Ross, who died in 1371. In 1487 James III. procured from the Bishop of Ross and the Pope sanction for converting it into a collegiate establishment for a provost, five canons, two deacons, a sacrist, with an assistant clerk, and three singing boys. This institution was liberally endowed out of the crown lands, and, after the death of James III., an annual sum was paid out of the royal treasury.[188]

[Image unavailable.]

Fig. 933.—St. Duthus’ Church. Plan.

In the Treasurer’s Accounts for 1504 there are entries which seem to point to all three churches as being then still in existence. These entries show that on 23rd October of that year the king made an offering of 14s. “in Sanct Duchois Chapell quhair he was borne” (no doubt meaning the place where the saint was born, or the old church on the links); also, “in Sanct Duchois Chapell in the Kirk-yard of Tayne” (referring, probably, to the second, or original, parish church); and also, “in Sanct Duchoils Kirk” (which may be the College Kirk as distinguished from the Parish Church).

The Collegiate Church stands in a pleasant situation overlooking the sea, on the raised beach to the north of the town, and is surrounded by a burying-ground.

St. Duthus’ was an ancient and favourite place of pilgrimage, and the{540} old church having been consumed, this new one would, after its erection, be doubtless the celebrated shrine to which James IV. and V. made their pilgrimages.

The former king is believed to have gone there every season for at least twenty years, as part of the penance he performed in connection with his father’s death. He visited St. Duthus’ in 1513, before his last fatal expedition, which closed with the Battle of Flodden. In 1527 James V. made the pilgrimage of St. Duthus’ barefoot, a memento of which event is preserved in the name of the “King’s Causeway,” by which a road near the town is known.

The Collegiate Church (Fig. 933) is 70 feet long by 22 feet 6 inches wide internally. It contains four bays, distinguished externally by buttresses of good form (Fig. 934). Each bay contains one window, those of the south or sheltered side being large and filled with tracery; while those in the north wall, which is exposed to the sea, are small plain lancets, with hood moulding. The windows in the east and west walls are large and filled with tracery, having five and four lights respectively, divided by mullions. The tracery of the east window, which has been renewed, is of geometric form, while that of the west window consists of simple intersecting mullions. The tracery of the south side windows is of similar design. The west gable contains two niches, one on each side of the arch of the window. The statue of a bishop (possibly St. Duthus) still exists in the north niche. There is a doorway in the westmost bay on each side. They are similar and of good design. A small benitier projects from the wall on the outside close to the north door. The south door has had a large porch, the mark of the water table being still visible.

The interior contains a triple sedilia and a piscina in the south wall of good pointed and trefoiled pattern, and there is a small ambry in the north wall.

In Neal’s Ecclesiological Notes the church is termed an example of middle pointed architecture, although its date, as generally happens in the North, is considerably later than any work of that period in England.

From the Reformation till 1815 this edifice was used as the parish church. A new church being then erected, the old one was abandoned and suffered neglect. When Mr. Neal visited it in 1848, he found it in the following condition[189]:—“It has been fitted up as a place of Presbyterian worship; galleries, gaudily painted, run round it; pews of every size and shape and colour pollute it; but it is now deserted. The smell of decaying wood, the exhalations from the vaults, the dampness, the rottenness, the horrible filth, the green mould, the decaying baize, the deserted appearance of the whole render this a shocking place.”

This disgraceful condition of the church attracted public attention,{541}

[Image unavailable.]

Fig. 934.—St. Duthus’ Church. View from South-West.

{542}

and, by the exertions of the late Provost M‘Leod and other gentlemen in the district, its cleansing and restoration were undertaken and completed in 1877, and the building is now set apart for monumental and memorial purposes. The old stonework has been preserved and slightly restored where necessary, and the roof has been renewed. The windows are filled with memorial stained glass, and the whole is kept in excellent order.

A pulpit is said to have been presented to Tain by the Regent Murray, as a mark of his appreciation of the zeal of the town in the cause of the Reformation. Mr. Taylor informs us[190] that this valuable relic was “suffered to be broken, and its ornamentation carried away piecemeal by wanton hands;” but it has now been restored, so far as the fragments again brought together have enabled this to be done, and forms an ornamental feature in the restored church.

FEARN ABBEY, Ross-shire.

This abbey is one of the monastic establishments founded in the far North during the reign of Alexander II. It was originally settled, in 1221, by Farquhard, Earl of Ross, at Edderton, on the Dornoch Frith, and its first abbot was brought from the priory of Whithorn, in Wigtonshire. The occupants were therefore of the Premonstratensian Order of Canons Regular, being the order of the parent house.

The situation originally chosen was found to be too near the turbulent tribes further north, and, in 1238, leave was granted to Malcolm of Uig, the second abbot, to transfer the abbey to a new and more peaceful site. The new locality is about ten miles south-east from the first site, and had the advantage of being in more fertile soil. Being well within the domains of the Earl of Ross, the abbey received his protection, and was also richly endowed by the successive earls.

The connection with Whithorn was kept up, and many of the abbots came from the parent house. In 1321, Mark, a canon of Whithorn, and son of Sir Mark Ros, was presented to the abbacy by the Prior of Whithorn, and not chosen by the monks. He is said to have rebuilt the abbey about 1338, and the rebuilding was completed under the rule of Abbot Donald, in 1372.

Abbot Finlay M‘Faed was appointed in 1442, and his rule lasted for forty-four years. He built the cloister, and procured an organ, tabernacles, chalices, vestments, and other ornaments from Flanders, with which he enriched the abbey. He died in 1485, and was interred in St. Michael’s aisle at Fearn, in which his monument was erected, and where it still survives.{543}

In the beginning of the sixteenth century the commendatorship of the abbey was held by a mere boy, afterwards destined to become famous in Scottish history—Patrick Hamilton, the first martyr for Reformation principles in this country. He was a natural son of the Earl of Arran, a M.A. of Paris in 1520, and also of St. Andrews. When twenty-six years of age he was burned as a heretic at the gate of St. Salvator’s College, in St. Andrews, in 1528.

The buildings of Fearn Abbey having fallen into disrepair, Robert Cairncross, Bishop of Ross (1539-45) was appointed abbot of Fearn, being recommended by the king to the Pope, on the understanding that the bishop, who was wealthy, would be able to restore the abbey. Bishop Cairncross also held several other appointments, being Provost of Corstorphine, Abbot of Holyrood, and chaplain to James V. He resigned the abbacy in 1545, and died soon after. Nicholas Ross, provost of the Collegiate Church of Tain, held the abbacy, possibly as a secular charge, seeing that, in 1560, he sat in Parliament, and voted for the abolition of the Roman Catholic religion.

The last commendator was Walter Ross of Morangy; but he was only titular, for in 1597 the lands of the abbey were erected into the temporal Barony of Geanies, and granted by James V. to his favourite, Sir Patrick Murray.

Some of the church lands were, as usual, feued off to relatives of the abbots. Abbot Walter Ross procured a grant in his own favour of Morangy and the mills thereof, which remained with his family for several generations.

The church continued to be used as the parish place of worship, and in 1742, during divine service, the vaulted roof fell, when about fifty people were killed.[191]

Of this extensive and richly-furnished abbey there now only remain a part of the church and the ruins of some structures attached to it.

The church is a simple oblong chamber (Fig. 935), 96 feet long by 26 feet wide internally. Part of it is still used as the parish church, but the eastern end is partitioned off and set apart as the burial-vault of the family of Ross of Balnagown. After the fall of the roof last century, the south wall of the church was to a great extent rebuilt, a new roof put on, and the interior plastered. The eastern portion, with the exception of the building up of some of the windows and the reconstruction of the gable, has been left intact. The chapels, or “aisles,” attached to the church have been erected against the original walls, as is evident from the remains of windows still visible, which are built up.

The features of the church are extremely simple (Fig. 936). The windows are all tall lancets. In the east gable there are four of these all of{544} equal height, and the walls have been pierced with similar lights, in pairs, between all the buttresses round the walls. Some of these remain in the north wall (see Fig. 936), and in the south wall (which has been remodelled and partly rebuilt, with large windows inserted) some portions of the old lancets can yet be traced.

[Image unavailable.]

Fig. 935.—Fearn Abbey. Plan.

There is nothing very distinctive of any particular period in the architecture, but the features correspond fairly well with the date assigned to the rebuilding of the abbey by the abbots Mark and Donald during the fourteenth century. The lanceolate form of the windows seems at first sight to indicate an earlier period, but, on careful inspection, it will be observed that there is no hood moulding, a feature almost universally used in first pointed work. Besides, the lancet form of window was employed in the north even as late as the sixteenth century, as in the west front of Beauly Priory, built by Bishop Reid about 1550. An ambry, piscina, and sedilia are still preserved in the south wall of the chancel.

The most important of the additions made to the main building is the{545}

[Image unavailable.]

Fig. 936.—Fearn Abbey. View from North-East.

{546}

south wing or chapel, which was dedicated to St. Michael. This chapel is said to have been erected by Abbot Finlay M‘Fead, who died in 1485. It is 32 feet long by 23 feet wide, and has been connected to the church by an archway 14 feet in width. The walls of the aisle are now reduced to about 5 feet in height, and contain a doorway in the west side and an ambry on the east side. In the south wall is the monument to Abbot Finlay M‘Fead (Fig. 937). The canopy is segmental, and the mouldings are bold, but the enrichments are much decayed. On the shield over the centre of the arch the arms of the abbot are still legible—a stag behind a tree, with three stars in chief, and a crozier above. The inscription, which is much decayed, is said to be, “Hic jacet Finlaius M‘Fead abbas de Fern qui obiit anno MCCCCLXXXV.” It will be remembered that, through the liberality of this abbot, the monastery was much enriched. His effigy still rests, though much mutilated, in its original place.

[Image unavailable.]

Fig. 937.—Fearn Abbey. Monument to Abbot Finlay M‘Fead.

A small monumental chapel has been erected against the south-east angle of the church and blocks two of the windows. It is probably, from{547} its details, of the sixteenth century. There is a pointed doorway in the east side (see Fig. 936), and a pointed window in each of the east and west walls. The south wall has contained a monument, but the outer part of the wall has been broken out, and none of the features of the monument are preserved.

Another chapel, doubtless also monumental, has been built against the north wall (see Fig. 936), where there have been two windows of the church. The walls of the above chapels seem to be built out from two of the buttresses of the church. The buttress forming part of the east wall of the north chapel is still quite distinct. This structure is evidently of a very late date. The windows have had mullions, which simply intersect one another in the arched head, without any trace of foliation. The chief peculiarity of this chapel lies in its roof. This has been constructed with six ribs, composed of portions of wall carried on plain pointed arches, on which were laid the overlapping stone flags, of which the roof was formed. Two of the arches and a small part of the stone roof still survive (see Fig. 936).

All traces of the cloister and domestic buildings of the monastery have been completely swept away.

INVERKEITHING CHURCH, Fifeshire.

This ancient town, situated a short way north of Queensferry, contained many interesting structures, but they have now been almost entirely removed. The fine Town Cross, however, still survives.

[Image unavailable.]

Fig. 938.—Inverkeithing Church. Plan.

{548}

The old parish church was burned down in 1825, and afterwards rebuilt, the only ancient part preserved being the western tower (Fig. 938). This tower has been partly incorporated with the new church, to which it forms an entrance porch, and has a new doorway opened in its west wall. It measures about 22 feet square on Plan, and has buttresses at the angles reaching as high as the top story (Fig. 939). These have the angles chamfered, and are finished with plain splays on top. An octagonal turret at the south-east angle, with conical stone roof, contains the stair to the upper story. The tower is finished with a plain parapet on top, supported on simple bold corbels. The structure above the tower is modern. Although not very high, the tower contains four stories, the upper one being the belfry. It has large windows, with one mullion and a transom, and very peculiar tracery in the arched head, consisting of three perforated circles. The bell bears the date of 1641.

[Image unavailable.]

Fig. 939.—Inverkeithing Church. Tower, from South-West.

{549}

[Image unavailable.]

Fig. 940.—Inverkeithing Church. Font.

In the interior of the church is preserved, and is still used, a very fine font (Fig. 940), which was found lying in pieces in the ground under the tower and in the churchyard, but the pieces have now been put together{550} again. The bowl is hexagonal in outline, 3 feet 2 inches across, the orifice being 2 feet in diameter. Each face is ornamented with a large shield, supported by an angel, and on each angle is a large roll, supported on a head and embattled on top. The lower part consists of five short filleted shafts, with angular projections between them. The shafts rest on bold projecting bases, standing on an octagonal plinth, and have a series of enriched caps (sadly damaged) running round the font, which support the mouldings under the basin.

[Image unavailable.]

Fig. 941.—Inverkeithing Church. Font.

{551}

[Image unavailable.]

Fig. 942.—Inverkeithing Church. Arms on Font.

The arms on the six shields on the faces of the font are as follow (the arms being, probably, those of the families named, but there is nothing to show their connection with the font):—

1. Quarterly 1st and 4th, three bay leaves, for Foulis of Colinton; 2nd and 3rd, saltier and chief, wavy (Fig. 941). Bruce of Balcaskie.

2. A fesse chequé between three crescents (see Fig. 940). Stewart.

3. Fesse between three crescents (see Fig. 941). Melville of Glenbervie.

4. Per pale, dexter side, a lion rampant within a double tressure (see Fig. 940). Lyon of Glamis. On the sinister side, bars wavy, for Drummond.

5. Lion rampant within a double tressure (Fig. 942). Lyon of Glamis.

6. An eagle displayed, surmounted by a bend with three crescents (see Fig. 942). Ramsay of Dunoun.

MONUMENT AT ABERDALGIE, Perthshire.

An incised monument (Fig. 943) in the churchyard of Aberdalgie, which is situated from three to four miles south-west of Perth, commemorates Sir William Olifurd or Oliphant of Aberdalgie, for ever memorable as the defender of Stirling Castle against the force of Edward I. in 1304. Edward conducted the siege in person, and for upwards of three months a small garrison of men withstood his utmost{552}

[Image unavailable.]

Fig. 943.—Monument at Aberdalgie to Sir W. Olifurd.

{553}

power, although he brought all his great resources to bear on the castle. At length, through exhaustion and famine, and the effect of Edward’s battering engines, the garrison capitulated, and Olifurd was sent a prisoner to the Tower. He was one of the forty noblemen who, at Arbroath Abbey in 1320, signed the famous protest against papal encroachment. Sir William Olifurd is thus entitled to be regarded as one of the heroes of his country, and his tomb deserves all the care that can be bestowed on it. It lay over his grave in the church of Aberdalgie, and when that structure (not a stone of which now remains) was taken down it lay exposed to the weather for about seven years afterwards. In 1780 it was protected by a great stone slab being placed over it as a roof. This slab is only raised about 12 inches above the monument, so that it is with great difficulty it can be seen. The figure is really in better preservation than it appears in the drawing, but it is hardly possible to make out more of the carving. The stone roof above it is very insecure, and ought to be attended to; and some better defence is needed, as the action of the weather is causing the monument to scale off, and all the architectural decoration will very soon disappear. The slab requires protection from the sun as much as from the rain. The Sketch shows that the north or left side, which is in the shade of the stone roof, is better preserved than the south or right side, the former not being subject to so great an alternation of wet and dry as the latter.

The monumental slab is in one stone, and measures 8 feet 2½ inches long by 4 feet 4 inches wide, and is 6½ inches thick, so that the figure is about life size. The face is quite destroyed. The canopy over the figure, which is engraved in the stone, is the best preserved part. This consists of three cusped arches. Beneath each side arch there is a shield; the one on the sinister side bears the Oliphant arms, the other is almost effaced. The side borders have been very richly carved. They are each divided into four niches, all of which have contained figures, but only one of them is now entire. The border on the dexter side is almost all gone.

All round the stone there has been a raised inscription, of which only a letter or two at top and bottom now remain, and these will, doubtless, soon scale away. At the four corners the inscription has been blocked by the emblems of the evangelists, of which only a part of the emblem of St. Mark now remains, and this is so fragile that it might be picked away with the finger. There has also been some kind of geometrical figure in the centre of the inscription, only the beginning of which remains on one side.

This is one of the finest of the few incised monuments which remain in Scotland.{554}

CREICH CHURCH, Fifeshire.

The ruins of this church stand in an old churchyard, overshadowed by trees, not far from the ancient Castle of Creich,[192] and about six miles north-west from Cupar.

[Image unavailable.]

Fig. 944.—Creich Church. Plan.

[Image unavailable.]

Fig. 945.—Creich Church.
Interior of Doorway.

 

Fig. 946.—Creich Church.
Impost of Arches to South Aisle.

The original structure (Fig. 944) has been an oblong single chamber, 60 feet by 15 feet internally. Apparently there has been no window in the east wall, and all the other windows appear to have been altered, except one near the east end of the north wall, which is 6 inches wide, and{555} is round headed, and splays widely to the interior. All the other windows are square headed, and have probably been altered. It is not easy to say whether the doorway is original or not; it is situated in the position where one would expect it to have been originally. It is round arched, or, if pointed, only very slightly so. It has a stone lintel in the interior, raised in the manner shown (Fig. 945) to admit of the leaves of the door opening.

[Image unavailable.]

Fig. 947.—Creich Church. West Recess.

There is a south chapel or aisle entering from the church by a round-arched opening. The arch has the usual wide double splay resting on the caps of the responds at each side (see Fig. 946). This aisle has a massive base, stepped at various places to suit the sloping ground.

In the north wall there are two semicircular arched recesses, apparently for monuments. The westmost one (Fig. 947) consists of bead and hollow mouldings, with rosettes in the hollows. The other recess, near the east end, is of later workmanship, possibly of the seventeenth century; it has a projecting keystone containing the Barclay arms. On the floor, within this recess, but placed there in quite a temporary manner, there lies the very finely-incised monument shown in Fig. 948; the inscription, on a bevelled edge, bears that it is to the memory of David Barclay of Luthrie, who died in 1400, and Helen de Douglas, his wife, who died{556}

[Image unavailable.]

Fig. 948.—Creich Church. Monument to David Barclay and his Spouse.

{557}

in 1421. The stone is about 6 feet 6 inches long by 2 feet 11 inches wide, and the workmanship of the figures and canopy over, which is incised in the stone, consists of elaborate tabernacle work, corresponding with that found on the monuments and brasses of other countries. The hands and faces shown hatched on the Sketch are rough sinkings, and are supposed to have been filled in with brass. Over the figures there are rich architectural canopies, each of slightly different design. Of two shields, one contains the Barclay arms; the other is quite worn.

The church was probably erected about the time of the date on the monument; and the south aisle was, in all likelihood, erected shortly before the Reformation.

FASLANE CHURCH, Argyleshire.

[Image unavailable.]

Fig. 949.—Faslane Church. Plan.

This ruined structure is situated in a retired spot on the Gareloch, a branch of the Frith of Clyde, and about one mile from Garelochhead. It has consisted of a single chamber (Fig. 949), measuring about 37 feet 10 inches long by 17 feet 9 inches wide inside. The walls are in a very broken down condition, but, fortunately, the east gable is well preserved. From the style, the building would at once, except in the West Highlands, be considered of thirteenth century date, but in that locality it may have been somewhat later.

There are two lancet windows in the east end (Fig. 950), a Plan of which is given to a large scale (Fig. 951), from which, and from the{558} interior view (Fig. 952), it will be seen that they are widely splayed towards the interior, and have round arches, slightly flattened on the top.

[Image unavailable.]

Fig. 950.—Faslane Church. East End.

[Image unavailable.]

Fig. 951.—Faslane Church. Plan of Lancet Windows.

In the north wall, adjoining the east end, there is the usual ambry, chocked for a door. Alongside the ambry are the remains of a window jamb. Probably the entrance was in the south wall, near the west end.{559}

[Image unavailable.]

Fig. 952.—Faslane Church. Interior of East End.

In the thirteenth century the castle of Faslane occupied an almost impregnable summit, at the junction of two glens. “Near to the castle there was a chapel, dedicated, it is supposed, to St. Michael, with a burying-ground attached, and, a little beyond it, a mound, where the priest’s house is reported to have stood.”[193] This church was probably that now illustrated. The old castle was originally occupied by the Earls of Lennox or members of their family, but, before 1400, it was forsaken for Inchmurran, in Loch Lomond. In the fourteenth century Alan of Faslane married Margaret, the only daughter of Donald, the sixth earl, and so acquired the honours of the earldom. In the sixteenth century Faslane was feued to Archibald M‘Aulay of Ardincaple; and about the middle of the eighteenth century the ruined castle furnished a shelter to the last representative of that family.

{560} 

{561} 

INDEX.

A, B, C, D, E, F, G, H, I, J, K, L, M, N, O, P, R, S, T, V, W, Y.

Abailard, 1.
Abdie, 218.
—— St. Magridin’s Church, 293.
Aberdalgie, Monument at, 551.
Aberdeen, King’s College, 285, 445, 504.
Abernethy, 86, 209.
Altyre Church, Morayshire, 290.
Amiens Cathedral, 65.
Anderson, Joseph, 209, 210.
—— R. Rowand, architect, 92.
Apses and square east ends, 4.
Arbroath Abbey, 2, 3, 4, 218, 332;
description, 30.
—— Abbot’s House, 49.
—— —— Regality Court-house, 48.
Arbuthnot, 92.
Architecture, New development of, 1.
—— in Scotland, gap in, 331.
Ardchattan, 146, 245.
Aroise Abbey, Artois, France, 230.
Auchindoir Church, Aberdeenshire, description, 281.

Balmerino Abbey, description, 505.
Barrel Vaults, 333.
Batten, E. Chisholm, 147, 245, 395, 399, 402, 543.
Bays, Design of, 4.
Beauly Priory, 2, 146;
description, 245.
Beverley Minster, 363.
Billings, R., 122, 389.
Birnie Church, 121.
Black’s Brechin, 204, 215.
Border monasteries destroyed, 331.
Bothwell Church, 333, 531.
Brechin Cathedral, 3, 86, 223;
description, 203.
Brechin Maison Dieu, 215.
Buittle Church, Kirkcudbrightshire, description, 300, 344.
Burntisland Church, description, 269.
Bute, Marquis of, 6, 19, 23, 482.

Caithness Cathedral, 3.
Cambuskenneth Abbey, 3, 515;
description, 225.
Campbell, Rev. Dr., Balmerino, 505.
Cathedrals, chiefly thirteenth century, 2.
Chalmers, P. Macgregor, 196, 199, 378, 379, 380, 381, 382, 393, 483.
Chambers, Dr. William, 443.
Chapel on “The Isle,” Wigtonshire, description, 297.
Choir and nave, relative length of, 5.
Clackmannan Church, 231.
Cockpen Church, 303.
Collegiate Churches, 334.
Collie, J., 163, 186.
Cowie Church, Kincardineshire, 273.
Creich Church, 554.
Crosraguel Abbey, 76, 332, 342, 478;
description, 402.
Culross Abbey, 2, 3;
description, 231.
—— Old Parish Church, 243.

Decorated Period, 331.
—— —— Examples of, rare in Scotland, 332.
Deer, Abbey of, 274.
—— Church, 278.
Donoughmore, County Meath, 210.
Dore, Abbey of, Hertfordshire, 186, 381.
{562}Dornoch Cathedral, 3.
Douglas Church, description, 520.
Dryburgh Abbey, 4, 332, 345, 346, 349, 365.
Dunblane Cathedral, 2, 3, 4, 116;
description, 86.
Dundee Church, 235.
Dundrennan Abbey, 2, 3, 335, 342.
Dunfermline Abbey, 3, 92, 485.
Dunkeld Cathedral, 3.
Dunstaffnage Castle, Chapel, description, 299.
Durham Cathedral, 92.
Dysart Church, 235.

Edrom Church, 162.
Egilsay, Orkney, 209.
Elgin Cathedral, 2, 3, 4, 146, 147, 152, 154, 196, 322, 331;
description, 121.
—— St. Giles’, 157.
Ely, 92.
Eyre, Archbishop, 195.

Fail Abbey, 76.
Faslane Church, 557.
Fearn Abbey, Ross-shire, 542.
First Pointed Style, 1, 2.
—— —— introduced from England, 3.
Fortrose Cathedral, 331;
description, 394.

Galloway Cathedral, 3.
—— A Church in, 378.
—— William, architect, 76, 80, 81, 297, 482, 486.
Glasgow Cathedral, 2, 3, 4, 125, 186, 324, 331, 379, 382.
—— High Kirk, 378.
—— St. Mungo’s Cathedral, description, 160.
Glenluce Abbey, 379.
Gogar Church, Font, 306.
Grose, Captain, 76, 204, 391, 393.

Haddington (St. Mary’s) Parish Church, 445;
description, 491.
Hexham Church, 6.
Holyrood Abbey, 2, 3, 4, 330, 332;
description, 53.
Honeyman, John, architect, 160, 161, 165, 168, 169, 171, 198.
Hunter Blair, F. C., 402.

Inchcolm Abbey, 2, 92;
description, 307.
Inchmahome Priory, 3;
description, 112.
Inverkeithing Church, 547.

Jedburgh Abbey, 2, 75, 162, 332, 345.
Jervise, Andrew, 282, 283.

Kelso Abbey, 2, 75, 345.
Kerr, Henry F., 492.
Kilwinning Abbey, 2, 3, 4, 332;
description, 73.
Kineddar Church, 121.
King’s College, Aberdeen, 285, 445, 504.
—— —— Cambridge, 393.
Kinloss Abbey, 121, 232, 402.
Kinross, J., architect, 6, 23.
Kirkwall Cathedral, 3, 4.

Laing, Alexander, 218, 219.
—— Dr. David, 429.
Lamington, 37.
Lanark, St. Kentigern’s, description, 266.
Lancet windows, 4.
Lerida Cathedral, Spain, 37.
Lincluden College, 120, 333, 379, 381, 535;
description, 383.
Lincoln Cathedral, 3.
Lindores Abbey, 4, 294;
description, 217.
Linlithgow Church, 445, 504;
description, 455.
Lismore Cathedral, description, 263.
Luffness Monastery, description, 288.

Mackison, William, architect, 227.
Maison Dieu, Brechin, description, 215.
Martine’s Reliquiæ Divi Andreæ, 19, 23, 24, 27, 29.
Mavisbank House, 258.
Melrose Abbey, 331, 332, 342, 438;
Resemblance of details to York, 333;
{563}description, 344.
Middle Pointed Period, 331.
Monkton Church, description, 285.
Morris, James A., 405.
Muir, T. S., 215, 283, 299, 395, 396, 449, 479.

Neal’s Ecclesiological Notes, 538, 540.
New Abbey, Kirkcudbrightshire, 332;
description, 334.
Newbattle Abbey, 75, 332, 346;
description, 251.
Niddisdale, 378.
Norman Piers, 4.

Orkney, St. Magnus’ Cathedral, 3.
Oudenarde, Belgium, 445.

Paisley Abbey, 75, 286, 332, 378, 379, 393, 501.
Parish Churches, 5.
Pencaitland Church, description, 304.
Piers, First Pointed, 4.
Pinches, Frederick, 378.
Pluscardine Priory, 2, 3, 4, 349;
description, 146.
Pointed Style, 2, 3.
—— Arch in Scotland, 2.
Prestonkirk Church, 271.
Prestwick Church, 286.
—— de Burgo, 286.
—— Monachorum, 286.
—— Prestwick, St. Nicholas’, description, 285.

Ramsay, John, 253, 255.
Rattray, St. Mary’s Chapel, 292.
Redfriars Monastery, Luffness, 288.
Restorations of churches in fifteenth century, 331.
Robb’s Guide to Haddington, 492, 504.
Robertson, T. S., architect, 42, 48, 49, 50, 51, 273, 517.
Romanesque abandoned, 1.
Rosemarkie, 394, 395.
Ross, Cathedral of, 331.
Rosslyn Chapel, 199.
—— Collegiate Church, 186.
Rothesay Castle, Chapel, 517.
Round arch in Scotland, 2.

St. Adamnan’s, Burntisland, 269.
St. Alban’s Abbey, 73, 92.
—— St. Stephen’s, 73.
St. Andrews Cathedral and Priory, 2, 3, 4, 86, 125, 256, 331, 342, 378, 379;
description, 5.
—— St. Mary’s, Kirkheugh, 29.
—— Towers, 3.
St. Bridget’s or St. Bride’s, Douglas, description, 520.
St. Bride’s Collegiate Church, Bothwell, description, 531.
St. Colmanel of Butyle, 300;
description, 344.
St. Cuthbert’s, Monkton, description, 285.
St. Duthus’ Churches, Tain, description, 537.
St. Giles’ Collegiate Church, Edinburgh, 331, 457, 460, 466, 504;
description, 419.
—— Elgin, 157.
St. Kentigern’s, Lanark, description, 266.
St. Magnus’ Cathedral, Orkney, 3.
St. Magridin’s, Abdie, description, 293.
St. Mary’s Chapel, Rattray, description, 292.
St. Michael’s Parish Church, Linlithgow, description, 455.
St. Monans’ Church, Fifeshire, description, 471.
St. Mungo’s Cathedral, Glasgow, description, 160.
St. Mungo, Church of, Culross, 232.
St. Nicholas’, Prestwick, description, 285.
St. Nicholas’ Church, Newcastle, 445.
St. Ninian’s (?) on “The Isle,” 297.
Salisbury Cathedral, 3, 186.
Scott, Sir G. Gilbert, 172.
Seton Chapel, 501.
Sharp’s “Cistercian Architecture,” 241, 242.
Skipness, Kintyre, 300.
Smith, Dr. John, 378.
Spottiswoode, Archbishop, 19, 29, 107.
{564}Spynie Church, 121, 140.
Stokes, Miss, 209.
Stone roofs, 333.
Sweetheart Abbey, 332;
description, 334.

Temple Church, 486.
Third or Late Pointed Style, 332.
Torphichen Church, 235.
Towers, Central, 3.
Transition Style, 2.
Triforium omitted, 4.
Trinity College Church, 426, 478.
Tungland Abbey, Kirkcudbrightshire, description 301.
Turgot, 6.
Tynninghame Church, 234.

Vaults, Pointed, 2.
—— Barrel, 333.

Watson, Robert, architect, 86.
—— T. L., architect, 172, 173, 184.
Whithorn Priory, 379;
description, 479.
Winchester Cathedral, 373.
Wooden roofs, 2.
Wyntoun House, 306.
Wyntown’s Cronykill, 8, 19, 27.

York Cathedral, 3, 333, 363, 381.

{565}

ERRATA.
(corrected in this etext)

Page 80, fifth line from top, for 502, read 503.

Page 89, fifth line from top, for eastern, read northern.

Page 196, first line, for 599, read 600.

Page 308, third line from bottom, for port, read post.

Page 540, sixth line from bottom, for piers, read pews.

Pages 7, &c., for fratry, read fratry.

FOOTNOTES:

[1] Vol. I. p. 46.

[2] See Vol. I. p. 43.

[3] See Viollet-le-Duc Dictionnairepassim; also, Development and Character of Gothic Architecture, by C. H. Moore (1890).

[4] Vol. I. p. 40.

[5] Bower (Vol. I. p. 375-6).

[6] Introduction, p. 39.

[7] Vol. I. p. 62.

[8] Ibid. p. 355.

[9] Introduction, Vol. I. p. 46.

[10] Vol. I. p. 259.

[11] Introduction, Vol. I. p. 47.

[12] Introduction, Vol. I. p. 49.

[13] Ibid. p. 11.

[14] Celtic Scotland, Vol. II. p. 274.

[15] See Vol. I. p. 185.

[16] Over.

[17] Apparently the door seen on Plan immediately west of the south transept.

[18] Tribute.

[19] Martine’s Reliquiæ Divi Andreæ (St. Andrews, 1797), pp. 40 and 192.

[20] We have to thank Mr. Kinross, architect, for the plan of the conventual buildings, here shown, which have been recently excavated.

[21] Martine, p. 206, and Hay Fleming’s Guide to St. Andrews.

[22] Book ix.

[23] Exchequer Rolls, Vol. III., p. xlix.

[24] Lyon’s History of St. Andrews, p. 191.

[25] Quoted by Hay in his History of Arbroath, p. 27.

[26] Vol. I. p. 376.

[27] Castellated and Domestic Architecture of Scotland, Vol. I., p. 561.

[28] Arbroath and its Abbey, by David Miller, 1860, p. 103.

[29] Arbroath and its Abbey, p. 105-6. See also Castellated and Domestic Architecture of Scotland, Vol. v. p. 526.

[30] History of Arbroath, by George Hay, p. 91.

[31] Ibid., p. 193.

[32] See Description of Holyrood Palace, Castellated and Domestic Architecture of Scotland, Vol. IV. p. 130.

[33] Wilson’s Memorials, Vol. II. p. 185.

[34] For an illustration and description of the lectern, see Proceedings of the Antiquarian Society of Scotland, 1878-9, p. 287.

[35] Pont’s Cuninghame by Dobie, p. 254.

[36] Ibid. p. 260.

[37] Pont’s Cuninghame by Dobie, p. 266.

[38] Vol. I. p. 89.

[39] We have to thank Mr. Robert Watson, architect, London, for the geometric drawings of this cathedral—Figs. 509, 514, 515, 516-519, 520, 522, and 523.

[40] Celtic Scotland, Vol. II. p. 396.

[41] See St. Blane’s, Bute, Vol. I. p. 292.

[42] In the recent restoration by Dr. R. Rowand Anderson, which has been carried out since the above description was written, several openings have been formed between the upper chamber (now used as an organ loft) and the choir.

[43] For further reference to the first Bishop William, see Proceedings of the Society of Antiquaries, Vol. XI., 1874-76.

[44] Historic Scenes in Perthshire, by Dr. William Marshall, p. 343.

[45] See description in The Castellated and Domestic Architecture of Scotland, Vol. IV. p. 285.

[46] Registrum Episc., Moraviensis, p. xii.

[47] Register of the Diocese, p. xiii.

[48] The “Wolf” finally made his peace with the Church, and his monument was erected in the cathedral of Dunkeld, where it still exists (see Dunkeld Cathedral).

[49] Registrum, p. xv.

[50] See Castellated and Domestic Architecture of Scotland, Vol. II. p. 58, and Vol. V. p. 90.

[51] Exchequer Rolls, Vol. III. pp. 276, 316, &c.

[52] Nisbet, 1-51.

[53] Castellated and Domestic Architecture of Scotland, Vol. I. p. 439.

[54] Spottiswoode, p. 145.

[55] Spottiswoode, p. 145.

[56] Castellated and Domestic Architecture of Scotland, Vol. II. p. 246.

[57] Guide to Elgin Cathedral, J. S. Pozzi, 1892, p. 29.

[58] Beauly Priory, by E. Chisholm Batten, p. 136.

[59] See Illustration in M‘Phail’s History of Pluscardyn, p. 121.

[60] Registrum Episcopatus Glasguensis, Preface, p. xxiv.

[61] Registrum Episcopatus Glasguensis, Preface, p. xxiv.

[62] Castellated and Domestic Architecture of Scotland, Vol. IV. p. 1.

[63] This view is founded on drawings published in 1836 by James Collie.

[64] Mr. Honeyman was kind enough to accompany us over the building and explain his views on the spot.

[65] This section is taken from Mr. Collie’s work above referred to.

[66] Gordon’s Vade Mecum to Glasgow Cathedral, p. 66.

[67] Royal Archæological Institute of Great Britain and Ireland, Annual Meeting, Edinburgh, 1891.

[68] See Mr. Chalmers’ work, A Scots Mediæval Architect, p. 45.

[69] Transactions of the Glasgow Archæological Society (New Series), Vol. II., Part II., p. 155.

[70] While passing through the press, we observe that Mr. P. Macgregor Chalmers, in his recent very interesting work, A Scots Mediæval Architect, states that he can prove that these figures illustrate the seven ages of man. This interpretation is ingenious, and we should be glad if the proof was made more convincing. Mr. Chalmers is of opinion that the rood screen is of the time of Bishop Blackadder; but the work is considerably superior to that of the adjoining altars, which are certainly by that bishop. It is altogether of finer design and execution than the work of about 1500. The pinnacles have some analogy with those of the Dean’s seat in the chapter house.

[71] Skene’s Celtic Scotland, Vol. II. pp. 397-400.

[72] Black’s Brechin, p. 17.

[73] Ibid. pp. 253, 254.

[74] See Vol. I. p. 175.

[75] Ibid. p. 127.

[76] Scotland in Early Christian Times, p. 41.

[77] Black’s Brechin, p. 276.

[78] See Lindores Abbey and its Burgh of Newburgh, by Alexander Laing, F. S. A. Scot., 1876.

[79] Laing’s Lindores Abbey, p. 135.

[80] Proceedings of the Society of Antiquaries of Scotland, Session 1864-5, p. 14.

[81] Registrum Monasterii de Cambuskenneth, Grampian Club.

[82] Ibid.

[83] Castellated and Domestic Architecture of Scotland, Vol. V. p. 18.

[84] History of Culross.

[85] Royal Institute of British Architects, 19th June 1871, p. 196.

[86] Royal Institute of British Architects, 19th June 1871, p. 196.

[87] It has, however, been suggested that, as the parish was anciently very large, and included Kincardine, possibly the old parish church, which is about a mile off in the country, was used for the landward district, while that of the abbey was the parish church of the town.

[88] The Priory of Beauly, by E. Chisholm-Batten, from which the following historical notes are taken.

[89] Stewart’s Records of Kinloss, XLIX.

[90] For particulars of this abbey see Registrum Sancte Marie de Newbotle, edited for the Bannatyne Club by Professor Cosmo Innes.

[91] Ibid. pp. xv. xx.

[92] Ibid. p. xxxix.

[93] Registrum Sancte Marie de Newbotle, p. xi.

[94] Ibid. pp. xv., xx.

[95] Diplom. Coll. Adv. Libr. MSS., quoted in the Registrum, p. xxiv. Father Hay, so well known in connection with Rosslyn, appears to have had access to papers relating to Newbotle which are not now in existence.

[96] Diplom. Coll. Adv. Libr. MSS., quoted in the Registrum, p. xli., and Bannatyne Miscellany, Vol. II.

[97] Registrum, p. xliv.

[98] Ibid. p. xliv.

[99] Castellated and Domestic Architecture of Scotland, Vol. III. p. 355.

[100] We have to thank Mr. Ramsay for kindly supplying us with the annexed Plan and the measurements of the ruins, and for other assistance freely rendered.

[101] “A Boar’s head, and on a chief indented 3 mullets, which are probably the arms of James Hasmall, who was abbot of the monastery at this time.”—Descriptive Catalogue of Ancient Scottish Seals, by Henry Laing, No. 1090. Laing gives no authority for this supposition; while in the Workman MSS. the same arms are assigned to Schewall of that Ilk. Edward Schewall was abbot in 1526 and 1528. When he died is not known. So that it is quite as likely that the arms on the sixth shield are those of Abbot Schewall as that they refer to Abbot Hasmall.

[102] The Upper Ward of Lanarkshire, p. 257.

[103] See Tynninghame and Whitekirk.

[104] We have to thank Mr. T. S. Robertson, Dundee, for the drawings of this church.

[105] Antiquities of the Shires of Aberdeen and Banff, Spalding Club, p. 414. From Chronica de Mailros, pp. 197-8.

[106] See A General View of the Agriculture of Aberdeenshire, by George Skene Keith, D.D., Aberdeen, 1811, p. 98.

[107] Proceedings of Society of Antiquaries of Scotland, Vol. VIII. p. 323.

[108] New Statistical Account.

[109] Shires of Aberdeen and Banff, Vol. II. p. 394; Ibid. p. 395. Also Chamberlain Rolls, Vol. III. p. 529.

[110] Shires of Aberdeen and Banff, Vol. IV. p. 61.

[111] Lindores Abbey, p. 66.

[112] Ibid. p. 69.

[113] We have to thank Mr. Galloway, architect, Whithorn, for plans and photographs of this chapel.

[114] Ecclesiological Notes, p. 229.

[115] The Castellated and Domestic Architecture of Scotland, Vol. I. p. 90.

[116] Vol. III. p. 72.

[117] M‘Kerlie’s Galloway, Vol. V. p. 234.

[118] M‘Kerlie’s Galloway, Vol. V. p. 189.

[119] Transactions of the Edinburgh Architectural Association, Vol. I. p. 127.

[120] Vol. V. p. 169.

[121] Vol. IV. p. 322.

[122] Act I., Scene 2.

[123] See Proceedings of Society of Antiquaries of Scotland, Vol. II. p. 489.

[124] See Introduction, Vol. I. p. 7.

[125] Figs. 739 and 740 are from sketches in Sir J. Y. Simpson’s paper above referred to.

[126] Vol. I. p. 51.

[127] Introduction, Vol. I. p. 55.

[128] Vol. I. p. 388.

[129] M‘Kerlie’s Galloway, Vol. V. p. 4.

[130] Grose, p. 181.

[131] M‘Kerlie’s Galloway, Vol. V. p. 5.

[132] See Vol. I. pp. 347, 398, 448.

[133] Liber S. Marie de Melros, Introduction, p. ix. See also Morton’s Monastic Annals of Teviotdale.

[134] See Vol. I. Fig. 26.

[135] P. 178.

[136] See The Castellated and Domestic Architecture of Scotland, Vol. V. p. 515.

[137] Proceedings of the Society of Antiquaries, Scotland, Vol. II. p. 168.

[138] See Fig. 804.

[139] See ante, Fig. 602.

[140] Copied from Halfpenny’s York.

[141] Copied from The Builder of 4th April 1896.

[142] Grose, p. 171.

[143] Chronicles of Lincluden, by W. M‘Dowall, p. 55.

[144] M‘Dowall, p. 140.

[145] Ibid. p. 17.

[146] M‘Dowall, p. 64.

[147] Pennant, Vol. II. p. 119.

[148] Mr. P. M‘Gregor Chalmers, in A Scots Mediæval Architect, p. 26, gives a full account of the sculptured scenes on this screen. He thinks they are the work of John Morow, in the beginning of the sixteenth century; but the work here appears to us to be of earlier date.

[149] Vol. I. p. 178.

[150] Celtic Scotland, Vol. II. p. 229.

[151] Beauly Priory, by E. Chisholm-Batten, p. 189.

[152] Muir, Characteristics, p. 68.

[153] Priory of Beauly, p. 195.

[154] Beauly Priory, p. 198.

[155] For illustrations of the gatehouse, see The Castellated and Domestic Architecture of Scotland, Vol. III. p. 385.

[156] In connection with St. Giles’ we are indebted to the following works.—The Charters of St. Giles’, edited by Dr. Laing (1859); Memorials of Edinburgh, by Sir Daniel Wilson (1848); St. Giles’, Edinburgh, by the Very Rev. J. Cameron Lees, D.D.; The Story of St. Giles’, by Dr. W. Chambers (1870).

[157] W. Chambers’ Story of St. Giles’ Church.

[158] The Castellated and Domestic Architecture of Scotland, Vol. V. p. 525.

[159] This Plan shows the building as it stood before 1829, but without the walls which divided the space into three churches.

[160] This oriel is now rebuilt in the west end of the Murray aisle.

[161] The Castellated and Domestic Architecture of Scotland, Vol. V. p. 536.

[162] Celtic Scotland, Vol. II. p. 311.

[163] The Castellated and Domestic Architecture of Scotland, Vol. V. p. 525.

[164] Exchequer Rolls, Vol. II.

[165] See ante, p. 297.

[166] Vol. I. p. 4.

[167] M‘Kerlie’s Galloway, Vol. I. p. 464.

[168] A Scots Mediæval Architect, by P. M‘G. Chalmers, p. 30.

[169] Vol. I. p. 362.

[170] Transactions of the Society of Antiquaries of Scotland, Vol. I. p. 67.

[171] The Castellated and Domestic Architecture of Scotland, Vol. V. p. 64.

[172] Robb’s Guide, p. 30.

[173] See The Castellated and Domestic Architecture of Scotland, Vol. V. p. 203.

[174] Robb’s Guide, p. 32.

[175] Ibid. p. 35.

[176] For further information see Balmerino and its Abbey, by the Rev. James Campbell, M.A., and Liber Sancte Marie de Balmorinach, Abbotsford Club, edited by William B. D. D. Turnbull.

[177] Balmerino and its Abbey, p. 90. The ford of Burglyn was probably on the river Eden, about eight miles distant.

[178] Ibid., and Calendar of State Papers relating to Scotland, Vol. I. p. 73.

[179] Balmerino and its Abbey, p. 126.

[180] These figures are from sketches by Mr. T. S. Robertson.

[181] The Castellated and Domestic Architecture of Scotland, Vol. I. p. 80.

[182] In Irving’s Upper Ward of Lanarkshire, Vol. II. p. 79, the monument to Sir James is stated to have been erected by Sir Archibald, his son.

[183] Ibid. p. 88.

[184] Upper Ward of Lanarkshire, Vol. II. p. 92.

[185] Upper Ward of Lanarkshire, Vol. II. p. 93.

[186] History of Tain, by Rev. W. Taylor, p. 24.

[187] P. 65.

[188] Taylor’s Tain, pp. 40, 44.

[189] Ecclesiological Notes, p. 62.

[190] P. 52.

[191] See List of Abbots of Fearn, in The Priory of Beauty, by K. Chisholm-Batten, p. 313, and New Statistical Account, Vol. XIV. pp. 361, 440.

[192] The Castellated and Domestic Architecture of Scotland, Vol. III. p. 568.

[193] Irving’s Dumbartonshire, p. 414.

[Image of the back cover
is unavailable.]

*** END OF THE PROJECT GUTENBERG EBOOK THE ECCLESIASTICAL ARCHITECTURE OF
SCOTLAND FROM THE EARLIEST CHRISTIAN TIMES TO THE SEVENTEENTH CENTURY; VOL.
2/3 ***

This file should be named 63978-h.htm or 63978-h.zip

This and all associated files of various formats will be found in:
http://www.gutenberg.org/6/3/9/7/63978/

Updated editions will replace the previous one--the old editions will
be renamed.

Creating the works from print editions not protected by U.S. copyright
law means that no one owns a United States copyright in these works,
so the Foundation (and you!) can copy and distribute it in the United
States without permission and without paying copyright
royalties. Special rules, set forth in the General Terms of Use part
of this license, apply to copying and distributing Project
Gutenberg-tm electronic works to protect the PROJECT GUTENBERG-tm
concept and trademark. Project Gutenberg is a registered trademark,
and may not be used if you charge for the eBooks, unless you receive
specific permission. If you do not charge anything for copies of this
eBook, complying with the rules is very easy. You may use this eBook
for nearly any purpose such as creation of derivative works, reports,
performances and research. They may be modified and printed and given
away--you may do practically ANYTHING in the United States with eBooks
not protected by U.S. copyright law. Redistribution is subject to the
trademark license, especially commercial redistribution.

START: FULL LICENSE

THE FULL PROJECT GUTENBERG LICENSE
PLEASE READ THIS BEFORE YOU DISTRIBUTE OR USE THIS WORK

To protect the Project Gutenberg-tm mission of promoting the free
distribution of electronic works, by using or distributing this work
(or any other work associated in any way with the phrase "Project
Gutenberg"), you agree to comply with all the terms of the Full
Project Gutenberg-tm License available with this file or online at
www.gutenberg.org/license.

Section 1. General Terms of Use and Redistributing Project
Gutenberg-tm electronic works

1.A. By reading or using any part of this Project Gutenberg-tm
electronic work, you indicate that you have read, understand, agree to
and accept all the terms of this license and intellectual property
(trademark/copyright) agreement. If you do not agree to abide by all
the terms of this agreement, you must cease using and return or
destroy all copies of Project Gutenberg-tm electronic works in your
possession. If you paid a fee for obtaining a copy of or access to a
Project Gutenberg-tm electronic work and you do not agree to be bound
by the terms of this agreement, you may obtain a refund from the
person or entity to whom you paid the fee as set forth in paragraph
1.E.8.

1.B. "Project Gutenberg" is a registered trademark. It may only be
used on or associated in any way with an electronic work by people who
agree to be bound by the terms of this agreement. There are a few
things that you can do with most Project Gutenberg-tm electronic works
even without complying with the full terms of this agreement. See
paragraph 1.C below. There are a lot of things you can do with Project
Gutenberg-tm electronic works if you follow the terms of this
agreement and help preserve free future access to Project Gutenberg-tm
electronic works. See paragraph 1.E below.

1.C. The Project Gutenberg Literary Archive Foundation ("the
Foundation" or PGLAF), owns a compilation copyright in the collection
of Project Gutenberg-tm electronic works. Nearly all the individual
works in the collection are in the public domain in the United
States. If an individual work is unprotected by copyright law in the
United States and you are located in the United States, we do not
claim a right to prevent you from copying, distributing, performing,
displaying or creating derivative works based on the work as long as
all references to Project Gutenberg are removed. Of course, we hope
that you will support the Project Gutenberg-tm mission of promoting
free access to electronic works by freely sharing Project Gutenberg-tm
works in compliance with the terms of this agreement for keeping the
Project Gutenberg-tm name associated with the work. You can easily
comply with the terms of this agreement by keeping this work in the
same format with its attached full Project Gutenberg-tm License when
you share it without charge with others.

1.D. The copyright laws of the place where you are located also govern
what you can do with this work. Copyright laws in most countries are
in a constant state of change. If you are outside the United States,
check the laws of your country in addition to the terms of this
agreement before downloading, copying, displaying, performing,
distributing or creating derivative works based on this work or any
other Project Gutenberg-tm work. The Foundation makes no
representations concerning the copyright status of any work in any
country outside the United States.

1.E. Unless you have removed all references to Project Gutenberg:

1.E.1. The following sentence, with active links to, or other
immediate access to, the full Project Gutenberg-tm License must appear
prominently whenever any copy of a Project Gutenberg-tm work (any work
on which the phrase "Project Gutenberg" appears, or with which the
phrase "Project Gutenberg" is associated) is accessed, displayed,
performed, viewed, copied or distributed:

  This eBook is for the use of anyone anywhere in the United States and
  most other parts of the world at no cost and with almost no
  restrictions whatsoever. You may copy it, give it away or re-use it
  under the terms of the Project Gutenberg License included with this
  eBook or online at www.gutenberg.org. If you are not located in the
  United States, you will have to check the laws of the country where
  you are located before using this ebook.

1.E.2. If an individual Project Gutenberg-tm electronic work is
derived from texts not protected by U.S. copyright law (does not
contain a notice indicating that it is posted with permission of the
copyright holder), the work can be copied and distributed to anyone in
the United States without paying any fees or charges. If you are
redistributing or providing access to a work with the phrase "Project
Gutenberg" associated with or appearing on the work, you must comply
either with the requirements of paragraphs 1.E.1 through 1.E.7 or
obtain permission for the use of the work and the Project Gutenberg-tm
trademark as set forth in paragraphs 1.E.8 or 1.E.9.

1.E.3. If an individual Project Gutenberg-tm electronic work is posted
with the permission of the copyright holder, your use and distribution
must comply with both paragraphs 1.E.1 through 1.E.7 and any
additional terms imposed by the copyright holder. Additional terms
will be linked to the Project Gutenberg-tm License for all works
posted with the permission of the copyright holder found at the
beginning of this work.

1.E.4. Do not unlink or detach or remove the full Project Gutenberg-tm
License terms from this work, or any files containing a part of this
work or any other work associated with Project Gutenberg-tm.

1.E.5. Do not copy, display, perform, distribute or redistribute this
electronic work, or any part of this electronic work, without
prominently displaying the sentence set forth in paragraph 1.E.1 with
active links or immediate access to the full terms of the Project
Gutenberg-tm License.

1.E.6. You may convert to and distribute this work in any binary,
compressed, marked up, nonproprietary or proprietary form, including
any word processing or hypertext form. However, if you provide access
to or distribute copies of a Project Gutenberg-tm work in a format
other than "Plain Vanilla ASCII" or other format used in the official
version posted on the official Project Gutenberg-tm web site
(www.gutenberg.org), you must, at no additional cost, fee or expense
to the user, provide a copy, a means of exporting a copy, or a means
of obtaining a copy upon request, of the work in its original "Plain
Vanilla ASCII" or other form. Any alternate format must include the
full Project Gutenberg-tm License as specified in paragraph 1.E.1.

1.E.7. Do not charge a fee for access to, viewing, displaying,
performing, copying or distributing any Project Gutenberg-tm works
unless you comply with paragraph 1.E.8 or 1.E.9.

1.E.8. You may charge a reasonable fee for copies of or providing
access to or distributing Project Gutenberg-tm electronic works
provided that

* You pay a royalty fee of 20% of the gross profits you derive from
  the use of Project Gutenberg-tm works calculated using the method
  you already use to calculate your applicable taxes. The fee is owed
  to the owner of the Project Gutenberg-tm trademark, but he has
  agreed to donate royalties under this paragraph to the Project
  Gutenberg Literary Archive Foundation. Royalty payments must be paid
  within 60 days following each date on which you prepare (or are
  legally required to prepare) your periodic tax returns. Royalty
  payments should be clearly marked as such and sent to the Project
  Gutenberg Literary Archive Foundation at the address specified in
  Section 4, "Information about donations to the Project Gutenberg
  Literary Archive Foundation."

* You provide a full refund of any money paid by a user who notifies
  you in writing (or by e-mail) within 30 days of receipt that s/he
  does not agree to the terms of the full Project Gutenberg-tm
  License. You must require such a user to return or destroy all
  copies of the works possessed in a physical medium and discontinue
  all use of and all access to other copies of Project Gutenberg-tm
  works.

* You provide, in accordance with paragraph 1.F.3, a full refund of
  any money paid for a work or a replacement copy, if a defect in the
  electronic work is discovered and reported to you within 90 days of
  receipt of the work.

* You comply with all other terms of this agreement for free
  distribution of Project Gutenberg-tm works.

1.E.9. If you wish to charge a fee or distribute a Project
Gutenberg-tm electronic work or group of works on different terms than
are set forth in this agreement, you must obtain permission in writing
from both the Project Gutenberg Literary Archive Foundation and The
Project Gutenberg Trademark LLC, the owner of the Project Gutenberg-tm
trademark. Contact the Foundation as set forth in Section 3 below.

1.F.

1.F.1. Project Gutenberg volunteers and employees expend considerable
effort to identify, do copyright research on, transcribe and proofread
works not protected by U.S. copyright law in creating the Project
Gutenberg-tm collection. Despite these efforts, Project Gutenberg-tm
electronic works, and the medium on which they may be stored, may
contain "Defects," such as, but not limited to, incomplete, inaccurate
or corrupt data, transcription errors, a copyright or other
intellectual property infringement, a defective or damaged disk or
other medium, a computer virus, or computer codes that damage or
cannot be read by your equipment.

1.F.2. LIMITED WARRANTY, DISCLAIMER OF DAMAGES - Except for the "Right
of Replacement or Refund" described in paragraph 1.F.3, the Project
Gutenberg Literary Archive Foundation, the owner of the Project
Gutenberg-tm trademark, and any other party distributing a Project
Gutenberg-tm electronic work under this agreement, disclaim all
liability to you for damages, costs and expenses, including legal
fees. YOU AGREE THAT YOU HAVE NO REMEDIES FOR NEGLIGENCE, STRICT
LIABILITY, BREACH OF WARRANTY OR BREACH OF CONTRACT EXCEPT THOSE
PROVIDED IN PARAGRAPH 1.F.3. YOU AGREE THAT THE FOUNDATION, THE
TRADEMARK OWNER, AND ANY DISTRIBUTOR UNDER THIS AGREEMENT WILL NOT BE
LIABLE TO YOU FOR ACTUAL, DIRECT, INDIRECT, CONSEQUENTIAL, PUNITIVE OR
INCIDENTAL DAMAGES EVEN IF YOU GIVE NOTICE OF THE POSSIBILITY OF SUCH
DAMAGE.

1.F.3. LIMITED RIGHT OF REPLACEMENT OR REFUND - If you discover a
defect in this electronic work within 90 days of receiving it, you can
receive a refund of the money (if any) you paid for it by sending a
written explanation to the person you received the work from. If you
received the work on a physical medium, you must return the medium
with your written explanation. The person or entity that provided you
with the defective work may elect to provide a replacement copy in
lieu of a refund. If you received the work electronically, the person
or entity providing it to you may choose to give you a second
opportunity to receive the work electronically in lieu of a refund. If
the second copy is also defective, you may demand a refund in writing
without further opportunities to fix the problem.

1.F.4. Except for the limited right of replacement or refund set forth
in paragraph 1.F.3, this work is provided to you 'AS-IS', WITH NO
OTHER WARRANTIES OF ANY KIND, EXPRESS OR IMPLIED, INCLUDING BUT NOT
LIMITED TO WARRANTIES OF MERCHANTABILITY OR FITNESS FOR ANY PURPOSE.

1.F.5. Some states do not allow disclaimers of certain implied
warranties or the exclusion or limitation of certain types of
damages. If any disclaimer or limitation set forth in this agreement
violates the law of the state applicable to this agreement, the
agreement shall be interpreted to make the maximum disclaimer or
limitation permitted by the applicable state law. The invalidity or
unenforceability of any provision of this agreement shall not void the
remaining provisions.

1.F.6. INDEMNITY - You agree to indemnify and hold the Foundation, the
trademark owner, any agent or employee of the Foundation, anyone
providing copies of Project Gutenberg-tm electronic works in
accordance with this agreement, and any volunteers associated with the
production, promotion and distribution of Project Gutenberg-tm
electronic works, harmless from all liability, costs and expenses,
including legal fees, that arise directly or indirectly from any of
the following which you do or cause to occur: (a) distribution of this
or any Project Gutenberg-tm work, (b) alteration, modification, or
additions or deletions to any Project Gutenberg-tm work, and (c) any
Defect you cause.

Section 2. Information about the Mission of Project Gutenberg-tm

Project Gutenberg-tm is synonymous with the free distribution of
electronic works in formats readable by the widest variety of
computers including obsolete, old, middle-aged and new computers. It
exists because of the efforts of hundreds of volunteers and donations
from people in all walks of life.

Volunteers and financial support to provide volunteers with the
assistance they need are critical to reaching Project Gutenberg-tm's
goals and ensuring that the Project Gutenberg-tm collection will
remain freely available for generations to come. In 2001, the Project
Gutenberg Literary Archive Foundation was created to provide a secure
and permanent future for Project Gutenberg-tm and future
generations. To learn more about the Project Gutenberg Literary
Archive Foundation and how your efforts and donations can help, see
Sections 3 and 4 and the Foundation information page at
www.gutenberg.org 

Section 3. Information about the Project Gutenberg Literary 
Archive Foundation

The Project Gutenberg Literary Archive Foundation is a non profit
501(c)(3) educational corporation organized under the laws of the
state of Mississippi and granted tax exempt status by the Internal
Revenue Service. The Foundation's EIN or federal tax identification
number is 64-6221541. Contributions to the Project Gutenberg Literary
Archive Foundation are tax deductible to the full extent permitted by
U.S. federal laws and your state's laws.

The Foundation's principal office is in Fairbanks, Alaska, with the
mailing address: PO Box 750175, Fairbanks, AK 99775, but its
volunteers and employees are scattered throughout numerous
locations. Its business office is located at 809 North 1500 West, Salt
Lake City, UT 84116, (801) 596-1887. Email contact links and up to
date contact information can be found at the Foundation's web site and
official page at www.gutenberg.org/contact

For additional contact information:

    Dr. Gregory B. Newby
    Chief Executive and Director
    gbnewby@pglaf.org

Section 4. Information about Donations to the Project Gutenberg
Literary Archive Foundation

Project Gutenberg-tm depends upon and cannot survive without wide
spread public support and donations to carry out its mission of
increasing the number of public domain and licensed works that can be
freely distributed in machine readable form accessible by the widest
array of equipment including outdated equipment. Many small donations
($1 to $5,000) are particularly important to maintaining tax exempt
status with the IRS.

The Foundation is committed to complying with the laws regulating
charities and charitable donations in all 50 states of the United
States. Compliance requirements are not uniform and it takes a
considerable effort, much paperwork and many fees to meet and keep up
with these requirements. We do not solicit donations in locations
where we have not received written confirmation of compliance. To SEND
DONATIONS or determine the status of compliance for any particular
state visit www.gutenberg.org/donate

While we cannot and do not solicit contributions from states where we
have not met the solicitation requirements, we know of no prohibition
against accepting unsolicited donations from donors in such states who
approach us with offers to donate.

International donations are gratefully accepted, but we cannot make
any statements concerning tax treatment of donations received from
outside the United States. U.S. laws alone swamp our small staff.

Please check the Project Gutenberg Web pages for current donation
methods and addresses. Donations are accepted in a number of other
ways including checks, online payments and credit card donations. To
donate, please visit: www.gutenberg.org/donate

Section 5. General Information About Project Gutenberg-tm electronic works.

Professor Michael S. Hart was the originator of the Project
Gutenberg-tm concept of a library of electronic works that could be
freely shared with anyone. For forty years, he produced and
distributed Project Gutenberg-tm eBooks with only a loose network of
volunteer support.

Project Gutenberg-tm eBooks are often created from several printed
editions, all of which are confirmed as not protected by copyright in
the U.S. unless a copyright notice is included. Thus, we do not
necessarily keep eBooks in compliance with any particular paper
edition.

Most people start at our Web site which has the main PG search
facility: www.gutenberg.org

This Web site includes information about Project Gutenberg-tm,
including how to make donations to the Project Gutenberg Literary
Archive Foundation, how to help produce our new eBooks, and how to
subscribe to our email newsletter to hear about new eBooks.